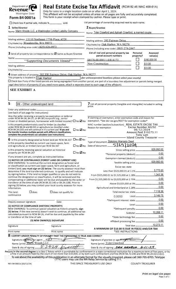
Property
Account |
| Property ID: | 814173 | Abbreviated Legal Description: | MARIN WOODS,s Lot 11,s |
| Geographic ID: | S8578-00-00011-0 | Agent Code: | |
| Type: | Real | | |
| Tax Area: | 100 - APPRAISER-OH Schl Dist, in OH | Land Use Code | 11 |
| Open Space: | N | DFL | N |
| Historic Property: | N | Remodel Property: | N |
| Multi-Family Redevelopment: | N | | |
| Township: | 32 | Section: | 04 |
| Range: | R1 |
Location |
| Address: | 385 SW FAIRWAY DR OAK HARBOR, WA 98277 | Mapsco: | |
| Neighborhood: | Cycle 1 | Map ID: | 97 |
| Neighborhood CD: | 1 |
Owner |
| Name: | CRAWFORD, TYLER | Owner ID: | 312732 |
| Mailing Address: | AALIYAH CRAWFORD 385 FAIRWAY DR OAK HARBOR, WA 98277 | % Ownership: | 100.0000000000% |
| | | Exemptions: | |
Taxes and Assessment Details
Property Tax Information as of
03/10/2026
Click on "Statement Details" to expand or collapse a tax statement.
* Please enter a valid date ** Please enter a valid date *
Statement Details |
| 2026 | 53892 | ST - State School | $721.71 | $721.70 | $0.00 | $0.00 | $0.00 | $1443.41 |
| 2026 | 53892 | Island County - Island County General Fund | $116.74 | $116.73 | $0.00 | $0.00 | $0.00 | $233.47 |
| 2026 | 53892 | CIOKHRB - City of Oak Harbor | $794.08 | $794.08 | $0.00 | $0.00 | $0.00 | $1588.16 |
| 2026 | 53892 | PRKRECNWHDBY - Park & Recreation North Whidbey | $63.24 | $63.23 | $0.00 | $0.00 | $0.00 | $126.47 |
| 2026 | 53892 | SCH201 - School 201 Oak Harbor | $757.80 | $757.80 | $0.00 | $0.00 | $0.00 | $1515.60 |
| 2026 | 53892 | CEM1 - Cemetery #1 North Whidbey | $1.27 | $1.27 | $0.00 | $0.00 | $0.00 | $2.54 |
| 2026 | 53892 | LIB - Library Sno-Isle Regional | $96.56 | $96.56 | $0.00 | $0.00 | $0.00 | $193.12 |
| 2026 | 53892 | HOSPEMS - Whidbey Health EMS Island County | $157.34 | $157.33 | $0.00 | $0.00 | $0.00 | $314.67 |
| 2026 | 53892 | HOSP - Whidbey Health | $182.45 | $182.43 | $0.00 | $0.00 | $0.00 | $364.88 |
| 2026 | 53892 | CF - Island County Conservation Futures | $9.98 | $9.97 | $0.00 | $0.00 | $0.00 | $19.95 |
| 2026 | 53892 | WDBYCNV - Whidbey Conservation District | $2.55 | $2.55 | $0.00 | $0.00 | $0.00 | $5.10 |
| 2026 | 53892 | TOTAL: | $2903.72 | $2903.65 | $0.00 | $0.00 | $0.00 | $5807.37 |
|
| 2026 | 53892 | $2903.72 | $2903.65 | $0.00 | $0.00 | $0.00 | $5807.37 |
Statement Details |
| 2025 | 54014 | ST - State School | $661.73 | $661.73 | $0.00 | $0.00 | $1323.46 | $0.00 |
| 2025 | 54014 | Island County - Island County General Fund | $115.73 | $115.72 | $0.00 | $0.00 | $231.45 | $0.00 |
| 2025 | 54014 | CIOKHRB - City of Oak Harbor | $777.92 | $777.92 | $0.00 | $0.00 | $1555.84 | $0.00 |
| 2025 | 54014 | PRKRECNWHDBY - Park & Recreation North Whidbey | $62.55 | $62.55 | $0.00 | $0.00 | $125.10 | $0.00 |
| 2025 | 54014 | SCH201 - School 201 Oak Harbor | $579.16 | $579.16 | $0.00 | $0.00 | $1158.32 | $0.00 |
| 2025 | 54014 | CEM1 - Cemetery #1 North Whidbey | $1.26 | $1.26 | $0.00 | $0.00 | $2.52 | $0.00 |
| 2025 | 54014 | LIB - Library Sno-Isle Regional | $98.41 | $98.40 | $0.00 | $0.00 | $196.81 | $0.00 |
| 2025 | 54014 | HOSPEMS - Whidbey Health EMS Island County | $156.03 | $156.03 | $0.00 | $0.00 | $312.06 | $0.00 |
| 2025 | 54014 | HOSP - Whidbey Health | $181.41 | $181.41 | $0.00 | $0.00 | $362.82 | $0.00 |
| 2025 | 54014 | CF - Island County Conservation Futures | $9.86 | $9.86 | $0.00 | $0.00 | $19.72 | $0.00 |
| 2025 | 54014 | WDBYCNV - Whidbey Conservation District | $2.55 | $2.55 | $0.00 | $0.00 | $5.10 | $0.00 |
| 2025 | 54014 | TOTAL: | $2646.61 | $2646.59 | $0.00 | $0.00 | $5293.20 | $0.00 |
|
| 2025 | 54014 | $2646.61 | $2646.59 | $0.00 | $0.00 | $5293.20 | $0.00 |
Statement Details |
| 2024 | 53799 | ST - State School | $93.53 | $93.53 | $0.00 | $0.00 | $187.06 | $0.00 |
| 2024 | 53799 | Island County - Island County General Fund | $14.90 | $14.90 | $0.00 | $0.00 | $29.80 | $0.00 |
| 2024 | 53799 | CIOKHRB - City of Oak Harbor | $99.70 | $99.69 | $0.00 | $0.00 | $199.39 | $0.00 |
| 2024 | 53799 | PRKRECNWHDBY - Park & Recreation North Whidbey | $5.49 | $5.49 | $0.00 | $0.00 | $10.98 | $0.00 |
| 2024 | 53799 | SCH201 - School 201 Oak Harbor | $72.53 | $72.52 | $0.00 | $0.00 | $145.05 | $0.00 |
| 2024 | 53799 | CEM1 - Cemetery #1 North Whidbey | $0.16 | $0.16 | $0.00 | $0.00 | $0.32 | $0.00 |
| 2024 | 53799 | LIB - Library Sno-Isle Regional | $12.97 | $12.97 | $0.00 | $0.00 | $25.94 | $0.00 |
| 2024 | 53799 | HOSPEMS - Whidbey Health EMS Island County | $13.25 | $13.25 | $0.00 | $0.00 | $26.50 | $0.00 |
| 2024 | 53799 | HOSP - Whidbey Health | $23.26 | $23.25 | $0.00 | $0.00 | $46.51 | $0.00 |
| 2024 | 53799 | CF - Island County Conservation Futures | $1.28 | $1.28 | $0.00 | $0.00 | $2.56 | $0.00 |
| 2024 | 53799 | WDBYCNV - Whidbey Conservation District | $2.55 | $2.55 | $0.00 | $0.00 | $5.10 | $0.00 |
| 2024 | 53799 | TOTAL: | $339.62 | $339.59 | $0.00 | $0.00 | $679.21 | $0.00 |
|
| 2024 | 53799 | $339.62 | $339.59 | $0.00 | $0.00 | $679.21 | $0.00 |
Values
| (+) Improvement Homesite Value: | + | $0 | |
| (+) Improvement Non-Homesite Value: | + | $425,440 | |
| (+) Land Homesite Value: | + | $0 | |
| (+) Land Non-Homesite Value: | + | $210,000 | |
| (+) Curr Use (HS): | + | $0 | $0 |
| (+) Curr Use (NHS): | + | $0 | $0 |
| | | -------------------------- | |
| (=) Market Value: | = | $635,440 | |
| (–) Productivity Loss: | – | $0 | |
| | | -------------------------- | |
| (=) Subtotal: | = | $635,440 | |
| (+) Senior Appraised Value: | + | $0 | |
| (+) Non-Senior Appraised Value: | + | $635,440 | |
| | | -------------------------- | |
| (=) Total Appraised Value: | = | $635,440 | |
| (–) Senior Exemption Loss: | – | $0 | |
| (–) Exemption Loss: | – | $0 | |
| | | -------------------------- | |
| (=) Taxable Value: | = | $635,440 | |
Taxing Jurisdiction
| Owner: | CRAWFORD, TYLER | | |
| % Ownership: | 100.0000000000% | | |
| Total Value: | $635,440 | | |
| Tax Area: | 100 - APPRAISER-OH Schl Dist, in OH |
| CF | Conservation Futures | 0.0313996660 | $635,440 | $635,440 | $19.95 | | |
| CEM1 | Cemetery #1 | 0.0040018856 | $635,440 | $635,440 | $2.54 | | |
| COH | City of Oak Harbor | 2.3090730572 | $635,440 | $635,440 | $1,467.28 | | |
| OAKBOND | City of Oak Harbor BOND | 0.1902260131 | $635,440 | $635,440 | $120.88 | | |
| HOBOND | Hospital BOND | 0.1893405597 | $635,440 | $635,440 | $120.31 | | |
| HOGEN | Hospital GEN | 0.3848777722 | $635,440 | $635,440 | $244.57 | | |
| CE | County Current Expense | 0.3674210519 | $635,440 | $635,440 | $233.47 | | |
| ISLANDEMS | Hospital GEN (EMS) | 0.4952018576 | $635,440 | $635,440 | $314.67 | | |
| LIB | Library Sno-Isle GEN | 0.3039084203 | $635,440 | $635,440 | $193.12 | | |
| NWHIDPRMT | P & R N Whidbey GEN | 0.1990272349 | $635,440 | $635,440 | $126.47 | | |
| SCH201MO | School 201 Enrichment | 2.3851112745 | $635,440 | $635,440 | $1,515.60 | | |
| ST | State School | 1.4761226122 | $635,440 | $635,440 | $937.99 | | |
| ST2 | State School Part 2 | 0.7953803475 | $635,440 | $635,440 | $505.42 | | |
| | Total Tax Rate: | 9.1310917527 | | | | | |
| | | | | Taxes w/Current Exemptions: | $5,802.27 | | |
| | | | | Taxes w/o Exemptions: | $5,802.27 | | |
Improvement / Building
| Improvement #1: | RESIDENTIAL | State Code: | Y | 2358.5 sqft | Value: | $425,440 |
| Bathrooms: | 2.5 | Bedrooms: | 4 | | Ceiling: | DRYWALL PAINTED | Cooling: | HEAT PUMP/CONV/V | | Exterior Wall/Cover: | PLY/HARDBOARD T-111 | Floor Covering: | CARPET/VINYL 20-80 | | Floor Structure: | WOOD W/SUBFLOOR | Foundation: | CONCRETE | | Interior Finish: | DRYWALL PAINT | Plumbing Fixture Cnt: | 15 | | Roof Slope: | 6" IN 12" | Roof Structure/Cover: | CJ ASPHALT |
|
| | Type | Description | Class CD | Sub Class CD | Year Built | Area |
| | BAS | BASE/MAIN FLOOR | 3 | 0 | 2024 | 964.0 |
| | UPS | UPPER STORY | 3 | 0 | 2024 | 1394.5 |
| | BIG | BUILT IN GARAGE | 3 | 0 | 2024 | 406.0 |
| | OP4 | OPEN PORCH W/CEILING-ROOF | 3 | 0 | 2024 | 80.0 |
| | OP4 | OPEN PORCH W/CEILING-ROOF | 3 | 0 | 2024 | 15.0 |
Sketch
Property Image
Land
| 1 | 12 | SQ (00000-06000) | 0.1210 | 5272.00 | 0.00 | 0.00 | 1.00 | $210,000 | $0 |
Roll Value History
| 2026 | N/A | N/A | N/A | N/A | N/A |
| 2025 | $425,440 | $210,000 | $0 | $635,440 | $635,440 |
| 2024 | $434,123 | $190,000 | $0 | $624,123 | $624,123 |
| 2023 | $0 | $80,000 | $0 | $80,000 | $80,000 |
Deed and Sales History
| 1 | 05/29/2024 | WD | Warranty Deed | MARIN WOOD LLC | CRAWFORD, TYLER | | | $629,950.00 | 60292 | 4573353 |
Payout Agreement
| No payout information available.. |