Property
Account |
| Property ID: | 814418 | Abbreviated Legal Description: | RIDGE VIEW ESTATES,s Lot 007,s Blk 00;s |
| Geographic ID: | S8580-00-00007-0 | Agent Code: | |
| Type: | Real | | |
| Tax Area: | 512 - APPRAISER-Stan/Cam Schl Dist, improved, greater than 1 acre | Land Use Code | 11 |
| Open Space: | N | DFL | N |
| Historic Property: | N | Remodel Property: | N |
| Multi-Family Redevelopment: | N | | |
| Township: | 32 | Section: | 35 |
| Range: | R2 |
Location |
| Address: | 185 N CAMANO RIDGE RD CAMANO ISLAND, WA 98282 | Mapsco: | |
| Neighborhood: | North Camano | Map ID: | 576 |
| Neighborhood CD: | 06-C |
Owner |
| Name: | HAYES, BRIAN E | Owner ID: | 312031 |
| Mailing Address: | NICOLE M HAYES 185 N CAMANO RIDGE RD CAMANO ISLAND, WA 98282 | % Ownership: | 100.0000000000% |
| | | Exemptions: | |
Taxes and Assessment Details
Property Tax Information as of
03/11/2026
Click on "Statement Details" to expand or collapse a tax statement.
* Please enter a valid date ** Please enter a valid date *
Statement Details |
| 2026 | 54109 | ST - State School | $990.32 | $990.31 | $0.00 | $0.00 | $0.00 | $1980.63 |
| 2026 | 54109 | Island County - Island County General Fund | $160.19 | $160.18 | $0.00 | $0.00 | $0.00 | $320.37 |
| 2026 | 54109 | ISLANDCORD - Island County Roads | $201.17 | $201.17 | $0.00 | $0.00 | $0.00 | $402.34 |
| 2026 | 54109 | SCH205_401 - School 205-401 Stanwood-Camano | $1005.02 | $1005.01 | $0.00 | $0.00 | $0.00 | $2010.03 |
| 2026 | 54109 | FIRE1 - Fire & Rescue Dist #1 Camano | $833.82 | $833.82 | $0.00 | $0.00 | $0.00 | $1667.64 |
| 2026 | 54109 | LIB - Library Sno-Isle Regional | $132.50 | $132.49 | $0.00 | $0.00 | $0.00 | $264.99 |
| 2026 | 54109 | CF - Island County Conservation Futures | $13.69 | $13.69 | $0.00 | $0.00 | $0.00 | $27.38 |
| 2026 | 54109 | Camano - Camano Island Conservation District | $2.60 | $2.60 | $0.00 | $0.00 | $0.00 | $5.20 |
| 2026 | 54109 | CWU - Clean Water Utility | $19.57 | $19.56 | $0.00 | $0.00 | $0.00 | $39.13 |
| 2026 | 54109 | FP - Forest Protection | $8.50 | $8.50 | $0.00 | $0.00 | $0.00 | $17.00 |
| 2026 | 54109 | LCFFSA - Landowner Contingency Forest Fire Suppression | $3.00 | $3.00 | $0.00 | $0.00 | $0.00 | $6.00 |
| 2026 | 54109 | FP ADMIN - Fire patrol | $0.25 | $0.25 | $0.00 | $0.00 | $0.00 | $0.50 |
| 2026 | 54109 | TOTAL: | $3370.63 | $3370.58 | $0.00 | $0.00 | $0.00 | $6741.21 |
|
| 2026 | 54109 | $3370.63 | $3370.58 | $0.00 | $0.00 | $0.00 | $6741.21 |
Statement Details |
| 2025 | 54238 | ST - State School | $314.80 | $314.79 | $0.00 | $0.00 | $629.59 | $0.00 |
| 2025 | 54238 | Island County - Island County General Fund | $55.06 | $55.05 | $0.00 | $0.00 | $110.11 | $0.00 |
| 2025 | 54238 | ISLANDCORD - Island County Roads | $68.06 | $68.06 | $0.00 | $0.00 | $136.12 | $0.00 |
| 2025 | 54238 | SCH205_401 - School 205-401 Stanwood-Camano | $328.01 | $328.00 | $0.00 | $0.00 | $656.01 | $0.00 |
| 2025 | 54238 | FIRE1 - Fire & Rescue Dist #1 Camano | $263.52 | $263.51 | $0.00 | $0.00 | $527.03 | $0.00 |
| 2025 | 54238 | LIB - Library Sno-Isle Regional | $46.82 | $46.81 | $0.00 | $0.00 | $93.63 | $0.00 |
| 2025 | 54238 | CF - Island County Conservation Futures | $4.69 | $4.69 | $0.00 | $0.00 | $9.38 | $0.00 |
| 2025 | 54238 | Camano - Camano Island Conservation District | $2.60 | $2.60 | $0.00 | $0.00 | $5.20 | $0.00 |
| 2025 | 54238 | FP - Forest Protection | $8.50 | $8.50 | $0.00 | $0.00 | $17.00 | $0.00 |
| 2025 | 54238 | LCFFSA - Landowner Contingency Forest Fire Suppression | $3.00 | $3.00 | $0.00 | $0.00 | $6.00 | $0.00 |
| 2025 | 54238 | FP ADMIN - Fire patrol | $0.25 | $0.25 | $0.00 | $0.00 | $0.50 | $0.00 |
| 2025 | 54238 | TOTAL: | $1095.31 | $1095.26 | $0.00 | $0.00 | $2190.57 | $0.00 |
|
| 2025 | 54238 | $1095.31 | $1095.26 | $0.00 | $0.00 | $2190.57 | $0.00 |
Values
| (+) Improvement Homesite Value: | + | $0 | |
| (+) Improvement Non-Homesite Value: | + | $571,946 | |
| (+) Land Homesite Value: | + | $0 | |
| (+) Land Non-Homesite Value: | + | $300,000 | |
| (+) Curr Use (HS): | + | $0 | $0 |
| (+) Curr Use (NHS): | + | $0 | $0 |
| | | -------------------------- | |
| (=) Market Value: | = | $871,946 | |
| (–) Productivity Loss: | – | $0 | |
| | | -------------------------- | |
| (=) Subtotal: | = | $871,946 | |
| (+) Senior Appraised Value: | + | $0 | |
| (+) Non-Senior Appraised Value: | + | $871,946 | |
| | | -------------------------- | |
| (=) Total Appraised Value: | = | $871,946 | |
| (–) Senior Exemption Loss: | – | $0 | |
| (–) Exemption Loss: | – | $0 | |
| | | -------------------------- | |
| (=) Taxable Value: | = | $871,946 | |
Taxing Jurisdiction
| Owner: | HAYES, BRIAN E | | |
| % Ownership: | 100.0000000000% | | |
| Total Value: | $871,946 | | |
| Tax Area: | 512 - APPRAISER-Stan/Cam Schl Dist, improved, greater than 1 acre |
| CF | Conservation Futures | 0.0313996660 | $871,946 | $871,946 | $27.38 | | |
| EMS1 | Fire & Rescue Dist #1 Camano GEN (EMS) | 0.4998471806 | $871,946 | $871,946 | $435.84 | | |
| FIRE1 | Fire & Rescue Dist #1 Camano GEN | 1.2496603404 | $871,946 | $871,946 | $1,089.64 | | |
| FIRE1BOND | Fire & Rescue Dist #1 Camano BOND | 0.1630371212 | $871,946 | $871,946 | $142.16 | | |
| CE | County Current Expense | 0.3674210519 | $871,946 | $871,946 | $320.37 | | |
| CR | County Roads | 0.4614296361 | $871,946 | $871,946 | $402.34 | | |
| LIB | Library Sno-Isle GEN | 0.3039084203 | $871,946 | $871,946 | $264.99 | | |
| SCH205_401 | School 205-401 Enrichment | 1.3697998934 | $871,946 | $871,946 | $1,194.39 | | |
| SCH205BOND | School 205-401 BOND | 0.9354199323 | $871,946 | $871,946 | $815.64 | | |
| ST | State School | 1.4761226122 | $871,946 | $871,946 | $1,287.10 | | |
| ST2 | State School Part 2 | 0.7953803475 | $871,946 | $871,946 | $693.53 | | |
| | Total Tax Rate: | 7.6534262019 | | | | | |
| | | | | Taxes w/Current Exemptions: | $6,673.38 | | |
| | | | | Taxes w/o Exemptions: | $6,673.38 | | |
Improvement / Building
| Improvement #1: | RESIDENTIAL | State Code: | Y | 2455.8 sqft | Value: | $571,946 |
| Bathrooms: | 2.5 | Bedrooms: | 3 | | Ceiling: | DRYWALL PAINTED | Cooling: | HEAT PUMP/CONV/V | | Exterior Wall/Cover: | (NONE) | Floor Covering: | HARDWOOD 100% | | Floor Structure: | WOOD W/SUBFLOOR | Foundation: | CONCRETE | | Interior Finish: | DRYWALL PAINT | Plumbing Fixture Cnt: | 12 | | Roof Slope: | 6" IN 12" | Roof Structure/Cover: | CJ ASPHALT |
|
| | Type | Description | Class CD | Sub Class CD | Year Built | Area |
| | BAS | BASE/MAIN FLOOR | 4 | 0 | 2024 | 2455.8 |
| | AGR | ATTACHED GARAGE | 4 | 0 | 2024 | 784.7 |
| | OWC | OPEN WOOD PORCH W/STEPS/ROOF/C | 4 | 0 | 2024 | 83.4 |
| | OWC | OPEN WOOD PORCH W/STEPS/ROOF/C | 4 | 0 | 2024 | 732.9 |
| | DGR | DETACHED GARAGE | 4 | 0 | 2024 | 240.0 |
Sketch
Property Image
Land
| 1 | HS | HOMESITE | 1.0000 | 43560.00 | 0.00 | 0.00 | 1.00 | $290,000 | $0 |
| 2 | 99 | OTHER UNDEVELOPED LAND PLATS/SUBDIVISION | 0.0029 | 126.32 | 0.00 | 0.00 | 1.00 | $10,000 | $0 |
Roll Value History
| 2026 | N/A | N/A | N/A | N/A | N/A |
| 2025 | $571,946 | $300,000 | $0 | $871,946 | $871,946 |
| 2024 | $176,904 | $120,000 | $0 | $296,904 | $296,904 |
Deed and Sales History
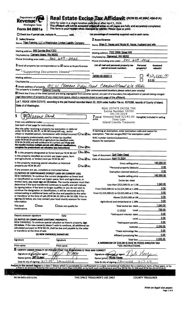
| 1 | 04/15/2024 | QCD | Quit Claim Deed | TITAN FRAMING LLC | HAYES, BRIAN E | | | $140,000.00 | 59700 | 4571445 |
Payout Agreement
| No payout information available.. |