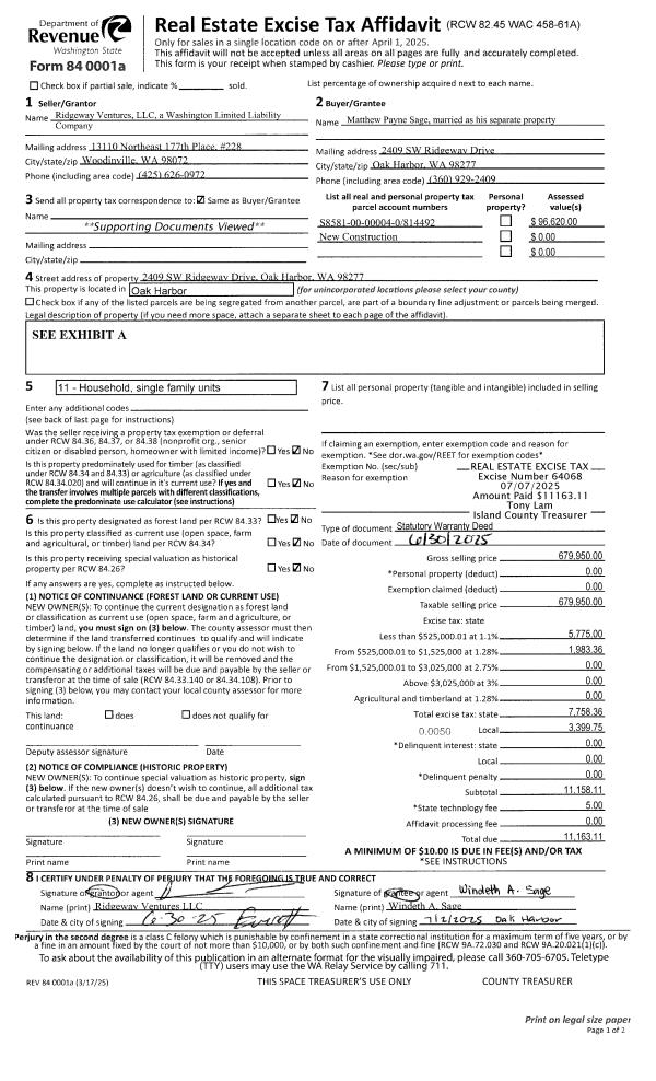
Property
Account |
| Property ID: | 814492 | Abbreviated Legal Description: | RIDGEWAY HEIGHTS,s Lot 4,s Blk 0;s |
| Geographic ID: | S8581-00-00004-0 | Agent Code: | |
| Type: | Real | | |
| Tax Area: | 100 - APPRAISER-OH Schl Dist, in OH | Land Use Code | 11 |
| Open Space: | N | DFL | N |
| Historic Property: | N | Remodel Property: | N |
| Multi-Family Redevelopment: | N | | |
| Township: | 32 | Section: | 10 |
| Range: | R1 |
Location |
| Address: | 2409 SW RIDGEWAY DR OAK HARBOR, WA 98277 | Mapsco: | |
| Neighborhood: | Cycle 1 | Map ID: | 118 |
| Neighborhood CD: | 1 |
Owner |
| Name: | SAGE, MATTHEW PAYNE | Owner ID: | 317282 |
| Mailing Address: | 2409 SW RIDGEWAY DR OAK HARBOR, WA 98277 | % Ownership: | 100.0000000000% |
| | | Exemptions: | |
Taxes and Assessment Details
Property Tax Information as of
03/10/2026
Click on "Statement Details" to expand or collapse a tax statement.
* Please enter a valid date ** Please enter a valid date *
Statement Details |
| 2026 | 54179 | ST - State School | $109.74 | $109.73 | $0.00 | $0.00 | $0.00 | $219.47 |
| 2026 | 54179 | Island County - Island County General Fund | $17.75 | $17.75 | $0.00 | $0.00 | $0.00 | $35.50 |
| 2026 | 54179 | CIOKHRB - City of Oak Harbor | $120.74 | $120.74 | $0.00 | $0.00 | $0.00 | $241.48 |
| 2026 | 54179 | PRKRECNWHDBY - Park & Recreation North Whidbey | $9.62 | $9.61 | $0.00 | $0.00 | $0.00 | $19.23 |
| 2026 | 54179 | SCH201 - School 201 Oak Harbor | $115.23 | $115.22 | $0.00 | $0.00 | $0.00 | $230.45 |
| 2026 | 54179 | CEM1 - Cemetery #1 North Whidbey | $0.20 | $0.19 | $0.00 | $0.00 | $0.00 | $0.39 |
| 2026 | 54179 | LIB - Library Sno-Isle Regional | $14.68 | $14.68 | $0.00 | $0.00 | $0.00 | $29.36 |
| 2026 | 54179 | HOSPEMS - Whidbey Health EMS Island County | $23.93 | $23.92 | $0.00 | $0.00 | $0.00 | $47.85 |
| 2026 | 54179 | HOSP - Whidbey Health | $27.75 | $27.73 | $0.00 | $0.00 | $0.00 | $55.48 |
| 2026 | 54179 | CF - Island County Conservation Futures | $1.52 | $1.51 | $0.00 | $0.00 | $0.00 | $3.03 |
| 2026 | 54179 | WDBYCNV - Whidbey Conservation District | $2.55 | $2.55 | $0.00 | $0.00 | $0.00 | $5.10 |
| 2026 | 54179 | TOTAL: | $443.71 | $443.63 | $0.00 | $0.00 | $0.00 | $887.34 |
|
| 2026 | 54179 | $443.71 | $443.63 | $0.00 | $0.00 | $0.00 | $887.34 |
Statement Details |
| 2025 | 54310 | ST - State School | $102.45 | $102.43 | $0.00 | $0.00 | $204.88 | $0.00 |
| 2025 | 54310 | Island County - Island County General Fund | $17.92 | $17.91 | $0.00 | $0.00 | $35.83 | $0.00 |
| 2025 | 54310 | CIOKHRB - City of Oak Harbor | $120.43 | $120.43 | $0.00 | $0.00 | $240.86 | $0.00 |
| 2025 | 54310 | PRKRECNWHDBY - Park & Recreation North Whidbey | $9.69 | $9.68 | $0.00 | $0.00 | $19.37 | $0.00 |
| 2025 | 54310 | SCH201 - School 201 Oak Harbor | $89.66 | $89.66 | $0.00 | $0.00 | $179.32 | $0.00 |
| 2025 | 54310 | CEM1 - Cemetery #1 North Whidbey | $0.20 | $0.19 | $0.00 | $0.00 | $0.39 | $0.00 |
| 2025 | 54310 | LIB - Library Sno-Isle Regional | $15.24 | $15.23 | $0.00 | $0.00 | $30.47 | $0.00 |
| 2025 | 54310 | HOSPEMS - Whidbey Health EMS Island County | $24.16 | $24.15 | $0.00 | $0.00 | $48.31 | $0.00 |
| 2025 | 54310 | HOSP - Whidbey Health | $28.09 | $28.08 | $0.00 | $0.00 | $56.17 | $0.00 |
| 2025 | 54310 | CF - Island County Conservation Futures | $1.53 | $1.52 | $0.00 | $0.00 | $3.05 | $0.00 |
| 2025 | 54310 | TOTAL: | $409.37 | $409.28 | $0.00 | $0.00 | $818.65 | $0.00 |
|
| 2025 | 54310 | $409.37 | $409.28 | $0.00 | $0.00 | $818.65 | $0.00 |
Values
| (+) Improvement Homesite Value: | + | $0 | |
| (+) Improvement Non-Homesite Value: | + | $16,620 | |
| (+) Land Homesite Value: | + | $0 | |
| (+) Land Non-Homesite Value: | + | $80,000 | |
| (+) Curr Use (HS): | + | $0 | $0 |
| (+) Curr Use (NHS): | + | $0 | $0 |
| | | -------------------------- | |
| (=) Market Value: | = | $96,620 | |
| (–) Productivity Loss: | – | $0 | |
| | | -------------------------- | |
| (=) Subtotal: | = | $96,620 | |
| (+) Senior Appraised Value: | + | $0 | |
| (+) Non-Senior Appraised Value: | + | $96,620 | |
| | | -------------------------- | |
| (=) Total Appraised Value: | = | $96,620 | |
| (–) Senior Exemption Loss: | – | $0 | |
| (–) Exemption Loss: | – | $0 | |
| | | -------------------------- | |
| (=) Taxable Value: | = | $96,620 | |
Taxing Jurisdiction
| Owner: | SAGE, MATTHEW PAYNE | | |
| % Ownership: | 100.0000000000% | | |
| Total Value: | $96,620 | | |
| Tax Area: | 100 - APPRAISER-OH Schl Dist, in OH |
| CF | Conservation Futures | 0.0313996660 | $96,620 | $96,620 | $3.03 | | |
| CEM1 | Cemetery #1 | 0.0040018856 | $96,620 | $96,620 | $0.39 | | |
| COH | City of Oak Harbor | 2.3090730572 | $96,620 | $96,620 | $223.10 | | |
| OAKBOND | City of Oak Harbor BOND | 0.1902260131 | $96,620 | $96,620 | $18.38 | | |
| HOBOND | Hospital BOND | 0.1893405597 | $96,620 | $96,620 | $18.29 | | |
| HOGEN | Hospital GEN | 0.3848777722 | $96,620 | $96,620 | $37.19 | | |
| CE | County Current Expense | 0.3674210519 | $96,620 | $96,620 | $35.50 | | |
| ISLANDEMS | Hospital GEN (EMS) | 0.4952018576 | $96,620 | $96,620 | $47.85 | | |
| LIB | Library Sno-Isle GEN | 0.3039084203 | $96,620 | $96,620 | $29.36 | | |
| NWHIDPRMT | P & R N Whidbey GEN | 0.1990272349 | $96,620 | $96,620 | $19.23 | | |
| SCH201MO | School 201 Enrichment | 2.3851112745 | $96,620 | $96,620 | $230.45 | | |
| ST | State School | 1.4761226122 | $96,620 | $96,620 | $142.62 | | |
| ST2 | State School Part 2 | 0.7953803475 | $96,620 | $96,620 | $76.85 | | |
| | Total Tax Rate: | 9.1310917527 | | | | | |
| | | | | Taxes w/Current Exemptions: | $882.24 | | |
| | | | | Taxes w/o Exemptions: | $882.24 | | |
Improvement / Building
| Improvement #1: | RESIDENTIAL | State Code: | Y | 0.0 sqft | Value: | $16,620 |
| Improvement #2: | RESIDENTIAL | State Code: | Y | 2636.5 sqft | Value: | $0 |
| | Type | Description | Class CD | Sub Class CD | Year Built | Area |
| | BAS | BASE/MAIN FLOOR | 3 | 0 | 2025 | 995.0 |
| | UPS | UPPER STORY | 3 | 0 | 2025 | 1641.5 |
| | AGR | ATTACHED GARAGE | 3 | 0 | 2025 | 400.0 |
| | OP3 | OPEN PORCH W/ROOF | 3 | 0 | 2025 | 120.0 |
| | OP3 | OPEN PORCH W/ROOF | 3 | 0 | 2025 | 60.0 |
Sketch
| No sketches available for this property. |
Property Image
Land
| 1 | 12 | SQ (00000-06000) | 0.0000 | 0.00 | 0.00 | 0.00 | 1.00 | $80,000 | $0 |
Roll Value History
| 2026 | N/A | N/A | N/A | N/A | N/A |
| 2025 | $16,620 | $80,000 | $0 | $96,620 | $96,620 |
| 2024 | $16,620 | $80,000 | $0 | $96,620 | $96,620 |
Deed and Sales History
| 1 | 07/02/2025 | WD | Warranty Deed | SAGE, WINDETH A | SAGE, MATTHEW PAYNE | | | $0.00 | 64069 | 4587868 |
| 2 | 06/30/2025 | WD | Warranty Deed | RIDGEWAY VENTURES, LLC | SAGE, MATTHEW PAYNE | | | $679,950.00 | 64068 | 4587867 |
Payout Agreement
| No payout information available.. |