Property
Account |
| Property ID: | 814539 | Abbreviated Legal Description: | Lot 2 Kreuger Farm 4 |
| Geographic ID: | S7302-04-00002-0 | Agent Code: | |
| Type: | Real | | |
| Tax Area: | 300 - APPRAISER-Cpvl Schl Dist, in Cpvl | Land Use Code | 99 |
| Open Space: | N | DFL | N |
| Historic Property: | N | Remodel Property: | N |
| Multi-Family Redevelopment: | N | | |
| Township: | 32 | Section: | 33 |
| Range: | R1 |
Location |
| Address: | 207 NW THIRD ST COUPEVILLE, WA 98239 | Mapsco: | |
| Neighborhood: | Cycle 2 | Map ID: | 173 |
| Neighborhood CD: | 2 |
Owner |
| Name: | AMERINE, DENVER | Owner ID: | 317949 |
| Mailing Address: | MARGEAUX AMERINE 639 NE OTIS ST COUPEVILLE, WA 98239 | % Ownership: | 100.0000000000% |
| | | Exemptions: | |
Taxes and Assessment Details
Property Tax Information as of
03/09/2026
Click on "Statement Details" to expand or collapse a tax statement.
* Please enter a valid date ** Please enter a valid date *
Statement Details |
| 2026 | 54224 | ST - State School | $107.90 | $107.89 | $0.00 | $0.00 | $0.00 | $215.79 |
| 2026 | 54224 | Island County - Island County General Fund | $17.45 | $17.45 | $0.00 | $0.00 | $0.00 | $34.90 |
| 2026 | 54224 | CICPVL - City: Town of Coupeville | $38.90 | $38.89 | $0.00 | $0.00 | $0.00 | $77.79 |
| 2026 | 54224 | PRTCPVL - Port of Coupeville | $20.99 | $20.98 | $0.00 | $0.00 | $0.00 | $41.97 |
| 2026 | 54224 | SCH204 - School 204 Coupeville | $36.25 | $36.25 | $0.00 | $0.00 | $0.00 | $72.50 |
| 2026 | 54224 | CEM2 - Cemetery #2 Central Whidbey | $0.44 | $0.44 | $0.00 | $0.00 | $0.00 | $0.88 |
| 2026 | 54224 | FIRE5 - Fire & Rescue Dist #5 Central Whidbey | $63.12 | $63.11 | $0.00 | $0.00 | $0.00 | $126.23 |
| 2026 | 54224 | LIB - Library Sno-Isle Regional | $16.95 | $16.94 | $0.00 | $0.00 | $0.00 | $33.89 |
| 2026 | 54224 | HOSPEMS - Whidbey Health EMS Island County | $23.52 | $23.52 | $0.00 | $0.00 | $0.00 | $47.04 |
| 2026 | 54224 | HOSP - Whidbey Health | $27.28 | $27.27 | $0.00 | $0.00 | $0.00 | $54.55 |
| 2026 | 54224 | CF - Island County Conservation Futures | $1.49 | $1.49 | $0.00 | $0.00 | $0.00 | $2.98 |
| 2026 | 54224 | WDBYCNV - Whidbey Conservation District | $2.55 | $2.55 | $0.00 | $0.00 | $0.00 | $5.10 |
| 2026 | 54224 | TOTAL: | $356.84 | $356.78 | $0.00 | $0.00 | $0.00 | $713.62 |
|
| 2026 | 54224 | $356.84 | $356.78 | $0.00 | $0.00 | $0.00 | $713.62 |
Statement Details |
| 2025 | 54345 | ST - State School | $39.38 | $39.38 | $0.00 | $0.00 | $78.76 | $0.00 |
| 2025 | 54345 | Island County - Island County General Fund | $6.89 | $6.88 | $0.00 | $0.00 | $13.77 | $0.00 |
| 2025 | 54345 | CICPVL - City: Town of Coupeville | $15.65 | $15.65 | $0.00 | $0.00 | $31.30 | $0.00 |
| 2025 | 54345 | PRTCPVL - Port of Coupeville | $8.36 | $8.36 | $0.00 | $0.00 | $16.72 | $0.00 |
| 2025 | 54345 | SCH204 - School 204 Coupeville | $14.78 | $14.77 | $0.00 | $0.00 | $29.55 | $0.00 |
| 2025 | 54345 | CEM2 - Cemetery #2 Central Whidbey | $0.18 | $0.17 | $0.00 | $0.00 | $0.35 | $0.00 |
| 2025 | 54345 | FIRE5 - Fire & Rescue Dist #5 Central Whidbey | $24.90 | $24.90 | $0.00 | $0.00 | $49.80 | $0.00 |
| 2025 | 54345 | LIB - Library Sno-Isle Regional | $6.87 | $6.86 | $0.00 | $0.00 | $13.73 | $0.00 |
| 2025 | 54345 | HOSPEMS - Whidbey Health EMS Island County | $9.29 | $9.28 | $0.00 | $0.00 | $18.57 | $0.00 |
| 2025 | 54345 | HOSP - Whidbey Health | $10.80 | $10.80 | $0.00 | $0.00 | $21.60 | $0.00 |
| 2025 | 54345 | CF - Island County Conservation Futures | $0.59 | $0.58 | $0.00 | $0.00 | $1.17 | $0.00 |
| 2025 | 54345 | TOTAL: | $137.69 | $137.63 | $0.00 | $0.00 | $275.32 | $0.00 |
|
| 2025 | 54345 | $137.69 | $137.63 | $0.00 | $0.00 | $275.32 | $0.00 |
Values
| (+) Improvement Homesite Value: | + | N/A | |
| (+) Improvement Non-Homesite Value: | + | N/A | |
| (+) Land Homesite Value: | + | N/A | |
| (+) Land Non-Homesite Value: | + | N/A | Ag / Timber Use Value |
| (+) Curr Use (HS): | + | N/A | N/A |
| (+) Curr Use (NHS): | + | N/A | N/A |
| | | -------------------------- | |
| (=) Market Value: | = | N/A | |
| (–) Productivity Loss: | – | N/A | |
| | | -------------------------- | |
| (=) Subtotal: | = | N/A | |
| (+) Senior Appraised Value: | + | N/A | |
| (+) Non-Senior Appraised Value: | + | N/A | |
| | | -------------------------- | |
| (=) Total Appraised Value: | = | N/A | |
| (–) Senior Exemption Loss: | – | N/A | |
| (–) Exemption Loss: | – | N/A | |
| | | -------------------------- | |
| (=) Taxable Value: | = | N/A | |
Taxing Jurisdiction
| Owner: | AMERINE, DENVER | | |
| % Ownership: | 100.0000000000% | | |
| Total Value: | N/A | | |
| Tax Area: | 300 - APPRAISER-Cpvl Schl Dist, in Cpvl |
| CF | Conservation Futures | N/A | N/A | N/A | N/A | | |
| WCD | Whidbey Conservation District | N/A | N/A | N/A | N/A | | |
| CEM2 | Cemetery #2 | N/A | N/A | N/A | N/A | | |
| COUP | City: Town of Coupeville | N/A | N/A | N/A | N/A | | |
| FIRE5 | Fire & Rescue Dist #5 C Whidbey GEN | N/A | N/A | N/A | N/A | | |
| FIRE5BOND | Fire & Rescue Dist #5 C Whidbey BOND | N/A | N/A | N/A | N/A | | |
| HOBOND | Hospital BOND | N/A | N/A | N/A | N/A | | |
| HOGEN | Hospital GEN | N/A | N/A | N/A | N/A | | |
| CE | County Current Expense | N/A | N/A | N/A | N/A | | |
| ISLANDEMS | Hospital GEN (EMS) | N/A | N/A | N/A | N/A | | |
| LIB | Library Sno-Isle GEN | N/A | N/A | N/A | N/A | | |
| LIBCAP | Library Sno-Isle BOND (Cap Fac Imp Area) | N/A | N/A | N/A | N/A | | |
| POCOUP | Port of Coupeville GEN | N/A | N/A | N/A | N/A | | |
| COUPSDTECH | School 204 CP (TECH) | N/A | N/A | N/A | N/A | | |
| SCH204MO | School 204 Enrichment | N/A | N/A | N/A | N/A | | |
| ST | State School | N/A | N/A | N/A | N/A | | |
| ST2 | State School Part 2 | N/A | N/A | N/A | N/A | | |
| | Total Tax Rate: | N/A | | | | | |
| | | | | Taxes w/Current Exemptions: | N/A | | |
| | | | | Taxes w/o Exemptions: | N/A | | |
Improvement / Building
| Improvement #1: | RESIDENTIAL | State Code: | Y | 3233.8 sqft | Value: | N/A |
| Bathrooms: | 3.5 | Bedrooms: | 5 | | Ceiling: | (NONE) | Exterior Wall/Cover: | CEMENT FIBER | | Floor Covering: | (NONE) | Floor Structure: | WOOD W/SUBFLOOR | | Foundation: | CONCRETE | Heating: | HEAT PUMP | | Interior Finish: | (NONE) | Plumbing Fixture Cnt: | 17 | | Roof Slope: | 6" IN 12" | Roof Structure/Cover: | CJ METAL |
|
| | Type | Description | Class CD | Sub Class CD | Year Built | Area |
| | BAS | BASE/MAIN FLOOR | 3 | 0 | 2025 | 1412.0 |
| | UPS | UPPER STORY | 3 | 0 | 2025 | 1821.8 |
| | AGR | ATTACHED GARAGE | 3 | 0 | 2025 | 624.0 |
Sketch
Property Image
Land
| 1 | 91 | UNDEVELOPED LAND-METES AND BOUNDS | 0.2881 | 12549.64 | 0.00 | 0.00 | 1.00 | N/A | N/A |
Roll Value History
| 2026 | N/A | N/A | N/A | N/A | N/A |
| 2025 | $0 | $95,000 | $0 | $95,000 | $95,000 |
| 2024 | $0 | $37,143 | $0 | $37,143 | $37,143 |
Deed and Sales History
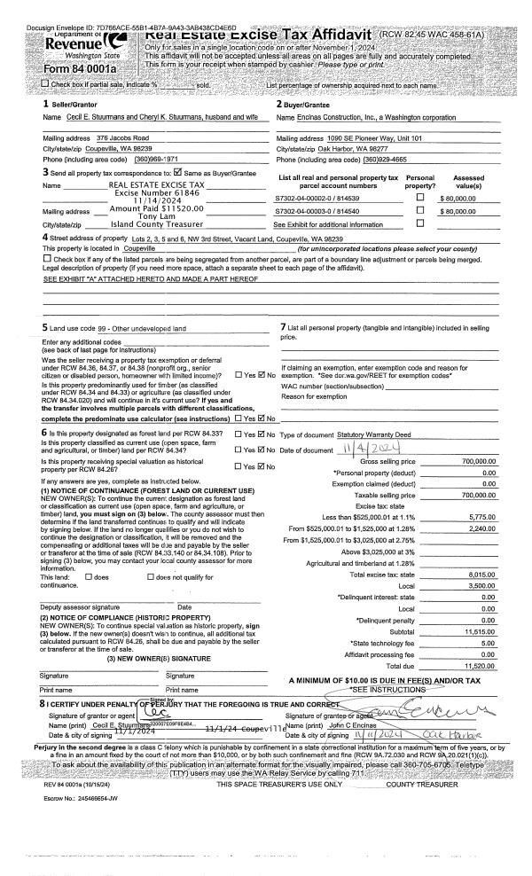
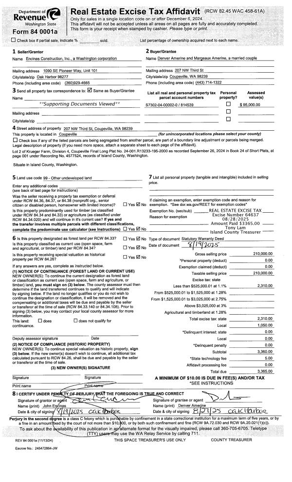
| 1 | 08/19/2025 | WD | Warranty Deed | ENCINAS CONSTRUCTION INC | AMERINE, DENVER | | | $210,000.00 | 64637 | 4590212 |
| 2 | 11/04/2024 | WD | Warranty Deed | STUURMANS, CECIL & CHERYL | ENCINAS CONSTRUCTION INC | | | $700,000.00 | 61846 | 4579445 |
|   | |
Payout Agreement
| No payout information available.. |