Property
Account |
| Property ID: | 814542 | Abbreviated Legal Description: | Lot 5 Krueger Farm 4 |
| Geographic ID: | S7302-04-00005-0 | Agent Code: | |
| Type: | Real | | |
| Tax Area: | 300 - APPRAISER-Cpvl Schl Dist, in Cpvl | Land Use Code | 11 |
| Open Space: | N | DFL | N |
| Historic Property: | N | Remodel Property: | N |
| Multi-Family Redevelopment: | N | | |
| Township: | 32 | Section: | 33 |
| Range: | R1 |
Location |
| Address: | 213 NW THIRD ST COUPEVILLE, WA 98239 | Mapsco: | |
| Neighborhood: | Cycle 2 | Map ID: | 173 |
| Neighborhood CD: | 2 |
Owner |
| Name: | ENCINAS CONSTRUCTION INC | Owner ID: | 192942 |
| Mailing Address: | 1090 SE PIONEER WAY UNIT 101 OAK HARBOR, WA 98277 | % Ownership: | 100.0000000000% |
| | | Exemptions: | |
Taxes and Assessment Details
Property Tax Information as of
03/09/2026
Click on "Statement Details" to expand or collapse a tax statement.
* Please enter a valid date ** Please enter a valid date *
Statement Details |
| 2026 | 54227 | ST - State School | $467.56 | $467.54 | $0.00 | $0.00 | $0.00 | $935.10 |
| 2026 | 54227 | Island County - Island County General Fund | $75.63 | $75.62 | $0.00 | $0.00 | $0.00 | $151.25 |
| 2026 | 54227 | CICPVL - City: Town of Coupeville | $168.55 | $168.55 | $0.00 | $0.00 | $0.00 | $337.10 |
| 2026 | 54227 | PRTCPVL - Port of Coupeville | $90.95 | $90.93 | $0.00 | $0.00 | $0.00 | $181.88 |
| 2026 | 54227 | SCH204 - School 204 Coupeville | $157.09 | $157.08 | $0.00 | $0.00 | $0.00 | $314.17 |
| 2026 | 54227 | CEM2 - Cemetery #2 Central Whidbey | $1.91 | $1.90 | $0.00 | $0.00 | $0.00 | $3.81 |
| 2026 | 54227 | FIRE5 - Fire & Rescue Dist #5 Central Whidbey | $273.48 | $273.48 | $0.00 | $0.00 | $0.00 | $546.96 |
| 2026 | 54227 | LIB - Library Sno-Isle Regional | $73.44 | $73.43 | $0.00 | $0.00 | $0.00 | $146.87 |
| 2026 | 54227 | HOSPEMS - Whidbey Health EMS Island County | $101.93 | $101.93 | $0.00 | $0.00 | $0.00 | $203.86 |
| 2026 | 54227 | HOSP - Whidbey Health | $118.19 | $118.19 | $0.00 | $0.00 | $0.00 | $236.38 |
| 2026 | 54227 | CF - Island County Conservation Futures | $6.47 | $6.46 | $0.00 | $0.00 | $0.00 | $12.93 |
| 2026 | 54227 | WDBYCNV - Whidbey Conservation District | $2.55 | $2.55 | $0.00 | $0.00 | $0.00 | $5.10 |
| 2026 | 54227 | TOTAL: | $1537.75 | $1537.66 | $0.00 | $0.00 | $0.00 | $3075.41 |
|
| 2026 | 54227 | $1537.75 | $1537.66 | $0.00 | $0.00 | $0.00 | $3075.41 |
Statement Details |
| 2025 | 54348 | ST - State School | $84.82 | $84.82 | $0.00 | $0.00 | $169.64 | $0.00 |
| 2025 | 54348 | Island County - Island County General Fund | $14.84 | $14.83 | $0.00 | $0.00 | $29.67 | $0.00 |
| 2025 | 54348 | CICPVL - City: Town of Coupeville | $33.71 | $33.70 | $0.00 | $0.00 | $67.41 | $0.00 |
| 2025 | 54348 | PRTCPVL - Port of Coupeville | $18.02 | $18.01 | $0.00 | $0.00 | $36.03 | $0.00 |
| 2025 | 54348 | SCH204 - School 204 Coupeville | $31.82 | $31.81 | $0.00 | $0.00 | $63.63 | $0.00 |
| 2025 | 54348 | CEM2 - Cemetery #2 Central Whidbey | $0.38 | $0.38 | $0.00 | $0.00 | $0.76 | $0.00 |
| 2025 | 54348 | FIRE5 - Fire & Rescue Dist #5 Central Whidbey | $53.63 | $53.63 | $0.00 | $0.00 | $107.26 | $0.00 |
| 2025 | 54348 | LIB - Library Sno-Isle Regional | $14.80 | $14.78 | $0.00 | $0.00 | $29.58 | $0.00 |
| 2025 | 54348 | HOSPEMS - Whidbey Health EMS Island County | $20.00 | $20.00 | $0.00 | $0.00 | $40.00 | $0.00 |
| 2025 | 54348 | HOSP - Whidbey Health | $23.26 | $23.25 | $0.00 | $0.00 | $46.51 | $0.00 |
| 2025 | 54348 | CF - Island County Conservation Futures | $1.27 | $1.26 | $0.00 | $0.00 | $2.53 | $0.00 |
| 2025 | 54348 | TOTAL: | $296.55 | $296.47 | $0.00 | $0.00 | $593.02 | $0.00 |
|
| 2025 | 54348 | $296.55 | $296.47 | $0.00 | $0.00 | $593.02 | $0.00 |
Values
| (+) Improvement Homesite Value: | + | $0 | |
| (+) Improvement Non-Homesite Value: | + | $234,165 | |
| (+) Land Homesite Value: | + | $0 | |
| (+) Land Non-Homesite Value: | + | $177,500 | |
| (+) Curr Use (HS): | + | $0 | $0 |
| (+) Curr Use (NHS): | + | $0 | $0 |
| | | -------------------------- | |
| (=) Market Value: | = | $411,665 | |
| (–) Productivity Loss: | – | $0 | |
| | | -------------------------- | |
| (=) Subtotal: | = | $411,665 | |
| (+) Senior Appraised Value: | + | $0 | |
| (+) Non-Senior Appraised Value: | + | $411,665 | |
| | | -------------------------- | |
| (=) Total Appraised Value: | = | $411,665 | |
| (–) Senior Exemption Loss: | – | $0 | |
| (–) Exemption Loss: | – | $0 | |
| | | -------------------------- | |
| (=) Taxable Value: | = | $411,665 | |
Taxing Jurisdiction
| Owner: | ENCINAS CONSTRUCTION INC | | |
| % Ownership: | 100.0000000000% | | |
| Total Value: | $411,665 | | |
| Tax Area: | 300 - APPRAISER-Cpvl Schl Dist, in Cpvl |
| CF | Conservation Futures | 0.0313996660 | $411,665 | $411,665 | $12.93 | | |
| CEM2 | Cemetery #2 | 0.0092609791 | $411,665 | $411,665 | $3.81 | | |
| COUP | City: Town of Coupeville | 0.8188663519 | $411,665 | $411,665 | $337.10 | | |
| FIRE5 | Fire & Rescue Dist #5 C Whidbey GEN | 1.1892169230 | $411,665 | $411,665 | $489.56 | | |
| FIRE5BOND | Fire & Rescue Dist #5 C Whidbey BOND | 0.1394359503 | $411,665 | $411,665 | $57.40 | | |
| HOBOND | Hospital BOND | 0.1893405597 | $411,665 | $411,665 | $77.94 | | |
| HOGEN | Hospital GEN | 0.3848777722 | $411,665 | $411,665 | $158.44 | | |
| CE | County Current Expense | 0.3674210519 | $411,665 | $411,665 | $151.25 | | |
| ISLANDEMS | Hospital GEN (EMS) | 0.4952018576 | $411,665 | $411,665 | $203.86 | | |
| LIB | Library Sno-Isle GEN | 0.3039084203 | $411,665 | $411,665 | $125.11 | | |
| LIBCAP | Library Sno-Isle BOND (Cap Fac Imp Area) | 0.0528562629 | $411,665 | $411,665 | $21.76 | | |
| POCOUP | Port of Coupeville GEN | 0.1065226063 | $411,665 | $411,665 | $43.85 | | |
| POCOUPIDD | Port of Coupeville IDD | 0.3353038577 | $411,665 | $411,665 | $138.03 | | |
| COUPSDTECH | School 204 CP (TECH) | 0.1215123397 | $411,665 | $411,665 | $50.02 | | |
| SCH204MO | School 204 Enrichment | 0.6416662518 | $411,665 | $411,665 | $264.15 | | |
| ST | State School | 1.4761226122 | $411,665 | $411,665 | $607.67 | | |
| ST2 | State School Part 2 | 0.7953803475 | $411,665 | $411,665 | $327.43 | | |
| | Total Tax Rate: | 7.4582938101 | | | | | |
| | | | | Taxes w/Current Exemptions: | $3,070.31 | | |
| | | | | Taxes w/o Exemptions: | $3,070.31 | | |
Improvement / Building
| Improvement #1: | RESIDENTIAL | State Code: | Y | 1798.0 sqft | Value: | $234,165 |
| Bathrooms: | 3 | Bedrooms: | 2 | | Ceiling: | DRYWALL PAINTED | Cooling: | HEAT PUMP/CONV/V | | Exterior Wall/Cover: | CEMENT FIBER | Floor Covering: | (NONE) | | Floor Structure: | WOOD W/SUBFLOOR | Foundation: | CONCRETE | | Interior Finish: | DRYWALL PAINT | Plumbing Fixture Cnt: | 10 | | Roof Slope: | 5" IN 12" | Roof Structure/Cover: | CJ ASPHALT |
|
| | Type | Description | Class CD | Sub Class CD | Year Built | Area |
| | BAS | BASE/MAIN FLOOR | 3 | 0 | 2025 | 1798.0 |
| | AGR | ATTACHED GARAGE | 3 | 0 | 2025 | 499.0 |
| | OP4 | OPEN PORCH W/CEILING-ROOF | 3 | 0 | 2025 | 182.0 |
| | OWR | OPEN WOOD PORCH W/STEPS/ROOF | 3 | 0 | 2025 | 48.0 |
Sketch
| No sketches available for this property. |
Property Image
Land
| 1 | HS | HOMESITE | 0.2711 | 11809.12 | 0.00 | 0.00 | 1.00 | $177,500 | $0 |
Roll Value History
| 2026 | N/A | N/A | N/A | N/A | N/A |
| 2025 | $234,165 | $177,500 | $0 | $411,665 | $411,665 |
| 2024 | $0 | $80,000 | $0 | $80,000 | $80,000 |
Deed and Sales History
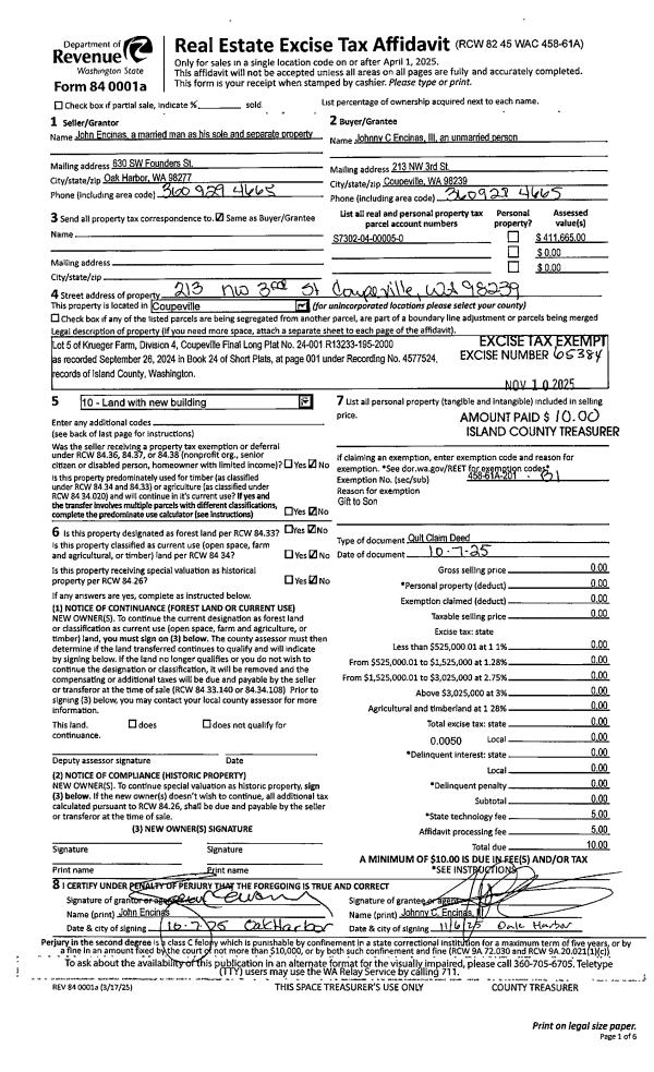
| 1 | 10/07/2025 | QCD | Quit Claim Deed | ENCINAS, JOHN | ENCINAS III, JOHNNY C | | | $0.00 | 65384 | 4593229 |
| 2 | 10/07/2025 | QCD | Quit Claim Deed | ENCINAS CONSTRUCTION INC | ENCINAS, JOHN | | | $0.00 | 65091 | 4591971 |
| 3 | 11/04/2024 | WD | Warranty Deed | STUURMANS, CECIL & CHERYL | ENCINAS CONSTRUCTION INC | | | $700,000.00 | 61846 | 4579445 |
|   | |
Payout Agreement
| No payout information available.. |