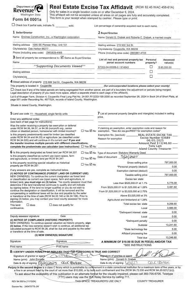
Property
Account |
| Property ID: | 814543 | Abbreviated Legal Description: | Lot 6 Kreuger Farm 4 |
| Geographic ID: | S7302-04-00006-0 | Agent Code: | |
| Type: | Real | | |
| Tax Area: | 300 - APPRAISER-Cpvl Schl Dist, in Cpvl | Land Use Code | 11 |
| Open Space: | N | DFL | N |
| Historic Property: | N | Remodel Property: | N |
| Multi-Family Redevelopment: | N | | |
| Township: | 32 | Section: | 33 |
| Range: | R1 |
Location |
| Address: | 215 NW THIRD ST COUPEVILLE, WA 98239 | Mapsco: | |
| Neighborhood: | Cycle 2 | Map ID: | 173 |
| Neighborhood CD: | 2 |
Owner |
| Name: | DRABEK, DONALD G | Owner ID: | 316764 |
| Mailing Address: | ROBERTA C DRABEK 215 NW 3RD ST COUPEVILLE, WA 98239 | % Ownership: | 100.0000000000% |
| | | Exemptions: | |
Taxes and Assessment Details
Property Tax Information as of
03/10/2026
Click on "Statement Details" to expand or collapse a tax statement.
* Please enter a valid date ** Please enter a valid date *
Statement Details |
| 2026 | 54228 | ST - State School | $727.21 | $727.19 | $0.00 | $0.00 | $0.00 | $1454.40 |
| 2026 | 54228 | Island County - Island County General Fund | $117.63 | $117.62 | $0.00 | $0.00 | $0.00 | $235.25 |
| 2026 | 54228 | CICPVL - City: Town of Coupeville | $262.15 | $262.15 | $0.00 | $0.00 | $0.00 | $524.30 |
| 2026 | 54228 | PRTCPVL - Port of Coupeville | $141.45 | $141.44 | $0.00 | $0.00 | $0.00 | $282.89 |
| 2026 | 54228 | SCH204 - School 204 Coupeville | $244.33 | $244.32 | $0.00 | $0.00 | $0.00 | $488.65 |
| 2026 | 54228 | CEM2 - Cemetery #2 Central Whidbey | $2.97 | $2.96 | $0.00 | $0.00 | $0.00 | $5.93 |
| 2026 | 54228 | FIRE5 - Fire & Rescue Dist #5 Central Whidbey | $425.36 | $425.35 | $0.00 | $0.00 | $0.00 | $850.71 |
| 2026 | 54228 | LIB - Library Sno-Isle Regional | $114.22 | $114.21 | $0.00 | $0.00 | $0.00 | $228.43 |
| 2026 | 54228 | HOSPEMS - Whidbey Health EMS Island County | $158.54 | $158.53 | $0.00 | $0.00 | $0.00 | $317.07 |
| 2026 | 54228 | HOSP - Whidbey Health | $183.84 | $183.82 | $0.00 | $0.00 | $0.00 | $367.66 |
| 2026 | 54228 | CF - Island County Conservation Futures | $10.05 | $10.05 | $0.00 | $0.00 | $0.00 | $20.10 |
| 2026 | 54228 | WDBYCNV - Whidbey Conservation District | $2.55 | $2.55 | $0.00 | $0.00 | $0.00 | $5.10 |
| 2026 | 54228 | TOTAL: | $2390.30 | $2390.19 | $0.00 | $0.00 | $0.00 | $4780.49 |
|
| 2026 | 54228 | $2390.30 | $2390.19 | $0.00 | $0.00 | $0.00 | $4780.49 |
Statement Details |
| 2025 | 54349 | ST - State School | $84.82 | $84.82 | $0.00 | $0.00 | $169.64 | $0.00 |
| 2025 | 54349 | Island County - Island County General Fund | $14.84 | $14.83 | $0.00 | $0.00 | $29.67 | $0.00 |
| 2025 | 54349 | CICPVL - City: Town of Coupeville | $33.71 | $33.70 | $0.00 | $0.00 | $67.41 | $0.00 |
| 2025 | 54349 | PRTCPVL - Port of Coupeville | $18.02 | $18.01 | $0.00 | $0.00 | $36.03 | $0.00 |
| 2025 | 54349 | SCH204 - School 204 Coupeville | $31.82 | $31.81 | $0.00 | $0.00 | $63.63 | $0.00 |
| 2025 | 54349 | CEM2 - Cemetery #2 Central Whidbey | $0.38 | $0.38 | $0.00 | $0.00 | $0.76 | $0.00 |
| 2025 | 54349 | FIRE5 - Fire & Rescue Dist #5 Central Whidbey | $53.63 | $53.63 | $0.00 | $0.00 | $107.26 | $0.00 |
| 2025 | 54349 | LIB - Library Sno-Isle Regional | $14.80 | $14.78 | $0.00 | $0.00 | $29.58 | $0.00 |
| 2025 | 54349 | HOSPEMS - Whidbey Health EMS Island County | $20.00 | $20.00 | $0.00 | $0.00 | $40.00 | $0.00 |
| 2025 | 54349 | HOSP - Whidbey Health | $23.26 | $23.25 | $0.00 | $0.00 | $46.51 | $0.00 |
| 2025 | 54349 | CF - Island County Conservation Futures | $1.27 | $1.26 | $0.00 | $0.00 | $2.53 | $0.00 |
| 2025 | 54349 | TOTAL: | $296.55 | $296.47 | $0.00 | $0.00 | $593.02 | $0.00 |
|
| 2025 | 54349 | $296.55 | $296.47 | $0.00 | $0.00 | $593.02 | $0.00 |
Values
| (+) Improvement Homesite Value: | + | $0 | |
| (+) Improvement Non-Homesite Value: | + | $380,281 | |
| (+) Land Homesite Value: | + | $0 | |
| (+) Land Non-Homesite Value: | + | $260,000 | |
| (+) Curr Use (HS): | + | $0 | $0 |
| (+) Curr Use (NHS): | + | $0 | $0 |
| | | -------------------------- | |
| (=) Market Value: | = | $640,281 | |
| (–) Productivity Loss: | – | $0 | |
| | | -------------------------- | |
| (=) Subtotal: | = | $640,281 | |
| (+) Senior Appraised Value: | + | $0 | |
| (+) Non-Senior Appraised Value: | + | $640,281 | |
| | | -------------------------- | |
| (=) Total Appraised Value: | = | $640,281 | |
| (–) Senior Exemption Loss: | – | $0 | |
| (–) Exemption Loss: | – | $0 | |
| | | -------------------------- | |
| (=) Taxable Value: | = | $640,281 | |
Taxing Jurisdiction
| Owner: | DRABEK, DONALD G | | |
| % Ownership: | 100.0000000000% | | |
| Total Value: | $640,281 | | |
| Tax Area: | 300 - APPRAISER-Cpvl Schl Dist, in Cpvl |
| CF | Conservation Futures | 0.0313996660 | $640,281 | $640,281 | $20.10 | | |
| CEM2 | Cemetery #2 | 0.0092609791 | $640,281 | $640,281 | $5.93 | | |
| COUP | City: Town of Coupeville | 0.8188663519 | $640,281 | $640,281 | $524.30 | | |
| FIRE5 | Fire & Rescue Dist #5 C Whidbey GEN | 1.1892169230 | $640,281 | $640,281 | $761.43 | | |
| FIRE5BOND | Fire & Rescue Dist #5 C Whidbey BOND | 0.1394359503 | $640,281 | $640,281 | $89.28 | | |
| HOBOND | Hospital BOND | 0.1893405597 | $640,281 | $640,281 | $121.23 | | |
| HOGEN | Hospital GEN | 0.3848777722 | $640,281 | $640,281 | $246.43 | | |
| CE | County Current Expense | 0.3674210519 | $640,281 | $640,281 | $235.25 | | |
| ISLANDEMS | Hospital GEN (EMS) | 0.4952018576 | $640,281 | $640,281 | $317.07 | | |
| LIB | Library Sno-Isle GEN | 0.3039084203 | $640,281 | $640,281 | $194.59 | | |
| LIBCAP | Library Sno-Isle BOND (Cap Fac Imp Area) | 0.0528562629 | $640,281 | $640,281 | $33.84 | | |
| POCOUP | Port of Coupeville GEN | 0.1065226063 | $640,281 | $640,281 | $68.20 | | |
| POCOUPIDD | Port of Coupeville IDD | 0.3353038577 | $640,281 | $640,281 | $214.69 | | |
| COUPSDTECH | School 204 CP (TECH) | 0.1215123397 | $640,281 | $640,281 | $77.80 | | |
| SCH204MO | School 204 Enrichment | 0.6416662518 | $640,281 | $640,281 | $410.85 | | |
| ST | State School | 1.4761226122 | $640,281 | $640,281 | $945.13 | | |
| ST2 | State School Part 2 | 0.7953803475 | $640,281 | $640,281 | $509.27 | | |
| | Total Tax Rate: | 7.4582938101 | | | | | |
| | | | | Taxes w/Current Exemptions: | $4,775.39 | | |
| | | | | Taxes w/o Exemptions: | $4,775.39 | | |
Improvement / Building
| Improvement #1: | RESIDENTIAL | State Code: | Y | 1782.2 sqft | Value: | $380,281 |
| Bathrooms: | 2 | Bedrooms: | 3 | | Ceiling: | DRYWALL PAINTED | Exterior Wall/Cover: | CEMENT FIBER | | Floor Covering: | LAMINATE/LVP | Floor Structure: | WOOD W/SUBFLOOR | | Foundation: | CONCRETE | Heating: | HEAT PUMP | | Interior Finish: | DRYWALL PAINT | Plumbing Fixture Cnt: | 10 | | Roof Slope: | 14" IN 12" | Roof Structure/Cover: | CJ ASPHALT |
|
| | Type | Description | Class CD | Sub Class CD | Year Built | Area |
| | BAS | BASE/MAIN FLOOR | 3 | 0 | 2025 | 1782.2 |
| | AGR | ATTACHED GARAGE | 3 | 0 | 2025 | 509.0 |
| | OP4 | OPEN PORCH W/CEILING-ROOF | 3 | 0 | 2025 | 48.0 |
| | OP4 | OPEN PORCH W/CEILING-ROOF | 3 | 0 | 2025 | 182.0 |
Sketch
| No sketches available for this property. |
Property Image
Land
| 1 | HS | HOMESITE | 0.2712 | 11813.47 | 0.00 | 0.00 | 1.00 | $260,000 | $0 |
Roll Value History
| 2026 | N/A | N/A | N/A | N/A | N/A |
| 2025 | $380,281 | $260,000 | $0 | $640,281 | $640,281 |
| 2024 | $0 | $80,000 | $0 | $80,000 | $80,000 |
Deed and Sales History
| 1 | 05/21/2025 | WD | Warranty Deed | ENCINAS CONSTRUCTION INC | DRABEK, DONALD G | | | $797,000.00 | 63689 | 4586603 |
| 2 | 11/04/2024 | WD | Warranty Deed | STUURMANS, CECIL & CHERYL | ENCINAS CONSTRUCTION INC | | | $700,000.00 | 61846 | 4579445 |
|   | |
Payout Agreement
| No payout information available.. |