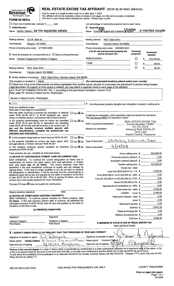
Property
Account |
| Property ID: | 81770 | Abbreviated Legal Description: | 17 - IN GL2 & SW NW:BG NW CR GL2 N87*E732.53' TO ML S3*W164.18' S17*E120.71' TPB S17*E253.53' S5*E20.22' S87*W923.11' N6*W48.13' ALG CUR/L 194.26' N17*W27.44' N87*E900.44' TPB EX W30' GL 2 TGW & SUB TO EZ |
| Geographic ID: | R23117-355-1690 | Agent Code: | |
| Type: | Real | | |
| Tax Area: | 312 - APPRAISER-Cpvl Schl Dist, outside Cpvl, improved, greater than 1 acre | Land Use Code | 11 |
| Open Space: | N | DFL | N |
| Historic Property: | N | Remodel Property: | N |
| Multi-Family Redevelopment: | N | | |
| Township: | 31 | Section: | 17 |
| Range: | R2 |
Location |
| Address: | 939 SUSAN ST COUPEVILLE, WA 98239 | Mapsco: | |
| Neighborhood: | Area 2 Waterfront Eastside Res | Map ID: | 488 |
| Neighborhood CD: | 2WFTE01R |
Owner |
| Name: | GROENEWEGEN TRUSTEE, BRUCE C | Owner ID: | 281111 |
| Mailing Address: | 3516 139TH AVE SE SNOHOMISH, WA 98290 | % Ownership: | 100.0000000000% |
| | | Exemptions: | |
Taxes and Assessment Details
Values
| (+) Improvement Homesite Value: | + | $0 | |
| (+) Improvement Non-Homesite Value: | + | $754,352 | |
| (+) Land Homesite Value: | + | $0 | |
| (+) Land Non-Homesite Value: | + | $900,000 | |
| (+) Curr Use (HS): | + | $0 | $0 |
| (+) Curr Use (NHS): | + | $0 | $0 |
| | | -------------------------- | |
| (=) Market Value: | = | $1,654,352 | |
| (–) Productivity Loss: | – | $0 | |
| | | -------------------------- | |
| (=) Subtotal: | = | $1,654,352 | |
| (+) Senior Appraised Value: | + | $0 | |
| (+) Non-Senior Appraised Value: | + | $1,654,352 | |
| | | -------------------------- | |
| (=) Total Appraised Value: | = | $1,654,352 | |
| (–) Senior Exemption Loss: | – | $0 | |
| (–) Exemption Loss: | – | $0 | |
| | | -------------------------- | |
| (=) Taxable Value: | = | $1,654,352 | |
Taxing Jurisdiction
| Owner: | GROENEWEGEN TRUSTEE, BRUCE C | | |
| % Ownership: | 100.0000000000% | | |
| Total Value: | $1,654,352 | | |
| Tax Area: | 312 - APPRAISER-Cpvl Schl Dist, outside Cpvl, improved, greater than 1 acre |
| CF | Conservation Futures | 0.0313996660 | $1,654,352 | $1,654,352 | $51.95 | | |
| CEM2 | Cemetery #2 | 0.0092609791 | $1,654,352 | $1,654,352 | $15.32 | | |
| FIRE5 | Fire & Rescue Dist #5 C Whidbey GEN | 1.1892169230 | $1,654,352 | $1,654,352 | $1,967.38 | | |
| FIRE5BOND | Fire & Rescue Dist #5 C Whidbey BOND | 0.1394359503 | $1,654,352 | $1,654,352 | $230.68 | | |
| HOBOND | Hospital BOND | 0.1893405597 | $1,654,352 | $1,654,352 | $313.24 | | |
| HOGEN | Hospital GEN | 0.3848777722 | $1,654,352 | $1,654,352 | $636.72 | | |
| CE | County Current Expense | 0.3674210519 | $1,654,352 | $1,654,352 | $607.84 | | |
| CR | County Roads | 0.4614296361 | $1,654,352 | $1,654,352 | $763.37 | | |
| ISLANDEMS | Hospital GEN (EMS) | 0.4952018576 | $1,654,352 | $1,654,352 | $819.24 | | |
| LIB | Library Sno-Isle GEN | 0.3039084203 | $1,654,352 | $1,654,352 | $502.77 | | |
| LIBCAP | Library Sno-Isle BOND (Cap Fac Imp Area) | 0.0528562629 | $1,654,352 | $1,654,352 | $87.44 | | |
| POCOUP | Port of Coupeville GEN | 0.1065226063 | $1,654,352 | $1,654,352 | $176.23 | | |
| POCOUPIDD | Port of Coupeville IDD | 0.3353038577 | $1,654,352 | $1,654,352 | $554.71 | | |
| COUPSDTECH | School 204 CP (TECH) | 0.1215123397 | $1,654,352 | $1,654,352 | $201.02 | | |
| SCH204MO | School 204 Enrichment | 0.6416662518 | $1,654,352 | $1,654,352 | $1,061.54 | | |
| ST | State School | 1.4761226122 | $1,654,352 | $1,654,352 | $2,442.03 | | |
| ST2 | State School Part 2 | 0.7953803475 | $1,654,352 | $1,654,352 | $1,315.84 | | |
| | Total Tax Rate: | 7.1008570943 | | | | | |
| | | | | Taxes w/Current Exemptions: | $11,747.32 | | |
| | | | | Taxes w/o Exemptions: | $11,747.32 | | |
Improvement / Building
| Improvement #1: | RESIDENTIAL | State Code: | Y | 1983.7 sqft | Value: | $754,352 |
| Bathrooms: | 2 | Bedrooms: | 3 | | Ceiling: | BEAM PAINTED | Exterior Wall/Cover: | WOOD SIDING | | Floor Covering: | HARDWOOD/CARP 60-40 | Floor Structure: | WOOD W/SUBFLOOR | | Foundation: | CONCRETE | Heating: | FHA ELECTRIC | | Interior Finish: | DRYWALL PAINT | Plumbing Fixture Cnt: | 12 | | Roof Slope: | 12" IN 12" | Roof Structure/Cover: | BEAM ASPHALT |
|
| | Type | Description | Class CD | Sub Class CD | Year Built | Area |
| | BAS | BASE/MAIN FLOOR | 4 | 0 | 1988 | 1114.1 |
| | UB8 | BASEMENT UNFINISHED 8" | 4 | 0 | 1988 | 1092.0 |
| | UPS | UPPER STORY | 4 | 0 | 1988 | 869.6 |
| | OWP | OPEN WOOD PORCH W/STEPS | 4 | 0 | 1988 | 1262.2 |
| | OWC | OPEN WOOD PORCH W/STEPS/ROOF/C | 4 | 0 | 1988 | 52.3 |
| | DGR | DETACHED GARAGE | 4 | 0 | 1988 | 864.0 |
| | DGR | DETACHED GARAGE | 4 | 0 | 1988 | 864.0 |
| | UTY | STORAGE/UTILITY | 4 | 0 | 1988 | 2400.0 |
| | OP3 | OPEN PORCH W/ROOF | 4 | 0 | 1988 | 300.0 |
| | oTRM | HILLSIDE TRAM | 4 | 0 | 1988 | 0.0 |
| | oCB2 | CABIN FIN | 4 | 0 | 1988 | 128.0 |
| | OWP | OPEN WOOD PORCH W/STEPS | 4 | 0 | 1988 | 57.0 |
Sketch
| No sketches available for this property. |
Property Image
Land
| 1 | HB | HIGH BLUFF | 5.3400 | 232610.40 | 265.00 | 0.00 | 1.00 | $900,000 | $0 |
Roll Value History
| 2026 | N/A | N/A | N/A | N/A | N/A |
| 2025 | $754,352 | $900,000 | $0 | $1,654,352 | $1,654,352 |
| 2024 | $701,668 | $875,000 | $0 | $1,576,668 | $1,576,668 |
| 2023 | $710,215 | $850,000 | $0 | $1,560,215 | $1,560,215 |
| 2022 | $605,591 | $725,000 | $0 | $1,330,591 | $1,330,591 |
| 2021 | $459,663 | $625,000 | $0 | $1,084,663 | $1,084,663 |
| 2020 | $448,137 | $550,000 | $0 | $998,137 | $998,137 |
| 2019 | $335,677 | $600,000 | $0 | $935,677 | $935,677 |
| 2018 | $304,498 | $600,000 | $0 | $904,498 | $904,498 |
| 2017 | $305,976 | $550,000 | $0 | $855,976 | $855,976 |
| 2016 | $309,221 | $550,000 | $0 | $859,221 | $859,221 |
| 2015 | $312,465 | $550,000 | $0 | $862,465 | $862,465 |
| 2014 | $315,709 | $550,000 | $0 | $865,709 | $865,709 |
| 2013 | $318,954 | $565,502 | $0 | $884,456 | $884,456 |
| 2012 | $323,140 | $565,502 | $0 | $888,642 | $888,642 |
| 2011 | $326,383 | $565,502 | $0 | $891,885 | $891,885 |
| 2010 | $333,708 | $565,502 | $0 | $899,210 | $899,210 |
| 2009 | $346,942 | $633,364 | $0 | $980,306 | $980,306 |
| 2008 | $351,697 | $646,290 | $0 | $997,987 | $997,987 |
| 2007 | $356,449 | $533,766 | $0 | $890,215 | $890,215 |
Deed and Sales History
| 1 | 05/24/2017 | TRUSTEED | Trustee's Deed | GROENEWEGEN, JOHANNES | GROENEWEGEN TRUSTEE, BRUCE C | | | $0.00 | 30320 | 4426870 |
| 2 | 01/13/2006 | 5 | DNU - Marriage License/Name Change | GROENEWEGEN, JOHANNES B | GROENEWEGEN, JOHANNES | | | $0.00 | 60451 | 4161403 |
| 3 | 11/01/1997 | QCD | Quit Claim Deed | GROENEWEGEN, JOHANNES B | GROENEWEGEN, JOHANNES B | | | $0.00 | 73966 | 97018937 |
| 4 | 08/01/1978 | OTHER | Other - Misc. Documents | Unknown | GROENEWEGEN, JOHANNES B | | | $46,326.00 | 83917 | 338053 |
Payout Agreement
| No payout information available.. |