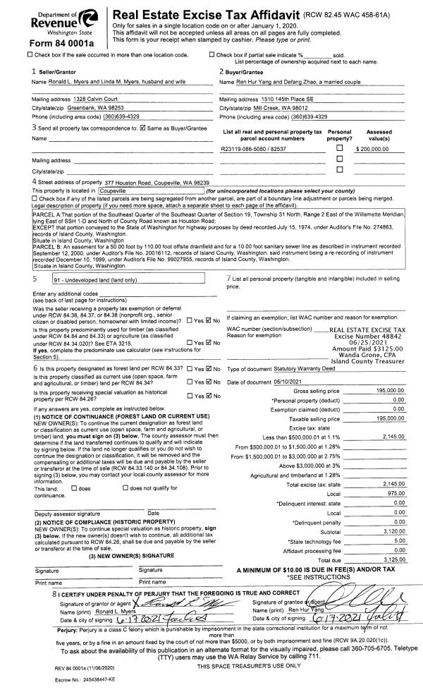
Property
Account |
| Property ID: | 82537 | Abbreviated Legal Description: | 16 - SE SE ELY OF ST HWY & NLY OF CO RD |
| Geographic ID: | R23119-086-5080 | Agent Code: | |
| Type: | Real | | |
| Tax Area: | 319 - APPRAISER-Cpvl Schl Dist, outside Cpvl, vacant & 50 acres or less | Land Use Code | 91 |
| Open Space: | N | DFL | N |
| Historic Property: | N | Remodel Property: | N |
| Multi-Family Redevelopment: | N | | |
| Township: | 31 | Section: | 19 |
| Range: | R2 |
Location |
| Address: | 377 HOUSTON RD COUPEVILLE, WA 98239 | Mapsco: | |
| Neighborhood: | Cycle 2 | Map ID: | 494 |
| Neighborhood CD: | 2 |
Owner |
| Name: | YANG, REN HUR | Owner ID: | 299946 |
| Mailing Address: | DEFANG ZHAO 1510 145TH PL SE MILL CREEK, WA 98012 | % Ownership: | 100.0000000000% |
| | | Exemptions: | |
Taxes and Assessment Details
Values
| (+) Improvement Homesite Value: | + | $0 | |
| (+) Improvement Non-Homesite Value: | + | $0 | |
| (+) Land Homesite Value: | + | $0 | |
| (+) Land Non-Homesite Value: | + | $270,356 | |
| (+) Curr Use (HS): | + | $0 | $0 |
| (+) Curr Use (NHS): | + | $0 | $0 |
| | | -------------------------- | |
| (=) Market Value: | = | $270,356 | |
| (–) Productivity Loss: | – | $0 | |
| | | -------------------------- | |
| (=) Subtotal: | = | $270,356 | |
| (+) Senior Appraised Value: | + | $0 | |
| (+) Non-Senior Appraised Value: | + | $270,356 | |
| | | -------------------------- | |
| (=) Total Appraised Value: | = | $270,356 | |
| (–) Senior Exemption Loss: | – | $0 | |
| (–) Exemption Loss: | – | $0 | |
| | | -------------------------- | |
| (=) Taxable Value: | = | $270,356 | |
Taxing Jurisdiction
| Owner: | YANG, REN HUR | | |
| % Ownership: | 100.0000000000% | | |
| Total Value: | $270,356 | | |
| Tax Area: | 319 - APPRAISER-Cpvl Schl Dist, outside Cpvl, vacant & 50 acres or less |
| CF | Conservation Futures | 0.0313996660 | $270,356 | $270,356 | $8.49 | | |
| CEM2 | Cemetery #2 | 0.0092609791 | $270,356 | $270,356 | $2.50 | | |
| HOBOND | Hospital BOND | 0.1893405597 | $270,356 | $270,356 | $51.19 | | |
| HOGEN | Hospital GEN | 0.3848777722 | $270,356 | $270,356 | $104.05 | | |
| CE | County Current Expense | 0.3674210519 | $270,356 | $270,356 | $99.33 | | |
| CR | County Roads | 0.4614296361 | $270,356 | $270,356 | $124.75 | | |
| ISLANDEMS | Hospital GEN (EMS) | 0.4952018576 | $270,356 | $270,356 | $133.88 | | |
| LIB | Library Sno-Isle GEN | 0.3039084203 | $270,356 | $270,356 | $82.16 | | |
| LIBCAP | Library Sno-Isle BOND (Cap Fac Imp Area) | 0.0528562629 | $270,356 | $270,356 | $14.29 | | |
| POCOUP | Port of Coupeville GEN | 0.1065226063 | $270,356 | $270,356 | $28.80 | | |
| POCOUPIDD | Port of Coupeville IDD | 0.3353038577 | $270,356 | $270,356 | $90.65 | | |
| COUPSDTECH | School 204 CP (TECH) | 0.1215123397 | $270,356 | $270,356 | $32.85 | | |
| SCH204MO | School 204 Enrichment | 0.6416662518 | $270,356 | $270,356 | $173.48 | | |
| ST | State School | 1.4761226122 | $270,356 | $270,356 | $399.08 | | |
| ST2 | State School Part 2 | 0.7953803475 | $270,356 | $270,356 | $215.04 | | |
| | Total Tax Rate: | 5.7722042210 | | | | | |
| | | | | Taxes w/Current Exemptions: | $1,560.54 | | |
| | | | | Taxes w/o Exemptions: | $1,560.54 | | |
Improvement / Building
Sketch
| No sketches available for this property. |
Property Image
Land
| 1 | 35 | AC (10.00-30.99) | 15.1918 | 661754.81 | 0.00 | 0.00 | 1.00 | $270,356 | $0 |
Roll Value History
| 2026 | N/A | N/A | N/A | N/A | N/A |
| 2025 | $0 | $270,356 | $0 | $270,356 | $270,356 |
| 2024 | $0 | $250,000 | $0 | $250,000 | $250,000 |
| 2023 | $0 | $240,000 | $0 | $240,000 | $240,000 |
| 2022 | $0 | $200,000 | $0 | $200,000 | $200,000 |
| 2021 | $0 | $170,000 | $0 | $170,000 | $170,000 |
| 2020 | $0 | $200,000 | $0 | $200,000 | $200,000 |
| 2019 | $0 | $200,000 | $0 | $200,000 | $200,000 |
| 2018 | $0 | $125,000 | $0 | $125,000 | $125,000 |
| 2017 | $0 | $150,000 | $0 | $150,000 | $150,000 |
| 2016 | $0 | $150,000 | $0 | $150,000 | $150,000 |
| 2015 | $0 | $231,140 | $0 | $231,140 | $231,140 |
| 2014 | $0 | $231,140 | $0 | $231,140 | $231,140 |
| 2013 | $0 | $231,140 | $0 | $231,140 | $231,140 |
| 2012 | $0 | $231,140 | $0 | $231,140 | $231,140 |
| 2011 | $0 | $231,140 | $0 | $231,140 | $231,140 |
| 2010 | $0 | $231,140 | $0 | $231,140 | $231,140 |
| 2009 | $0 | $266,700 | $0 | $266,700 | $266,700 |
| 2008 | $0 | $206,026 | $0 | $206,026 | $206,026 |
| 2007 | $0 | $206,026 | $0 | $206,026 | $206,026 |
Deed and Sales History
| 1 | 06/10/2021 | WD | Warranty Deed | MYERS, RONALD L | YANG, REN HUR | | | $195,000.00 | 48842 | 4522733 |
| 2 | 10/13/2000 | WD | Warranty Deed | KING, ROBERT L | MYERS, RONALD L | | | $75,000.00 | 4038 | 20018481 |
| 3 | 10/13/2000 | ESTSEPPROP | Establish Separate Property | KING, ROBERT L | KING, ROBERT L | | | $0.00 | 4037 | 20018481 |
| 4 | 11/22/1999 | WD | Warranty Deed | KING JR, ROBERT L | ANDERSON, SHEILA | | | $27,970.00 | 95019 | 99027955 |
| 5 | 11/22/1999 | ESTSEPPROP | Establish Separate Property | RUTHRUFF, ROLAND | KING JR, ROBERT L | | | $0.00 | 85017 | 99027954 |
| 6 | 01/01/1998 | WD | Warranty Deed | Unknown | KING, ROBERT L | | | $69,185.00 | 80302 | 98001552 |
| 7 | 01/01/1900 | OTHER | Other - Misc. Documents | Unknown | RUTHRUFF, ROLAND | | | $0.00 | 0 | 0 |
Payout Agreement
| No payout information available.. |