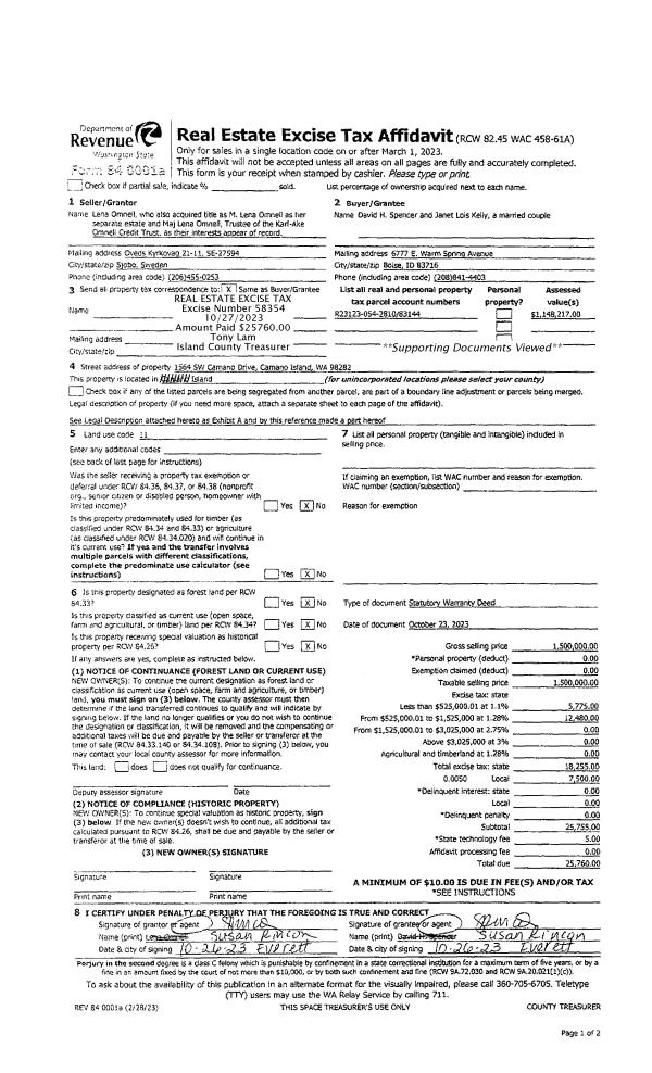
Property
Account |
| Property ID: | 83144 | Abbreviated Legal Description: | 89 - N100'OF S175'OF PT SW SE OF GL 1 LY WLY OF CO RD & N OF LN 300'S OF & PARA/ TO NLN S/2 SW SE & SD LN EXT W ACROSS GL 1 INCL ADJ TIDES SUB EZ |
| Geographic ID: | R23123-054-2810 | Agent Code: | |
| Type: | Real | | |
| Tax Area: | 512 - APPRAISER-Stan/Cam Schl Dist, improved, greater than 1 acre | Land Use Code | 11 |
| Open Space: | N | DFL | N |
| Historic Property: | N | Remodel Property: | N |
| Multi-Family Redevelopment: | N | | |
| Township: | 31 | Section: | 23 |
| Range: | R2 |
Location |
| Address: | 1564 S WEST CAMANO DR CAMANO ISLAND, WA 98282 | Mapsco: | |
| Neighborhood: | Cycle 5 | Map ID: | 500 |
| Neighborhood CD: | 5 |
Owner |
| Name: | SPENCER, DAVID H | Owner ID: | 310497 |
| Mailing Address: | JANET LOIS KELLY 1564 S WEST CAMANO DR CAMANO ISLAND, WA 98282 | % Ownership: | 100.0000000000% |
| | | Exemptions: | |
Taxes and Assessment Details
Values
| (+) Improvement Homesite Value: | + | $0 | |
| (+) Improvement Non-Homesite Value: | + | $719,896 | |
| (+) Land Homesite Value: | + | $0 | |
| (+) Land Non-Homesite Value: | + | $600,820 | |
| (+) Curr Use (HS): | + | $0 | $0 |
| (+) Curr Use (NHS): | + | $0 | $0 |
| | | -------------------------- | |
| (=) Market Value: | = | $1,320,716 | |
| (–) Productivity Loss: | – | $0 | |
| | | -------------------------- | |
| (=) Subtotal: | = | $1,320,716 | |
| (+) Senior Appraised Value: | + | $0 | |
| (+) Non-Senior Appraised Value: | + | $1,320,716 | |
| | | -------------------------- | |
| (=) Total Appraised Value: | = | $1,320,716 | |
| (–) Senior Exemption Loss: | – | $0 | |
| (–) Exemption Loss: | – | $0 | |
| | | -------------------------- | |
| (=) Taxable Value: | = | $1,320,716 | |
Taxing Jurisdiction
| Owner: | SPENCER, DAVID H | | |
| % Ownership: | 100.0000000000% | | |
| Total Value: | $1,320,716 | | |
| Tax Area: | 512 - APPRAISER-Stan/Cam Schl Dist, improved, greater than 1 acre |
| CF | Conservation Futures | 0.0313996660 | $1,320,716 | $1,320,716 | $41.47 | | |
| EMS1 | Fire & Rescue Dist #1 Camano GEN (EMS) | 0.4998471806 | $1,320,716 | $1,320,716 | $660.16 | | |
| FIRE1 | Fire & Rescue Dist #1 Camano GEN | 1.2496603404 | $1,320,716 | $1,320,716 | $1,650.45 | | |
| FIRE1BOND | Fire & Rescue Dist #1 Camano BOND | 0.1630371212 | $1,320,716 | $1,320,716 | $215.33 | | |
| CE | County Current Expense | 0.3674210519 | $1,320,716 | $1,320,716 | $485.26 | | |
| CR | County Roads | 0.4614296361 | $1,320,716 | $1,320,716 | $609.42 | | |
| LIB | Library Sno-Isle GEN | 0.3039084203 | $1,320,716 | $1,320,716 | $401.38 | | |
| SCH205_401 | School 205-401 Enrichment | 1.3697998934 | $1,320,716 | $1,320,716 | $1,809.12 | | |
| SCH205BOND | School 205-401 BOND | 0.9354199323 | $1,320,716 | $1,320,716 | $1,235.42 | | |
| ST | State School | 1.4761226122 | $1,320,716 | $1,320,716 | $1,949.54 | | |
| ST2 | State School Part 2 | 0.7953803475 | $1,320,716 | $1,320,716 | $1,050.47 | | |
| | Total Tax Rate: | 7.6534262019 | | | | | |
| | | | | Taxes w/Current Exemptions: | $10,108.02 | | |
| | | | | Taxes w/o Exemptions: | $10,108.02 | | |
Improvement / Building
| Improvement #1: | RESIDENTIAL | State Code: | Y | 2171.9 sqft | Value: | $592,507 |
| Bathrooms: | 2 | Bedrooms: | 2 | | Ceiling: | TONGUE & GROOVE | Exterior Wall/Cover: | WOOD SIDING | | Floor Covering: | CERAMIC TILE/CPT 40-60 | Floor Structure: | WOOD W/SUBFLOOR | | Foundation: | CONCRETE | Heating: | RADIANT FLOOR | | Interior Finish: | DRYWALL PAINT | Plumbing Fixture Cnt: | 10 | | Roof Slope: | 3" IN 12" | Roof Structure/Cover: | CJ ASPHALT |
|
| | Type | Description | Class CD | Sub Class CD | Year Built | Area |
| | BAS | BASE/MAIN FLOOR | 4 | 0 | 2003 | 1483.2 |
| | OP4 | OPEN PORCH W/CEILING-ROOF | 4 | 0 | 2003 | 22.2 |
| | OP4 | OPEN PORCH W/CEILING-ROOF | 4 | 0 | 2003 | 18.5 |
| | UTY | STORAGE/UTILITY | 4 | 0 | 2003 | 144.0 |
| | UPS | UPPER STORY | 4 | 0 | 2003 | 688.7 |
| | OWP | OPEN WOOD PORCH W/STEPS | 4 | 0 | 2003 | 649.2 |
| | OP2 | OPEN PORCH W/STEPS | 4 | 0 | 2003 | 2977.7 |
| | OWP | OPEN WOOD PORCH W/STEPS | 4 | 0 | 2003 | 700.0 |
| Improvement #2: | RESIDENTIAL | State Code: | Y | 752.5 sqft | Value: | $127,389 |
| Bathrooms: | 1 | Bedrooms: | 1 | | Ceiling: | DRYWALL PAINTED | Exterior Wall/Cover: | WOOD SIDING | | Floor Covering: | CORK | Floor Structure: | SLAB ON GRADE | | Foundation: | SLAB | Heating: | WALL HEAT ELECTRIC | | Interior Finish: | DRYWALL PAINT | Plumbing Fixture Cnt: | 6 | | Roof Slope: | 3" IN 12" | Roof Structure/Cover: | CJ ASPHALT |
|
| | Type | Description | Class CD | Sub Class CD | Year Built | Area |
| | BAS | BASE/MAIN FLOOR | 3 | 0 | 2009 | 752.5 |
| | OP1 | OPEN PORCH SLAB | 3 | 0 | 2009 | 387.9 |
Sketch
Property Image
Land
| 1 | HB | HIGH BLUFF | 1.1835 | 51553.26 | 100.00 | 0.00 | 1.00 | $600,000 | $0 |
| 2 | 55 | TIDES | 0.0000 | 0.00 | 100.00 | 0.00 | 1.00 | $820 | $0 |
Roll Value History
| 2026 | N/A | N/A | N/A | N/A | N/A |
| 2025 | $719,896 | $600,820 | $0 | $1,320,716 | $1,320,716 |
| 2024 | $726,334 | $600,820 | $0 | $1,327,154 | $1,327,154 |
| 2023 | $547,397 | $600,820 | $0 | $1,148,217 | $1,148,217 |
| 2022 | $501,463 | $550,820 | $0 | $1,052,283 | $1,052,283 |
| 2021 | $383,452 | $425,820 | $0 | $809,272 | $809,272 |
| 2020 | $373,765 | $425,820 | $0 | $799,585 | $799,585 |
| 2019 | $280,522 | $425,820 | $0 | $706,342 | $706,342 |
| 2018 | $281,336 | $300,820 | $0 | $582,156 | $582,156 |
| 2017 | $277,109 | $300,820 | $0 | $577,929 | $577,929 |
| 2016 | $280,313 | $300,820 | $0 | $581,133 | $581,133 |
| 2015 | $296,176 | $300,820 | $0 | $596,996 | $596,996 |
| 2014 | $299,407 | $300,820 | $0 | $600,227 | $600,227 |
| 2013 | $302,642 | $264,876 | $0 | $567,518 | $567,518 |
| 2012 | $305,875 | $264,876 | $0 | $570,751 | $570,751 |
| 2011 | $309,107 | $330,890 | $0 | $639,997 | $639,997 |
| 2010 | $321,823 | $403,519 | $0 | $725,342 | $725,342 |
| 2009 | $262,183 | $433,816 | $0 | $695,999 | $695,999 |
| 2008 | $239,837 | $371,985 | $0 | $611,822 | $611,822 |
| 2007 | $240,092 | $499,007 | $0 | $739,099 | $739,099 |
Deed and Sales History
| 1 | 10/23/2023 | WD | Warranty Deed | OMNELL, LENA | SPENCER, DAVID H | | | $1,500,000.00 | 58354 | 4566131 |
| 2 | 03/24/2016 | PRD | Personal Representatives Deed | OMNELL, KARL-AKE & LENA | OMNELL, LENA | | | $0.00 | 24102 | 4398541 |
| 3 | 02/01/1994 | OTHER | Other - Misc. Documents | OMNELL, KARL-AKE & | OMNELL, KARL-AKE & | | | $0.00 | 65745 | 94000669 |
| 4 | 02/01/1994 | WD | Warranty Deed | OMNELL, KARL-AKE & | OMNELL, KARL-AKE & | | | $15,000.00 | 40996 | 94006518 |
| 5 | 06/01/1991 | WD | Warranty Deed | HERSH, L M | OMNELL, KARL-AKE & | | | $175,000.00 | 12137 | 91009046 |
| 6 | 01/01/1900 | OTHER | Other - Misc. Documents | Unknown | HERSH, L M | | | $0.00 | 0 | 0 |
Payout Agreement
| No payout information available.. |