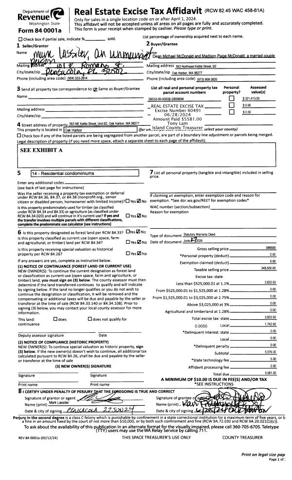
Property
Account |
| Property ID: | 83206 | Abbreviated Legal Description: | 106 - BG NE CR GL1 W443.84' S274.24' TPB S45*E93.35' S45*W38.28' M/L TO ML NWLY ALG ML TP S45*W TPB N45*E38 .28' TPB TGW ADJ TIDES |
| Geographic ID: | R23123-105-2270 | Agent Code: | |
| Type: | Real | | |
| Tax Area: | 510 - APPRAISER-Stan/Cam Schl Dist, improved & 1 acre or less | Land Use Code | 11 |
| Open Space: | N | DFL | N |
| Historic Property: | N | Remodel Property: | N |
| Multi-Family Redevelopment: | N | | |
| Township: | 31 | Section: | 23 |
| Range: | R2 |
Location |
| Address: | 1524 COVE BEACH WAY CAMANO ISLAND, WA 98282 | Mapsco: | |
| Neighborhood: | Cycle 5 | Map ID: | 500 |
| Neighborhood CD: | 5 |
Owner |
| Name: | ANDERSON, DAVID L | Owner ID: | 313271 |
| Mailing Address: | JODEE L ANDERSON 15910 ANDAL LN MOUNT VERNON, WA 98274 | % Ownership: | 100.0000000000% |
| | | Exemptions: | |
Taxes and Assessment Details
Values
| (+) Improvement Homesite Value: | + | $0 | |
| (+) Improvement Non-Homesite Value: | + | $401,634 | |
| (+) Land Homesite Value: | + | $0 | |
| (+) Land Non-Homesite Value: | + | $575,930 | |
| (+) Curr Use (HS): | + | $0 | $0 |
| (+) Curr Use (NHS): | + | $0 | $0 |
| | | -------------------------- | |
| (=) Market Value: | = | $977,564 | |
| (–) Productivity Loss: | – | $0 | |
| | | -------------------------- | |
| (=) Subtotal: | = | $977,564 | |
| (+) Senior Appraised Value: | + | $0 | |
| (+) Non-Senior Appraised Value: | + | $977,564 | |
| | | -------------------------- | |
| (=) Total Appraised Value: | = | $977,564 | |
| (–) Senior Exemption Loss: | – | $0 | |
| (–) Exemption Loss: | – | $0 | |
| | | -------------------------- | |
| (=) Taxable Value: | = | $977,564 | |
Taxing Jurisdiction
| Owner: | ANDERSON, DAVID L | | |
| % Ownership: | 100.0000000000% | | |
| Total Value: | $977,564 | | |
| Tax Area: | 510 - APPRAISER-Stan/Cam Schl Dist, improved & 1 acre or less |
| CF | Conservation Futures | 0.0313996660 | $977,564 | $977,564 | $30.70 | | |
| EMS1 | Fire & Rescue Dist #1 Camano GEN (EMS) | 0.4998471806 | $977,564 | $977,564 | $488.63 | | |
| FIRE1 | Fire & Rescue Dist #1 Camano GEN | 1.2496603404 | $977,564 | $977,564 | $1,221.62 | | |
| FIRE1BOND | Fire & Rescue Dist #1 Camano BOND | 0.1630371212 | $977,564 | $977,564 | $159.38 | | |
| CE | County Current Expense | 0.3674210519 | $977,564 | $977,564 | $359.18 | | |
| CR | County Roads | 0.4614296361 | $977,564 | $977,564 | $451.08 | | |
| LIB | Library Sno-Isle GEN | 0.3039084203 | $977,564 | $977,564 | $297.09 | | |
| SCH205_401 | School 205-401 Enrichment | 1.3697998934 | $977,564 | $977,564 | $1,339.07 | | |
| SCH205BOND | School 205-401 BOND | 0.9354199323 | $977,564 | $977,564 | $914.43 | | |
| ST | State School | 1.4761226122 | $977,564 | $977,564 | $1,443.00 | | |
| ST2 | State School Part 2 | 0.7953803475 | $977,564 | $977,564 | $777.54 | | |
| | Total Tax Rate: | 7.6534262019 | | | | | |
| | | | | Taxes w/Current Exemptions: | $7,481.72 | | |
| | | | | Taxes w/o Exemptions: | $7,481.72 | | |
Improvement / Building
| Improvement #1: | RESIDENTIAL | State Code: | Y | 1408.0 sqft | Value: | $401,634 |
| Bathrooms: | 1.75 | Bedrooms: | 2 | | Ceiling: | TONGUE & GROOVE | Exterior Wall/Cover: | LOG TO 10" | | Floor Covering: | CARPET/VINYL 60-40 | Floor Structure: | WOOD W/SUBFLOOR | | Foundation: | CONCRETE | Heating: | BASEBOARD ELECTRIC | | Interior Finish: | DRYWALL PAINT | Plumbing Fixture Cnt: | 11 | | Roof Slope: | 4" IN 12" | Roof Structure/Cover: | BEAM ASPHALT |
|
| | Type | Description | Class CD | Sub Class CD | Year Built | Area |
| | BAS | BASE/MAIN FLOOR | 4 | 0 | 1968 | 1012.0 |
| | BIG | BUILT IN GARAGE | 4 | 0 | 1968 | 396.0 |
| | UPS | UPPER STORY | 4 | 0 | 1968 | 396.0 |
| | OWP | OPEN WOOD PORCH W/STEPS | 4 | 0 | 1968 | 506.0 |
| | OWP | OPEN WOOD PORCH W/STEPS | 4 | 0 | 1968 | 56.4 |
| | UTY | STORAGE/UTILITY | 4 | 0 | 1968 | 110.5 |
| | OP1 | OPEN PORCH SLAB | 4 | 0 | 1968 | 789.0 |
Sketch
| No sketches available for this property. |
Property Image
Land
| 1 | LB | LOW BANK | 0.0000 | 3484.80 | 93.00 | 0.00 | 1.00 | $575,000 | $0 |
| 2 | 55 | TIDES | 0.0000 | 0.00 | 93.00 | 0.00 | 1.00 | $930 | $0 |
Roll Value History
| 2026 | N/A | N/A | N/A | N/A | N/A |
| 2025 | $401,634 | $575,930 | $0 | $977,564 | $977,564 |
| 2024 | $292,009 | $575,930 | $0 | $867,939 | $867,939 |
| 2023 | $295,560 | $575,930 | $0 | $871,490 | $871,490 |
| 2022 | $270,837 | $550,930 | $0 | $821,767 | $821,767 |
| 2021 | $232,716 | $500,930 | $0 | $733,646 | $733,646 |
| 2020 | $226,898 | $500,930 | $0 | $727,828 | $727,828 |
| 2019 | $165,106 | $525,930 | $0 | $691,036 | $691,036 |
| 2018 | $165,590 | $500,930 | $0 | $666,520 | $666,520 |
| 2017 | $124,868 | $400,930 | $0 | $525,798 | $525,798 |
| 2016 | $126,470 | $400,930 | $0 | $527,400 | $527,400 |
| 2015 | $121,140 | $400,930 | $0 | $522,070 | $522,070 |
| 2014 | $122,766 | $400,930 | $0 | $523,696 | $523,696 |
| 2013 | $101,645 | $494,596 | $0 | $596,241 | $596,241 |
| 2012 | $103,270 | $494,596 | $0 | $597,866 | $597,866 |
| 2011 | $104,894 | $618,012 | $0 | $722,906 | $722,906 |
| 2010 | $112,076 | $618,012 | $0 | $730,088 | $730,088 |
| 2009 | $117,135 | $665,983 | $0 | $783,118 | $783,118 |
| 2008 | $118,783 | $665,983 | $0 | $784,766 | $784,766 |
| 2007 | $116,949 | $946,220 | $0 | $1,063,169 | $1,063,169 |
Deed and Sales History
| 1 | 07/03/2024 | WD | Warranty Deed | RICHMAN, JAMES A | ANDERSON, DAVID L | | | $1,180,000.00 | 60586 | 4574380 |
| 2 | 06/01/2017 | WD | Warranty Deed | DEMMERT, STEVEN L | RICHMAN, JAMES A | | | $665,000.00 | 29615 | 4423835 |
| 3 | 12/12/2012 | WD | Warranty Deed | SCOTT, MICHAL A / JO ANN | DEMMERT, STEVEN L | | | $510,000.00 | 9846 | 4329707 |
| 4 | 01/01/1998 | WD | Warranty Deed | Unknown | SCOTT, MICHAL A | | | $325,000.00 | 80181 | 98000811 |
| 5 | 01/01/1998 | WD | Warranty Deed | SCOTT, ROBERT G | SCOTT, MICHAL A | | | $325,000.00 | 80181 | 98001762 |
| 6 | 01/01/1900 | OTHER | Other - Misc. Documents | SCOTT, MICHAL A | SCOTT, ROBERT G | | | $0.00 | 0 | 0 |
Payout Agreement
| No payout information available.. |