Property
Account |
| Property ID: | 84517 | Abbreviated Legal Description: | 49 - S165' OF E/2 SE SW EX CO RD |
| Geographic ID: | R23124-009-2360 | Agent Code: | |
| Type: | Real | | |
| Tax Area: | 512 - APPRAISER-Stan/Cam Schl Dist, improved, greater than 1 acre | Land Use Code | 11 |
| Open Space: | N | DFL | N |
| Historic Property: | N | Remodel Property: | N |
| Multi-Family Redevelopment: | N | | |
| Township: | 31 | Section: | 24 |
| Range: | R2 |
Location |
| Address: | 340 W DRY LAKE RD CAMANO ISLAND, WA 98282 | Mapsco: | |
| Neighborhood: | Cycle 5 | Map ID: | 504 |
| Neighborhood CD: | 5 |
Owner |
| Name: | CRAIN, JACOB | Owner ID: | 303575 |
| Mailing Address: | 340 WEST DRY LAKE RD CAMANO ISLAND, WA 98282 | % Ownership: | 100.0000000000% |
| | | Exemptions: | |
Taxes and Assessment Details
Values
| (+) Improvement Homesite Value: | + | $0 | |
| (+) Improvement Non-Homesite Value: | + | $336,066 | |
| (+) Land Homesite Value: | + | $0 | |
| (+) Land Non-Homesite Value: | + | $300,000 | |
| (+) Curr Use (HS): | + | $0 | $0 |
| (+) Curr Use (NHS): | + | $0 | $0 |
| | | -------------------------- | |
| (=) Market Value: | = | $636,066 | |
| (–) Productivity Loss: | – | $0 | |
| | | -------------------------- | |
| (=) Subtotal: | = | $636,066 | |
| (+) Senior Appraised Value: | + | $0 | |
| (+) Non-Senior Appraised Value: | + | $636,066 | |
| | | -------------------------- | |
| (=) Total Appraised Value: | = | $636,066 | |
| (–) Senior Exemption Loss: | – | $0 | |
| (–) Exemption Loss: | – | $0 | |
| | | -------------------------- | |
| (=) Taxable Value: | = | $636,066 | |
Taxing Jurisdiction
| Owner: | CRAIN, JACOB | | |
| % Ownership: | 100.0000000000% | | |
| Total Value: | $636,066 | | |
| Tax Area: | 512 - APPRAISER-Stan/Cam Schl Dist, improved, greater than 1 acre |
| CF | Conservation Futures | 0.0313996660 | $636,066 | $636,066 | $19.97 | | |
| EMS1 | Fire & Rescue Dist #1 Camano GEN (EMS) | 0.4998471806 | $636,066 | $636,066 | $317.94 | | |
| FIRE1 | Fire & Rescue Dist #1 Camano GEN | 1.2496603404 | $636,066 | $636,066 | $794.87 | | |
| FIRE1BOND | Fire & Rescue Dist #1 Camano BOND | 0.1630371212 | $636,066 | $636,066 | $103.70 | | |
| CE | County Current Expense | 0.3674210519 | $636,066 | $636,066 | $233.70 | | |
| CR | County Roads | 0.4614296361 | $636,066 | $636,066 | $293.50 | | |
| LIB | Library Sno-Isle GEN | 0.3039084203 | $636,066 | $636,066 | $193.31 | | |
| SCH205_401 | School 205-401 Enrichment | 1.3697998934 | $636,066 | $636,066 | $871.28 | | |
| SCH205BOND | School 205-401 BOND | 0.9354199323 | $636,066 | $636,066 | $594.99 | | |
| ST | State School | 1.4761226122 | $636,066 | $636,066 | $938.91 | | |
| ST2 | State School Part 2 | 0.7953803475 | $636,066 | $636,066 | $505.91 | | |
| | Total Tax Rate: | 7.6534262019 | | | | | |
| | | | | Taxes w/Current Exemptions: | $4,868.08 | | |
| | | | | Taxes w/o Exemptions: | $4,868.08 | | |
Improvement / Building
| Improvement #1: | RESIDENTIAL | State Code: | Y | 1888.7 sqft | Value: | $336,066 |
| Bathrooms: | 2 | Bedrooms: | 3 | | Ceiling: | DRYWALL PAINTED | Cooling: | HEAT PUMP/CONV/V | | Exterior Wall/Cover: | CEMENT FIBER | Floor Covering: | HARDWOOD/CARP 60-40 | | Floor Structure: | WOOD W/SUBFLOOR | Foundation: | CONCRETE | | Interior Finish: | DRYWALL PAINT | Plumbing Fixture Cnt: | 10 | | Roof Slope: | 6" IN 12" | Roof Structure/Cover: | CJ ASPHALT |
|
| | Type | Description | Class CD | Sub Class CD | Year Built | Area |
| | BAS | BASE/MAIN FLOOR | 3 | 0 | 2003 | 1888.7 |
| | OP1 | OPEN PORCH SLAB | 3 | 0 | 2003 | 330.0 |
| | OP3 | OPEN PORCH W/ROOF | 3 | 0 | 2003 | 16.0 |
| | AGR | ATTACHED GARAGE | 3 | 0 | 2003 | 320.0 |
| | DGR | DETACHED GARAGE | 3 | 0 | 2003 | 864.0 |
Sketch
Property Image
Land
| 1 | 18 | AC (02.01-03.00) | 2.3900 | 104108.40 | 0.00 | 0.00 | 1.00 | $300,000 | $0 |
Roll Value History
| 2026 | N/A | N/A | N/A | N/A | N/A |
| 2025 | $336,066 | $300,000 | $0 | $636,066 | $636,066 |
| 2024 | $340,202 | $280,000 | $0 | $620,202 | $620,202 |
| 2023 | $344,338 | $270,000 | $0 | $614,338 | $614,338 |
| 2022 | $303,889 | $260,000 | $0 | $563,889 | $563,889 |
| 2021 | $264,343 | $180,000 | $0 | $444,343 | $444,343 |
| 2020 | $257,839 | $150,000 | $0 | $407,839 | $407,839 |
| 2019 | $194,089 | $200,000 | $0 | $394,089 | $394,089 |
| 2018 | $194,664 | $150,000 | $0 | $344,664 | $344,664 |
| 2017 | $195,798 | $135,000 | $0 | $330,798 | $330,798 |
| 2016 | $198,102 | $100,000 | $0 | $298,102 | $298,102 |
| 2015 | $197,744 | $83,200 | $0 | $280,944 | $280,944 |
| 2014 | $199,792 | $83,200 | $0 | $282,992 | $282,992 |
| 2013 | $201,838 | $83,200 | $0 | $285,038 | $285,038 |
| 2012 | $203,885 | $83,200 | $0 | $287,085 | $287,085 |
| 2011 | $205,932 | $104,000 | $0 | $309,932 | $309,932 |
| 2010 | $213,351 | $104,000 | $0 | $317,351 | $317,351 |
| 2009 | $230,604 | $119,600 | $0 | $350,204 | $350,204 |
| 2008 | $235,397 | $130,000 | $0 | $365,397 | $365,397 |
| 2007 | $236,016 | $130,000 | $0 | $366,016 | $366,016 |
Deed and Sales History
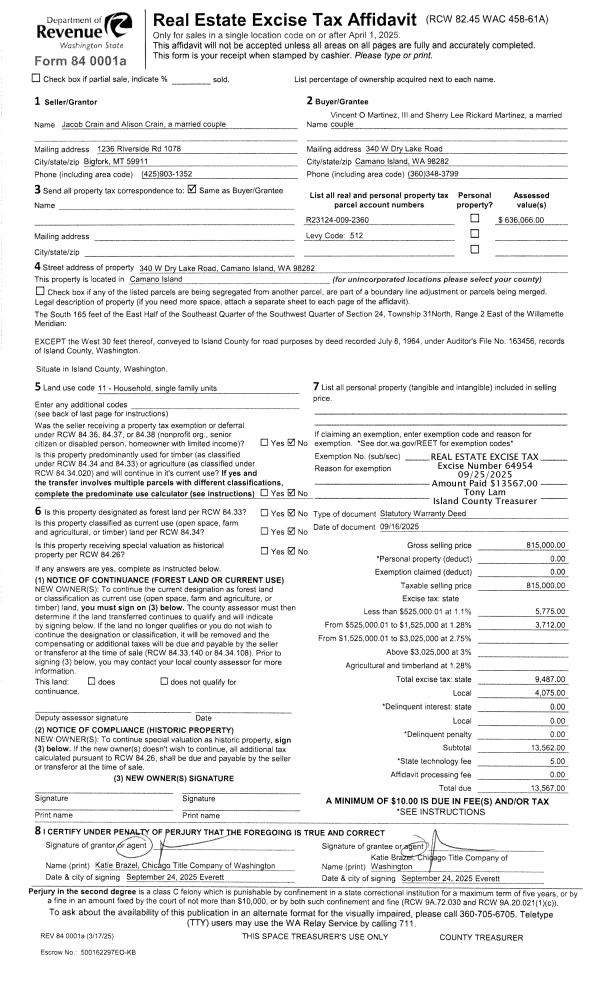
| 1 | 09/16/2025 | WD | Warranty Deed | CRAIN, JACOB | MARTINEZ III, VINCENT O | | | $815,000.00 | 64954 | 4591447 |
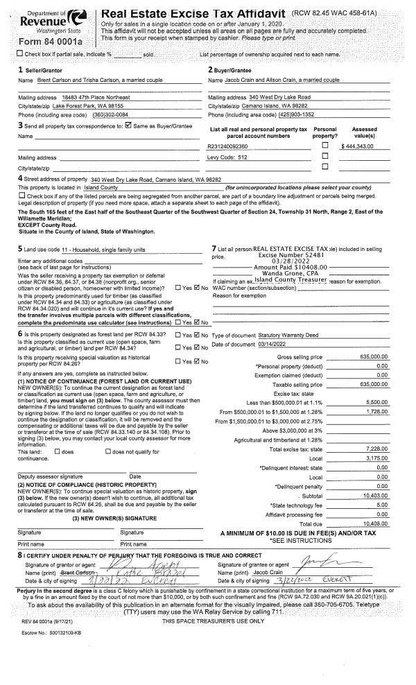
| 2 | 03/14/2022 | WD | Warranty Deed | CARLSON, BRENT | CRAIN, JACOB | | | $635,000.00 | 52481 | 4542320 |
| 3 | 06/06/2006 | WD | Warranty Deed | LEE, DONALD T | CARLSON, BRENT | | | $360,000.00 | 62869 | 4174924 |
| 4 | 08/15/2003 | WD | Warranty Deed | CONSTRUCTION INC, SUN MOUNTAIN | LEE, DONALD T | | | $222,286.00 | 33581 | 4071036 |
| 5 | 12/18/2002 | WD | Warranty Deed | CAMILON, MICHAEL D | CONSTRUCTION INC, SUN MOUNTAIN | | | $41,500.00 | 30082 | 4043373 |
| 6 | 06/01/1993 | QCD | Quit Claim Deed | CAMILON, MICHAEL D | CAMILON, MICHAEL D | | | $0.00 | 32641 | 93013717 |
| 7 | 06/01/1990 | QCD | Quit Claim Deed | CAMILON, MANUEL O | CAMILON, MICHAEL D | | | $0.00 | 5077 | 90016873 |
| 8 | 01/01/1900 | OTHER | Other - Misc. Documents | Unknown | CAMILON, MANUEL O | | | $0.00 | 0 | 0 |
Payout Agreement
| No payout information available.. |