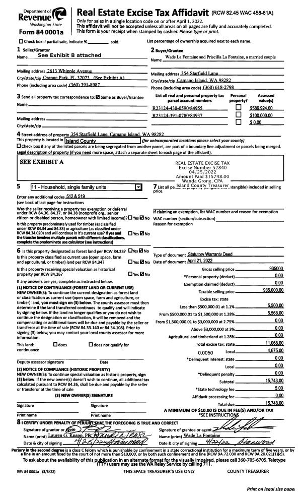
Property
Account |
| Property ID: | 84955 | Abbreviated Legal Description: | 56 - BG NWCR SEC 24 S820.23 N86*E371.92' TPB N88*E306.6 S536.88' N89*W180.89' N1*W 402.32' N40*W168.71' TPB SUB TGW EZ (TR 1 SP 78-35 AF#335884) |
| Geographic ID: | R23124-430-0590 | Agent Code: | |
| Type: | Real | | |
| Tax Area: | 512 - APPRAISER-Stan/Cam Schl Dist, improved, greater than 1 acre | Land Use Code | 11 |
| Open Space: | N | DFL | N |
| Historic Property: | N | Remodel Property: | N |
| Multi-Family Redevelopment: | N | | |
| Township: | 31 | Section: | 24 |
| Range: | R2 |
Location |
| Address: | 354 STARFIELD LN CAMANO ISLAND, WA 98282 | Mapsco: | |
| Neighborhood: | Cycle 5 | Map ID: | 506 |
| Neighborhood CD: | 5 |
Owner |
| Name: | LA FONTAINE, WADE | Owner ID: | 304625 |
| Mailing Address: | PRISCILLA LA FONTAINE 354 STARFIELD LN CAMANO ISLAND, WA 98282 | % Ownership: | 100.0000000000% |
| | | Exemptions: | |
Taxes and Assessment Details
Values
| (+) Improvement Homesite Value: | + | N/A | |
| (+) Improvement Non-Homesite Value: | + | N/A | |
| (+) Land Homesite Value: | + | N/A | |
| (+) Land Non-Homesite Value: | + | N/A | Ag / Timber Use Value |
| (+) Curr Use (HS): | + | N/A | N/A |
| (+) Curr Use (NHS): | + | N/A | N/A |
| | | -------------------------- | |
| (=) Market Value: | = | N/A | |
| (–) Productivity Loss: | – | N/A | |
| | | -------------------------- | |
| (=) Subtotal: | = | N/A | |
| (+) Senior Appraised Value: | + | N/A | |
| (+) Non-Senior Appraised Value: | + | N/A | |
| | | -------------------------- | |
| (=) Total Appraised Value: | = | N/A | |
| (–) Senior Exemption Loss: | – | N/A | |
| (–) Exemption Loss: | – | N/A | |
| | | -------------------------- | |
| (=) Taxable Value: | = | N/A | |
Taxing Jurisdiction
| Owner: | LA FONTAINE, WADE | | |
| % Ownership: | 100.0000000000% | | |
| Total Value: | N/A | | |
| Tax Area: | 512 - APPRAISER-Stan/Cam Schl Dist, improved, greater than 1 acre |
| CF | Conservation Futures | N/A | N/A | N/A | N/A | | |
| CCD | Camano Conservation District | N/A | N/A | N/A | N/A | | |
| EMS1 | Fire & Rescue Dist #1 Camano GEN (EMS) | N/A | N/A | N/A | N/A | | |
| FIRE1 | Fire & Rescue Dist #1 Camano GEN | N/A | N/A | N/A | N/A | | |
| FIRE1BOND | Fire & Rescue Dist #1 Camano BOND | N/A | N/A | N/A | N/A | | |
| CE | County Current Expense | N/A | N/A | N/A | N/A | | |
| CR | County Roads | N/A | N/A | N/A | N/A | | |
| LCIB | Library Sno-Isle BOND (Camano Island) | N/A | N/A | N/A | N/A | | |
| LIB | Library Sno-Isle GEN | N/A | N/A | N/A | N/A | | |
| SCH205_401 | School 205-401 Enrichment | N/A | N/A | N/A | N/A | | |
| SCH205BOND | School 205-401 BOND | N/A | N/A | N/A | N/A | | |
| ST | State School | N/A | N/A | N/A | N/A | | |
| ST2 | State School Part 2 | N/A | N/A | N/A | N/A | | |
| | Total Tax Rate: | N/A | | | | | |
| | | | | Taxes w/Current Exemptions: | N/A | | |
| | | | | Taxes w/o Exemptions: | N/A | | |
Improvement / Building
| Improvement #1: | RESIDENTIAL | State Code: | Y | 2410.8 sqft | Value: | N/A |
| Bathrooms: | 2 | Bedrooms: | 3 | | Ceiling: | DRYWALL PAINTED | Cooling: | HEAT PUMP/CONV/V | | Exterior Wall/Cover: | CEMENT FIBER | Floor Covering: | VINYL 100% | | Floor Structure: | WOOD W/SUBFLOOR | Foundation: | CONCRETE | | Interior Finish: | DRYWALL PAINT | Plumbing Fixture Cnt: | 10 | | Roof Slope: | 4" IN 12" | Roof Structure/Cover: | CJ ASPHALT |
|
| | Type | Description | Class CD | Sub Class CD | Year Built | Area |
| | BAS | BASE/MAIN FLOOR | 3 | 0 | 2020 | 2410.8 |
| | UTY | STORAGE/UTILITY | 3 | 0 | 2020 | 1216.0 |
| | AGR | ATTACHED GARAGE | 3 | 0 | 2020 | 522.0 |
| | UTY | STORAGE/UTILITY | 3 | 0 | 2020 | 720.0 |
| | OWP | OPEN WOOD PORCH W/STEPS | 3 | 0 | 2020 | 84.0 |
| | OWC | OPEN WOOD PORCH W/STEPS/ROOF/C | 3 | 0 | 2020 | 88.8 |
Sketch
Property Image
Land
| 1 | 18 | AC (02.01-03.00) | 2.4500 | 106722.00 | 0.00 | 0.00 | 1.00 | N/A | N/A |
Roll Value History
| 2026 | N/A | N/A | N/A | N/A | N/A |
| 2025 | $483,998 | $300,000 | $0 | $783,998 | $783,998 |
| 2024 | $487,482 | $280,000 | $0 | $767,482 | $767,482 |
| 2023 | $490,967 | $270,000 | $0 | $760,967 | $760,967 |
| 2022 | $453,346 | $260,000 | $0 | $713,346 | $713,346 |
| 2021 | $406,924 | $180,000 | $0 | $586,924 | $586,924 |
| 2020 | $401,448 | $150,000 | $0 | $551,448 | $551,448 |
| 2019 | $42,160 | $200,000 | $0 | $242,160 | $242,160 |
| 2018 | $42,289 | $150,000 | $0 | $192,289 | $192,289 |
| 2017 | $236,935 | $135,000 | $0 | $371,935 | $371,935 |
| 2016 | $239,823 | $100,000 | $0 | $339,823 | $339,823 |
| 2015 | $220,439 | $90,000 | $0 | $310,439 | $310,439 |
| 2014 | $222,618 | $83,200 | $0 | $305,818 | $305,818 |
| 2013 | $224,796 | $83,200 | $0 | $307,996 | $307,996 |
| 2012 | $187,751 | $83,200 | $0 | $270,951 | $270,951 |
| 2011 | $189,929 | $104,000 | $0 | $293,929 | $293,929 |
| 2010 | $190,570 | $104,000 | $0 | $294,570 | $294,570 |
| 2009 | $203,491 | $119,600 | $0 | $323,091 | $323,091 |
| 2008 | $206,643 | $130,000 | $0 | $336,643 | $336,643 |
| 2007 | $210,026 | $130,000 | $0 | $340,026 | $340,026 |
Deed and Sales History
| 1 | 04/21/2022 | WD | Warranty Deed | KNAPP, MICHAEL E | LA FONTAINE, WADE | | | $935,000.00 | 52840 | 4544001 |
|   | |
| 2 | 10/01/1990 | WD | Warranty Deed | LAWLIS, MARK C | KNAPP, MICHAEL E | | | $15,000.00 | 5964 | 90020274 |
| 3 | 08/01/1989 | WD | Warranty Deed | LALLE, PHILIP C | LAWLIS, MARK C | | | $6,750.00 | 93322 | 89011181 |
| 4 | 08/01/1978 | OTHER | Other - Misc. Documents | Unknown | LALLE, PHILIP C | | | $9,000.00 | 84091 | 338606 |
Payout Agreement
| No payout information available.. |