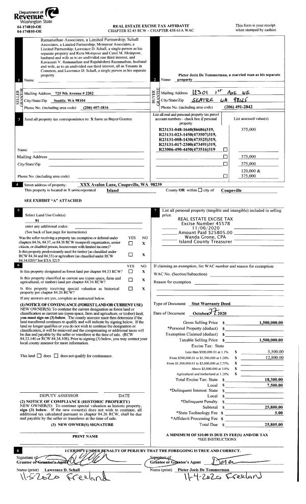
Property
Account |
| Property ID: | 86686 | Abbreviated Legal Description: | 15 - IN P DOYLE DC:S200'OF N1000'OF GL 4 31-31-2E TGW EZ |
| Geographic ID: | R23131-048-1640 | Agent Code: | |
| Type: | Real | | |
| Tax Area: | 319 - APPRAISER-Cpvl Schl Dist, outside Cpvl, vacant & 50 acres or less | Land Use Code | 91 |
| Open Space: | N | DFL | N |
| Historic Property: | N | Remodel Property: | N |
| Multi-Family Redevelopment: | N | | |
| Township: | 31 | Section: | 31 |
| Range: | R2 |
Location |
| Address: | | Mapsco: | |
| Neighborhood: | Area 2 Waterfront Westside Residential | Map ID: | 524 |
| Neighborhood CD: | 2WFW01R |
Owner |
| Name: | DE TEMMERMAN, PIETER JORIS | Owner ID: | 296640 |
| Mailing Address: | 730 18TH AVE W KIRKLAND, WA 98033 | % Ownership: | 100.0000000000% |
| | | Exemptions: | |
Taxes and Assessment Details
Values
| (+) Improvement Homesite Value: | + | N/A | |
| (+) Improvement Non-Homesite Value: | + | N/A | |
| (+) Land Homesite Value: | + | N/A | |
| (+) Land Non-Homesite Value: | + | N/A | Ag / Timber Use Value |
| (+) Curr Use (HS): | + | N/A | N/A |
| (+) Curr Use (NHS): | + | N/A | N/A |
| | | -------------------------- | |
| (=) Market Value: | = | N/A | |
| (–) Productivity Loss: | – | N/A | |
| | | -------------------------- | |
| (=) Subtotal: | = | N/A | |
| (+) Senior Appraised Value: | + | N/A | |
| (+) Non-Senior Appraised Value: | + | N/A | |
| | | -------------------------- | |
| (=) Total Appraised Value: | = | N/A | |
| (–) Senior Exemption Loss: | – | N/A | |
| (–) Exemption Loss: | – | N/A | |
| | | -------------------------- | |
| (=) Taxable Value: | = | N/A | |
Taxing Jurisdiction
| Owner: | DE TEMMERMAN, PIETER JORIS | | |
| % Ownership: | 100.0000000000% | | |
| Total Value: | N/A | | |
| Tax Area: | 319 - APPRAISER-Cpvl Schl Dist, outside Cpvl, vacant & 50 acres or less |
| CF | Conservation Futures | N/A | N/A | N/A | N/A | | |
| WCD | Whidbey Conservation District | N/A | N/A | N/A | N/A | | |
| CEM2 | Cemetery #2 | N/A | N/A | N/A | N/A | | |
| HOBOND | Hospital BOND | N/A | N/A | N/A | N/A | | |
| HOGEN | Hospital GEN | N/A | N/A | N/A | N/A | | |
| CE | County Current Expense | N/A | N/A | N/A | N/A | | |
| CR | County Roads | N/A | N/A | N/A | N/A | | |
| ISLANDEMS | Hospital GEN (EMS) | N/A | N/A | N/A | N/A | | |
| LIB | Library Sno-Isle GEN | N/A | N/A | N/A | N/A | | |
| LIBCAP | Library Sno-Isle BOND (Cap Fac Imp Area) | N/A | N/A | N/A | N/A | | |
| POCOUP | Port of Coupeville GEN | N/A | N/A | N/A | N/A | | |
| COUPSDTECH | School 204 CP (TECH) | N/A | N/A | N/A | N/A | | |
| SCH204MO | School 204 Enrichment | N/A | N/A | N/A | N/A | | |
| ST | State School | N/A | N/A | N/A | N/A | | |
| ST2 | State School Part 2 | N/A | N/A | N/A | N/A | | |
| | Total Tax Rate: | N/A | | | | | |
| | | | | Taxes w/Current Exemptions: | N/A | | |
| | | | | Taxes w/o Exemptions: | N/A | | |
Improvement / Building
Sketch
| No sketches available for this property. |
Property Image
Land
| 1 | HB | HIGH BLUFF | 8.2600 | 359805.60 | 200.00 | 0.00 | 1.00 | N/A | N/A |
Roll Value History
| 2026 | N/A | N/A | N/A | N/A | N/A |
| 2025 | $0 | $475,000 | $0 | $475,000 | $475,000 |
| 2024 | $0 | $475,000 | $0 | $475,000 | $475,000 |
| 2023 | $0 | $450,000 | $0 | $450,000 | $450,000 |
| 2022 | $0 | $400,000 | $0 | $400,000 | $400,000 |
| 2021 | $0 | $375,000 | $0 | $375,000 | $375,000 |
| 2020 | $0 | $375,000 | $0 | $375,000 | $375,000 |
| 2019 | $0 | $400,000 | $0 | $400,000 | $400,000 |
| 2018 | $0 | $350,000 | $0 | $350,000 | $350,000 |
| 2017 | $0 | $300,000 | $0 | $300,000 | $300,000 |
| 2016 | $0 | $300,000 | $0 | $300,000 | $300,000 |
| 2015 | $0 | $300,000 | $0 | $300,000 | $300,000 |
| 2014 | $0 | $300,000 | $0 | $300,000 | $300,000 |
| 2013 | $0 | $218,236 | $0 | $218,236 | $218,236 |
| 2012 | $0 | $218,236 | $0 | $218,236 | $218,236 |
| 2011 | $0 | $218,236 | $0 | $218,236 | $218,236 |
| 2010 | $0 | $218,236 | $0 | $218,236 | $218,236 |
| 2009 | $0 | $254,608 | $0 | $254,608 | $254,608 |
| 2008 | $0 | $254,608 | $0 | $254,608 | $254,608 |
| 2007 | $0 | $253,745 | $0 | $253,745 | $253,745 |
Deed and Sales History
| 1 | 11/06/2020 | QCD | Quit Claim Deed | DE TEMMERMAN, PIETER JORIS | DE TEMMERMAN, PIETER JORIS | | | $0.00 | 45579 | 4501634 |
| 2 | 10/27/2020 | WD | Warranty Deed | SCHALL, LAWRENCE | DE TEMMERMAN, PIETER JORIS | | | $1,500,000.00 | 45578 | 4501633 |
|   | |
Payout Agreement
| No payout information available.. |