Property
Account |
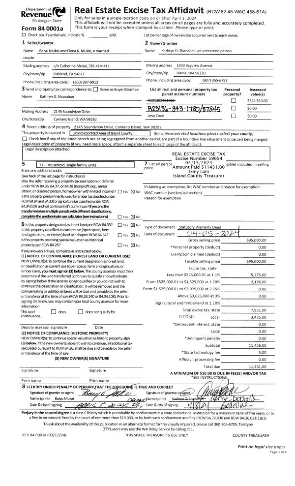
| Property ID: | 87845 | Abbreviated Legal Description: | 31 - S/2 SE NW SE NW TGW & SUBJ TO EZ |
| Geographic ID: | R23136-343-1780 | Agent Code: | |
| Type: | Real | | |
| Tax Area: | 542 - APPRAISER-Stan/Cam Schl Dist, Special Dist, improved, greater than 1 acre | Land Use Code | 11 |
| Open Space: | N | DFL | N |
| Historic Property: | N | Remodel Property: | N |
| Multi-Family Redevelopment: | N | | |
| Township: | 31 | Section: | 36 |
| Range: | R2 |
Location |
| Address: | 2145 SOUNDVIEW DR CAMANO ISLAND, WA 98282 | Mapsco: | |
| Neighborhood: | Cycle 5 | Map ID: | 535 |
| Neighborhood CD: | 5 |
Owner |
| Name: | SHANAHAN, KATHRYN D | Owner ID: | 311975 |
| Mailing Address: | 2145 SOUNDVIEW DR CAMANO ISLAND, WA 98282 | % Ownership: | 100.0000000000% |
| | | Exemptions: | |
Taxes and Assessment Details
Values
| (+) Improvement Homesite Value: | + | $0 | |
| (+) Improvement Non-Homesite Value: | + | $262,364 | |
| (+) Land Homesite Value: | + | $0 | |
| (+) Land Non-Homesite Value: | + | $320,000 | |
| (+) Curr Use (HS): | + | $0 | $0 |
| (+) Curr Use (NHS): | + | $0 | $0 |
| | | -------------------------- | |
| (=) Market Value: | = | $582,364 | |
| (–) Productivity Loss: | – | $0 | |
| | | -------------------------- | |
| (=) Subtotal: | = | $582,364 | |
| (+) Senior Appraised Value: | + | $0 | |
| (+) Non-Senior Appraised Value: | + | $582,364 | |
| | | -------------------------- | |
| (=) Total Appraised Value: | = | $582,364 | |
| (–) Senior Exemption Loss: | – | $0 | |
| (–) Exemption Loss: | – | $0 | |
| | | -------------------------- | |
| (=) Taxable Value: | = | $582,364 | |
Taxing Jurisdiction
| Owner: | SHANAHAN, KATHRYN D | | |
| % Ownership: | 100.0000000000% | | |
| Total Value: | $582,364 | | |
| Tax Area: | 542 - APPRAISER-Stan/Cam Schl Dist, Special Dist, improved, greater than 1 acre |
| CF | Conservation Futures | 0.0313996660 | $582,364 | $582,364 | $18.29 | | |
| EMS1 | Fire & Rescue Dist #1 Camano GEN (EMS) | 0.4998471806 | $582,364 | $582,364 | $291.09 | | |
| FIRE1 | Fire & Rescue Dist #1 Camano GEN | 1.2496603404 | $582,364 | $582,364 | $727.76 | | |
| FIRE1BOND | Fire & Rescue Dist #1 Camano BOND | 0.1630371212 | $582,364 | $582,364 | $94.95 | | |
| CE | County Current Expense | 0.3674210519 | $582,364 | $582,364 | $213.97 | | |
| CR | County Roads | 0.4614296361 | $582,364 | $582,364 | $268.72 | | |
| LIB | Library Sno-Isle GEN | 0.3039084203 | $582,364 | $582,364 | $176.99 | | |
| SCH205_401 | School 205-401 Enrichment | 1.3697998934 | $582,364 | $582,364 | $797.72 | | |
| SCH205BOND | School 205-401 BOND | 0.9354199323 | $582,364 | $582,364 | $544.75 | | |
| ST | State School | 1.4761226122 | $582,364 | $582,364 | $859.64 | | |
| ST2 | State School Part 2 | 0.7953803475 | $582,364 | $582,364 | $463.20 | | |
| | Total Tax Rate: | 7.6534262019 | | | | | |
| | | | | Taxes w/Current Exemptions: | $4,457.08 | | |
| | | | | Taxes w/o Exemptions: | $4,457.08 | | |
Improvement / Building
| Improvement #1: | RESIDENTIAL | State Code: | Y | 1596.0 sqft | Value: | $262,364 |
| Bathrooms: | 2 | Bedrooms: | 3 | | Ceiling: | DRYWALL PAINTED | Exterior Wall/Cover: | WOOD SIDING | | Floor Covering: | CARPET/VINYL 80-20 | Floor Structure: | WOOD W/SUBFLOOR | | Foundation: | CONCRETE | Heating: | BASEBOARD ELECTRIC | | Interior Finish: | DRYWALL PAINT | Plumbing Fixture Cnt: | 10 | | Roof Slope: | 4" IN 12" | Roof Structure/Cover: | CJ ASPHALT |
|
| | Type | Description | Class CD | Sub Class CD | Year Built | Area |
| | BAS | BASE/MAIN FLOOR | 3 | 0 | 1983 | 1068.0 |
| | BGR | BASEMENT GARAGE | 3 | 0 | 1983 | 480.0 |
| | OWP | OPEN WOOD PORCH W/STEPS | 3 | 0 | 1983 | 1038.0 |
| | DWN | DOWNSTAIRS LIVING AREA | 3 | 0 | 1983 | 528.0 |
| | UTY | STORAGE/UTILITY | 3 | 0 | 1983 | 100.0 |
Sketch
Property Image
Land
| 1 | 17 | AC (01.01-02.00) | 1.2500 | 54450.00 | 0.00 | 0.00 | 1.00 | $320,000 | $0 |
Roll Value History
| 2026 | N/A | N/A | N/A | N/A | N/A |
| 2025 | $262,364 | $320,000 | $0 | $582,364 | $582,364 |
| 2024 | $236,689 | $310,000 | $0 | $546,689 | $546,689 |
| 2023 | $234,510 | $290,000 | $0 | $524,510 | $524,510 |
| 2022 | $215,507 | $260,000 | $0 | $475,507 | $475,507 |
| 2021 | $190,216 | $200,000 | $0 | $390,216 | $390,216 |
| 2020 | $185,805 | $200,000 | $0 | $385,805 | $385,805 |
| 2019 | $136,433 | $230,000 | $0 | $366,433 | $366,433 |
| 2018 | $136,894 | $200,000 | $0 | $336,894 | $336,894 |
| 2017 | $137,817 | $150,000 | $0 | $287,817 | $287,817 |
| 2016 | $139,664 | $140,000 | $0 | $279,664 | $279,664 |
| 2015 | $139,330 | $96,800 | $0 | $236,130 | $236,130 |
| 2014 | $141,212 | $96,800 | $0 | $238,012 | $238,012 |
| 2013 | $143,094 | $96,800 | $0 | $239,894 | $239,894 |
| 2012 | $144,975 | $96,800 | $0 | $241,775 | $241,775 |
| 2011 | $146,857 | $121,000 | $0 | $267,857 | $267,857 |
| 2010 | $153,960 | $121,000 | $0 | $274,960 | $274,960 |
| 2009 | $159,818 | $165,000 | $0 | $324,818 | $324,818 |
| 2008 | $161,994 | $190,575 | $0 | $352,569 | $352,569 |
| 2007 | $164,177 | $190,575 | $0 | $354,752 | $354,752 |
Deed and Sales History
| 1 | 04/05/2024 | WD | Warranty Deed | MUKAI, ELENA K | SHANAHAN, KATHRYN D | | | $695,000.00 | 59654 | 4571241 |
| 2 | 04/05/2024 | QCD | Quit Claim Deed | MUKAI, ELENA K | MUKAI, ELENA K | | | $0.00 | 59653 | 4571240 |
| 3 | 09/01/2006 | DECREE | Divorce Decree/Legal Separation | MUKAI, BAIYU E | MUKAI, ELENA K | | | $0.00 | 63919 | 4181465 |
| 4 | 11/18/2002 | WD | Warranty Deed | ROTH, JOHN | MUKAI, BAIYU E | | | $265,000.00 | 24728 | 4038670 |
| 5 | 03/01/1990 | WD | Warranty Deed | MARTIN, ELIZABETH G | ROTH, JOHN | | | $140,000.00 | 1734 | 90005594 |
| 6 | 10/01/1983 | PRD | Personal Representatives Deed | MARTIN, ROBERT V | MARTIN, ELIZABETH G | | | $0.00 | 32970 | 416012 |
| 7 | 10/01/1981 | TRUSTEED | Trustee's Deed | TERRY, VERNON L | MARTIN, ROBERT V | | | $22,500.00 | 13446 | 389879 |
| 8 | 01/01/1900 | OTHER | Other - Misc. Documents | Unknown | TERRY, VERNON L | | | $0.00 | 0 | 0 |
Payout Agreement
| No payout information available.. |