Property
Account |
| Property ID: | 8789 | Abbreviated Legal Description: | 7 - BG SE CR NW SE N277.78' TO NLN CO RD TPB W ALG RD 210.6' N371.55' M/L TO SLN AIR BASE E210.6' S371.55' M /L TPB |
| Geographic ID: | R13113-179-3850 | Agent Code: | |
| Type: | Real | | |
| Tax Area: | 312 - APPRAISER-Cpvl Schl Dist, outside Cpvl, improved, greater than 1 acre | Land Use Code | 11 |
| Open Space: | N | DFL | N |
| Historic Property: | N | Remodel Property: | N |
| Multi-Family Redevelopment: | N | | |
| Township: | 31 | Section: | 13 |
| Range: | R1 |
Location |
| Address: | 15751 SR 2O COUPEVILLE, WA 98239 | Mapsco: | |
| Neighborhood: | Cycle 2 | Map ID: | 59 |
| Neighborhood CD: | 2 |
Owner |
| Name: | SHEEHAN TTEE, GARY M | Owner ID: | 302168 |
| Mailing Address: | BEVERLY S SHEEHAN & STEVEN D CLARKE PO BOX 942 COUPEVILLE, WA 98239 | % Ownership: | 100.0000000000% |
| | | Exemptions: | SNR/DSBL |
Taxes and Assessment Details
Values
| (+) Improvement Homesite Value: | + | $337,041 | |
| (+) Improvement Non-Homesite Value: | + | $0 | |
| (+) Land Homesite Value: | + | $286,667 | |
| (+) Land Non-Homesite Value: | + | $0 | |
| (+) Curr Use (HS): | + | $0 | $0 |
| (+) Curr Use (NHS): | + | $0 | $0 |
| | | -------------------------- | |
| (=) Market Value: | = | $623,708 | |
| (–) Productivity Loss: | – | $0 | |
| | | -------------------------- | |
| (=) Subtotal: | = | $623,708 | |
| (+) Senior Appraised Value: | + | $604,507 | |
| (+) Non-Senior Appraised Value: | + | $0 | |
| | | -------------------------- | |
| (=) Total Appraised Value: | = | $604,507 | |
| (–) Senior Exemption Loss: | – | $0 | |
| (–) Exemption Loss: | – | $0 | |
| | | -------------------------- | |
| (=) Taxable Value: | = | $604,507 | |
Taxing Jurisdiction
| Owner: | SHEEHAN TTEE, GARY M | | |
| % Ownership: | 100.0000000000% | | |
| Total Value: | $623,708 | | |
| Tax Area: | 312 - APPRAISER-Cpvl Schl Dist, outside Cpvl, improved, greater than 1 acre |
| CF | Conservation Futures | 0.0313996660 | $623,708 | $604,507 | $18.98 | | |
| CEM2 | Cemetery #2 | 0.0092609791 | $623,708 | $604,507 | $5.60 | | |
| FIRE5 | Fire & Rescue Dist #5 C Whidbey GEN | 1.1892169230 | $623,708 | $604,507 | $718.89 | | |
| FIRE5BOND | Fire & Rescue Dist #5 C Whidbey BOND | 0.0000000000 | $623,708 | $0 | $0.00 | | |
| HOBOND | Hospital BOND | 0.0000000000 | $623,708 | $0 | $0.00 | | |
| HOGEN | Hospital GEN | 0.3848777722 | $623,708 | $604,507 | $232.66 | | |
| CE | County Current Expense | 0.3674210519 | $623,708 | $604,507 | $222.11 | | |
| CR | County Roads | 0.4614296361 | $623,708 | $604,507 | $278.94 | | |
| ISLANDEMS | Hospital GEN (EMS) | 0.4952018576 | $623,708 | $604,507 | $299.35 | | |
| LIB | Library Sno-Isle GEN | 0.3039084203 | $623,708 | $604,507 | $183.71 | | |
| LIBCAP | Library Sno-Isle BOND (Cap Fac Imp Area) | 0.0000000000 | $623,708 | $0 | $0.00 | | |
| POCOUP | Port of Coupeville GEN | 0.1065226063 | $623,708 | $604,507 | $64.39 | | |
| POCOUPIDD | Port of Coupeville IDD | 0.3353038577 | $623,708 | $604,507 | $202.69 | | |
| COUPSDTECH | School 204 CP (TECH) | 0.0000000000 | $623,708 | $0 | $0.00 | | |
| SCH204MO | School 204 Enrichment | 0.0000000000 | $623,708 | $0 | $0.00 | | |
| ST | State School | 1.4761226122 | $623,708 | $604,507 | $892.33 | | |
| ST2 | State School Part 2 | 0.0000000000 | $623,708 | $0 | $0.00 | | |
| | Total Tax Rate: | 5.1606653824 | | | | | |
| | | | | Taxes w/Current Exemptions: | $3,119.65 | | |
| | | | | Taxes w/o Exemptions: | $4,428.86 | | |
Improvement / Building
| Improvement #1: | RESIDENTIAL | State Code: | Y | 2065.0 sqft | Value: | $337,041 |
| Bathrooms: | 2.5 | Bedrooms: | 3 | | Ceiling: | DRYWALL PAINTED | Exterior Wall/Cover: | PLY/HARDBOARD T-111 | | Floor Covering: | VINYL 100% | Floor Structure: | WOOD W/SUBFLOOR | | Foundation: | CONCRETE | Heating: | FHA GAS | | Interior Finish: | DRYWALL PAINT | Plumbing Fixture Cnt: | 12 | | Roof Slope: | 3" IN 12" | Roof Structure/Cover: | CJ ASPHALT |
|
| | Type | Description | Class CD | Sub Class CD | Year Built | Area |
| | BAS | BASE/MAIN FLOOR | 3 | 0 | 2019 | 2065.0 |
| | OWP | OPEN WOOD PORCH W/STEPS | 3 | 0 | 2019 | 128.0 |
Sketch
| No sketches available for this property. |
Property Image
Land
| 1 | HS | HOMESITE | 1.0000 | 43560.00 | 0.00 | 0.00 | 1.00 | $220,000 | $0 |
| 2 | 91 | UNDEVELOPED LAND-METES AND BOUNDS | 0.8000 | 34848.00 | 0.00 | 0.00 | 1.00 | $66,667 | $0 |
Roll Value History
| 2026 | N/A | N/A | N/A | N/A | N/A |
| 2025 | $337,041 | $286,667 | $0 | $623,708 | $604,507 |
| 2024 | $341,773 | $270,000 | $0 | $611,773 | $604,507 |
| 2023 | $344,507 | $260,000 | $0 | $604,507 | $604,507 |
| 2022 | $314,125 | $250,000 | $0 | $564,125 | $564,125 |
| 2021 | $276,018 | $135,000 | $0 | $411,018 | $411,018 |
| 2020 | $270,637 | $135,000 | $0 | $405,637 | $405,637 |
| 2019 | $163,076 | $75,000 | $0 | $238,076 | $238,076 |
| 2018 | $0 | $75,000 | $0 | $75,000 | $75,000 |
| 2017 | $0 | $75,000 | $0 | $75,000 | $75,000 |
| 2016 | $0 | $75,000 | $0 | $75,000 | $75,000 |
| 2015 | $0 | $70,000 | $0 | $70,000 | $70,000 |
| 2014 | $0 | $66,000 | $0 | $66,000 | $66,000 |
| 2013 | $0 | $66,000 | $0 | $66,000 | $66,000 |
| 2012 | $0 | $66,000 | $0 | $66,000 | $66,000 |
| 2011 | $0 | $66,000 | $0 | $66,000 | $66,000 |
| 2010 | $0 | $66,000 | $0 | $66,000 | $66,000 |
| 2009 | $0 | $74,800 | $0 | $74,800 | $74,800 |
| 2008 | $0 | $74,800 | $0 | $74,800 | $74,800 |
| 2007 | $0 | $75,000 | $0 | $75,000 | $75,000 |
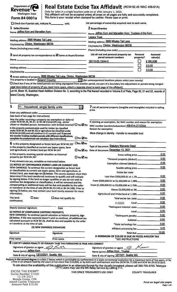
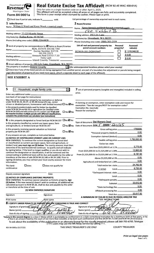
Deed and Sales History
| 1 | 11/30/2021 | QCD | Quit Claim Deed | SHEEHAN, GARY | SHEEHAN TTEE, GARY M | | | $0.00 | 51124 | 4534865 |
| 2 | 10/14/2015 | WD | Warranty Deed | LINN, LLOYD R | SHEEHAN, GARY | | | $40,000.00 | 21797 | 4387900 |
| 3 | 08/01/1980 | TRUSTEED | Trustee's Deed | CLARK, BLANCHE | LINN, LLOYD R | | | $10,500.00 | 2638 | 372129 |
| 4 | 01/01/1900 | OTHER | Other - Misc. Documents | Unknown | CLARK, BLANCHE | | | $0.00 | 0 | 0 |
Payout Agreement
| No payout information available.. |