Property
Account |
| Property ID: | 88489 | Abbreviated Legal Description: | 26 - IN GL4: BG 495'S & 455'W OF NECR GL4 W205' S TO HIWTRLN NELY ALG SD LN TP S OF TPB N TPB TGW 30' PARCEL TO ROLF O BRANDT ICC #12067 CLN DESC: BG NECR GL4 S01*W495' N89*W455 N89*W30' N15' TPB S89*E163' N25*W122' N49*W198' N16*W TO SLN CO RD & N TERM |
| Geographic ID: | R23202-419-3480 | Agent Code: | |
| Type: | Real | | |
| Tax Area: | 112 - APPRAISER-OH Schl Dist, outside OH, improved, greater than 1 acre | Land Use Code | 11 |
| Open Space: | N | DFL | N |
| Historic Property: | N | Remodel Property: | N |
| Multi-Family Redevelopment: | N | | |
| Township: | 32 | Section: | 02 |
| Range: | R2 |
Location |
| Address: | 1860 HUNSKOR RD OAK HARBOR, WA 98277 | Mapsco: | |
| Neighborhood: | Cycle 6 | Map ID: | 539 |
| Neighborhood CD: | 6 |
Owner |
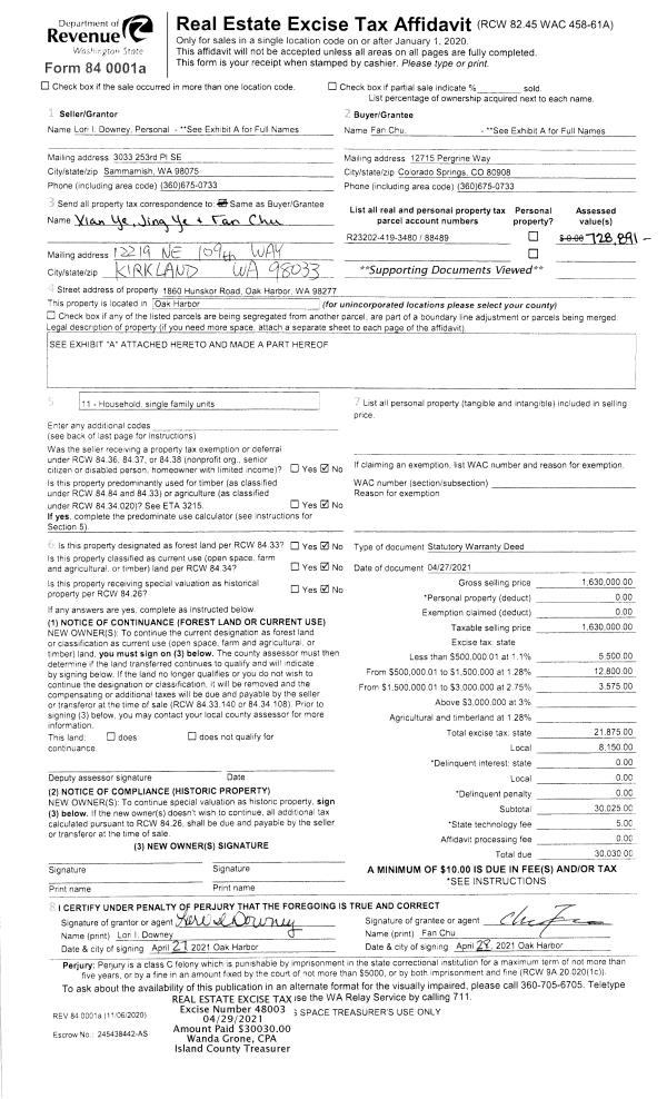
| Name: | CHU, FAN | Owner ID: | 299112 |
| Mailing Address: | XIAN YE 12715 PERGRINE WAY COLORADO SPRINGS, CO 80908 | % Ownership: | 100.0000000000% |
| | | Exemptions: | |
Taxes and Assessment Details
Values
| (+) Improvement Homesite Value: | + | $0 | |
| (+) Improvement Non-Homesite Value: | + | $863,502 | |
| (+) Land Homesite Value: | + | $0 | |
| (+) Land Non-Homesite Value: | + | $618,750 | |
| (+) Curr Use (HS): | + | $0 | $0 |
| (+) Curr Use (NHS): | + | $0 | $0 |
| | | -------------------------- | |
| (=) Market Value: | = | $1,482,252 | |
| (–) Productivity Loss: | – | $0 | |
| | | -------------------------- | |
| (=) Subtotal: | = | $1,482,252 | |
| (+) Senior Appraised Value: | + | $0 | |
| (+) Non-Senior Appraised Value: | + | $1,482,252 | |
| | | -------------------------- | |
| (=) Total Appraised Value: | = | $1,482,252 | |
| (–) Senior Exemption Loss: | – | $0 | |
| (–) Exemption Loss: | – | $0 | |
| | | -------------------------- | |
| (=) Taxable Value: | = | $1,482,252 | |
Taxing Jurisdiction
| Owner: | CHU, FAN | | |
| % Ownership: | 100.0000000000% | | |
| Total Value: | $1,482,252 | | |
| Tax Area: | 112 - APPRAISER-OH Schl Dist, outside OH, improved, greater than 1 acre |
| CF | Conservation Futures | 0.0313996660 | $1,482,252 | $1,482,252 | $46.54 | | |
| CEM1 | Cemetery #1 | 0.0040018856 | $1,482,252 | $1,482,252 | $5.93 | | |
| FIRE2 | Fire & Rescue Dist #2 N Whidbey GEN | 0.5381486274 | $1,482,252 | $1,482,252 | $797.67 | | |
| HOBOND | Hospital BOND | 0.1893405597 | $1,482,252 | $1,482,252 | $280.65 | | |
| HOGEN | Hospital GEN | 0.3848777722 | $1,482,252 | $1,482,252 | $570.49 | | |
| CE | County Current Expense | 0.3674210519 | $1,482,252 | $1,482,252 | $544.61 | | |
| CR | County Roads | 0.4614296361 | $1,482,252 | $1,482,252 | $683.96 | | |
| ISLANDEMS | Hospital GEN (EMS) | 0.4952018576 | $1,482,252 | $1,482,252 | $734.01 | | |
| LIB | Library Sno-Isle GEN | 0.3039084203 | $1,482,252 | $1,482,252 | $450.47 | | |
| NWHIDPRMT | P & R N Whidbey GEN | 0.1990272349 | $1,482,252 | $1,482,252 | $295.01 | | |
| SCH201MO | School 201 Enrichment | 2.3851112745 | $1,482,252 | $1,482,252 | $3,535.34 | | |
| ST | State School | 1.4761226122 | $1,482,252 | $1,482,252 | $2,187.99 | | |
| ST2 | State School Part 2 | 0.7953803475 | $1,482,252 | $1,482,252 | $1,178.95 | | |
| | Total Tax Rate: | 7.6313709459 | | | | | |
| | | | | Taxes w/Current Exemptions: | $11,311.62 | | |
| | | | | Taxes w/o Exemptions: | $11,311.62 | | |
Improvement / Building
| Improvement #1: | RESIDENTIAL | State Code: | Y | 3557.6 sqft | Value: | $863,502 |
| Bathrooms: | 3.5 | Bedrooms: | 3 | | Ceiling: | BEAM PAINTED | Exterior Wall/Cover: | VINYL | | Floor Covering: | (NONE) | Floor Structure: | WOOD W/SUBFLOOR | | Foundation: | CONCRETE | Heating: | HEAT PUMP | | Interior Finish: | DRYWALL PAINT | Plumbing Fixture Cnt: | 21 | | Roof Slope: | 8" IN 12" | Roof Structure/Cover: | BEAM ALUMINUM HEAVY |
|
| | Type | Description | Class CD | Sub Class CD | Year Built | Area |
| | BAS | BASE/MAIN FLOOR | 5 | 0 | 1986 | 3557.6 |
| | AGR | ATTACHED GARAGE | 5 | 0 | 1986 | 586.4 |
| | OWC | OPEN WOOD PORCH W/STEPS/ROOF/C | 5 | 0 | 1986 | 486.6 |
| | OWC | OPEN WOOD PORCH W/STEPS/ROOF/C | 5 | 0 | 1986 | 333.7 |
| | OWP | OPEN WOOD PORCH W/STEPS | 5 | 0 | 1986 | 246.1 |
| | OP2 | OPEN PORCH W/STEPS | 5 | 0 | 1986 | 753.1 |
Sketch
Property Image
Land
| 1 | HB | HIGH BLUFF | 5.1600 | 224769.60 | 205.00 | 0.00 | 1.00 | $618,750 | $0 |
Roll Value History
| 2026 | N/A | N/A | N/A | N/A | N/A |
| 2025 | $863,502 | $618,750 | $0 | $1,482,252 | $1,482,252 |
| 2024 | $251,744 | $350,000 | $0 | $601,744 | $601,744 |
| 2023 | $475,997 | $650,000 | $0 | $1,125,997 | $1,125,997 |
| 2022 | $436,749 | $600,000 | $0 | $1,036,749 | $1,036,749 |
| 2021 | $249,076 | $700,000 | $0 | $949,076 | $949,076 |
| 2020 | $228,891 | $500,000 | $0 | $728,891 | $728,891 |
| 2019 | $175,765 | $550,000 | $0 | $725,765 | $725,765 |
| 2018 | $176,399 | $375,000 | $0 | $551,399 | $551,399 |
| 2017 | $177,670 | $350,000 | $0 | $527,670 | $527,670 |
| 2016 | $190,877 | $350,000 | $0 | $540,877 | $540,877 |
| 2015 | $193,643 | $350,000 | $0 | $543,643 | $217,457 |
| 2014 | $196,409 | $350,000 | $0 | $546,409 | $476,409 |
| 2013 | $199,175 | $397,675 | $0 | $596,850 | $526,850 |
| 2012 | $201,942 | $397,675 | $0 | $599,617 | $529,617 |
| 2011 | $204,708 | $397,675 | $0 | $602,383 | $532,383 |
| 2010 | $215,742 | $397,675 | $0 | $613,417 | $543,417 |
| 2009 | $225,083 | $537,764 | $0 | $762,847 | $692,847 |
| 2008 | $227,880 | $537,764 | $0 | $765,644 | $765,644 |
| 2007 | $230,677 | $406,823 | $0 | $637,500 | $637,500 |
Deed and Sales History
| 1 | 04/27/2021 | WD | Warranty Deed | BRANDT, HELEN I | CHU, FAN | | | $1,630,000.00 | 48003 | 4517797 |
| 2 | 11/20/1995 | PRD | Personal Representatives Deed | BRANDT, HELEN I | BRANDT, HELEN I | | | $0.00 | 91332 | 4253742 |
| 3 | 11/01/1995 | PRD | Personal Representatives Deed | BRANDT, ROLF O | BRANDT, HELEN I | | | $0.00 | 60007 | 96000066 |
| 4 | 01/01/1900 | OTHER | Other - Misc. Documents | Unknown | BRANDT, ROLF O | | | $0.00 | 0 | 0 |
Payout Agreement
| No payout information available.. |