Property
Account |
| Property ID: | 88559 | Abbreviated Legal Description: | 11 - IN GL4:BG 495'S OF NW CR GL4 E660' TPB S370' W250 N370' E250' TPB |
| Geographic ID: | R23202-454-3260 | Agent Code: | |
| Type: | Real | | |
| Tax Area: | 112 - APPRAISER-OH Schl Dist, outside OH, improved, greater than 1 acre | Land Use Code | 11 |
| Open Space: | N | DFL | N |
| Historic Property: | N | Remodel Property: | N |
| Multi-Family Redevelopment: | N | | |
| Township: | 32 | Section: | 02 |
| Range: | R2 |
Location |
| Address: | 2364 STRAWBERRY POINT RD OAK HARBOR, WA 98277 | Mapsco: | |
| Neighborhood: | Cycle 6 | Map ID: | 539 |
| Neighborhood CD: | 6 |
Owner |
| Name: | PASCOE, PETER J | Owner ID: | 301013 |
| Mailing Address: | SIGNE E BEEBE 2364 STRAWBERRY PT RD OAK HARBOR, WA 98277 | % Ownership: | 100.0000000000% |
| | | Exemptions: | |
Taxes and Assessment Details
Values
| (+) Improvement Homesite Value: | + | $0 | |
| (+) Improvement Non-Homesite Value: | + | $816,444 | |
| (+) Land Homesite Value: | + | $0 | |
| (+) Land Non-Homesite Value: | + | $310,000 | |
| (+) Curr Use (HS): | + | $0 | $0 |
| (+) Curr Use (NHS): | + | $0 | $0 |
| | | -------------------------- | |
| (=) Market Value: | = | $1,126,444 | |
| (–) Productivity Loss: | – | $0 | |
| | | -------------------------- | |
| (=) Subtotal: | = | $1,126,444 | |
| (+) Senior Appraised Value: | + | $0 | |
| (+) Non-Senior Appraised Value: | + | $1,126,444 | |
| | | -------------------------- | |
| (=) Total Appraised Value: | = | $1,126,444 | |
| (–) Senior Exemption Loss: | – | $0 | |
| (–) Exemption Loss: | – | $0 | |
| | | -------------------------- | |
| (=) Taxable Value: | = | $1,126,444 | |
Taxing Jurisdiction
| Owner: | PASCOE, PETER J | | |
| % Ownership: | 100.0000000000% | | |
| Total Value: | $1,126,444 | | |
| Tax Area: | 112 - APPRAISER-OH Schl Dist, outside OH, improved, greater than 1 acre |
| CF | Conservation Futures | 0.0313996660 | $1,126,444 | $1,126,444 | $35.37 | | |
| CEM1 | Cemetery #1 | 0.0040018856 | $1,126,444 | $1,126,444 | $4.51 | | |
| FIRE2 | Fire & Rescue Dist #2 N Whidbey GEN | 0.5381486274 | $1,126,444 | $1,126,444 | $606.19 | | |
| HOBOND | Hospital BOND | 0.1893405597 | $1,126,444 | $1,126,444 | $213.28 | | |
| HOGEN | Hospital GEN | 0.3848777722 | $1,126,444 | $1,126,444 | $433.54 | | |
| CE | County Current Expense | 0.3674210519 | $1,126,444 | $1,126,444 | $413.88 | | |
| CR | County Roads | 0.4614296361 | $1,126,444 | $1,126,444 | $519.77 | | |
| ISLANDEMS | Hospital GEN (EMS) | 0.4952018576 | $1,126,444 | $1,126,444 | $557.82 | | |
| LIB | Library Sno-Isle GEN | 0.3039084203 | $1,126,444 | $1,126,444 | $342.34 | | |
| NWHIDPRMT | P & R N Whidbey GEN | 0.1990272349 | $1,126,444 | $1,126,444 | $224.19 | | |
| SCH201MO | School 201 Enrichment | 2.3851112745 | $1,126,444 | $1,126,444 | $2,686.69 | | |
| ST | State School | 1.4761226122 | $1,126,444 | $1,126,444 | $1,662.77 | | |
| ST2 | State School Part 2 | 0.7953803475 | $1,126,444 | $1,126,444 | $895.95 | | |
| | Total Tax Rate: | 7.6313709459 | | | | | |
| | | | | Taxes w/Current Exemptions: | $8,596.30 | | |
| | | | | Taxes w/o Exemptions: | $8,596.30 | | |
Improvement / Building
| Improvement #1: | RESIDENTIAL | State Code: | Y | 4021.7 sqft | Value: | $816,444 |
| Bathrooms: | 4.5 | Bedrooms: | 3 | | Ceiling: | DRYWALL PAINTED | Exterior Wall/Cover: | CEMENT FIBER | | Floor Covering: | CERAMIC TILE/CPT 40-60 | Floor Structure: | WOOD W/SUBFLOOR | | Foundation: | CONCRETE | Heating: | FHA GAS | | Interior Finish: | DRYWALL PAINT | Plumbing Fixture Cnt: | 18 | | Roof Slope: | 8" IN 12" | Roof Structure/Cover: | BEAM ASPHALT |
|
| | Type | Description | Class CD | Sub Class CD | Year Built | Area |
| | BAS | BASE/MAIN FLOOR | 5 | 0 | 2005 | 2581.9 |
| | OP4 | OPEN PORCH W/CEILING-ROOF | 5 | 0 | 2005 | 75.1 |
| | AGR | ATTACHED GARAGE | 5 | 0 | 2005 | 826.6 |
| | OWP | OPEN WOOD PORCH W/STEPS | 5 | 0 | 2005 | 44.0 |
| | OWP | OPEN WOOD PORCH W/STEPS | 5 | 0 | 2005 | 165.8 |
| | OWP | OPEN WOOD PORCH W/STEPS | 5 | 0 | 2005 | 552.7 |
| | DWN | DOWNSTAIRS LIVING AREA | 5 | 0 | 2005 | 1439.8 |
| | UTY | STORAGE/UTILITY | 4 | 0 | 2005 | 240.0 |
Sketch
Property Image
Land
| 1 | 18 | AC (02.01-03.00) | 2.1300 | 92782.80 | 0.00 | 0.00 | 1.00 | $310,000 | $0 |
Roll Value History
| 2026 | N/A | N/A | N/A | N/A | N/A |
| 2025 | $816,444 | $310,000 | $0 | $1,126,444 | $1,126,444 |
| 2024 | $825,801 | $290,000 | $0 | $1,115,801 | $1,115,801 |
| 2023 | $835,160 | $280,000 | $0 | $1,115,160 | $1,115,160 |
| 2022 | $752,064 | $250,000 | $0 | $1,002,064 | $1,002,064 |
| 2021 | $565,559 | $200,000 | $0 | $765,559 | $765,559 |
| 2020 | $551,836 | $200,000 | $0 | $751,836 | $751,836 |
| 2019 | $483,186 | $260,000 | $0 | $743,186 | $743,186 |
| 2018 | $484,555 | $225,000 | $0 | $709,555 | $709,555 |
| 2017 | $487,294 | $200,000 | $0 | $687,294 | $687,294 |
| 2016 | $490,732 | $160,000 | $0 | $650,732 | $650,732 |
| 2015 | $496,308 | $170,000 | $0 | $666,308 | $666,308 |
| 2014 | $501,885 | $167,400 | $0 | $669,285 | $669,285 |
| 2013 | $507,459 | $167,400 | $0 | $674,859 | $674,859 |
| 2012 | $513,037 | $167,400 | $0 | $680,437 | $680,437 |
| 2011 | $518,614 | $186,000 | $0 | $704,614 | $704,614 |
| 2010 | $538,917 | $186,000 | $0 | $724,917 | $724,917 |
| 2009 | $561,461 | $155,000 | $0 | $716,461 | $716,461 |
| 2008 | $573,427 | $155,000 | $0 | $728,427 | $728,427 |
| 2007 | $579,580 | $174,000 | $0 | $753,580 | $753,580 |
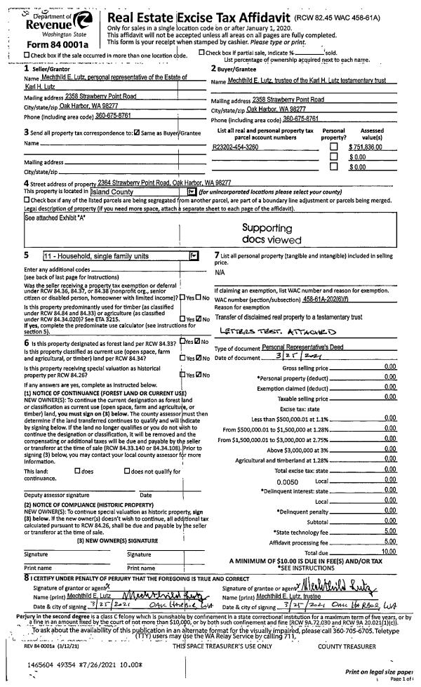
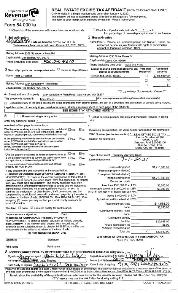
Deed and Sales History
| 1 | 09/01/2021 | WD | Warranty Deed | LUTZ TTEE, MECHTHILD E | PASCOE, PETER J | | | $1,210,000.00 | 49909 | 4528365 |
| 2 | 03/25/2021 | PRD | Personal Representatives Deed | LUTZ, MECHTHILD E | LUTZ TTEE, MECHTHILD E | | | $0.00 | 49354 | 4525437 |
| 3 | 03/25/2021 | QCD | Quit Claim Deed | LUTZ, KARL H | LUTZ, MECHTHILD E | | | $0.00 | 48092 | 4518206 |
| 4 | 02/26/2019 | EZ | Easement | LUTZ, KARL H | MARKLEY, DAVID D | | | $5,500.00 | 37749 | 4459914 |
| 5 | 07/01/1985 | WD | Warranty Deed | CHURCH, DAVID E | LUTZ, KARL H | | | $13,250.00 | 52007 | 85007881 |
| 6 | 06/01/1978 | OTHER | Other - Misc. Documents | Unknown | CHURCH, DAVID E | | | $12,000.00 | 82578 | 339740 |
Payout Agreement
| No payout information available.. |