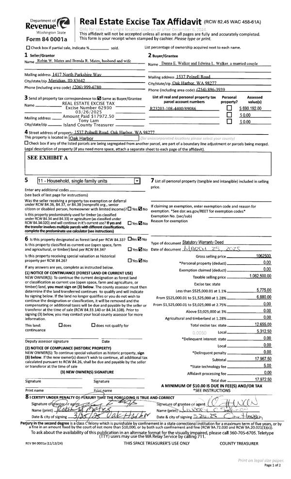
Property
Account |
| Property ID: | 89086 | Abbreviated Legal Description: | 50 - IN GL2: W103' OF E206' OF W412' OF TR C UNREC POLNELL HTS #3 |
| Geographic ID: | R23203-108-4400 | Agent Code: | |
| Type: | Real | | |
| Tax Area: | 112 - APPRAISER-OH Schl Dist, outside OH, improved, greater than 1 acre | Land Use Code | 11 |
| Open Space: | N | DFL | N |
| Historic Property: | N | Remodel Property: | N |
| Multi-Family Redevelopment: | N | | |
| Township: | 32 | Section: | 03 |
| Range: | R2 |
Location |
| Address: | 1537 POLNELL RD OAK HARBOR, WA 98277 | Mapsco: | |
| Neighborhood: | Cycle 6 | Map ID: | 541 |
| Neighborhood CD: | 6 |
Owner |
| Name: | WALKER, DANNA E | Owner ID: | 315930 |
| Mailing Address: | EDWINA L WALKER 1537 POLNELL RD OAK HARBOR, WA 98277 | % Ownership: | 100.0000000000% |
| | | Exemptions: | |
Taxes and Assessment Details
Values
| (+) Improvement Homesite Value: | + | $0 | |
| (+) Improvement Non-Homesite Value: | + | $575,859 | |
| (+) Land Homesite Value: | + | $0 | |
| (+) Land Non-Homesite Value: | + | $270,000 | |
| (+) Curr Use (HS): | + | $0 | $0 |
| (+) Curr Use (NHS): | + | $0 | $0 |
| | | -------------------------- | |
| (=) Market Value: | = | $845,859 | |
| (–) Productivity Loss: | – | $0 | |
| | | -------------------------- | |
| (=) Subtotal: | = | $845,859 | |
| (+) Senior Appraised Value: | + | $0 | |
| (+) Non-Senior Appraised Value: | + | $845,859 | |
| | | -------------------------- | |
| (=) Total Appraised Value: | = | $845,859 | |
| (–) Senior Exemption Loss: | – | $0 | |
| (–) Exemption Loss: | – | $0 | |
| | | -------------------------- | |
| (=) Taxable Value: | = | $845,859 | |
Taxing Jurisdiction
| Owner: | WALKER, DANNA E | | |
| % Ownership: | 100.0000000000% | | |
| Total Value: | $845,859 | | |
| Tax Area: | 112 - APPRAISER-OH Schl Dist, outside OH, improved, greater than 1 acre |
| CF | Conservation Futures | 0.0313996660 | $845,859 | $845,859 | $26.56 | | |
| CEM1 | Cemetery #1 | 0.0040018856 | $845,859 | $845,859 | $3.39 | | |
| FIRE2 | Fire & Rescue Dist #2 N Whidbey GEN | 0.5381486274 | $845,859 | $845,859 | $455.20 | | |
| HOBOND | Hospital BOND | 0.1893405597 | $845,859 | $845,859 | $160.16 | | |
| HOGEN | Hospital GEN | 0.3848777722 | $845,859 | $845,859 | $325.55 | | |
| CE | County Current Expense | 0.3674210519 | $845,859 | $845,859 | $310.79 | | |
| CR | County Roads | 0.4614296361 | $845,859 | $845,859 | $390.30 | | |
| ISLANDEMS | Hospital GEN (EMS) | 0.4952018576 | $845,859 | $845,859 | $418.87 | | |
| LIB | Library Sno-Isle GEN | 0.3039084203 | $845,859 | $845,859 | $257.06 | | |
| NWHIDPRMT | P & R N Whidbey GEN | 0.1990272349 | $845,859 | $845,859 | $168.35 | | |
| SCH201MO | School 201 Enrichment | 2.3851112745 | $845,859 | $845,859 | $2,017.47 | | |
| ST | State School | 1.4761226122 | $845,859 | $845,859 | $1,248.59 | | |
| ST2 | State School Part 2 | 0.7953803475 | $845,859 | $845,859 | $672.78 | | |
| | Total Tax Rate: | 7.6313709459 | | | | | |
| | | | | Taxes w/Current Exemptions: | $6,455.07 | | |
| | | | | Taxes w/o Exemptions: | $6,455.07 | | |
Improvement / Building
| Improvement #1: | RESIDENTIAL | State Code: | Y | 2229.0 sqft | Value: | $575,859 |
| Bathrooms: | 2.5 | Bedrooms: | 3 | | Ceiling: | BEAM PAINTED | Exterior Wall/Cover: | CEMENT FIBER | | Floor Covering: | HARDWOOD/CARP 60-40 | Floor Structure: | SLAB ABOVE GRADE | | Foundation: | SLAB/CONCRETE | Heating: | RADIANT FLOOR | | Interior Finish: | DRYWALL PAINT | Plumbing Fixture Cnt: | 14 | | Roof Slope: | 6" IN 12" | Roof Structure/Cover: | BEAM ASPHALT |
|
| | Type | Description | Class CD | Sub Class CD | Year Built | Area |
| | BAS | BASE/MAIN FLOOR | 4 | 0 | 2017 | 1504.0 |
| | AGR | ATTACHED GARAGE | 4 | 0 | 2017 | 598.0 |
| | DWN | DOWNSTAIRS LIVING AREA | 4 | 0 | 2017 | 725.0 |
| | OWP | OPEN WOOD PORCH W/STEPS | 4 | 0 | 2017 | 544.0 |
| | OP4 | OPEN PORCH W/CEILING-ROOF | 4 | 0 | 2017 | 40.0 |
Sketch
| No sketches available for this property. |
Property Image
Land
| 1 | 17 | AC (01.01-02.00) | 1.1400 | 49658.40 | 0.00 | 0.00 | 1.00 | $270,000 | $0 |
Roll Value History
| 2026 | N/A | N/A | N/A | N/A | N/A |
| 2025 | $575,859 | $270,000 | $0 | $845,859 | $845,859 |
| 2024 | $430,192 | $260,000 | $0 | $690,192 | $690,192 |
| 2023 | $433,689 | $260,000 | $0 | $693,689 | $693,689 |
| 2022 | $395,877 | $220,000 | $0 | $615,877 | $615,877 |
| 2021 | $347,449 | $160,000 | $0 | $507,449 | $507,449 |
| 2020 | $337,366 | $150,000 | $0 | $487,366 | $487,366 |
| 2019 | $263,429 | $220,000 | $0 | $483,429 | $483,429 |
| 2018 | $264,099 | $200,000 | $0 | $464,099 | $464,099 |
| 2017 | $239,562 | $165,000 | $0 | $404,562 | $404,562 |
| 2016 | $0 | $100,000 | $0 | $100,000 | $100,000 |
| 2015 | $0 | $100,000 | $0 | $100,000 | $100,000 |
| 2014 | $0 | $105,000 | $0 | $105,000 | $105,000 |
| 2013 | $0 | $105,000 | $0 | $105,000 | $105,000 |
| 2012 | $0 | $105,000 | $0 | $105,000 | $105,000 |
| 2011 | $0 | $105,000 | $0 | $105,000 | $105,000 |
| 2010 | $0 | $105,000 | $0 | $105,000 | $105,000 |
| 2009 | $0 | $120,000 | $0 | $120,000 | $120,000 |
| 2008 | $0 | $120,000 | $0 | $120,000 | $120,000 |
| 2007 | $0 | $121,800 | $0 | $121,800 | $121,800 |
Deed and Sales History
| 1 | 03/25/2025 | WD | Warranty Deed | MATES, ROBIN W | WALKER, DANNA E | | | $1,062,500.00 | 62930 | 4583682 |
| 2 | 06/14/2010 | WD | Warranty Deed | BURROWS, HUBBARD F | MATES, ROBIN W | | | $115,000.00 | 1571 | 4276236 |
| 3 | 07/01/1995 | QCD | Quit Claim Deed | BURROWS, HUBBARD | BURROWS, HUBBARD F | | | $0.00 | 53533 | 95016185 |
| 4 | 01/01/1900 | OTHER | Other - Misc. Documents | Unknown | BURROWS, HUBBARD | | | $0.00 | 0 | 0 |
Payout Agreement
| No payout information available.. |