Property
Account |
| Property ID: | 90029 | Abbreviated Legal Description: | 18.5600 Acres ins Section 22s Township 32s Range R2s LOT B BLA 009-18 TL 2 - IN GL1;s |
| Geographic ID: | R23222-036-4550 | Agent Code: | |
| Type: | Real | | |
| Tax Area: | 519 - APPRAISER-Stan/Cam Schl Dist, vacant & 50 acres or less | Land Use Code | 91 |
| Open Space: | N | DFL | N |
| Historic Property: | N | Remodel Property: | N |
| Multi-Family Redevelopment: | N | | |
| Township: | 32 | Section: | 22 |
| Range: | R2 |
Location |
| Address: | | Mapsco: | |
| Neighborhood: | North Camano | Map ID: | 552 |
| Neighborhood CD: | 06-C |
Owner |
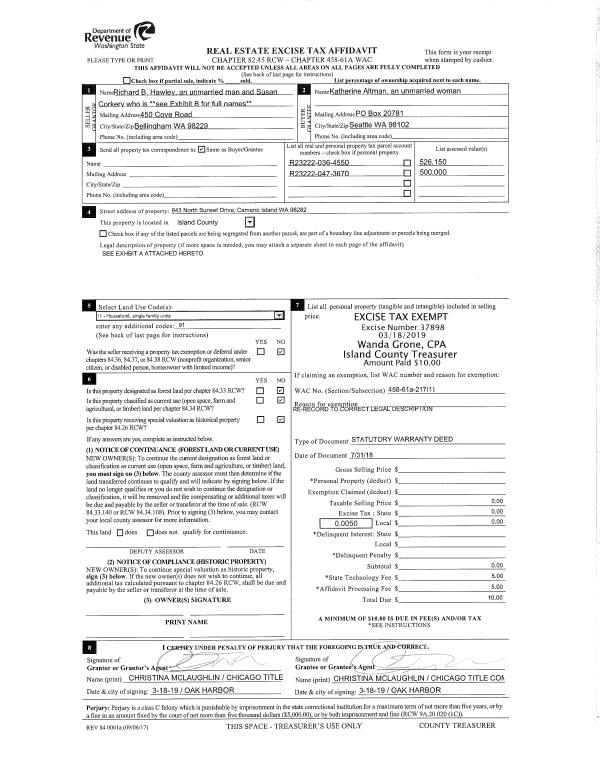
| Name: | ALTMAN, KATHERINE | Owner ID: | 289095 |
| Mailing Address: | PO BOX 20781 SEATTLE, WA 98102 | % Ownership: | 100.0000000000% |
| | | Exemptions: | |
Taxes and Assessment Details
Values
| (+) Improvement Homesite Value: | + | $0 | |
| (+) Improvement Non-Homesite Value: | + | $0 | |
| (+) Land Homesite Value: | + | $0 | |
| (+) Land Non-Homesite Value: | + | $410,000 | |
| (+) Curr Use (HS): | + | $0 | $0 |
| (+) Curr Use (NHS): | + | $0 | $0 |
| | | -------------------------- | |
| (=) Market Value: | = | $410,000 | |
| (–) Productivity Loss: | – | $0 | |
| | | -------------------------- | |
| (=) Subtotal: | = | $410,000 | |
| (+) Senior Appraised Value: | + | $0 | |
| (+) Non-Senior Appraised Value: | + | $410,000 | |
| | | -------------------------- | |
| (=) Total Appraised Value: | = | $410,000 | |
| (–) Senior Exemption Loss: | – | $0 | |
| (–) Exemption Loss: | – | $0 | |
| | | -------------------------- | |
| (=) Taxable Value: | = | $410,000 | |
Taxing Jurisdiction
| Owner: | ALTMAN, KATHERINE | | |
| % Ownership: | 100.0000000000% | | |
| Total Value: | $410,000 | | |
| Tax Area: | 519 - APPRAISER-Stan/Cam Schl Dist, vacant & 50 acres or less |
| CF | Conservation Futures | 0.0313996660 | $410,000 | $410,000 | $12.87 | | |
| EMS1 | Fire & Rescue Dist #1 Camano GEN (EMS) | 0.4998471806 | $410,000 | $410,000 | $204.94 | | |
| CE | County Current Expense | 0.3674210519 | $410,000 | $410,000 | $150.64 | | |
| CR | County Roads | 0.4614296361 | $410,000 | $410,000 | $189.19 | | |
| LIB | Library Sno-Isle GEN | 0.3039084203 | $410,000 | $410,000 | $124.60 | | |
| SCH205_401 | School 205-401 Enrichment | 1.3697998934 | $410,000 | $410,000 | $561.62 | | |
| SCH205BOND | School 205-401 BOND | 0.9354199323 | $410,000 | $410,000 | $383.52 | | |
| ST | State School | 1.4761226122 | $410,000 | $410,000 | $605.21 | | |
| ST2 | State School Part 2 | 0.7953803475 | $410,000 | $410,000 | $326.11 | | |
| | Total Tax Rate: | 6.2407287403 | | | | | |
| | | | | Taxes w/Current Exemptions: | $2,558.70 | | |
| | | | | Taxes w/o Exemptions: | $2,558.70 | | |
Improvement / Building
Sketch
| No sketches available for this property. |
Property Image
Land
| 1 | 35 | AC (10.00-30.99) | 18.5600 | 0.00 | 0.00 | 0.00 | 1.00 | $410,000 | $0 |
Roll Value History
| 2026 | N/A | N/A | N/A | N/A | N/A |
| 2025 | $0 | $410,000 | $0 | $410,000 | $410,000 |
| 2024 | $0 | $380,000 | $0 | $380,000 | $380,000 |
| 2023 | $0 | $370,000 | $0 | $370,000 | $370,000 |
| 2022 | $0 | $350,000 | $0 | $350,000 | $350,000 |
| 2021 | $0 | $180,000 | $0 | $180,000 | $180,000 |
| 2020 | $0 | $150,000 | $0 | $150,000 | $150,000 |
| 2019 | $0 | $150,000 | $0 | $150,000 | $150,000 |
| 2018 | $0 | $150,000 | $0 | $150,000 | $150,000 |
| 2017 | $0 | $500,000 | $0 | $500,000 | $500,000 |
| 2016 | $0 | $500,000 | $4,508 | $4,508 | $4,508 |
| 2015 | $0 | $500,000 | $4,508 | $4,508 | $4,508 |
| 2014 | $0 | $500,000 | $4,508 | $4,508 | $4,508 |
| 2013 | $0 | $527,606 | $4,508 | $4,508 | $4,508 |
| 2012 | $0 | $527,606 | $4,508 | $4,508 | $4,508 |
| 2011 | $0 | $527,606 | $4,508 | $4,508 | $4,508 |
| 2010 | $0 | $527,606 | $4,508 | $4,508 | $4,508 |
| 2009 | $0 | $9,016 | $4,508 | $4,508 | $4,508 |
| 2008 | $0 | $9,016 | $4,508 | $4,508 | $4,508 |
| 2007 | $0 | $9,016 | $4,508 | $4,508 | $4,508 |
Deed and Sales History
| 1 | 07/31/2018 | WD | Warranty Deed | ALTMAN, KATHERINE | ALTMAN, KATHERINE | | | $0.00 | 37898 | 4460616 |
| 2 | 07/31/2018 | WD | Warranty Deed | HAWLEY, RICHARD B | ALTMAN, KATHERINE | | | $550,000.00 | 35343 | 4449427 |
|   | |
| 3 | 07/05/2018 | QCD | Quit Claim Deed | CORKERY, SUSAN | WALTER, AARON ANDREW | | | $0.00 | 34872 | 4447470 |
| 4 | 06/07/2017 | TRUSTEED | Trustee's Deed | EAST MIDLANDS ESTATES HOLDING LLC | HAWLEY, RICHARD B | | | $0.00 | 30831 | 4429044 |
| 5 | 11/25/2013 | WD | Warranty Deed | CORKERY, SUSAN | EAST MIDLANDS ESTATES HOLDING LLC | | | $525,000.00 | 13677 | 4352487 |
|   | |
| 6 | 04/01/1991 | QCD | Quit Claim Deed | CORKERY, SUSAN & | HAWLEY, RICHARD W | | | $0.00 | 12015 | 91008560 |
| 7 | 04/01/1991 | QCD | Quit Claim Deed | HAWLEY, RICHARD W | CORKERY, SUSAN & | | | $0.00 | 12016 | 91008559 |
| 8 | 02/01/1986 | WD | Warranty Deed | HAWLEY, RICHARD W | HAWLEY, RICHARD W | | | $0.00 | 60490 | 86002435 |
| 9 | 01/01/1900 | OTHER | Other - Misc. Documents | Unknown | HAWLEY, RICHARD W | | | $0.00 | 0 | 0 |
Payout Agreement
| No payout information available.. |