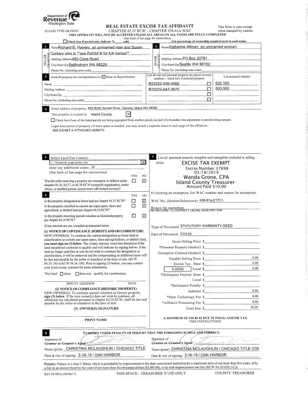
Property
Account |
| Property ID: | 90047 | Abbreviated Legal Description: | 4 - N250' OF S612' OF GL1 LY W OF CO RD INCL ADJ TIDES UNDIV 1/2 INT EA |
| Geographic ID: | R23222-047-3670 | Agent Code: | |
| Type: | Real | | |
| Tax Area: | 512 - APPRAISER-Stan/Cam Schl Dist, improved, greater than 1 acre | Land Use Code | 11 |
| Open Space: | N | DFL | N |
| Historic Property: | N | Remodel Property: | N |
| Multi-Family Redevelopment: | N | | |
| Township: | 32 | Section: | 22 |
| Range: | R2 |
Location |
| Address: | 843 N SUNSET DR CAMANO ISLAND, WA 98282 | Mapsco: | |
| Neighborhood: | North Camano | Map ID: | 552 |
| Neighborhood CD: | 06-C |
Owner |
| Name: | ALTMAN, KATHERINE | Owner ID: | 289095 |
| Mailing Address: | PO BOX 20781 SEATTLE, WA 98102 | % Ownership: | 100.0000000000% |
| | | Exemptions: | |
Taxes and Assessment Details
Values
| (+) Improvement Homesite Value: | + | $0 | |
| (+) Improvement Non-Homesite Value: | + | $230,627 | |
| (+) Land Homesite Value: | + | $0 | |
| (+) Land Non-Homesite Value: | + | $327,050 | |
| (+) Curr Use (HS): | + | $0 | $0 |
| (+) Curr Use (NHS): | + | $0 | $0 |
| | | -------------------------- | |
| (=) Market Value: | = | $557,677 | |
| (–) Productivity Loss: | – | $0 | |
| | | -------------------------- | |
| (=) Subtotal: | = | $557,677 | |
| (+) Senior Appraised Value: | + | $0 | |
| (+) Non-Senior Appraised Value: | + | $557,677 | |
| | | -------------------------- | |
| (=) Total Appraised Value: | = | $557,677 | |
| (–) Senior Exemption Loss: | – | $0 | |
| (–) Exemption Loss: | – | $0 | |
| | | -------------------------- | |
| (=) Taxable Value: | = | $557,677 | |
Taxing Jurisdiction
| Owner: | ALTMAN, KATHERINE | | |
| % Ownership: | 100.0000000000% | | |
| Total Value: | $557,677 | | |
| Tax Area: | 512 - APPRAISER-Stan/Cam Schl Dist, improved, greater than 1 acre |
| CF | Conservation Futures | 0.0313996660 | $557,677 | $557,677 | $17.51 | | |
| EMS1 | Fire & Rescue Dist #1 Camano GEN (EMS) | 0.4998471806 | $557,677 | $557,677 | $278.75 | | |
| FIRE1 | Fire & Rescue Dist #1 Camano GEN | 1.2496603404 | $557,677 | $557,677 | $696.91 | | |
| FIRE1BOND | Fire & Rescue Dist #1 Camano BOND | 0.1630371212 | $557,677 | $557,677 | $90.92 | | |
| CE | County Current Expense | 0.3674210519 | $557,677 | $557,677 | $204.90 | | |
| CR | County Roads | 0.4614296361 | $557,677 | $557,677 | $257.33 | | |
| LIB | Library Sno-Isle GEN | 0.3039084203 | $557,677 | $557,677 | $169.48 | | |
| SCH205_401 | School 205-401 Enrichment | 1.3697998934 | $557,677 | $557,677 | $763.91 | | |
| SCH205BOND | School 205-401 BOND | 0.9354199323 | $557,677 | $557,677 | $521.66 | | |
| ST | State School | 1.4761226122 | $557,677 | $557,677 | $823.20 | | |
| ST2 | State School Part 2 | 0.7953803475 | $557,677 | $557,677 | $443.57 | | |
| | Total Tax Rate: | 7.6534262019 | | | | | |
| | | | | Taxes w/Current Exemptions: | $4,268.14 | | |
| | | | | Taxes w/o Exemptions: | $4,268.14 | | |
Improvement / Building
| Improvement #1: | RESIDENTIAL | State Code: | Y | 1917.0 sqft | Value: | $230,626 |
| Bathrooms: | 1.75 | Bedrooms: | 2 | | Ceiling: | TONGUE & GROOVE | Exterior Wall/Cover: | PLY/HARDBOARD T-111 | | Floor Covering: | CARPET/VINYL 80-20 | Floor Structure: | WOOD W/SUBFLOOR | | Foundation: | CONCRETE | Heating: | FHA ELECTRIC | | Interior Finish: | DRYWALL PAINT | Plumbing Fixture Cnt: | 10 | | Roof Slope: | 3" IN 12" | Roof Structure/Cover: | BEAM BUILT-UP ROCK |
|
| | Type | Description | Class CD | Sub Class CD | Year Built | Area |
| | BAS | BASE/MAIN FLOOR | 3 | 0 | 1968 | 1917.0 |
| | UTY | STORAGE/UTILITY | 3 | 0 | 1968 | 480.0 |
| | UTY | STORAGE/UTILITY | 3 | 0 | 1968 | 260.0 |
| | oIMP | LAND PREP | 3 | 0 | 1968 | 600.0 |
| | UTY | STORAGE/UTILITY | 3 | 0 | 1968 | 276.0 |
| | OP4 | OPEN PORCH W/CEILING-ROOF | 3 | 0 | 1968 | 251.0 |
| | OWC | OPEN WOOD PORCH W/STEPS/ROOF/C | 3 | 0 | 1968 | 482.0 |
| | OCP | OPEN CARPORT | 3 | 0 | 1968 | 600.0 |
| Improvement #2: | RESIDENTIAL | State Code: | Y | 833.0 sqft | Value: | $1 |
| Bathrooms: | 1 | Bedrooms: | 1 | | Ceiling: | TONGUE & GROOVE | Exterior Wall/Cover: | WOOD SIDING | | Floor Covering: | VINYL 100% | Floor Structure: | WOOD W/SUBFLOOR | | Foundation: | CONCRETE BLOCKS | Heating: | BASEBOARD ELECTRIC | | Interior Finish: | DRYWALL PAINT | Plumbing Fixture Cnt: | 5 | | Roof Slope: | 5" IN 12" | Roof Structure/Cover: | CJ ALUMINIUM HEAVY |
|
Sketch
Property Image
Land
| 1 | HB | HIGH BLUFF | 0.0000 | 0.00 | 250.00 | 0.00 | 1.00 | $325,000 | $0 |
| 2 | 55 | TIDES | 0.0000 | 0.00 | 250.00 | 0.00 | 1.00 | $2,050 | $0 |
Roll Value History
| 2026 | N/A | N/A | N/A | N/A | N/A |
| 2025 | $230,627 | $327,050 | $0 | $557,677 | $557,677 |
| 2024 | $234,805 | $327,050 | $0 | $561,855 | $561,855 |
| 2023 | $188,981 | $652,050 | $0 | $841,031 | $841,031 |
| 2022 | $27,590 | $752,050 | $0 | $779,640 | $779,640 |
| 2021 | $24,513 | $552,050 | $0 | $576,563 | $576,563 |
| 2020 | $23,770 | $452,050 | $0 | $475,820 | $475,820 |
| 2019 | $18,599 | $382,050 | $0 | $400,649 | $400,649 |
| 2018 | $124,100 | $402,050 | $0 | $526,150 | $526,150 |
| 2017 | $125,422 | $402,050 | $0 | $527,472 | $527,472 |
| 2016 | $133,892 | $402,050 | $0 | $535,942 | $535,942 |
| 2015 | $136,717 | $402,050 | $0 | $538,767 | $538,767 |
| 2014 | $139,541 | $402,050 | $0 | $541,591 | $541,591 |
| 2013 | $151,628 | $577,442 | $0 | $729,070 | $729,070 |
| 2012 | $154,462 | $577,442 | $0 | $731,904 | $731,904 |
| 2011 | $157,292 | $721,290 | $0 | $878,582 | $878,582 |
| 2010 | $185,886 | $879,620 | $0 | $1,065,506 | $1,065,506 |
| 2009 | $194,388 | $945,640 | $0 | $1,140,028 | $1,140,028 |
| 2008 | $197,615 | $909,439 | $0 | $1,107,054 | $1,107,054 |
| 2007 | $200,840 | $907,689 | $0 | $1,108,529 | $1,108,529 |
Deed and Sales History
| 1 | 07/31/2018 | WD | Warranty Deed | ALTMAN, KATHERINE | ALTMAN, KATHERINE | | | $0.00 | 37898 | 4460616 |
| 2 | 07/31/2018 | WD | Warranty Deed | HAWLEY, RICHARD B | ALTMAN, KATHERINE | | | $550,000.00 | 35343 | 4449427 |
|   | |
| 3 | 06/07/2017 | TRUSTEED | Trustee's Deed | EAST MIDLANDS ESTATES HOLDING LLC | HAWLEY, RICHARD B | | | $0.00 | 30831 | 4429044 |
| 4 | 11/25/2013 | WD | Warranty Deed | CORKERY, SUSAN | EAST MIDLANDS ESTATES HOLDING LLC | | | $525,000.00 | 13677 | 4352487 |
|   | |
| 5 | 04/01/1991 | QCD | Quit Claim Deed | HAWLEY, RICHARD W | CORKERY, SUSAN & | | | $0.00 | 12016 | 91008559 |
| 6 | 04/01/1991 | QCD | Quit Claim Deed | CORKERY, SUSAN & | HAWLEY, RICHARD W | | | $0.00 | 12015 | 91008560 |
| 7 | 02/01/1986 | WD | Warranty Deed | HAWLEY, RICHARD W | HAWLEY, RICHARD W | | | $0.00 | 60490 | 86002435 |
| 8 | 01/01/1900 | OTHER | Other - Misc. Documents | Unknown | HAWLEY, RICHARD W | | | $0.00 | 0 | 0 |
Payout Agreement
| No payout information available.. |