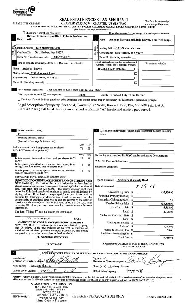
Property
Account |
| Property ID: | 90243 | Abbreviated Legal Description: | 5 - IN GL2: BG 1016.73'W OF SECR GL3 S11*E30.65' S34*W 30.18' N64*W129.04' TO NLN GL2 E TPB |
| Geographic ID: | R23222-268-4250 | Agent Code: | |
| Type: | Real | | |
| Tax Area: | 519 - APPRAISER-Stan/Cam Schl Dist, vacant & 50 acres or less | Land Use Code | 91 |
| Open Space: | N | DFL | N |
| Historic Property: | N | Remodel Property: | N |
| Multi-Family Redevelopment: | N | | |
| Township: | 32 | Section: | 22 |
| Range: | R2 |
Location |
| Address: | CAMANO ISLAND, WA 98282 | Mapsco: | |
| Neighborhood: | North Camano | Map ID: | 552 |
| Neighborhood CD: | 06-C |
Owner |
| Name: | MCDOWELL, JAMES EARL | Owner ID: | 286476 |
| Mailing Address: | 874 BROKAW RD CAMANO ISLAND, WA 98282 | % Ownership: | 100.0000000000% |
| | | Exemptions: | |
Taxes and Assessment Details
Values
| (+) Improvement Homesite Value: | + | $0 | |
| (+) Improvement Non-Homesite Value: | + | $0 | |
| (+) Land Homesite Value: | + | $0 | |
| (+) Land Non-Homesite Value: | + | $17,000 | |
| (+) Curr Use (HS): | + | $0 | $0 |
| (+) Curr Use (NHS): | + | $0 | $0 |
| | | -------------------------- | |
| (=) Market Value: | = | $17,000 | |
| (–) Productivity Loss: | – | $0 | |
| | | -------------------------- | |
| (=) Subtotal: | = | $17,000 | |
| (+) Senior Appraised Value: | + | $0 | |
| (+) Non-Senior Appraised Value: | + | $17,000 | |
| | | -------------------------- | |
| (=) Total Appraised Value: | = | $17,000 | |
| (–) Senior Exemption Loss: | – | $0 | |
| (–) Exemption Loss: | – | $0 | |
| | | -------------------------- | |
| (=) Taxable Value: | = | $17,000 | |
Taxing Jurisdiction
| Owner: | MCDOWELL, JAMES EARL | | |
| % Ownership: | 100.0000000000% | | |
| Total Value: | $17,000 | | |
| Tax Area: | 519 - APPRAISER-Stan/Cam Schl Dist, vacant & 50 acres or less |
| CF | Conservation Futures | 0.0313996660 | $17,000 | $17,000 | $0.53 | | |
| EMS1 | Fire & Rescue Dist #1 Camano GEN (EMS) | 0.4998471806 | $17,000 | $17,000 | $8.50 | | |
| CE | County Current Expense | 0.3674210519 | $17,000 | $17,000 | $6.25 | | |
| CR | County Roads | 0.4614296361 | $17,000 | $17,000 | $7.84 | | |
| LIB | Library Sno-Isle GEN | 0.3039084203 | $17,000 | $17,000 | $5.17 | | |
| SCH205_401 | School 205-401 Enrichment | 1.3697998934 | $17,000 | $17,000 | $23.29 | | |
| SCH205BOND | School 205-401 BOND | 0.9354199323 | $17,000 | $17,000 | $15.90 | | |
| ST | State School | 1.4761226122 | $17,000 | $17,000 | $25.09 | | |
| ST2 | State School Part 2 | 0.7953803475 | $17,000 | $17,000 | $13.52 | | |
| | Total Tax Rate: | 6.2407287403 | | | | | |
| | | | | Taxes w/Current Exemptions: | $106.09 | | |
| | | | | Taxes w/o Exemptions: | $106.09 | | |
Improvement / Building
Sketch
| No sketches available for this property. |
Property Image
Land
| 1 | 12 | SQ (00000-06000) | 0.0900 | 3920.40 | 0.00 | 0.00 | 1.00 | $17,000 | $0 |
Roll Value History
| 2026 | N/A | N/A | N/A | N/A | N/A |
| 2025 | $0 | $17,000 | $0 | $17,000 | $17,000 |
| 2024 | $0 | $17,000 | $0 | $17,000 | $17,000 |
| 2023 | $0 | $9,000 | $0 | $9,000 | $9,000 |
| 2022 | $0 | $9,000 | $0 | $9,000 | $9,000 |
| 2021 | $0 | $7,000 | $0 | $7,000 | $7,000 |
| 2020 | $0 | $7,000 | $0 | $7,000 | $7,000 |
| 2019 | $0 | $7,000 | $0 | $7,000 | $7,000 |
| 2018 | $0 | $7,000 | $0 | $7,000 | $7,000 |
| 2017 | $0 | $13,920 | $0 | $13,920 | $13,920 |
| 2016 | $0 | $13,920 | $0 | $13,920 | $13,920 |
| 2015 | $0 | $13,920 | $0 | $13,920 | $13,920 |
| 2014 | $0 | $13,920 | $0 | $13,920 | $13,920 |
| 2013 | $0 | $13,920 | $0 | $13,920 | $13,920 |
| 2012 | $0 | $13,920 | $0 | $13,920 | $13,920 |
| 2011 | $0 | $13,920 | $0 | $13,920 | $13,920 |
| 2010 | $0 | $13,920 | $0 | $13,920 | $13,920 |
| 2009 | $0 | $28,900 | $0 | $28,900 | $28,900 |
Deed and Sales History
| 1 | 08/09/2018 | WD | Warranty Deed | THORNLUND, DIANA MARIE | MCDOWELL, JAMES EARL | | | $300,000.00 | 35469 | 4449954 |
|   | |
| 2 | 06/29/2018 | BARGSLD | Bargain And Sale Deed | THORNLUND TRUSTEE, DIANE MARIE | THORNLUND, DIANA MARIE | | | $0.00 | 34907 | 4447633 |
| 3 | 05/15/2009 | PRD | Personal Representatives Deed | MCDOWELL, ELOISE | THORNLUND TRUSTEE, DIANE MARIE | | | $0.00 | 91140 | 4252175 |
| 4 | 01/06/2003 | PRD | Personal Representatives Deed | MCDOWELL, GAYLE G | MCDOWELL, ELOISE | | | $0.00 | 30089 | 4043436 |
| 5 | 09/01/1994 | WD | Warranty Deed | RAMBECK, LEROY S | MCDOWELL, GAYLE G | | | $860.00 | 44009 | 94020715 |
| 6 | 01/01/1900 | OTHER | Other - Misc. Documents | Unknown | RAMBECK, LEROY S | | | $0.00 | 0 | 0 |
Payout Agreement
| No payout information available.. |