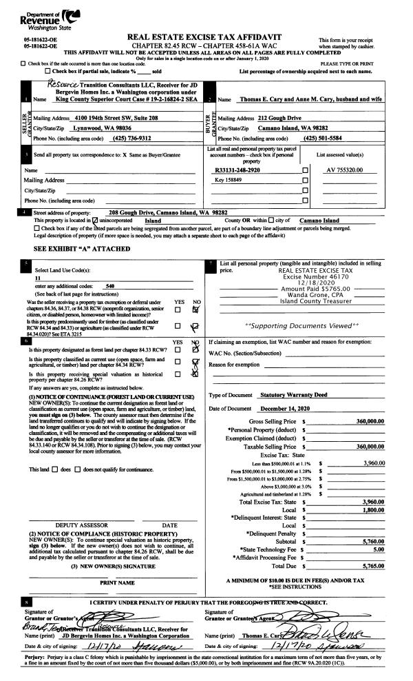
Property
Account |
| Property ID: | 90528 | Abbreviated Legal Description: | 18 - N/2 N/2 S/2 SE SW EX E/4 THEREOF EX RD & ALSO S/2 N/2 SE SW EX E/4 THEROF EX RD SUB EZ AF#389799 TGW & SUB EZ AF#88007013 |
| Geographic ID: | R23223-075-1810 | Agent Code: | |
| Type: | Real | | |
| Tax Area: | 512 - APPRAISER-Stan/Cam Schl Dist, improved, greater than 1 acre | Land Use Code | 11 |
| Open Space: | N | DFL | N |
| Historic Property: | N | Remodel Property: | N |
| Multi-Family Redevelopment: | N | | |
| Township: | 32 | Section: | 23 |
| Range: | R2 |
Location |
| Address: | 660 SALAL HILL LN CAMANO ISLAND, WA 98282 | Mapsco: | |
| Neighborhood: | North Camano | Map ID: | 554 |
| Neighborhood CD: | 06-C |
Owner |
| Name: | SMITH TTEE, CHRISTOPHER B | Owner ID: | 297528 |
| Mailing Address: | DANIELLE MICHELLE INGERSOLL TTEE 4062 MORNING STAR RD HUNTINGTON BEACH, CA 92649 | % Ownership: | 100.0000000000% |
| | | Exemptions: | |
Taxes and Assessment Details
Values
| (+) Improvement Homesite Value: | + | $0 | |
| (+) Improvement Non-Homesite Value: | + | $775,605 | |
| (+) Land Homesite Value: | + | $0 | |
| (+) Land Non-Homesite Value: | + | $380,000 | |
| (+) Curr Use (HS): | + | $0 | $0 |
| (+) Curr Use (NHS): | + | $0 | $0 |
| | | -------------------------- | |
| (=) Market Value: | = | $1,155,605 | |
| (–) Productivity Loss: | – | $0 | |
| | | -------------------------- | |
| (=) Subtotal: | = | $1,155,605 | |
| (+) Senior Appraised Value: | + | $0 | |
| (+) Non-Senior Appraised Value: | + | $1,155,605 | |
| | | -------------------------- | |
| (=) Total Appraised Value: | = | $1,155,605 | |
| (–) Senior Exemption Loss: | – | $0 | |
| (–) Exemption Loss: | – | $0 | |
| | | -------------------------- | |
| (=) Taxable Value: | = | $1,155,605 | |
Taxing Jurisdiction
| Owner: | SMITH TTEE, CHRISTOPHER B | | |
| % Ownership: | 100.0000000000% | | |
| Total Value: | $1,155,605 | | |
| Tax Area: | 512 - APPRAISER-Stan/Cam Schl Dist, improved, greater than 1 acre |
| CF | Conservation Futures | 0.0313996660 | $1,155,605 | $1,155,605 | $36.29 | | |
| EMS1 | Fire & Rescue Dist #1 Camano GEN (EMS) | 0.4998471806 | $1,155,605 | $1,155,605 | $577.63 | | |
| FIRE1 | Fire & Rescue Dist #1 Camano GEN | 1.2496603404 | $1,155,605 | $1,155,605 | $1,444.11 | | |
| FIRE1BOND | Fire & Rescue Dist #1 Camano BOND | 0.1630371212 | $1,155,605 | $1,155,605 | $188.41 | | |
| CE | County Current Expense | 0.3674210519 | $1,155,605 | $1,155,605 | $424.59 | | |
| CR | County Roads | 0.4614296361 | $1,155,605 | $1,155,605 | $533.23 | | |
| LIB | Library Sno-Isle GEN | 0.3039084203 | $1,155,605 | $1,155,605 | $351.20 | | |
| SCH205_401 | School 205-401 Enrichment | 1.3697998934 | $1,155,605 | $1,155,605 | $1,582.95 | | |
| SCH205BOND | School 205-401 BOND | 0.9354199323 | $1,155,605 | $1,155,605 | $1,080.98 | | |
| ST | State School | 1.4761226122 | $1,155,605 | $1,155,605 | $1,705.81 | | |
| ST2 | State School Part 2 | 0.7953803475 | $1,155,605 | $1,155,605 | $919.15 | | |
| | Total Tax Rate: | 7.6534262019 | | | | | |
| | | | | Taxes w/Current Exemptions: | $8,844.35 | | |
| | | | | Taxes w/o Exemptions: | $8,844.35 | | |
Improvement / Building
| Improvement #1: | RESIDENTIAL | State Code: | Y | 4255.2 sqft | Value: | $775,605 |
| Bathrooms: | 4 | Bedrooms: | 4 | | Ceiling: | DRYWALL PAINTED | Exterior Wall/Cover: | WOOD SIDING | | Floor Covering: | HARDWOOD/CARP 60-40 | Floor Structure: | WOOD W/SUBFLOOR | | Foundation: | CONCRETE | Heating: | FHA ELECTRIC | | Interior Finish: | DRYWALL PAINT | Plumbing Fixture Cnt: | 15 | | Roof Slope: | 8" IN 12" | Roof Structure/Cover: | CJ WOOD SHAKES |
|
| | Type | Description | Class CD | Sub Class CD | Year Built | Area |
| | BAS | BASE/MAIN FLOOR | 5 | 0 | 1981 | 2985.6 |
| | UPS | UPPER STORY | 5 | 0 | 1981 | 1269.6 |
| | OWP | OPEN WOOD PORCH W/STEPS | 5 | 0 | 1981 | 1034.0 |
| | OP4 | OPEN PORCH W/CEILING-ROOF | 5 | 0 | 1981 | 30.0 |
| | OWC | OPEN WOOD PORCH W/STEPS/ROOF/C | 5 | 0 | 1981 | 128.0 |
| | OP3 | OPEN PORCH W/ROOF | 5 | 0 | 1981 | 416.0 |
| | DGR | DETACHED GARAGE | 5 | 0 | 1981 | 240.0 |
| | DGR | DETACHED GARAGE | 5 | 0 | 1981 | 936.0 |
| | UTY | STORAGE/UTILITY | 5 | 0 | 1981 | 416.0 |
Sketch
Property Image
Land
| 1 | 35 | AC (10.00-30.99) | 10.9000 | 474804.00 | 0.00 | 0.00 | 1.00 | $380,000 | $0 |
Roll Value History
| 2026 | N/A | N/A | N/A | N/A | N/A |
| 2025 | $775,605 | $380,000 | $0 | $1,155,605 | $1,155,605 |
| 2024 | $786,193 | $360,000 | $0 | $1,146,193 | $1,146,193 |
| 2023 | $796,782 | $340,000 | $0 | $1,136,782 | $1,136,782 |
| 2022 | $654,385 | $290,000 | $0 | $944,385 | $944,385 |
| 2021 | $577,368 | $210,000 | $0 | $787,368 | $787,368 |
| 2020 | $565,220 | $200,000 | $0 | $765,220 | $765,220 |
| 2019 | $506,142 | $250,000 | $0 | $756,142 | $756,142 |
| 2018 | $507,918 | $220,000 | $0 | $727,918 | $727,918 |
| 2017 | $511,470 | $140,000 | $0 | $651,470 | $651,470 |
| 2016 | $518,573 | $140,000 | $0 | $658,573 | $658,573 |
| 2015 | $511,567 | $332,301 | $0 | $843,868 | $843,868 |
| 2014 | $511,567 | $332,301 | $0 | $843,868 | $843,868 |
| 2013 | $511,567 | $332,301 | $0 | $843,868 | $843,868 |
| 2012 | $511,567 | $332,301 | $0 | $843,868 | $843,868 |
| 2011 | $511,567 | $332,301 | $0 | $843,868 | $843,868 |
| 2010 | $547,551 | $332,301 | $0 | $879,852 | $879,852 |
| 2009 | $563,505 | $433,694 | $0 | $997,199 | $997,199 |
| 2008 | $571,158 | $456,353 | $0 | $1,027,511 | $1,027,511 |
| 2007 | $579,127 | $456,353 | $0 | $1,035,480 | $1,035,480 |
Deed and Sales History
| 1 | 11/19/2020 | WD | Warranty Deed | SMITH TTEE, CHRISTOPHER C | SMITH TTEE, CHRISTOPHER B | | | $0.00 | 46226 | 4505992 |
| 2 | 12/21/2006 | WD | Warranty Deed | LUNDRIGAN, KENNETH W | SMITH TTEE, CHRISTOPHER C | | | $909,400.00 | 65371 | 4190379 |
| 3 | 04/01/1996 | WD | Warranty Deed | GARRISON, LAURA J | LUNDRIGAN, KENNETH W | | | $440,200.00 | 61519 | 96007593 |
| 4 | 08/01/1995 | WD | Warranty Deed | BIVINS, EARL M | GARRISON, LAURA J | | | $429,600.00 | 53024 | 95014019 |
| 5 | 08/01/1988 | WD | Warranty Deed | BIVINS, EARL M | BIVINS, EARL M | | | $171,200.00 | 82545 | 88009589 |
| 6 | 06/01/1988 | EZ | Easement | VAN, SCOY, A | BIVINS, EARL M | | | $0.00 | 81904 | 88007013 |
| 7 | 06/01/1984 | EZ | Easement | VAN, SCOY, A | VAN, SCOY, A | | | $0.00 | 60663 | 389799 |
| 8 | 09/01/1980 | WD | Warranty Deed | GUNDERSON, LEONARD O | VAN, SCOY, A | | | $18,250.00 | 2913 | 373136 |
| 9 | 01/01/1900 | OTHER | Other - Misc. Documents | Unknown | GUNDERSON, LEONARD O | | | $0.00 | 0 | 0 |
Payout Agreement
| No payout information available.. |