Property
Account |
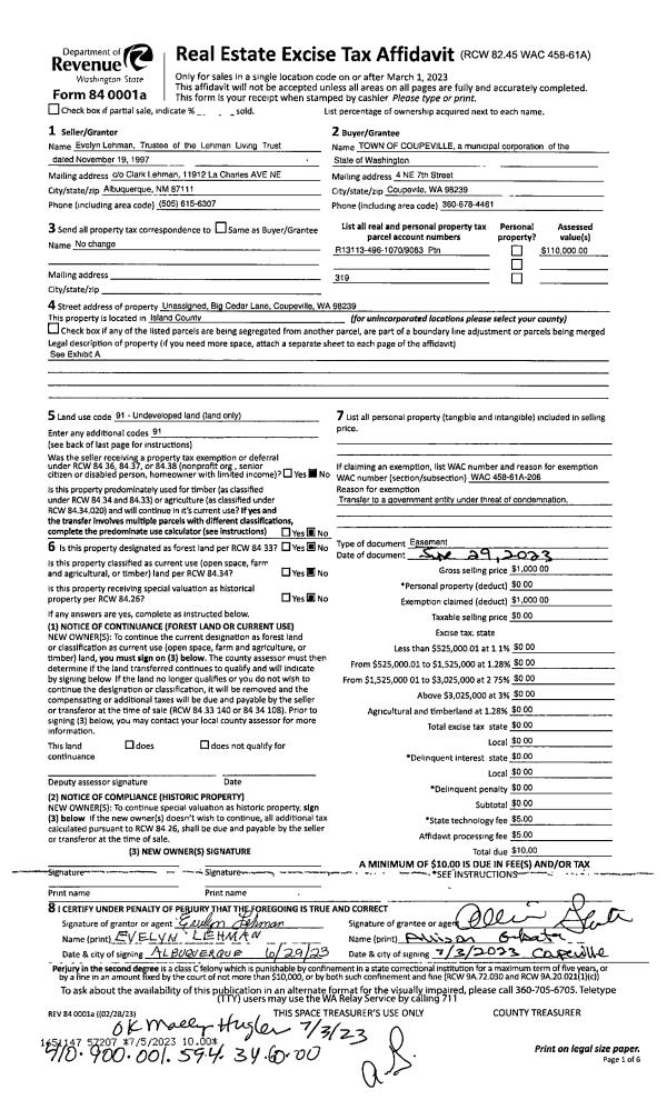
| Property ID: | 9083 | Abbreviated Legal Description: | 51 - W/2 E/2 NE NW NW SUBJ TO EZ ON S30' |
| Geographic ID: | R13113-496-1070 | Agent Code: | |
| Type: | Real | | |
| Tax Area: | 319 - APPRAISER-Cpvl Schl Dist, outside Cpvl, vacant & 50 acres or less | Land Use Code | 91 |
| Open Space: | N | DFL | N |
| Historic Property: | N | Remodel Property: | N |
| Multi-Family Redevelopment: | N | | |
| Township: | 31 | Section: | 13 |
| Range: | R1 |
Location |
| Address: | | Mapsco: | |
| Neighborhood: | Cycle 2 | Map ID: | 60 |
| Neighborhood CD: | 2 |
Owner |
| Name: | LEHMAN TRUSTEE, EVELYN | Owner ID: | 111851 |
| Mailing Address: | 11912 LA CHARLES AVE NE ALBUQUERQUE, NM 87111 | % Ownership: | 100.0000000000% |
| | | Exemptions: | |
Taxes and Assessment Details
Values
| (+) Improvement Homesite Value: | + | $0 | |
| (+) Improvement Non-Homesite Value: | + | $0 | |
| (+) Land Homesite Value: | + | $0 | |
| (+) Land Non-Homesite Value: | + | $126,666 | |
| (+) Curr Use (HS): | + | $0 | $0 |
| (+) Curr Use (NHS): | + | $0 | $0 |
| | | -------------------------- | |
| (=) Market Value: | = | $126,666 | |
| (–) Productivity Loss: | – | $0 | |
| | | -------------------------- | |
| (=) Subtotal: | = | $126,666 | |
| (+) Senior Appraised Value: | + | $0 | |
| (+) Non-Senior Appraised Value: | + | $126,666 | |
| | | -------------------------- | |
| (=) Total Appraised Value: | = | $126,666 | |
| (–) Senior Exemption Loss: | – | $0 | |
| (–) Exemption Loss: | – | $0 | |
| | | -------------------------- | |
| (=) Taxable Value: | = | $126,666 | |
Taxing Jurisdiction
| Owner: | LEHMAN TRUSTEE, EVELYN | | |
| % Ownership: | 100.0000000000% | | |
| Total Value: | $126,666 | | |
| Tax Area: | 319 - APPRAISER-Cpvl Schl Dist, outside Cpvl, vacant & 50 acres or less |
| CF | Conservation Futures | 0.0313996660 | $126,666 | $126,666 | $3.98 | | |
| CEM2 | Cemetery #2 | 0.0092609791 | $126,666 | $126,666 | $1.17 | | |
| HOBOND | Hospital BOND | 0.1893405597 | $126,666 | $126,666 | $23.98 | | |
| HOGEN | Hospital GEN | 0.3848777722 | $126,666 | $126,666 | $48.75 | | |
| CE | County Current Expense | 0.3674210519 | $126,666 | $126,666 | $46.54 | | |
| CR | County Roads | 0.4614296361 | $126,666 | $126,666 | $58.45 | | |
| ISLANDEMS | Hospital GEN (EMS) | 0.4952018576 | $126,666 | $126,666 | $62.73 | | |
| LIB | Library Sno-Isle GEN | 0.3039084203 | $126,666 | $126,666 | $38.49 | | |
| LIBCAP | Library Sno-Isle BOND (Cap Fac Imp Area) | 0.0528562629 | $126,666 | $126,666 | $6.70 | | |
| POCOUP | Port of Coupeville GEN | 0.1065226063 | $126,666 | $126,666 | $13.49 | | |
| POCOUPIDD | Port of Coupeville IDD | 0.3353038577 | $126,666 | $126,666 | $42.47 | | |
| COUPSDTECH | School 204 CP (TECH) | 0.1215123397 | $126,666 | $126,666 | $15.39 | | |
| SCH204MO | School 204 Enrichment | 0.6416662518 | $126,666 | $126,666 | $81.28 | | |
| ST | State School | 1.4761226122 | $126,666 | $126,666 | $186.97 | | |
| ST2 | State School Part 2 | 0.7953803475 | $126,666 | $126,666 | $100.75 | | |
| | Total Tax Rate: | 5.7722042210 | | | | | |
| | | | | Taxes w/Current Exemptions: | $731.14 | | |
| | | | | Taxes w/o Exemptions: | $731.14 | | |
Improvement / Building
Sketch
| No sketches available for this property. |
Property Image
Land
| 1 | 91 | UNDEVELOPED LAND-METES AND BOUNDS | 2.5000 | 108900.00 | 0.00 | 0.00 | 1.00 | $126,666 | $0 |
Roll Value History
| 2026 | N/A | N/A | N/A | N/A | N/A |
| 2025 | $0 | $126,666 | $0 | $126,666 | $126,666 |
| 2024 | $0 | $130,000 | $0 | $130,000 | $130,000 |
| 2023 | $0 | $120,000 | $0 | $120,000 | $120,000 |
| 2022 | $0 | $110,000 | $0 | $110,000 | $110,000 |
| 2021 | $0 | $75,000 | $0 | $75,000 | $75,000 |
| 2020 | $0 | $75,000 | $0 | $75,000 | $75,000 |
| 2019 | $0 | $75,000 | $0 | $75,000 | $75,000 |
| 2018 | $0 | $55,000 | $0 | $55,000 | $55,000 |
| 2017 | $0 | $40,000 | $0 | $40,000 | $40,000 |
| 2016 | $0 | $40,000 | $0 | $40,000 | $40,000 |
| 2015 | $0 | $85,000 | $0 | $85,000 | $85,000 |
| 2014 | $0 | $85,000 | $0 | $85,000 | $85,000 |
| 2013 | $0 | $72,250 | $0 | $72,250 | $72,250 |
| 2012 | $0 | $72,250 | $0 | $72,250 | $72,250 |
| 2011 | $0 | $72,250 | $0 | $72,250 | $72,250 |
| 2010 | $0 | $72,250 | $0 | $72,250 | $72,250 |
| 2009 | $0 | $85,000 | $0 | $85,000 | $85,000 |
| 2008 | $0 | $85,000 | $0 | $85,000 | $85,000 |
| 2007 | $0 | $85,000 | $0 | $85,000 | $85,000 |
Deed and Sales History
| 1 | 06/29/2023 | EZ | Easement | LEHMAN TRUSTEE, EVELYN | TOWN OF COUPEVILLE | | | $0.00 | 57207 | 4561840 |
| 2 | 11/19/2008 | OTHER | Other - Misc. Documents | LEHMAN, ROBERT C | LEHMAN TTEE, EVELYN | | | $0.00 | 81033 | 0 |
| 3 | 06/24/1998 | WD | Warranty Deed | LEHMAN, ROBERT C | LEHMAN, ROBERT C | | | $0.00 | 82772 | 98014381 |
| 4 | 01/01/1900 | OTHER | Other - Misc. Documents | Unknown | LEHMAN, ROBERT C | | | $0.00 | 0 | 0 |
| 5 | 01/01/1900 | OTHER | Other - Misc. Documents | LEHMAN, ROBERT C | LEHMAN, ROBERT C | | | $0.00 | 82777 | 98014381 |
Payout Agreement
| No payout information available.. |