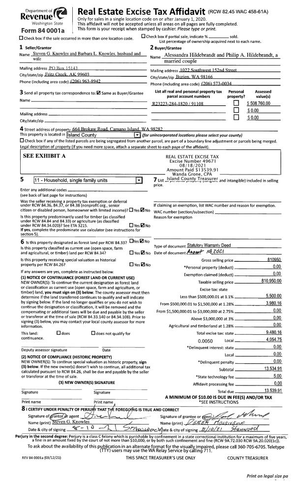
Property
Account |
| Property ID: | 91108 | Abbreviated Legal Description: | 54 - IN SW SE NW:BG 236.81' N & 15'E OF SW CR SENW N79* E190'TPB N79*E437'S311'TO RD W & NWLY ALG RD TP S TPB N TPB TGW INT IN SPRING TGW BG SW CR SE NW N236.8' N89* E15' N80*E190' N80*E437' TPB N80*E137.88' S331' TO NLN CO RD N89*W136.2' TP S0*E FR TPB N |
| Geographic ID: | R23223-284-1820 | Agent Code: | |
| Type: | Real | | |
| Tax Area: | 512 - APPRAISER-Stan/Cam Schl Dist, improved, greater than 1 acre | Land Use Code | 11 |
| Open Space: | N | DFL | N |
| Historic Property: | N | Remodel Property: | N |
| Multi-Family Redevelopment: | N | | |
| Township: | 32 | Section: | 23 |
| Range: | R2 |
Location |
| Address: | 664 BROKAW RD CAMANO ISLAND, WA 98282 | Mapsco: | |
| Neighborhood: | North Camano | Map ID: | 556 |
| Neighborhood CD: | 06-C |
Owner |
| Name: | HILDEBRANDT, ALESSANDRA | Owner ID: | 300824 |
| Mailing Address: | PHILIP A HILDEBRANDT 664 BROKAW RD CAMANO ISLAND, WA 98282 | % Ownership: | 100.0000000000% |
| | | Exemptions: | |
Taxes and Assessment Details
Values
| (+) Improvement Homesite Value: | + | $0 | |
| (+) Improvement Non-Homesite Value: | + | $482,005 | |
| (+) Land Homesite Value: | + | $0 | |
| (+) Land Non-Homesite Value: | + | $310,000 | |
| (+) Curr Use (HS): | + | $0 | $0 |
| (+) Curr Use (NHS): | + | $0 | $0 |
| | | -------------------------- | |
| (=) Market Value: | = | $792,005 | |
| (–) Productivity Loss: | – | $0 | |
| | | -------------------------- | |
| (=) Subtotal: | = | $792,005 | |
| (+) Senior Appraised Value: | + | $0 | |
| (+) Non-Senior Appraised Value: | + | $792,005 | |
| | | -------------------------- | |
| (=) Total Appraised Value: | = | $792,005 | |
| (–) Senior Exemption Loss: | – | $0 | |
| (–) Exemption Loss: | – | $0 | |
| | | -------------------------- | |
| (=) Taxable Value: | = | $792,005 | |
Taxing Jurisdiction
| Owner: | HILDEBRANDT, ALESSANDRA | | |
| % Ownership: | 100.0000000000% | | |
| Total Value: | $792,005 | | |
| Tax Area: | 512 - APPRAISER-Stan/Cam Schl Dist, improved, greater than 1 acre |
| CF | Conservation Futures | 0.0313996660 | $792,005 | $792,005 | $24.87 | | |
| EMS1 | Fire & Rescue Dist #1 Camano GEN (EMS) | 0.4998471806 | $792,005 | $792,005 | $395.88 | | |
| FIRE1 | Fire & Rescue Dist #1 Camano GEN | 1.2496603404 | $792,005 | $792,005 | $989.74 | | |
| FIRE1BOND | Fire & Rescue Dist #1 Camano BOND | 0.1630371212 | $792,005 | $792,005 | $129.13 | | |
| CE | County Current Expense | 0.3674210519 | $792,005 | $792,005 | $291.00 | | |
| CR | County Roads | 0.4614296361 | $792,005 | $792,005 | $365.45 | | |
| LIB | Library Sno-Isle GEN | 0.3039084203 | $792,005 | $792,005 | $240.70 | | |
| SCH205_401 | School 205-401 Enrichment | 1.3697998934 | $792,005 | $792,005 | $1,084.89 | | |
| SCH205BOND | School 205-401 BOND | 0.9354199323 | $792,005 | $792,005 | $740.86 | | |
| ST | State School | 1.4761226122 | $792,005 | $792,005 | $1,169.10 | | |
| ST2 | State School Part 2 | 0.7953803475 | $792,005 | $792,005 | $629.95 | | |
| | Total Tax Rate: | 7.6534262019 | | | | | |
| | | | | Taxes w/Current Exemptions: | $6,061.57 | | |
| | | | | Taxes w/o Exemptions: | $6,061.57 | | |
Improvement / Building
| Improvement #1: | RESIDENTIAL | State Code: | Y | 2017.8 sqft | Value: | $482,005 |
| Bathrooms: | 2 | Bedrooms: | 3 | | Ceiling: | DRYWALL PAINTED | Cooling: | HEAT PUMP/CONV/V | | Exterior Wall/Cover: | CEMENT FIBER | Floor Covering: | HARDWOOD/CARP 60-40 | | Floor Structure: | WOOD W/SUBFLOOR | Foundation: | CONCRETE | | Interior Finish: | DRYWALL PAINT | Plumbing Fixture Cnt: | 10 | | Roof Slope: | 6" IN 12" | Roof Structure/Cover: | CJ ASPHALT |
|
| | Type | Description | Class CD | Sub Class CD | Year Built | Area |
| | BAS | BASE/MAIN FLOOR | 4 | 0 | 1993 | 2017.8 |
| | OP4 | OPEN PORCH W/CEILING-ROOF | 4 | 0 | 1993 | 55.0 |
| | UTY | STORAGE/UTILITY | 4 | 0 | 1993 | 1200.0 |
Sketch
Property Image
Land
| 1 | 18 | AC (02.01-03.00) | 2.6800 | 116740.80 | 0.00 | 0.00 | 1.00 | $310,000 | $0 |
Roll Value History
| 2026 | N/A | N/A | N/A | N/A | N/A |
| 2025 | $482,005 | $310,000 | $0 | $792,005 | $792,005 |
| 2024 | $487,660 | $300,000 | $0 | $787,660 | $787,660 |
| 2023 | $493,314 | $300,000 | $0 | $793,314 | $793,314 |
| 2022 | $451,808 | $260,000 | $0 | $711,808 | $711,808 |
| 2021 | $368,340 | $230,000 | $0 | $598,340 | $598,340 |
| 2020 | $358,760 | $150,000 | $0 | $508,760 | $508,760 |
| 2019 | $268,452 | $190,000 | $0 | $458,452 | $458,452 |
| 2018 | $269,221 | $180,000 | $0 | $449,221 | $449,221 |
| 2017 | $270,712 | $120,000 | $0 | $390,712 | $390,712 |
| 2016 | $289,490 | $120,000 | $0 | $409,490 | $409,490 |
| 2015 | $292,657 | $100,000 | $0 | $392,657 | $392,657 |
| 2014 | $295,822 | $80,000 | $0 | $375,822 | $375,822 |
| 2013 | $298,990 | $80,000 | $0 | $378,990 | $378,990 |
| 2012 | $302,155 | $80,000 | $0 | $382,155 | $382,155 |
| 2011 | $305,323 | $100,000 | $0 | $405,323 | $405,323 |
| 2010 | $311,735 | $100,000 | $0 | $411,735 | $411,735 |
| 2009 | $328,482 | $160,000 | $0 | $488,482 | $488,482 |
| 2008 | $329,655 | $235,840 | $0 | $565,495 | $565,495 |
| 2007 | $334,279 | $235,840 | $0 | $570,119 | $570,119 |
Deed and Sales History
| 1 | 08/10/2021 | WD | Warranty Deed | KNOWLES, STEVEN G. | HILDEBRANDT, ALESSANDRA | | | $810,950.00 | 49671 | 4527111 |
| 2 | 06/27/2014 | WD | Warranty Deed | GERDES, GENE M / ANNE M | KNOWLES, STEVEN G. | | | $400,000.00 | 15877 | 4361760 |
| 3 | 05/11/1998 | QCD | Quit Claim Deed | GERDES, GENE M/ANNE M | GERDES, GENE M/ANNE M | | | $0.00 | 81803 | 98009658 |
| 4 | 04/17/1998 | WD | Warranty Deed | LOGAN, THOMAS E | GERDES, GENE M/ANNE M | | | $173,000.00 | 81464 | 98007977 |
| 5 | 11/01/1996 | WD | Warranty Deed | LOGAN, THOMAS E | LOGAN, THOMAS E | | | $0.00 | 63989 | 96019379 |
| 6 | 03/01/1992 | QCD | Quit Claim Deed | LOGAN, THOMAS E | LOGAN, THOMAS E | | | $0.00 | 21155 | 92005655 |
| 7 | 10/01/1986 | OTHER | Other - Misc. Documents | LOGAN, THOMAS E | LOGAN, THOMAS E | | | $0.00 | 61870 | 86009923 |
| 8 | 03/01/1981 | EXECUTORD | Executor Deed | KINDIG, SERENA | LOGAN, THOMAS E | | | $10,000.00 | 20213 | 392610 |
| 9 | 01/01/1900 | OTHER | Other - Misc. Documents | Unknown | GERDES, GENE M | | | $0.00 | 81464 | 98007977 |
| 10 | 01/01/1900 | OTHER | Other - Misc. Documents | GERDES, GENE M | KINDIG, SERENA | | | $0.00 | 0 | 0 |
Payout Agreement
| No payout information available.. |