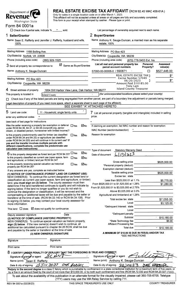
Property
Account |
| Property ID: | 91340 | Abbreviated Legal Description: | 34 - NE CR L77 MAPLE GROVE BEACH #3 TPB S89(9)*E60' S1 W100' N89*W60' N1*E100' TPB () ERROR IN RECORDED DOC A# 2404 & AF# 371253 & PREV DOCS |
| Geographic ID: | R23223-351-0280 | Agent Code: | |
| Type: | Real | | |
| Tax Area: | 510 - APPRAISER-Stan/Cam Schl Dist, improved & 1 acre or less | Land Use Code | 11 |
| Open Space: | N | DFL | N |
| Historic Property: | N | Remodel Property: | N |
| Multi-Family Redevelopment: | N | | |
| Township: | 32 | Section: | 23 |
| Range: | R2 |
Location |
| Address: | 777 BROWN RD CAMANO ISLAND, WA 98282 | Mapsco: | |
| Neighborhood: | North Camano | Map ID: | 556 |
| Neighborhood CD: | 06-C |
Owner |
| Name: | KREWSON, DENISE | Owner ID: | 309705 |
| Mailing Address: | DAN KREWSON 777 BROWN RD CAMANO ISLAND, WA 98282 | % Ownership: | 100.0000000000% |
| | | Exemptions: | |
Taxes and Assessment Details
Values
| (+) Improvement Homesite Value: | + | $0 | |
| (+) Improvement Non-Homesite Value: | + | $277,879 | |
| (+) Land Homesite Value: | + | $0 | |
| (+) Land Non-Homesite Value: | + | $300,000 | |
| (+) Curr Use (HS): | + | $0 | $0 |
| (+) Curr Use (NHS): | + | $0 | $0 |
| | | -------------------------- | |
| (=) Market Value: | = | $577,879 | |
| (–) Productivity Loss: | – | $0 | |
| | | -------------------------- | |
| (=) Subtotal: | = | $577,879 | |
| (+) Senior Appraised Value: | + | $0 | |
| (+) Non-Senior Appraised Value: | + | $577,879 | |
| | | -------------------------- | |
| (=) Total Appraised Value: | = | $577,879 | |
| (–) Senior Exemption Loss: | – | $0 | |
| (–) Exemption Loss: | – | $0 | |
| | | -------------------------- | |
| (=) Taxable Value: | = | $577,879 | |
Taxing Jurisdiction
| Owner: | KREWSON, DENISE | | |
| % Ownership: | 100.0000000000% | | |
| Total Value: | $577,879 | | |
| Tax Area: | 510 - APPRAISER-Stan/Cam Schl Dist, improved & 1 acre or less |
| CF | Conservation Futures | 0.0313996660 | $577,879 | $577,879 | $18.15 | | |
| EMS1 | Fire & Rescue Dist #1 Camano GEN (EMS) | 0.4998471806 | $577,879 | $577,879 | $288.85 | | |
| FIRE1 | Fire & Rescue Dist #1 Camano GEN | 1.2496603404 | $577,879 | $577,879 | $722.15 | | |
| FIRE1BOND | Fire & Rescue Dist #1 Camano BOND | 0.1630371212 | $577,879 | $577,879 | $94.22 | | |
| CE | County Current Expense | 0.3674210519 | $577,879 | $577,879 | $212.32 | | |
| CR | County Roads | 0.4614296361 | $577,879 | $577,879 | $266.65 | | |
| LIB | Library Sno-Isle GEN | 0.3039084203 | $577,879 | $577,879 | $175.62 | | |
| SCH205_401 | School 205-401 Enrichment | 1.3697998934 | $577,879 | $577,879 | $791.58 | | |
| SCH205BOND | School 205-401 BOND | 0.9354199323 | $577,879 | $577,879 | $540.56 | | |
| ST | State School | 1.4761226122 | $577,879 | $577,879 | $853.02 | | |
| ST2 | State School Part 2 | 0.7953803475 | $577,879 | $577,879 | $459.63 | | |
| | Total Tax Rate: | 7.6534262019 | | | | | |
| | | | | Taxes w/Current Exemptions: | $4,422.75 | | |
| | | | | Taxes w/o Exemptions: | $4,422.75 | | |
Improvement / Building
| Improvement #1: | RESIDENTIAL | State Code: | Y | 2360.0 sqft | Value: | $277,879 |
| Bathrooms: | 2 | Bedrooms: | 2 | | Ceiling: | DRYWALL PAINTED | Exterior Wall/Cover: | CEMENT FIBER | | Floor Covering: | CARPET/VINYL 80-20 | Floor Structure: | WOOD W/SUBFLOOR | | Foundation: | CONCRETE BLOCKS | Heating: | BASEBOARD ELECTRIC | | Interior Finish: | DRYWALL PAINT | Plumbing Fixture Cnt: | 9 | | Roof Slope: | 4" IN 12" | Roof Structure/Cover: | CJ ALUMINIUM HEAVY |
|
| | Type | Description | Class CD | Sub Class CD | Year Built | Area |
| | BAS | BASE/MAIN FLOOR | 3 | 0 | 1950 | 1304.0 |
| | UPS | UPPER STORY | 3 | 0 | 1950 | 1056.0 |
| | OWP | OPEN WOOD PORCH W/STEPS | 3 | 0 | 1950 | 240.0 |
| | OWP | OPEN WOOD PORCH W/STEPS | 3 | 0 | 1950 | 748.0 |
| | OWP | OPEN WOOD PORCH W/STEPS | 3 | 0 | 1950 | 230.0 |
Sketch
Property Image
Land
| 1 | 12 | SQ (00000-06000) | 0.1400 | 6098.40 | 0.00 | 0.00 | 1.00 | $300,000 | $0 |
Roll Value History
| 2026 | N/A | N/A | N/A | N/A | N/A |
| 2025 | $277,879 | $300,000 | $0 | $577,879 | $577,879 |
| 2024 | $287,865 | $300,000 | $0 | $587,865 | $587,865 |
| 2023 | $291,795 | $290,000 | $0 | $581,795 | $581,795 |
| 2022 | $257,108 | $260,000 | $0 | $517,108 | $517,108 |
| 2021 | $226,666 | $200,000 | $0 | $426,666 | $426,666 |
| 2020 | $221,853 | $160,000 | $0 | $381,853 | $381,853 |
| 2019 | $173,156 | $190,000 | $0 | $363,156 | $363,156 |
| 2018 | $173,732 | $150,000 | $0 | $323,732 | $323,732 |
| 2017 | $174,882 | $130,000 | $0 | $304,882 | $304,882 |
| 2016 | $155,076 | $110,000 | $0 | $265,076 | $265,076 |
| 2015 | $157,356 | $100,000 | $0 | $257,356 | $257,356 |
| 2014 | $159,636 | $82,584 | $0 | $242,220 | $242,220 |
| 2013 | $161,918 | $82,584 | $0 | $244,502 | $244,502 |
| 2012 | $164,198 | $82,584 | $0 | $246,782 | $246,782 |
| 2011 | $129,763 | $103,230 | $0 | $232,993 | $232,993 |
| 2010 | $136,634 | $103,230 | $0 | $239,864 | $239,864 |
| 2009 | $140,808 | $165,000 | $0 | $305,808 | $305,808 |
| 2008 | $142,857 | $225,000 | $0 | $367,857 | $367,857 |
| 2007 | $145,003 | $225,000 | $0 | $370,003 | $370,003 |
Deed and Sales History
| 1 | 06/23/2023 | PRD | Personal Representatives Deed | MACK, SANDRA K | KREWSON, DENISE | | | $0.00 | 57661 | 4563663 |
| 2 | 05/01/1980 | CD | DNU - Correction Deed | MACK, SANDRA K | MACK, SANDRA K | | | $0.00 | 2404 | 371253 |
| 3 | 08/01/1979 | TRUSTEED | Trustee's Deed | MACK, SANDRA K | MACK, SANDRA K | | | $0.00 | 94201 | 357845 |
| 4 | 01/01/1900 | OTHER | Other - Misc. Documents | Unknown | MACK, SANDRA K | | | $0.00 | 0 | 0 |
Payout Agreement
| No payout information available.. |