Property
Account |
| Property ID: | 91368 | Abbreviated Legal Description: | 67 - IN GL 1: BG PT S1*W40' FR SWCR TRACT 87 MAPLE GRV BCH #3 S1*W100' N89*W110' N1*E100' S89*E110'TPB |
| Geographic ID: | R23223-351-0420 | Agent Code: | |
| Type: | Real | | |
| Tax Area: | 510 - APPRAISER-Stan/Cam Schl Dist, improved & 1 acre or less | Land Use Code | 11 |
| Open Space: | N | DFL | N |
| Historic Property: | N | Remodel Property: | N |
| Multi-Family Redevelopment: | N | | |
| Township: | 32 | Section: | 23 |
| Range: | R2 |
Location |
| Address: | 767 BROWN RD CAMANO ISLAND, WA 98282 | Mapsco: | |
| Neighborhood: | North Camano | Map ID: | 556 |
| Neighborhood CD: | 06-C |
Owner |
| Name: | SWIGERT, LORAN | Owner ID: | 291995 |
| Mailing Address: | MITZI SWIGERT MARIAN MARTIN & DAN MARTIN PO BOX 2595 STANWOOD, WA 98292 | % Ownership: | 100.0000000000% |
| | | Exemptions: | |
Taxes and Assessment Details
Values
| (+) Improvement Homesite Value: | + | $0 | |
| (+) Improvement Non-Homesite Value: | + | $54,113 | |
| (+) Land Homesite Value: | + | $0 | |
| (+) Land Non-Homesite Value: | + | $330,000 | |
| (+) Curr Use (HS): | + | $0 | $0 |
| (+) Curr Use (NHS): | + | $0 | $0 |
| | | -------------------------- | |
| (=) Market Value: | = | $384,113 | |
| (–) Productivity Loss: | – | $0 | |
| | | -------------------------- | |
| (=) Subtotal: | = | $384,113 | |
| (+) Senior Appraised Value: | + | $0 | |
| (+) Non-Senior Appraised Value: | + | $384,113 | |
| | | -------------------------- | |
| (=) Total Appraised Value: | = | $384,113 | |
| (–) Senior Exemption Loss: | – | $0 | |
| (–) Exemption Loss: | – | $0 | |
| | | -------------------------- | |
| (=) Taxable Value: | = | $384,113 | |
Taxing Jurisdiction
| Owner: | SWIGERT, LORAN | | |
| % Ownership: | 100.0000000000% | | |
| Total Value: | $384,113 | | |
| Tax Area: | 510 - APPRAISER-Stan/Cam Schl Dist, improved & 1 acre or less |
| CF | Conservation Futures | 0.0313996660 | $384,113 | $384,113 | $12.06 | | |
| EMS1 | Fire & Rescue Dist #1 Camano GEN (EMS) | 0.4998471806 | $384,113 | $384,113 | $192.00 | | |
| FIRE1 | Fire & Rescue Dist #1 Camano GEN | 1.2496603404 | $384,113 | $384,113 | $480.01 | | |
| FIRE1BOND | Fire & Rescue Dist #1 Camano BOND | 0.1630371212 | $384,113 | $384,113 | $62.62 | | |
| CE | County Current Expense | 0.3674210519 | $384,113 | $384,113 | $141.13 | | |
| CR | County Roads | 0.4614296361 | $384,113 | $384,113 | $177.24 | | |
| LIB | Library Sno-Isle GEN | 0.3039084203 | $384,113 | $384,113 | $116.74 | | |
| SCH205_401 | School 205-401 Enrichment | 1.3697998934 | $384,113 | $384,113 | $526.16 | | |
| SCH205BOND | School 205-401 BOND | 0.9354199323 | $384,113 | $384,113 | $359.31 | | |
| ST | State School | 1.4761226122 | $384,113 | $384,113 | $567.00 | | |
| ST2 | State School Part 2 | 0.7953803475 | $384,113 | $384,113 | $305.52 | | |
| | Total Tax Rate: | 7.6534262019 | | | | | |
| | | | | Taxes w/Current Exemptions: | $2,939.79 | | |
| | | | | Taxes w/o Exemptions: | $2,939.79 | | |
Improvement / Building
| Improvement #1: | RESIDENTIAL | State Code: | Y | 1284.9 sqft | Value: | $54,113 |
| Bathrooms: | 1 | Bedrooms: | 2 | | Ceiling: | ACOUSTIC FURRED | Exterior Wall/Cover: | ASBESTOES/ASPHALT | | Floor Covering: | CARPET/VINYL 20-80 | Floor Structure: | WOOD W/SUBFLOOR | | Foundation: | CONCRETE | Heating: | BASEBOARD ELECTRIC | | Interior Finish: | DRYWALL PAINT | Plumbing Fixture Cnt: | 6 | | Roof Slope: | 8" IN 12" | Roof Structure/Cover: | CJ ASPHALT |
|
| | Type | Description | Class CD | Sub Class CD | Year Built | Area |
| | BAS | BASE/MAIN FLOOR | 2 | 0 | 1944 | 948.9 |
| | OP4 | OPEN PORCH W/CEILING-ROOF | 2 | 0 | 1944 | 32.0 |
| | UPH | HALF STORY | 2 | 0 | 1944 | 336.0 |
| | BIG | BUILT IN GARAGE | 2 | 0 | 1944 | 1540.0 |
Sketch
| No sketches available for this property. |
Property Image
Land
| 1 | 14 | SQ (08001-12000) | 0.0000 | 0.00 | 0.00 | 0.00 | 1.00 | $330,000 | $0 |
Roll Value History
| 2026 | N/A | N/A | N/A | N/A | N/A |
| 2025 | $54,113 | $330,000 | $0 | $384,113 | $384,113 |
| 2024 | $56,399 | $320,000 | $0 | $376,399 | $376,399 |
| 2023 | $45,921 | $300,000 | $0 | $345,921 | $345,921 |
| 2022 | $10,404 | $260,000 | $0 | $270,404 | $270,404 |
| 2021 | $99,520 | $200,000 | $0 | $299,520 | $299,520 |
| 2020 | $97,675 | $160,000 | $0 | $257,675 | $257,675 |
| 2019 | $86,409 | $190,000 | $0 | $276,409 | $276,409 |
| 2018 | $86,763 | $150,000 | $0 | $236,763 | $236,763 |
| 2017 | $87,467 | $130,000 | $0 | $217,467 | $217,467 |
| 2016 | $74,722 | $100,000 | $0 | $174,722 | $174,722 |
| 2015 | $76,280 | $100,000 | $0 | $176,280 | $176,280 |
| 2014 | $77,837 | $80,000 | $0 | $157,837 | $157,837 |
| 2013 | $79,392 | $82,584 | $0 | $161,976 | $161,976 |
| 2012 | $80,949 | $82,584 | $0 | $163,533 | $163,533 |
| 2011 | $82,505 | $103,230 | $0 | $185,735 | $185,735 |
| 2010 | $80,960 | $103,230 | $0 | $184,190 | $184,190 |
| 2009 | $83,355 | $165,000 | $0 | $248,355 | $248,355 |
| 2008 | $84,926 | $225,000 | $0 | $309,926 | $309,926 |
| 2007 | $86,497 | $225,000 | $0 | $311,497 | $311,497 |
Deed and Sales History
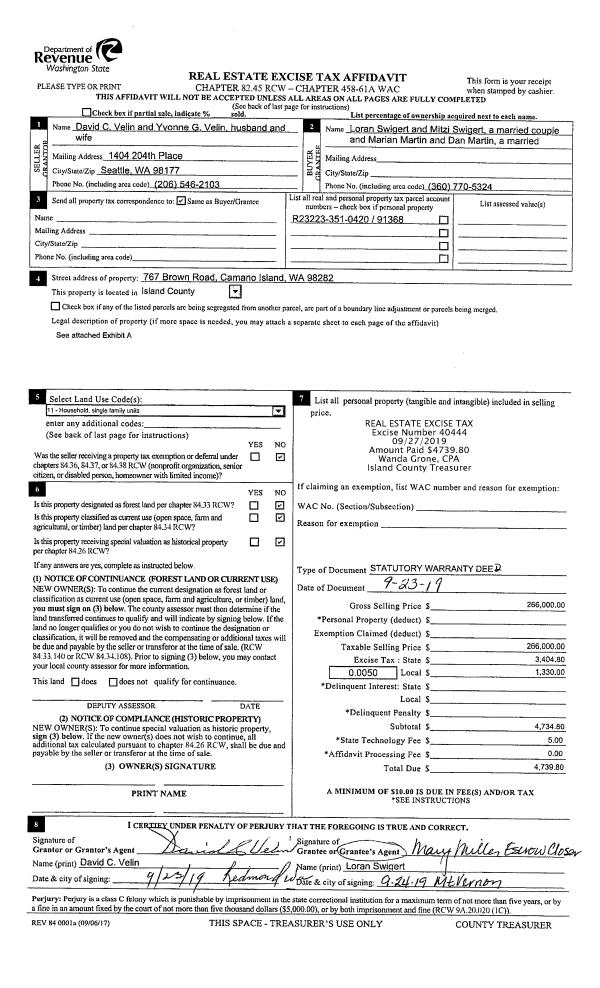
| 1 | 09/23/2019 | WD | Warranty Deed | VELIN, DAVID C | SWIGERT, LORAN | | | $266,000.00 | 40444 | 4472247 |
| 2 | 06/01/1976 | EXECUTORD | Executor Deed | MCDANIEL, RUBY | VELIN, DAVID C | | | $22,500.00 | 62098 | 0 |
| 3 | 01/01/1900 | OTHER | Other - Misc. Documents | Unknown | MCDANIEL, RUBY | | | $0.00 | 0 | 0 |
Payout Agreement
| No payout information available.. |