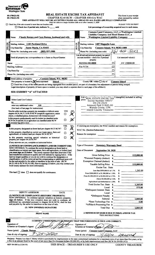
Property
Account |
| Property ID: | 91714 | Abbreviated Legal Description: | IN SW SW:BG SW CR SEC 24 N660.07' E660.09' TPB E330. .04' N663.67' W329.82' S662 .47' TPB TGW SUB EZ |
| Geographic ID: | R23224-102-0800 | Agent Code: | |
| Type: | Real | | |
| Tax Area: | 512 - APPRAISER-Stan/Cam Schl Dist, improved, greater than 1 acre | Land Use Code | 11 |
| Open Space: | N | DFL | N |
| Historic Property: | N | Remodel Property: | N |
| Multi-Family Redevelopment: | N | | |
| Township: | 32 | Section: | 24 |
| Range: | R2 |
Location |
| Address: | 332 W RATEAU DRIVE CAMANO ISLAND, WA 98282 | Mapsco: | |
| Neighborhood: | North Camano | Map ID: | 558 |
| Neighborhood CD: | 06-C |
Owner |
| Name: | MOORE, JOHN DAVIS | Owner ID: | 309348 |
| Mailing Address: | MARY LYNN MOORE 848 N SUNRISE BLVD STE B PMB 127 CAMANO ISLAND, WA 98282 | % Ownership: | 100.0000000000% |
| | | Exemptions: | |
Taxes and Assessment Details
Values
| (+) Improvement Homesite Value: | + | $0 | |
| (+) Improvement Non-Homesite Value: | + | $598,977 | |
| (+) Land Homesite Value: | + | $0 | |
| (+) Land Non-Homesite Value: | + | $330,000 | |
| (+) Curr Use (HS): | + | $0 | $0 |
| (+) Curr Use (NHS): | + | $0 | $0 |
| | | -------------------------- | |
| (=) Market Value: | = | $928,977 | |
| (–) Productivity Loss: | – | $0 | |
| | | -------------------------- | |
| (=) Subtotal: | = | $928,977 | |
| (+) Senior Appraised Value: | + | $0 | |
| (+) Non-Senior Appraised Value: | + | $928,977 | |
| | | -------------------------- | |
| (=) Total Appraised Value: | = | $928,977 | |
| (–) Senior Exemption Loss: | – | $0 | |
| (–) Exemption Loss: | – | $0 | |
| | | -------------------------- | |
| (=) Taxable Value: | = | $928,977 | |
Taxing Jurisdiction
| Owner: | MOORE, JOHN DAVIS | | |
| % Ownership: | 100.0000000000% | | |
| Total Value: | $928,977 | | |
| Tax Area: | 512 - APPRAISER-Stan/Cam Schl Dist, improved, greater than 1 acre |
| CF | Conservation Futures | 0.0313996660 | $928,977 | $928,977 | $29.17 | | |
| EMS1 | Fire & Rescue Dist #1 Camano GEN (EMS) | 0.4998471806 | $928,977 | $928,977 | $464.35 | | |
| FIRE1 | Fire & Rescue Dist #1 Camano GEN | 1.2496603404 | $928,977 | $928,977 | $1,160.91 | | |
| FIRE1BOND | Fire & Rescue Dist #1 Camano BOND | 0.1630371212 | $928,977 | $928,977 | $151.46 | | |
| CE | County Current Expense | 0.3674210519 | $928,977 | $928,977 | $341.33 | | |
| CR | County Roads | 0.4614296361 | $928,977 | $928,977 | $428.66 | | |
| LIB | Library Sno-Isle GEN | 0.3039084203 | $928,977 | $928,977 | $282.32 | | |
| SCH205_401 | School 205-401 Enrichment | 1.3697998934 | $928,977 | $928,977 | $1,272.51 | | |
| SCH205BOND | School 205-401 BOND | 0.9354199323 | $928,977 | $928,977 | $868.98 | | |
| ST | State School | 1.4761226122 | $928,977 | $928,977 | $1,371.28 | | |
| ST2 | State School Part 2 | 0.7953803475 | $928,977 | $928,977 | $738.89 | | |
| | Total Tax Rate: | 7.6534262019 | | | | | |
| | | | | Taxes w/Current Exemptions: | $7,109.86 | | |
| | | | | Taxes w/o Exemptions: | $7,109.86 | | |
Improvement / Building
| Improvement #1: | RESIDENTIAL | State Code: | Y | 2264.0 sqft | Value: | $598,977 |
| Bathrooms: | 2.5 | Bedrooms: | 3 | | Ceiling: | DRYWALL PAINTED | Cooling: | HEAT PUMP/CONV/V | | Exterior Wall/Cover: | CEMENT FIBER | Floor Covering: | VINYL 100% | | Floor Structure: | WOOD W/SUBFLOOR | Foundation: | CONCRETE | | Interior Finish: | DRYWALL PAINT | Plumbing Fixture Cnt: | 15 | | Roof Slope: | 5" IN 12" | Roof Structure/Cover: | CJ ASPHALT |
|
| | Type | Description | Class CD | Sub Class CD | Year Built | Area |
| | BAS | BASE/MAIN FLOOR | 4 | 0 | 2023 | 2264.0 |
| | AGR | ATTACHED GARAGE | 4 | 0 | 2023 | 748.0 |
| | OP4 | OPEN PORCH W/CEILING-ROOF | 4 | 0 | 2023 | 64.0 |
| | OWC | OPEN WOOD PORCH W/STEPS/ROOF/C | 4 | 0 | 2023 | 400.0 |
Sketch
Property Image
Land
| 1 | 32 | AC (03.01-09.99) | 5.0200 | 0.00 | 0.00 | 0.00 | 1.00 | $330,000 | $0 |
Roll Value History
| 2026 | N/A | N/A | N/A | N/A | N/A |
| 2025 | $598,977 | $330,000 | $0 | $928,977 | $928,977 |
| 2024 | $609,867 | $340,000 | $0 | $949,867 | $949,867 |
| 2023 | $657,336 | $320,000 | $0 | $977,336 | $977,336 |
| 2022 | $0 | $180,000 | $0 | $180,000 | $180,000 |
| 2021 | $0 | $130,000 | $0 | $130,000 | $130,000 |
| 2020 | $0 | $130,000 | $0 | $130,000 | $130,000 |
| 2019 | $0 | $140,000 | $0 | $140,000 | $140,000 |
| 2018 | $0 | $120,000 | $0 | $120,000 | $120,000 |
| 2017 | $0 | $90,000 | $0 | $90,000 | $90,000 |
| 2016 | $0 | $90,000 | $0 | $90,000 | $90,000 |
| 2015 | $0 | $100,400 | $0 | $100,400 | $100,400 |
| 2014 | $0 | $100,400 | $0 | $100,400 | $100,400 |
| 2013 | $0 | $121,986 | $0 | $121,986 | $121,986 |
| 2012 | $0 | $121,986 | $0 | $121,986 | $121,986 |
| 2011 | $0 | $121,986 | $0 | $121,986 | $121,986 |
| 2010 | $0 | $121,986 | $0 | $121,986 | $121,986 |
| 2009 | $0 | $150,600 | $0 | $150,600 | $150,600 |
| 2008 | $0 | $165,660 | $0 | $165,660 | $165,660 |
| 2007 | $0 | $165,660 | $0 | $165,660 | $165,660 |
Deed and Sales History
| 1 | 07/17/2023 | WD | Warranty Deed | CAMANO LAND COMPANY, LLC | MOORE, JOHN DAVIS | | | $1,075,000.00 | 57342 | 4562403 |
| 2 | 09/24/2020 | WD | Warranty Deed | RATEAU, CLAUDE | CAMANO LAND COMPANY, LLC | | | $115,000.00 | 44977 | 4498003 |
| 3 | 04/13/2013 | CCOMPROP | Create Community Property | RATEAU, CLAUDE | RATEAU, CLAUDE | | | $0.00 | 11972 | 4343777 |
| 4 | 09/01/1978 | OTHER | Other - Misc. Documents | Unknown | RATEAU, CLAUDE | | | $0.00 | 84519 | 339900 |
Payout Agreement
| No payout information available.. |