Property
Account |
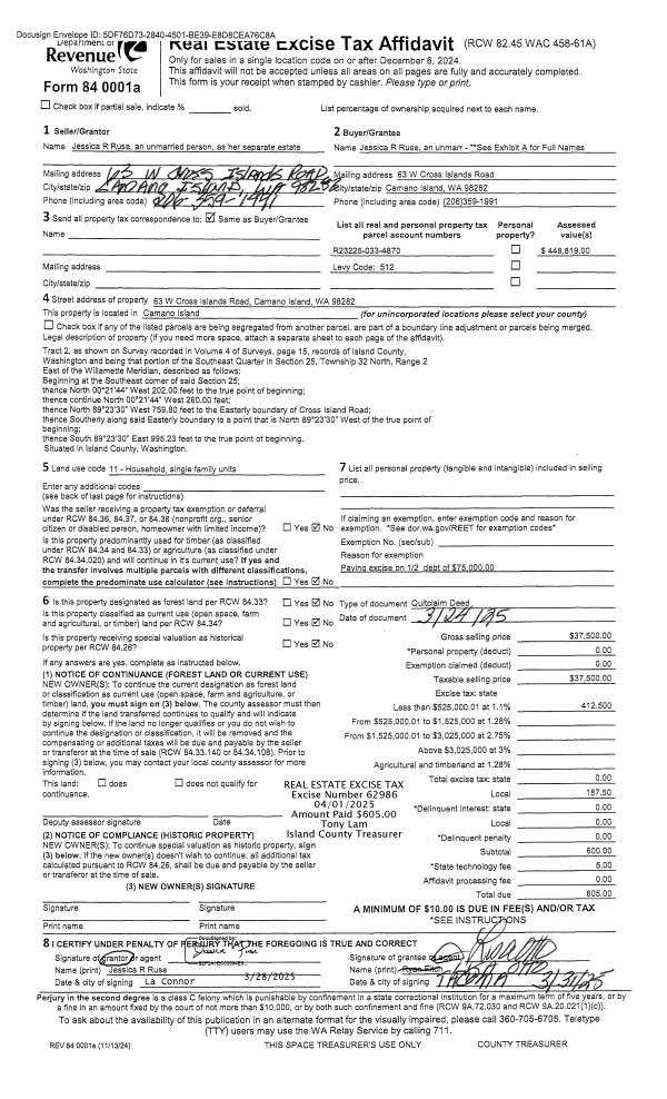
| Property ID: | 92429 | Abbreviated Legal Description: | 80 - IN SE:BG SE CR SEC 25 N202' TPB N260' W759.8' TO ELN RD SLY ALG SD LN TP W OF TPB E995.23' TPB SUB TO EZS (TR 2 SURVEY V4 SUR P15) |
| Geographic ID: | R23225-033-4870 | Agent Code: | |
| Type: | Real | | |
| Tax Area: | 512 - APPRAISER-Stan/Cam Schl Dist, improved, greater than 1 acre | Land Use Code | 11 |
| Open Space: | N | DFL | N |
| Historic Property: | N | Remodel Property: | N |
| Multi-Family Redevelopment: | N | | |
| Township: | 32 | Section: | 25 |
| Range: | R2 |
Location |
| Address: | 63 W CROSS ISLAND RD CAMANO ISLAND, WA 98282 | Mapsco: | |
| Neighborhood: | North Camano | Map ID: | 563 |
| Neighborhood CD: | 06-C |
Owner |
| Name: | RUSE, JESSICA R | Owner ID: | 315998 |
| Mailing Address: | RYAN FITCH 63 W CROSS ISLANDS RD CAMANO ISLAND, WA 98282 | % Ownership: | 100.0000000000% |
| | | Exemptions: | |
Taxes and Assessment Details
Values
| (+) Improvement Homesite Value: | + | $0 | |
| (+) Improvement Non-Homesite Value: | + | $55,878 | |
| (+) Land Homesite Value: | + | $0 | |
| (+) Land Non-Homesite Value: | + | $380,000 | |
| (+) Curr Use (HS): | + | $0 | $0 |
| (+) Curr Use (NHS): | + | $0 | $0 |
| | | -------------------------- | |
| (=) Market Value: | = | $435,878 | |
| (–) Productivity Loss: | – | $0 | |
| | | -------------------------- | |
| (=) Subtotal: | = | $435,878 | |
| (+) Senior Appraised Value: | + | $0 | |
| (+) Non-Senior Appraised Value: | + | $435,878 | |
| | | -------------------------- | |
| (=) Total Appraised Value: | = | $435,878 | |
| (–) Senior Exemption Loss: | – | $0 | |
| (–) Exemption Loss: | – | $0 | |
| | | -------------------------- | |
| (=) Taxable Value: | = | $435,878 | |
Taxing Jurisdiction
| Owner: | RUSE, JESSICA R | | |
| % Ownership: | 100.0000000000% | | |
| Total Value: | $435,878 | | |
| Tax Area: | 512 - APPRAISER-Stan/Cam Schl Dist, improved, greater than 1 acre |
| CF | Conservation Futures | 0.0313996660 | $435,878 | $435,878 | $13.69 | | |
| EMS1 | Fire & Rescue Dist #1 Camano GEN (EMS) | 0.4998471806 | $435,878 | $435,878 | $217.87 | | |
| FIRE1 | Fire & Rescue Dist #1 Camano GEN | 1.2496603404 | $435,878 | $435,878 | $544.70 | | |
| FIRE1BOND | Fire & Rescue Dist #1 Camano BOND | 0.1630371212 | $435,878 | $435,878 | $71.06 | | |
| CE | County Current Expense | 0.3674210519 | $435,878 | $435,878 | $160.15 | | |
| CR | County Roads | 0.4614296361 | $435,878 | $435,878 | $201.13 | | |
| LIB | Library Sno-Isle GEN | 0.3039084203 | $435,878 | $435,878 | $132.47 | | |
| SCH205_401 | School 205-401 Enrichment | 1.3697998934 | $435,878 | $435,878 | $597.07 | | |
| SCH205BOND | School 205-401 BOND | 0.9354199323 | $435,878 | $435,878 | $407.73 | | |
| ST | State School | 1.4761226122 | $435,878 | $435,878 | $643.41 | | |
| ST2 | State School Part 2 | 0.7953803475 | $435,878 | $435,878 | $346.69 | | |
| | Total Tax Rate: | 7.6534262019 | | | | | |
| | | | | Taxes w/Current Exemptions: | $3,335.97 | | |
| | | | | Taxes w/o Exemptions: | $3,335.97 | | |
Improvement / Building
| Improvement #1: | MANUFACTURED HOME | State Code: | Y | 1344.0 sqft | Value: | $55,878 |
| Bathrooms: | 0 | Bedrooms: | 0 | | Ceiling: | PLASTER PAINTED | Cooling: | EVAP NO DUCT | | Exterior Wall/Cover: | VINYL | Floor Covering: | CARPET 100% | | Floor Structure: | SLAB ON GRADE | Foundation: | SLAB | | Heating: | FHA ELECTRIC | Interior Finish: | PLASTER | | Plumbing Fixture Cnt: | 1 | Roof Slope: | FLAT | | Roof Structure/Cover: | CJ ALUMINIUM HEAVY |   |   |
|
Sketch
Property Image
Land
| 1 | 32 | AC (03.01-09.99) | 5.2000 | 0.00 | 0.00 | 0.00 | 1.00 | $380,000 | $0 |
Roll Value History
| 2026 | N/A | N/A | N/A | N/A | N/A |
| 2025 | $55,878 | $380,000 | $0 | $435,878 | $435,878 |
| 2024 | $58,819 | $390,000 | $0 | $448,819 | $448,819 |
| 2023 | $53,705 | $380,000 | $0 | $433,705 | $433,705 |
| 2022 | $31,235 | $350,000 | $0 | $381,235 | $381,235 |
| 2021 | $29,489 | $240,000 | $0 | $269,489 | $269,489 |
| 2020 | $30,132 | $200,000 | $0 | $230,132 | $230,132 |
| 2019 | $24,922 | $240,000 | $0 | $264,922 | $264,922 |
| 2018 | $26,109 | $220,000 | $0 | $246,109 | $246,109 |
| 2017 | $27,295 | $200,000 | $0 | $227,295 | $227,295 |
| 2016 | $24,147 | $180,000 | $0 | $204,147 | $204,147 |
| 2015 | $25,656 | $208,000 | $0 | $233,656 | $233,656 |
| 2014 | $26,662 | $208,000 | $0 | $234,662 | $234,662 |
| 2013 | $27,668 | $156,000 | $0 | $183,668 | $183,668 |
| 2012 | $28,674 | $174,720 | $0 | $203,394 | $203,394 |
| 2011 | $30,184 | $218,400 | $0 | $248,584 | $248,584 |
| 2010 | $25,861 | $218,400 | $0 | $244,261 | $244,261 |
| 2009 | $28,293 | $286,000 | $0 | $314,293 | $314,293 |
| 2008 | $29,468 | $179,400 | $0 | $208,868 | $208,868 |
| 2007 | $30,647 | $179,400 | $0 | $210,047 | $210,047 |
Deed and Sales History
| 1 | 03/24/2025 | QCD | Quit Claim Deed | RUSE, JESSICA R | RUSE, JESSICA R | | | $37,500.00 | 62986 | 4583916 |
| 2 | 09/11/2020 | WD | Warranty Deed | NOBLE, DUANE | RUSE, JESSICA R | | | $375,000.00 | 44813 | 4496959 |
| 3 | 07/03/2014 | EZ | Easement | NOBLE, DUANE | NOBLE, DUANE | | | $875.00 | 16319 | 4363559 |
| 4 | 12/13/2005 | TRUSTEED | Trustee's Deed | DEUTSCHE BANK NATIONAL TRUST C | NOBLE, DUANE | | | $187,500.00 | 56277 | 4157519 |
| 5 | 10/11/2005 | TRUSTEED | Trustee's Deed | LASSINGER, KENT A | DEUTSCHE BANK NATIONAL TRUST C | | | $172,885.00 | 55574 | 4152975 |
| 6 | 12/01/1996 | OTHER | Other - Misc. Documents | LASSINGER, KENT A | LASSINGER, KENT A | | | $24,000.00 | 64277 | 0 |
| 7 | 12/01/1996 | WD | Warranty Deed | GARRISON, LAURA J | LASSINGER, KENT A | | | $80,000.00 | 64276 | 96020873 |
| 8 | 06/01/1989 | OTHER | Other - Misc. Documents | GARRISON, LAURA J | GARRISON, LAURA J | | | $20,174.00 | 92233 | 0 |
| 9 | 06/01/1989 | WD | Warranty Deed | GRABILL, JAMES R | GARRISON, LAURA J | | | $33,126.00 | 92234 | 89007639 |
| 10 | 01/01/1983 | OTHER | Other - Misc. Documents | GRABILL, JAMES R | GRABILL, JAMES R | | | $22,800.00 | 11111111 | 0 |
| 11 | 01/01/1983 | REC | Real Estate Contract | STANDERFER, FRANKLIN | GRABILL, JAMES R | | | $35,000.00 | 30145 | 404997 |
| 12 | 01/01/1900 | OTHER | Other - Misc. Documents | Unknown | STANDERFER, FRANKLIN | | | $0.00 | 0 | 0 |
Payout Agreement
| No payout information available.. |