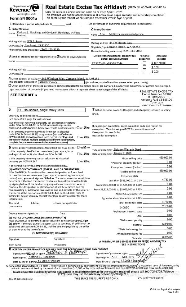
Property
Account |
| Property ID: | 92544 | Abbreviated Legal Description: | 57 - IN SW: BG SWCR SEC 25 E988.78' N504.87' TPB N158 .25' W330.10' S158.25' E329 .98' TPB TGW EZ |
| Geographic ID: | R23225-061-0850 | Agent Code: | |
| Type: | Real | | |
| Tax Area: | 512 - APPRAISER-Stan/Cam Schl Dist, improved, greater than 1 acre | Land Use Code | 11 |
| Open Space: | N | DFL | N |
| Historic Property: | N | Remodel Property: | N |
| Multi-Family Redevelopment: | N | | |
| Township: | 32 | Section: | 25 |
| Range: | R2 |
Location |
| Address: | 441 WINDSUN WAY CAMANO ISLAND, WA 98282 | Mapsco: | |
| Neighborhood: | North Camano | Map ID: | 562 |
| Neighborhood CD: | 06-C |
Owner |
| Name: | HUTCHINGS, KATHRYN L | Owner ID: | 186004 |
| Mailing Address: | GORDON F HUTCHINGS, JR 441 WINDSUN WAY CAMANO ISLAND, WA 98282-6634 | % Ownership: | 100.0000000000% |
| | | Exemptions: | |
Taxes and Assessment Details
Values
| (+) Improvement Homesite Value: | + | $0 | |
| (+) Improvement Non-Homesite Value: | + | $102,740 | |
| (+) Land Homesite Value: | + | $0 | |
| (+) Land Non-Homesite Value: | + | $305,000 | |
| (+) Curr Use (HS): | + | $0 | $0 |
| (+) Curr Use (NHS): | + | $0 | $0 |
| | | -------------------------- | |
| (=) Market Value: | = | $407,740 | |
| (–) Productivity Loss: | – | $0 | |
| | | -------------------------- | |
| (=) Subtotal: | = | $407,740 | |
| (+) Senior Appraised Value: | + | $0 | |
| (+) Non-Senior Appraised Value: | + | $407,740 | |
| | | -------------------------- | |
| (=) Total Appraised Value: | = | $407,740 | |
| (–) Senior Exemption Loss: | – | $0 | |
| (–) Exemption Loss: | – | $0 | |
| | | -------------------------- | |
| (=) Taxable Value: | = | $407,740 | |
Taxing Jurisdiction
| Owner: | HUTCHINGS, KATHRYN L | | |
| % Ownership: | 100.0000000000% | | |
| Total Value: | $407,740 | | |
| Tax Area: | 512 - APPRAISER-Stan/Cam Schl Dist, improved, greater than 1 acre |
| CF | Conservation Futures | 0.0313996660 | $407,740 | $407,740 | $12.80 | | |
| EMS1 | Fire & Rescue Dist #1 Camano GEN (EMS) | 0.4998471806 | $407,740 | $407,740 | $203.81 | | |
| FIRE1 | Fire & Rescue Dist #1 Camano GEN | 1.2496603404 | $407,740 | $407,740 | $509.54 | | |
| FIRE1BOND | Fire & Rescue Dist #1 Camano BOND | 0.1630371212 | $407,740 | $407,740 | $66.48 | | |
| CE | County Current Expense | 0.3674210519 | $407,740 | $407,740 | $149.81 | | |
| CR | County Roads | 0.4614296361 | $407,740 | $407,740 | $188.14 | | |
| LIB | Library Sno-Isle GEN | 0.3039084203 | $407,740 | $407,740 | $123.92 | | |
| SCH205_401 | School 205-401 Enrichment | 1.3697998934 | $407,740 | $407,740 | $558.52 | | |
| SCH205BOND | School 205-401 BOND | 0.9354199323 | $407,740 | $407,740 | $381.41 | | |
| ST | State School | 1.4761226122 | $407,740 | $407,740 | $601.87 | | |
| ST2 | State School Part 2 | 0.7953803475 | $407,740 | $407,740 | $324.31 | | |
| | Total Tax Rate: | 7.6534262019 | | | | | |
| | | | | Taxes w/Current Exemptions: | $3,120.61 | | |
| | | | | Taxes w/o Exemptions: | $3,120.61 | | |
Improvement / Building
| Improvement #1: | MANUFACTURED HOME | State Code: | Y | 1512.0 sqft | Value: | $102,740 |
| Bathrooms: | 0 | Bedrooms: | 0 | | Ceiling: | PLASTER PAINTED | Cooling: | EVAP NO DUCT | | Exterior Wall/Cover: | VINYL | Floor Covering: | CARPET 100% | | Floor Structure: | SLAB ON GRADE | Foundation: | SLAB | | Heating: | FHA ELECTRIC | Interior Finish: | PLASTER | | Plumbing Fixture Cnt: | 1 | Roof Slope: | FLAT | | Roof Structure/Cover: | CJ ALUMINIUM HEAVY |   |   |
|
| | Type | Description | Class CD | Sub Class CD | Year Built | Area |
| | BAS | BASE/MAIN FLOOR | 4 | 0 | 1996 | 1512.0 |
| | OWP | OPEN WOOD PORCH W/STEPS | 4 | 0 | 1996 | 120.0 |
Sketch
Property Image
Land
| 1 | 17 | AC (01.01-02.00) | 0.0000 | 0.00 | 0.00 | 0.00 | 1.00 | $305,000 | $0 |
Roll Value History
| 2026 | N/A | N/A | N/A | N/A | N/A |
| 2025 | $102,740 | $305,000 | $0 | $407,740 | $407,740 |
| 2024 | $105,950 | $290,000 | $0 | $395,950 | $395,950 |
| 2023 | $94,920 | $290,000 | $0 | $384,920 | $384,920 |
| 2022 | $72,999 | $260,000 | $0 | $332,999 | $332,999 |
| 2021 | $65,401 | $230,000 | $0 | $295,401 | $295,401 |
| 2020 | $65,359 | $150,000 | $0 | $215,359 | $215,359 |
| 2019 | $52,951 | $180,000 | $0 | $232,951 | $232,951 |
| 2018 | $53,686 | $150,000 | $0 | $203,686 | $203,686 |
| 2017 | $55,157 | $120,000 | $0 | $175,157 | $175,157 |
| 2016 | $50,994 | $100,000 | $0 | $150,994 | $150,994 |
| 2015 | $52,451 | $64,000 | $0 | $116,451 | $116,451 |
| 2014 | $53,179 | $64,000 | $0 | $117,179 | $117,179 |
| 2013 | $54,636 | $64,000 | $0 | $118,636 | $118,636 |
| 2012 | $56,093 | $64,000 | $0 | $120,093 | $120,093 |
| 2011 | $57,550 | $80,000 | $0 | $137,550 | $137,550 |
| 2010 | $60,627 | $80,000 | $0 | $140,627 | $140,627 |
| 2009 | $64,064 | $100,000 | $0 | $164,064 | $164,064 |
| 2008 | $65,748 | $96,000 | $0 | $161,748 | $161,748 |
| 2007 | $67,403 | $96,000 | $0 | $163,403 | $163,403 |
Deed and Sales History
| 1 | 01/07/2026 | WD | Warranty Deed | HUTCHINGS, KATHRYN L | MCGILVRA, ARLO | | | $430,000.00 | 65902 | 4595508 |
| 2 | 08/07/2001 | QCD | Quit Claim Deed | STARRS, KATHRYN L | HUTCHINGS, KATHRYN L | | | $0.00 | 13134 | 20040654 |
| 3 | 05/01/1997 | OTHER | Other - Misc. Documents | STARRS, KATHRYN L | STARRS, KATHRYN L | | | $45,000.00 | 71801 | 0 |
| 4 | 05/01/1997 | WD | Warranty Deed | WELLS, BEN & | STARRS, KATHRYN L | | | $70,000.00 | 71800 | 97008169 |
| 5 | 02/01/1996 | WD | Warranty Deed | DEYOUNG, ROBERT C | WELLS, BEN & | | | $22,750.00 | 60495 | 96002700 |
| 6 | 04/01/1995 | WD | Warranty Deed | POWELL, JEROLD R | DEYOUNG, ROBERT C | | | $19,000.00 | 51304 | 95006145 |
| 7 | 09/01/1992 | QCD | Quit Claim Deed | POWELL, JEROLD R | POWELL, JEROLD R | | | $0.00 | 24402 | 92022518 |
| 8 | 01/01/1900 | OTHER | Other - Misc. Documents | Unknown | POWELL, JEROLD R | | | $0.00 | 0 | 0 |
Payout Agreement
| No payout information available.. |