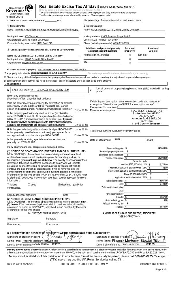
Property
Account |
| Property ID: | 93268 | Abbreviated Legal Description: | PT W/2 W/2 SW SE DESC: BG S/4 CR SEC 26 N89*E ALG SLN SD SEC 26 330.93' TP ON ELN SD SUBD N ALG SD ELN 347.49' TPB N ALG SD ELN 158.74' S89*W330.43' TP ON WLN SD SUBD S ALG SD WLN 158.82' TP S89*W FR TPB N89*E330.58' TPB TGW: BG S/4 CR SEC 26 N89*E ALG S |
| Geographic ID: | R23226-047-2840 | Agent Code: | |
| Type: | Real | | |
| Tax Area: | 512 - APPRAISER-Stan/Cam Schl Dist, improved, greater than 1 acre | Land Use Code | 11 |
| Open Space: | N | DFL | N |
| Historic Property: | N | Remodel Property: | N |
| Multi-Family Redevelopment: | N | | |
| Township: | 32 | Section: | 26 |
| Range: | R2 |
Location |
| Address: | 435 THUMPER LN CAMANO ISLAND, WA 98282 | Mapsco: | |
| Neighborhood: | North Camano | Map ID: | 567 |
| Neighborhood CD: | 06-C |
Owner |
| Name: | RMCL OPTIONS LLC | Owner ID: | 314053 |
| Mailing Address: | 12607 EMERALD RIDGE BLVD E PUYALLUP, WA 98374 | % Ownership: | 100.0000000000% |
| | | Exemptions: | |
Taxes and Assessment Details
Values
| (+) Improvement Homesite Value: | + | $0 | |
| (+) Improvement Non-Homesite Value: | + | $297,410 | |
| (+) Land Homesite Value: | + | $0 | |
| (+) Land Non-Homesite Value: | + | $300,000 | |
| (+) Curr Use (HS): | + | $0 | $0 |
| (+) Curr Use (NHS): | + | $0 | $0 |
| | | -------------------------- | |
| (=) Market Value: | = | $597,410 | |
| (–) Productivity Loss: | – | $0 | |
| | | -------------------------- | |
| (=) Subtotal: | = | $597,410 | |
| (+) Senior Appraised Value: | + | $0 | |
| (+) Non-Senior Appraised Value: | + | $597,410 | |
| | | -------------------------- | |
| (=) Total Appraised Value: | = | $597,410 | |
| (–) Senior Exemption Loss: | – | $0 | |
| (–) Exemption Loss: | – | $0 | |
| | | -------------------------- | |
| (=) Taxable Value: | = | $597,410 | |
Taxing Jurisdiction
| Owner: | RMCL OPTIONS LLC | | |
| % Ownership: | 100.0000000000% | | |
| Total Value: | $597,410 | | |
| Tax Area: | 512 - APPRAISER-Stan/Cam Schl Dist, improved, greater than 1 acre |
| CF | Conservation Futures | 0.0313996660 | $597,410 | $597,410 | $18.76 | | |
| EMS1 | Fire & Rescue Dist #1 Camano GEN (EMS) | 0.4998471806 | $597,410 | $597,410 | $298.61 | | |
| FIRE1 | Fire & Rescue Dist #1 Camano GEN | 1.2496603404 | $597,410 | $597,410 | $746.56 | | |
| FIRE1BOND | Fire & Rescue Dist #1 Camano BOND | 0.1630371212 | $597,410 | $597,410 | $97.40 | | |
| CE | County Current Expense | 0.3674210519 | $597,410 | $597,410 | $219.50 | | |
| CR | County Roads | 0.4614296361 | $597,410 | $597,410 | $275.66 | | |
| LIB | Library Sno-Isle GEN | 0.3039084203 | $597,410 | $597,410 | $181.56 | | |
| SCH205_401 | School 205-401 Enrichment | 1.3697998934 | $597,410 | $597,410 | $818.33 | | |
| SCH205BOND | School 205-401 BOND | 0.9354199323 | $597,410 | $597,410 | $558.83 | | |
| ST | State School | 1.4761226122 | $597,410 | $597,410 | $881.85 | | |
| ST2 | State School Part 2 | 0.7953803475 | $597,410 | $597,410 | $475.17 | | |
| | Total Tax Rate: | 7.6534262019 | | | | | |
| | | | | Taxes w/Current Exemptions: | $4,572.23 | | |
| | | | | Taxes w/o Exemptions: | $4,572.23 | | |
Improvement / Building
| Improvement #1: | RESIDENTIAL | State Code: | Y | 2780.0 sqft | Value: | $297,410 |
| Bathrooms: | 1 | Bedrooms: | 2 | | Ceiling: | BEAM PAINTED | Exterior Wall/Cover: | WOOD SIDING | | Floor Covering: | CARPET/VINYL 80-20 | Floor Structure: | SLAB ABOVE GRADE | | Foundation: | SLAB/CONCRETE | Heating: | WALL HEAT ELECTRIC | | Interior Finish: | DRYWALL PAINT | Plumbing Fixture Cnt: | 11 | | Roof Slope: | 5" IN 12" | Roof Structure/Cover: | BEAM ASPHALT |
|
| | Type | Description | Class CD | Sub Class CD | Year Built | Area |
| | BAS | BASE/MAIN FLOOR | 3 | 0 | 1983 | 370.8 |
| | BAS | BASE/MAIN FLOOR | 3 | 0 | 1983 | 1131.5 |
| | BIG | BUILT IN GARAGE | 3 | 0 | 1983 | 731.4 |
| | UTY | STORAGE/UTILITY | 3 | 0 | 1983 | 10.2 |
| | OWP | OPEN WOOD PORCH W/STEPS | 3 | 0 | 1983 | 579.9 |
| | OWR | OPEN WOOD PORCH W/STEPS/ROOF | 3 | 0 | 1983 | 83.1 |
| | LOF | LOFT | 3 | 0 | 1983 | 536.0 |
| | UPS | UPPER STORY | 3 | 0 | 1983 | 741.7 |
Sketch
Property Image
Land
| 1 | 17 | AC (01.01-02.00) | 1.3700 | 59677.20 | 0.00 | 0.00 | 1.00 | $300,000 | $0 |
Roll Value History
| 2026 | N/A | N/A | N/A | N/A | N/A |
| 2025 | $297,410 | $300,000 | $0 | $597,410 | $597,410 |
| 2024 | $296,149 | $290,000 | $0 | $586,149 | $586,149 |
| 2023 | $300,427 | $290,000 | $0 | $590,427 | $590,427 |
| 2022 | $275,917 | $260,000 | $0 | $535,917 | $535,917 |
| 2021 | $243,277 | $190,000 | $0 | $433,277 | $433,277 |
| 2020 | $238,073 | $150,000 | $0 | $388,073 | $388,073 |
| 2019 | $189,054 | $180,000 | $0 | $369,054 | $369,054 |
| 2018 | $189,694 | $150,000 | $0 | $339,694 | $339,694 |
| 2017 | $181,395 | $120,000 | $0 | $301,395 | $301,395 |
| 2016 | $169,146 | $130,000 | $0 | $299,146 | $299,146 |
| 2015 | $171,434 | $74,400 | $0 | $245,834 | $245,834 |
| 2014 | $173,718 | $74,400 | $0 | $248,118 | $248,118 |
| 2013 | $176,003 | $74,400 | $0 | $250,403 | $250,403 |
| 2012 | $178,290 | $74,400 | $0 | $252,690 | $252,690 |
| 2011 | $180,574 | $93,000 | $0 | $273,574 | $273,574 |
| 2010 | $146,940 | $93,000 | $0 | $239,940 | $239,940 |
| 2009 | $153,381 | $113,900 | $0 | $267,281 | $267,281 |
| 2008 | $161,779 | $122,043 | $0 | $283,822 | $283,822 |
| 2007 | $165,759 | $120,032 | $0 | $285,791 | $285,791 |
Deed and Sales History
| 1 | 11/04/2025 | WD | Warranty Deed | RMCL OPTIONS LLC | CAMPOS, LUIS CELEDONIO | | | $850,000.00 | 65353 | 4593108 |
| 2 | 09/24/2024 | WD | Warranty Deed | MULBREGHT, ANTHONY J | RMCL OPTIONS LLC | | | $540,000.00 | 61430 | 4577695 |
| 3 | 12/09/2015 | WD | Warranty Deed | FOSS, NATHAN | MULBREGHT, ANTHONY J | | | $312,500.00 | 22520 | 4391162 |
| 4 | 04/07/2009 | BLA | DNU - Boundary Line Adjustment | FOSS, NATHAN | FOSS, NATHAN | | | $0.00 | 81150 | 4216342 |
| 5 | 10/31/2007 | QCD | Quit Claim Deed | FOSS, NATHAN | FOSS, NATHAN | | | $0.00 | 73856 | 4216879 |
| 6 | 09/26/2007 | QCD | Quit Claim Deed | FOSS, NATHAN | FOSS, NATHAN | | | $0.00 | 73788 | 4216489 |
| 7 | 09/26/2007 | QCD | Quit Claim Deed | FOSS, NATHAN | FOSS, NATHAN | | | $10,000.00 | 73772 | 4216339 |
| 8 | 05/01/2006 | WD | Warranty Deed | FOSS, NATHAN | FOSS, NATHAN | | | $0.00 | 63764 | 4180556 |
| 9 | 12/30/2003 | REC | Real Estate Contract | MITCHELL, CHAD R | FOSS, NATHAN | | | $199,000.00 | 40018 | 4087645 |
| 10 | 11/14/2003 | 5 | DNU - Marriage License/Name Change | LIMITED PARTNERSHIP, ROLLEN RO | MITCHELL, CHAD R | | | $0.00 | 35244 | 4083614 |
| 11 | 09/12/2003 | 5 | DNU - Marriage License/Name Change | MITCHELL, CHAD R | LIMITED PARTNERSHIP, ROLLEN RO | | | $0.00 | 34166 | 4075495 |
| 12 | 03/01/1992 | WD | Warranty Deed | FATKIN, CHARLENE J | MITCHELL, CHAD R | | | $75,000.00 | 21086 | 92005451 |
| 13 | 06/01/1990 | QCD | Quit Claim Deed | CARLOS, ANDY E | FATKIN, CHARLENE J | | | $0.00 | 5840 | 90019751 |
| 14 | 04/01/1990 | QCD | Quit Claim Deed | CARLOS, ANDY, E | CARLOS, ANDY E | | | $0.00 | 2010 | 90006557 |
| 15 | 09/01/1981 | TRUSTEED | Trustee's Deed | BATTISTI, JEROME A | CARLOS, ANDY, E | | | $7,500.00 | 12964 | 388215 |
| 16 | 01/01/1900 | OTHER | Other - Misc. Documents | Unknown | BATTISTI, JEROME A | | | $0.00 | 0 | 0 |
Payout Agreement
| No payout information available.. |