Property
Account |
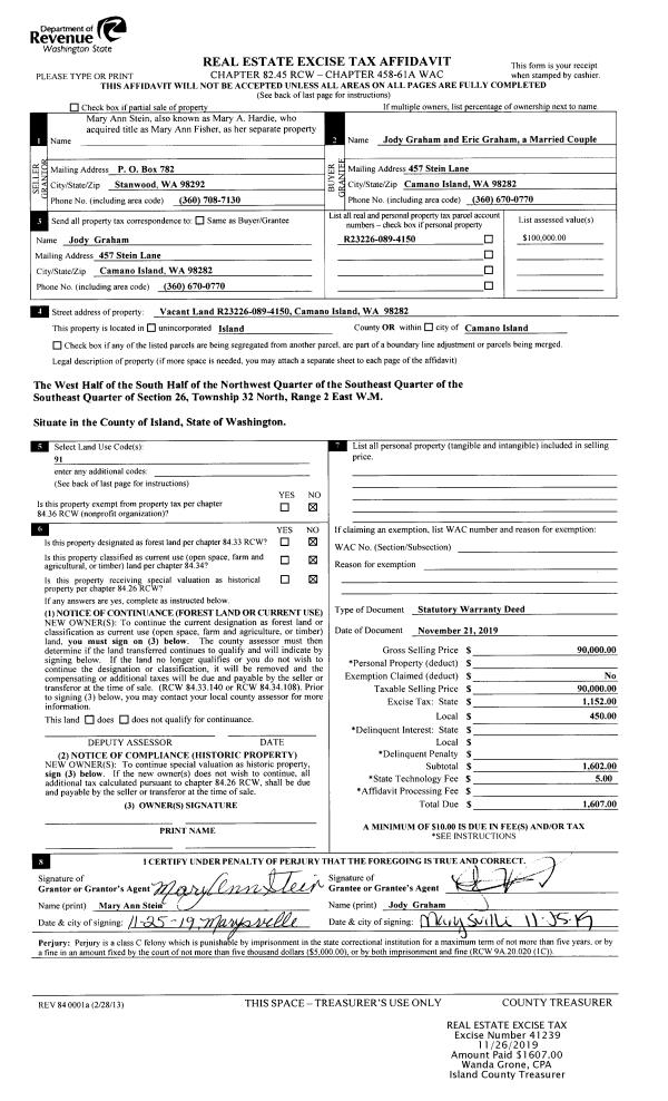
| Property ID: | 93400 | Abbreviated Legal Description: | 8 - W/2 S/2 NW SE SE EX E30' RD |
| Geographic ID: | R23226-089-4150 | Agent Code: | |
| Type: | Real | | |
| Tax Area: | 519 - APPRAISER-Stan/Cam Schl Dist, vacant & 50 acres or less | Land Use Code | 91 |
| Open Space: | N | DFL | N |
| Historic Property: | N | Remodel Property: | N |
| Multi-Family Redevelopment: | N | | |
| Township: | 32 | Section: | 26 |
| Range: | R2 |
Location |
| Address: | CAMANO ISLAND, WA 98282 | Mapsco: | |
| Neighborhood: | North Camano | Map ID: | 567 |
| Neighborhood CD: | 06-C |
Owner |
| Name: | GRAHAM, JODY | Owner ID: | 292690 |
| Mailing Address: | ERIC GRAHAM 457 STEIN LN CAMANO ISLAND, WA 98282 | % Ownership: | 100.0000000000% |
| | | Exemptions: | |
Taxes and Assessment Details
Values
| (+) Improvement Homesite Value: | + | $0 | |
| (+) Improvement Non-Homesite Value: | + | $0 | |
| (+) Land Homesite Value: | + | $0 | |
| (+) Land Non-Homesite Value: | + | $180,000 | |
| (+) Curr Use (HS): | + | $0 | $0 |
| (+) Curr Use (NHS): | + | $0 | $0 |
| | | -------------------------- | |
| (=) Market Value: | = | $180,000 | |
| (–) Productivity Loss: | – | $0 | |
| | | -------------------------- | |
| (=) Subtotal: | = | $180,000 | |
| (+) Senior Appraised Value: | + | $0 | |
| (+) Non-Senior Appraised Value: | + | $180,000 | |
| | | -------------------------- | |
| (=) Total Appraised Value: | = | $180,000 | |
| (–) Senior Exemption Loss: | – | $0 | |
| (–) Exemption Loss: | – | $0 | |
| | | -------------------------- | |
| (=) Taxable Value: | = | $180,000 | |
Taxing Jurisdiction
| Owner: | GRAHAM, JODY | | |
| % Ownership: | 100.0000000000% | | |
| Total Value: | $180,000 | | |
| Tax Area: | 519 - APPRAISER-Stan/Cam Schl Dist, vacant & 50 acres or less |
| CF | Conservation Futures | 0.0313996660 | $180,000 | $180,000 | $5.65 | | |
| EMS1 | Fire & Rescue Dist #1 Camano GEN (EMS) | 0.4998471806 | $180,000 | $180,000 | $89.97 | | |
| CE | County Current Expense | 0.3674210519 | $180,000 | $180,000 | $66.14 | | |
| CR | County Roads | 0.4614296361 | $180,000 | $180,000 | $83.06 | | |
| LIB | Library Sno-Isle GEN | 0.3039084203 | $180,000 | $180,000 | $54.70 | | |
| SCH205_401 | School 205-401 Enrichment | 1.3697998934 | $180,000 | $180,000 | $246.56 | | |
| SCH205BOND | School 205-401 BOND | 0.9354199323 | $180,000 | $180,000 | $168.38 | | |
| ST | State School | 1.4761226122 | $180,000 | $180,000 | $265.70 | | |
| ST2 | State School Part 2 | 0.7953803475 | $180,000 | $180,000 | $143.17 | | |
| | Total Tax Rate: | 6.2407287403 | | | | | |
| | | | | Taxes w/Current Exemptions: | $1,123.33 | | |
| | | | | Taxes w/o Exemptions: | $1,123.33 | | |
Improvement / Building
Sketch
| No sketches available for this property. |
Property Image
Land
| 1 | 18 | AC (02.01-03.00) | 2.5600 | 111513.60 | 0.00 | 0.00 | 1.00 | $180,000 | $0 |
Roll Value History
| 2026 | N/A | N/A | N/A | N/A | N/A |
| 2025 | $0 | $180,000 | $0 | $180,000 | $180,000 |
| 2024 | $0 | $160,000 | $0 | $160,000 | $160,000 |
| 2023 | $0 | $140,000 | $0 | $140,000 | $140,000 |
| 2022 | $0 | $170,000 | $0 | $170,000 | $170,000 |
| 2021 | $0 | $100,000 | $0 | $100,000 | $100,000 |
| 2020 | $0 | $100,000 | $0 | $100,000 | $100,000 |
| 2019 | $0 | $100,000 | $0 | $100,000 | $100,000 |
| 2018 | $0 | $80,000 | $0 | $80,000 | $80,000 |
| 2017 | $0 | $90,000 | $0 | $90,000 | $90,000 |
| 2016 | $0 | $75,000 | $0 | $75,000 | $75,000 |
| 2015 | $0 | $59,096 | $0 | $59,096 | $59,096 |
| 2014 | $0 | $59,096 | $0 | $59,096 | $59,096 |
| 2013 | $0 | $59,096 | $0 | $59,096 | $59,096 |
| 2012 | $0 | $59,096 | $0 | $59,096 | $59,096 |
| 2011 | $0 | $74,400 | $0 | $74,400 | $74,400 |
| 2010 | $0 | $74,400 | $0 | $74,400 | $74,400 |
| 2009 | $0 | $79,900 | $0 | $79,900 | $79,900 |
| 2008 | $0 | $95,000 | $0 | $95,000 | $95,000 |
| 2007 | $0 | $95,000 | $0 | $95,000 | $95,000 |
Deed and Sales History
| 1 | 11/21/2019 | WD | Warranty Deed | HARDIE, MARY A | GRAHAM, JODY | | | $90,000.00 | 41239 | 4476289 |
| 2 | 05/01/2006 | OTHER | Other - Misc. Documents | FISHER, MARY A | HARDIE, MARY A | | | $0.00 | 70928 | 0 |
| 3 | 06/01/1994 | WD | Warranty Deed | STEIN, MELVIN A | FISHER, MARY A | | | $25,000.00 | 43368 | 94017920 |
| 4 | 01/01/1900 | OTHER | Other - Misc. Documents | STEIN, MARGARET L | STEIN, MELVIN A | | | $0.00 | 0 | 0 |
| 5 | 01/01/1900 | REC | Real Estate Contract | Unknown | STEIN, MARGARET L | | | $0.00 | 58837 | 0 |
Payout Agreement
| No payout information available.. |