Property
Account |
| Property ID: | 95925 | Abbreviated Legal Description: | 125 - IN GL 2 & IN NE SE |
| Geographic ID: | R23234-226-4000 | Agent Code: | |
| Type: | Real | | |
| Tax Area: | 510 - APPRAISER-Stan/Cam Schl Dist, improved & 1 acre or less | Land Use Code | 11 |
| Open Space: | N | DFL | N |
| Historic Property: | N | Remodel Property: | N |
| Multi-Family Redevelopment: | N | | |
| Township: | 32 | Section: | 34 |
| Range: | R2 |
Location |
| Address: | 165 HENNING DR CAMANO ISLAND, WA 98282 | Mapsco: | |
| Neighborhood: | North Camano | Map ID: | 573 |
| Neighborhood CD: | 06-C |
Owner |
| Name: | HOVERTER, ROBERT C | Owner ID: | 280677 |
| Mailing Address: | MARGARET M HOVERTER 165 HENNING DR CAMANO ISLAND, WA 98282 | % Ownership: | 100.0000000000% |
| | | Exemptions: | |
Taxes and Assessment Details
Values
| (+) Improvement Homesite Value: | + | $0 | |
| (+) Improvement Non-Homesite Value: | + | $179,709 | |
| (+) Land Homesite Value: | + | $0 | |
| (+) Land Non-Homesite Value: | + | $290,000 | |
| (+) Curr Use (HS): | + | $0 | $0 |
| (+) Curr Use (NHS): | + | $0 | $0 |
| | | -------------------------- | |
| (=) Market Value: | = | $469,709 | |
| (–) Productivity Loss: | – | $0 | |
| | | -------------------------- | |
| (=) Subtotal: | = | $469,709 | |
| (+) Senior Appraised Value: | + | $0 | |
| (+) Non-Senior Appraised Value: | + | $469,709 | |
| | | -------------------------- | |
| (=) Total Appraised Value: | = | $469,709 | |
| (–) Senior Exemption Loss: | – | $0 | |
| (–) Exemption Loss: | – | $0 | |
| | | -------------------------- | |
| (=) Taxable Value: | = | $469,709 | |
Taxing Jurisdiction
| Owner: | HOVERTER, ROBERT C | | |
| % Ownership: | 100.0000000000% | | |
| Total Value: | $469,709 | | |
| Tax Area: | 510 - APPRAISER-Stan/Cam Schl Dist, improved & 1 acre or less |
| CF | Conservation Futures | 0.0313996660 | $469,709 | $469,709 | $14.75 | | |
| EMS1 | Fire & Rescue Dist #1 Camano GEN (EMS) | 0.4998471806 | $469,709 | $469,709 | $234.78 | | |
| FIRE1 | Fire & Rescue Dist #1 Camano GEN | 1.2496603404 | $469,709 | $469,709 | $586.98 | | |
| FIRE1BOND | Fire & Rescue Dist #1 Camano BOND | 0.1630371212 | $469,709 | $469,709 | $76.58 | | |
| CE | County Current Expense | 0.3674210519 | $469,709 | $469,709 | $172.58 | | |
| CR | County Roads | 0.4614296361 | $469,709 | $469,709 | $216.74 | | |
| LIB | Library Sno-Isle GEN | 0.3039084203 | $469,709 | $469,709 | $142.75 | | |
| SCH205_401 | School 205-401 Enrichment | 1.3697998934 | $469,709 | $469,709 | $643.41 | | |
| SCH205BOND | School 205-401 BOND | 0.9354199323 | $469,709 | $469,709 | $439.38 | | |
| ST | State School | 1.4761226122 | $469,709 | $469,709 | $693.35 | | |
| ST2 | State School Part 2 | 0.7953803475 | $469,709 | $469,709 | $373.60 | | |
| | Total Tax Rate: | 7.6534262019 | | | | | |
| | | | | Taxes w/Current Exemptions: | $3,594.90 | | |
| | | | | Taxes w/o Exemptions: | $3,594.90 | | |
Improvement / Building
| Improvement #1: | RESIDENTIAL | State Code: | Y | 768.0 sqft | Value: | $179,709 |
| Bathrooms: | 1 | Bedrooms: | 2 | | Ceiling: | ACOUSTIC FURRED | Exterior Wall/Cover: | PLY/HARDBOARD T-111 | | Floor Covering: | VINYL TILE/CARP 20-80 | Floor Structure: | WOOD W/SUBFLOOR | | Foundation: | CONCRETE | Heating: | BASEBOARD ELECTRIC | | Interior Finish: | DRYWALL PAINT | Plumbing Fixture Cnt: | 6 | | Roof Slope: | 6" IN 12" | Roof Structure/Cover: | BEAM ASPHALT |
|
| | Type | Description | Class CD | Sub Class CD | Year Built | Area |
| | BAS | BASE/MAIN FLOOR | 3 | 0 | 1969 | 768.0 |
| | OWP | OPEN WOOD PORCH W/STEPS | 3 | 0 | 1969 | 416.0 |
| | DGR | DETACHED GARAGE | 3 | 0 | 1969 | 432.0 |
| | UTY | STORAGE/UTILITY | 3 | 0 | 1969 | 240.0 |
Sketch
Property Image
Land
| 1 | 16 | AC (00.51-01.00) | 0.0000 | 0.00 | 0.00 | 0.00 | 1.00 | $290,000 | $0 |
Roll Value History
| 2026 | N/A | N/A | N/A | N/A | N/A |
| 2025 | $179,709 | $290,000 | $0 | $469,709 | $469,709 |
| 2024 | $185,510 | $280,000 | $0 | $465,510 | $465,510 |
| 2023 | $187,823 | $280,000 | $0 | $467,823 | $467,823 |
| 2022 | $154,364 | $230,000 | $0 | $384,364 | $384,364 |
| 2021 | $135,943 | $160,000 | $0 | $295,943 | $295,943 |
| 2020 | $132,294 | $130,000 | $0 | $262,294 | $262,294 |
| 2019 | $92,582 | $190,000 | $0 | $282,582 | $282,582 |
| 2018 | $92,866 | $180,000 | $0 | $272,866 | $272,866 |
| 2017 | $93,436 | $120,000 | $0 | $213,436 | $213,436 |
| 2016 | $96,826 | $90,000 | $0 | $186,826 | $186,826 |
| 2015 | $78,099 | $66,400 | $0 | $144,499 | $144,499 |
| 2014 | $79,300 | $66,400 | $0 | $145,700 | $145,700 |
| 2013 | $80,502 | $66,400 | $0 | $146,902 | $146,902 |
| 2012 | $81,703 | $66,400 | $0 | $148,103 | $148,103 |
| 2011 | $82,905 | $83,000 | $0 | $165,905 | $165,905 |
| 2010 | $88,559 | $83,000 | $0 | $171,559 | $171,559 |
| 2009 | $96,492 | $114,000 | $0 | $210,492 | $210,492 |
| 2008 | $97,079 | $100,000 | $0 | $197,079 | $197,079 |
| 2007 | $98,724 | $100,000 | $0 | $198,724 | $198,724 |
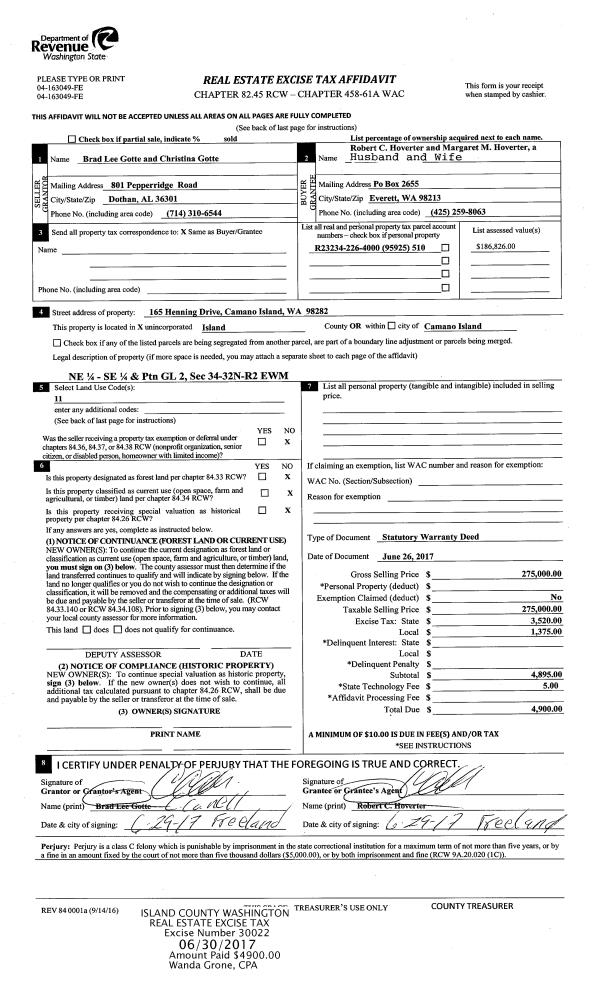
Deed and Sales History
| 1 | 06/26/2017 | WD | Warranty Deed | GOTTE, BRAD LEE | HOVERTER, ROBERT C | | | $275,000.00 | 30022 | 4425400 |
| 2 | 11/24/2015 | ESTSEPPROP | Establish Separate Property | GOTTE, BRAD LEE | GOTTE, BRAD LEE | | | $0.00 | 22446 | 4390862 |
| 3 | 11/24/2015 | WD | Warranty Deed | HUNTER, EDWARD | GOTTE, BRAD LEE | | | $199,900.00 | 22445 | 4390862 |
| 4 | 11/06/2013 | WD | Warranty Deed | SORENSON, KENT H | HUNTER, EDWARD | | | $163,750.00 | 13367 | 4350982 |
| 5 | 07/15/2003 | WD | Warranty Deed | MONROE, RANDOLPH J | SORENSON, KENT H | | | $154,000.00 | 33073 | 4067156 |
| 6 | 03/14/2001 | WD | Warranty Deed | Unknown | MONROE, RANDOLPH J | | | $120,000.00 | 10838 | 20027445 |
Payout Agreement
| No payout information available.. |