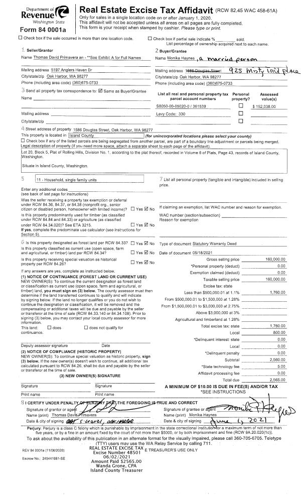
Property
Account |
| Property ID: | 96247 | Abbreviated Legal Description: | 28 - N/2 SW SE SE EX E30' & W30' |
| Geographic ID: | R23235-050-4280 | Agent Code: | |
| Type: | Real | | |
| Tax Area: | 512 - APPRAISER-Stan/Cam Schl Dist, improved, greater than 1 acre | Land Use Code | 11 |
| Open Space: | N | DFL | N |
| Historic Property: | N | Remodel Property: | N |
| Multi-Family Redevelopment: | N | | |
| Township: | 32 | Section: | 35 |
| Range: | R2 |
Location |
| Address: | 37 N CAMANO RIDGE RD CAMANO ISLAND, WA 98282 | Mapsco: | |
| Neighborhood: | North Camano | Map ID: | 576 |
| Neighborhood CD: | 06-C |
Owner |
| Name: | BELTJENS, DANIEL | Owner ID: | 295543 |
| Mailing Address: | 37 N CAMANO RIDGE RD CAMANO ISLAND, WA 98282 | % Ownership: | 100.0000000000% |
| | | Exemptions: | |
Taxes and Assessment Details
Values
| (+) Improvement Homesite Value: | + | $86,905 | |
| (+) Improvement Non-Homesite Value: | + | $0 | |
| (+) Land Homesite Value: | + | $360,000 | |
| (+) Land Non-Homesite Value: | + | $0 | |
| (+) Curr Use (HS): | + | $0 | $0 |
| (+) Curr Use (NHS): | + | $0 | $0 |
| | | -------------------------- | |
| (=) Market Value: | = | $446,905 | |
| (–) Productivity Loss: | – | $0 | |
| | | -------------------------- | |
| (=) Subtotal: | = | $446,905 | |
| (+) Senior Appraised Value: | + | $0 | |
| (+) Non-Senior Appraised Value: | + | $446,905 | |
| | | -------------------------- | |
| (=) Total Appraised Value: | = | $446,905 | |
| (–) Senior Exemption Loss: | – | $0 | |
| (–) Exemption Loss: | – | $0 | |
| | | -------------------------- | |
| (=) Taxable Value: | = | $446,905 | |
Taxing Jurisdiction
| Owner: | BELTJENS, DANIEL | | |
| % Ownership: | 100.0000000000% | | |
| Total Value: | $446,905 | | |
| Tax Area: | 512 - APPRAISER-Stan/Cam Schl Dist, improved, greater than 1 acre |
| CF | Conservation Futures | 0.0313996660 | $446,905 | $446,905 | $14.03 | | |
| EMS1 | Fire & Rescue Dist #1 Camano GEN (EMS) | 0.4998471806 | $446,905 | $446,905 | $223.38 | | |
| FIRE1 | Fire & Rescue Dist #1 Camano GEN | 1.2496603404 | $446,905 | $446,905 | $558.48 | | |
| FIRE1BOND | Fire & Rescue Dist #1 Camano BOND | 0.1630371212 | $446,905 | $446,905 | $72.86 | | |
| CE | County Current Expense | 0.3674210519 | $446,905 | $446,905 | $164.20 | | |
| CR | County Roads | 0.4614296361 | $446,905 | $446,905 | $206.22 | | |
| LIB | Library Sno-Isle GEN | 0.3039084203 | $446,905 | $446,905 | $135.82 | | |
| SCH205_401 | School 205-401 Enrichment | 1.3697998934 | $446,905 | $446,905 | $612.17 | | |
| SCH205BOND | School 205-401 BOND | 0.9354199323 | $446,905 | $446,905 | $418.04 | | |
| ST | State School | 1.4761226122 | $446,905 | $446,905 | $659.69 | | |
| ST2 | State School Part 2 | 0.7953803475 | $446,905 | $446,905 | $355.46 | | |
| | Total Tax Rate: | 7.6534262019 | | | | | |
| | | | | Taxes w/Current Exemptions: | $3,420.35 | | |
| | | | | Taxes w/o Exemptions: | $3,420.35 | | |
Improvement / Building
| Improvement #1: | MANUFACTURED HOME | State Code: | Y | 1248.0 sqft | Value: | $86,905 |
| Bathrooms: | 2 | Bedrooms: | 2 | | Ceiling: | PLASTER PAINTED | Cooling: | EVAP NO DUCT | | Exterior Wall/Cover: | VINYL | Floor Covering: | CARPET 100% | | Floor Structure: | SLAB ON GRADE | Foundation: | SLAB | | Heating: | FHA ELECTRIC | Interior Finish: | PLASTER | | Plumbing Fixture Cnt: | 1 | Roof Slope: | FLAT | | Roof Structure/Cover: | CJ ALUMINIUM HEAVY |   |   |
|
| | Type | Description | Class CD | Sub Class CD | Year Built | Area |
| | BAS | BASE/MAIN FLOOR | 4 | 0 | 1982 | 1248.0 |
| | oOBD | Out Buildings | 4 | 0 | 1982 | 0.0 |
| | OWR | OPEN WOOD PORCH W/STEPS/ROOF | 4 | 0 | 1982 | 520.0 |
| | CPD | OPEN CARPORT DIRT FLOOR | 4 | 0 | 1982 | 330.0 |
Sketch
Property Image
Land
| 1 | 32 | AC (03.01-09.99) | 4.5500 | 0.00 | 0.00 | 0.00 | 1.00 | $360,000 | $0 |
Roll Value History
| 2026 | N/A | N/A | N/A | N/A | N/A |
| 2025 | $86,905 | $360,000 | $0 | $446,905 | $446,905 |
| 2024 | $90,038 | $340,000 | $0 | $430,038 | $430,038 |
| 2023 | $86,976 | $320,000 | $0 | $406,976 | $406,976 |
| 2022 | $78,382 | $300,000 | $0 | $378,382 | $378,382 |
| 2021 | $74,626 | $230,000 | $0 | $304,626 | $304,626 |
| 2020 | $60,098 | $190,000 | $0 | $250,098 | $250,098 |
| 2019 | $53,020 | $220,000 | $0 | $273,020 | $82,643 |
| 2018 | $54,455 | $175,000 | $0 | $229,455 | $82,643 |
| 2017 | $56,608 | $150,000 | $0 | $206,608 | $82,643 |
| 2016 | $46,758 | $150,000 | $0 | $196,758 | $196,758 |
| 2015 | $47,921 | $101,920 | $0 | $149,841 | $149,841 |
| 2014 | $49,666 | $101,920 | $0 | $151,586 | $151,586 |
| 2013 | $50,830 | $101,920 | $0 | $152,750 | $152,750 |
| 2012 | $51,993 | $101,920 | $0 | $153,913 | $153,913 |
| 2011 | $53,156 | $127,400 | $0 | $180,556 | $180,556 |
| 2010 | $56,141 | $127,400 | $0 | $183,541 | $183,541 |
| 2009 | $59,014 | $152,425 | $0 | $211,439 | $211,439 |
| 2008 | $60,806 | $197,925 | $0 | $258,731 | $258,731 |
| 2007 | $62,868 | $197,925 | $0 | $260,793 | $260,793 |
Deed and Sales History
| 1 | 07/29/2020 | QCD | Quit Claim Deed | BELTJENS, LISA | BELTJENS, DANIEL | | | $0.00 | 44100 | 4493074 |
| 2 | 07/29/2020 | WD | Warranty Deed | RICH, WILLIAM J & LYNN D | BELTJENS, DANIEL | | | $350,000.00 | 44099 | 4493073 |
| 3 | 12/01/1990 | OTHER | Other - Misc. Documents | LOGAN, LYNN D | RICH, WILLIAM J | | | $0.00 | 63990 | 0 |
| 4 | 02/01/1988 | OTHER | Other - Misc. Documents | REEVES, JAMES | RICH, WILLIAM J | | | $46,553.00 | 80441 | 0 |
| 5 | 02/01/1988 | WD | Warranty Deed | RICH, WILLIAM J | LOGAN, LYNN D | | | $21,947.00 | 80440 | 88001855 |
| 6 | 07/01/1984 | OTHER | Other - Misc. Documents | REEVES, JAMES M | REEVES, JAMES | | | $0.00 | 0 | 0 |
| 7 | 11/01/1983 | WD | Warranty Deed | GOODSELL, ALFRED | REEVES, JAMES M | | | $28,000.00 | 33361 | 417546 |
| 8 | 09/01/1983 | QCD | Quit Claim Deed | BOURG, CHARLES E | GOODSELL, ALFRED | | | $0.00 | 32978 | 416032 |
| 9 | 06/01/1979 | EXECUTORD | Executor Deed | GOODSELL, ALFRED | BOURG, CHARLES E | | | $25,000.00 | 93065 | 354529 |
| 10 | 01/01/1900 | OTHER | Other - Misc. Documents | Unknown | REEVES, JAMES | | | $0.00 | 0 | 0 |
| 11 | 01/01/1900 | OTHER | Other - Misc. Documents | REEVES, JAMES | GOODSELL, ALFRED | | | $0.00 | 0 | 0 |
Payout Agreement
| No payout information available.. |