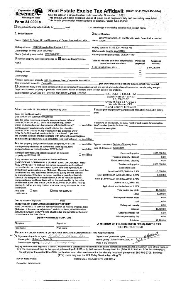
Property
Account |
| Property ID: | 9653 | Abbreviated Legal Description: | OUT 2 W CROCKETT - BG NW CR W CROCKETT DLC S1*W1689.49' S88*E380' TPB S1*W353' S88* E617.25' N1*E353' N88*W617. 25' TPB TGW & SUB EZS EZS |
| Geographic ID: | R13115-332-1350 | Agent Code: | |
| Type: | Real | | |
| Tax Area: | 312 - APPRAISER-Cpvl Schl Dist, outside Cpvl, improved, greater than 1 acre | Land Use Code | 11 |
| Open Space: | N | DFL | N |
| Historic Property: | N | Remodel Property: | N |
| Multi-Family Redevelopment: | N | | |
| Township: | 31 | Section: | 15 |
| Range: | R1 |
Location |
| Address: | 938 BLOCKHOUSE RD COUPEVILLE, WA 98239 | Mapsco: | |
| Neighborhood: | Cycle 2 | Map ID: | 68 |
| Neighborhood CD: | 2 |
Owner |
| Name: | ZOOK JR, JOHN W. | Owner ID: | 307053 |
| Mailing Address: | NANETTE M. ROSENTHAL 938 BLOCKHOUSE RD COUPEVILLE, WA 98239 | % Ownership: | 100.0000000000% |
| | | Exemptions: | |
Taxes and Assessment Details
Values
| (+) Improvement Homesite Value: | + | $0 | |
| (+) Improvement Non-Homesite Value: | + | $788,219 | |
| (+) Land Homesite Value: | + | $0 | |
| (+) Land Non-Homesite Value: | + | $331,428 | |
| (+) Curr Use (HS): | + | $0 | $0 |
| (+) Curr Use (NHS): | + | $0 | $0 |
| | | -------------------------- | |
| (=) Market Value: | = | $1,119,647 | |
| (–) Productivity Loss: | – | $0 | |
| | | -------------------------- | |
| (=) Subtotal: | = | $1,119,647 | |
| (+) Senior Appraised Value: | + | $0 | |
| (+) Non-Senior Appraised Value: | + | $1,119,647 | |
| | | -------------------------- | |
| (=) Total Appraised Value: | = | $1,119,647 | |
| (–) Senior Exemption Loss: | – | $0 | |
| (–) Exemption Loss: | – | $0 | |
| | | -------------------------- | |
| (=) Taxable Value: | = | $1,119,647 | |
Taxing Jurisdiction
| Owner: | ZOOK JR, JOHN W. | | |
| % Ownership: | 100.0000000000% | | |
| Total Value: | $1,119,647 | | |
| Tax Area: | 312 - APPRAISER-Cpvl Schl Dist, outside Cpvl, improved, greater than 1 acre |
| CF | Conservation Futures | 0.0313996660 | $1,119,647 | $1,119,647 | $35.16 | | |
| CEM2 | Cemetery #2 | 0.0092609791 | $1,119,647 | $1,119,647 | $10.37 | | |
| FIRE5 | Fire & Rescue Dist #5 C Whidbey GEN | 1.1892169230 | $1,119,647 | $1,119,647 | $1,331.50 | | |
| FIRE5BOND | Fire & Rescue Dist #5 C Whidbey BOND | 0.1394359503 | $1,119,647 | $1,119,647 | $156.12 | | |
| HOBOND | Hospital BOND | 0.1893405597 | $1,119,647 | $1,119,647 | $211.99 | | |
| HOGEN | Hospital GEN | 0.3848777722 | $1,119,647 | $1,119,647 | $430.93 | | |
| CE | County Current Expense | 0.3674210519 | $1,119,647 | $1,119,647 | $411.38 | | |
| CR | County Roads | 0.4614296361 | $1,119,647 | $1,119,647 | $516.64 | | |
| ISLANDEMS | Hospital GEN (EMS) | 0.4952018576 | $1,119,647 | $1,119,647 | $554.45 | | |
| LIB | Library Sno-Isle GEN | 0.3039084203 | $1,119,647 | $1,119,647 | $340.27 | | |
| LIBCAP | Library Sno-Isle BOND (Cap Fac Imp Area) | 0.0528562629 | $1,119,647 | $1,119,647 | $59.18 | | |
| POCOUP | Port of Coupeville GEN | 0.1065226063 | $1,119,647 | $1,119,647 | $119.27 | | |
| POCOUPIDD | Port of Coupeville IDD | 0.3353038577 | $1,119,647 | $1,119,647 | $375.42 | | |
| COUPSDTECH | School 204 CP (TECH) | 0.1215123397 | $1,119,647 | $1,119,647 | $136.05 | | |
| SCH204MO | School 204 Enrichment | 0.6416662518 | $1,119,647 | $1,119,647 | $718.44 | | |
| ST | State School | 1.4761226122 | $1,119,647 | $1,119,647 | $1,652.74 | | |
| ST2 | State School Part 2 | 0.7953803475 | $1,119,647 | $1,119,647 | $890.55 | | |
| | Total Tax Rate: | 7.1008570943 | | | | | |
| | | | | Taxes w/Current Exemptions: | $7,950.46 | | |
| | | | | Taxes w/o Exemptions: | $7,950.46 | | |
Improvement / Building
| Improvement #1: | RESIDENTIAL | State Code: | Y | 2716.2 sqft | Value: | $788,219 |
| Bathrooms: | 2.5 | Bedrooms: | 3 | | Ceiling: | TONGUE & GROOVE | Cooling: | HEAT PUMP/CONV/V | | Exterior Wall/Cover: | WOOD SIDING | Floor Covering: | HARDWOOD 100% | | Floor Structure: | WOOD W/SUBFLOOR | Foundation: | CONCRETE | | Interior Finish: | DRYWALL PAINT | Plumbing Fixture Cnt: | 12 | | Roof Slope: | 6" IN 12" | Roof Structure/Cover: | CJ ASPHALT |
|
| | Type | Description | Class CD | Sub Class CD | Year Built | Area |
| | BAS | BASE/MAIN FLOOR | 5 | 0 | 1989 | 2716.2 |
| | UB8 | BASEMENT UNFINISHED 8" | 5 | 0 | 1989 | 1024.0 |
| | AGR | ATTACHED GARAGE | 5 | 0 | 1989 | 1002.0 |
| | DGR | DETACHED GARAGE | 5 | 0 | 1989 | 761.4 |
| | OWP | OPEN WOOD PORCH W/STEPS | 5 | 0 | 1989 | 470.5 |
| | OWC | OPEN WOOD PORCH W/STEPS/ROOF/C | 5 | 0 | 1989 | 71.4 |
| | OWC | OPEN WOOD PORCH W/STEPS/ROOF/C | 5 | 0 | 1989 | 309.0 |
| | CPD | OPEN CARPORT DIRT FLOOR | 5 | 0 | 1989 | 64.0 |
Sketch
Property Image
Land
| 1 | HS | HOMESITE | 1.0000 | 43560.00 | 0.00 | 0.00 | 1.00 | $270,000 | $0 |
| 2 | 91 | UNDEVELOPED LAND-METES AND BOUNDS | 4.0000 | 174240.00 | 0.00 | 0.00 | 1.00 | $61,428 | $0 |
Roll Value History
| 2026 | N/A | N/A | N/A | N/A | N/A |
| 2025 | $788,219 | $331,428 | $0 | $1,119,647 | $1,119,647 |
| 2024 | $797,687 | $320,000 | $0 | $1,117,687 | $1,117,687 |
| 2023 | $807,155 | $310,000 | $0 | $1,117,155 | $1,117,155 |
| 2022 | $584,082 | $290,000 | $0 | $874,082 | $874,082 |
| 2021 | $514,553 | $220,000 | $0 | $734,553 | $734,553 |
| 2020 | $502,757 | $200,000 | $0 | $702,757 | $702,757 |
| 2019 | $385,222 | $250,000 | $0 | $635,222 | $635,222 |
| 2018 | $357,859 | $210,000 | $0 | $567,859 | $567,859 |
| 2017 | $358,736 | $200,000 | $0 | $558,736 | $558,736 |
| 2016 | $363,135 | $200,000 | $0 | $563,135 | $563,135 |
| 2015 | $367,534 | $200,000 | $0 | $567,534 | $567,534 |
| 2014 | $371,934 | $250,000 | $0 | $621,934 | $621,934 |
| 2013 | $406,348 | $170,000 | $0 | $576,348 | $576,348 |
| 2012 | $422,494 | $270,000 | $0 | $692,494 | $692,494 |
| 2011 | $427,247 | $300,000 | $0 | $727,247 | $727,247 |
| 2010 | $430,338 | $300,000 | $0 | $730,338 | $730,338 |
| 2009 | $448,878 | $325,000 | $0 | $773,878 | $773,878 |
| 2008 | $412,048 | $400,000 | $0 | $812,048 | $812,048 |
| 2007 | $418,249 | $400,000 | $0 | $818,249 | $818,249 |
Deed and Sales History
| 1 | 12/20/2022 | WD | Warranty Deed | BROWN, ROBERT O | ZOOK JR, JOHN W. | | | $1,050,000.00 | 55493 | 4555214 |
| 2 | 08/01/1978 | OTHER | Other - Misc. Documents | Unknown | BROWN, ROBERT O | | | $22,950.00 | 84388 | 339406 |
Payout Agreement
| No payout information available.. |