Property
Account |
| Property ID: | 96808 | Abbreviated Legal Description: | 85 - NW SW NE NE SUB EZ |
| Geographic ID: | R23235-446-4130 | Agent Code: | |
| Type: | Real | | |
| Tax Area: | 512 - APPRAISER-Stan/Cam Schl Dist, improved, greater than 1 acre | Land Use Code | 11 |
| Open Space: | N | DFL | N |
| Historic Property: | N | Remodel Property: | N |
| Multi-Family Redevelopment: | N | | |
| Township: | 32 | Section: | 35 |
| Range: | R2 |
Location |
| Address: | 337 CAMANO RIDGE RD CAMANO ISLAND, WA 98282 | Mapsco: | |
| Neighborhood: | North Camano | Map ID: | 578 |
| Neighborhood CD: | 06-C |
Owner |
| Name: | CLARKE, JANELL | Owner ID: | 309302 |
| Mailing Address: | PO BOX 122 STANWOOD, WA 98292 | % Ownership: | 100.0000000000% |
| | | Exemptions: | |
Taxes and Assessment Details
Values
| (+) Improvement Homesite Value: | + | $0 | |
| (+) Improvement Non-Homesite Value: | + | $11,259 | |
| (+) Land Homesite Value: | + | $0 | |
| (+) Land Non-Homesite Value: | + | $180,000 | |
| (+) Curr Use (HS): | + | $0 | $0 |
| (+) Curr Use (NHS): | + | $0 | $0 |
| | | -------------------------- | |
| (=) Market Value: | = | $191,259 | |
| (–) Productivity Loss: | – | $0 | |
| | | -------------------------- | |
| (=) Subtotal: | = | $191,259 | |
| (+) Senior Appraised Value: | + | $0 | |
| (+) Non-Senior Appraised Value: | + | $191,259 | |
| | | -------------------------- | |
| (=) Total Appraised Value: | = | $191,259 | |
| (–) Senior Exemption Loss: | – | $0 | |
| (–) Exemption Loss: | – | $0 | |
| | | -------------------------- | |
| (=) Taxable Value: | = | $191,259 | |
Taxing Jurisdiction
| Owner: | CLARKE, JANELL | | |
| % Ownership: | 100.0000000000% | | |
| Total Value: | $191,259 | | |
| Tax Area: | 512 - APPRAISER-Stan/Cam Schl Dist, improved, greater than 1 acre |
| CF | Conservation Futures | 0.0313996660 | $191,259 | $191,259 | $6.01 | | |
| EMS1 | Fire & Rescue Dist #1 Camano GEN (EMS) | 0.4998471806 | $191,259 | $191,259 | $95.60 | | |
| FIRE1 | Fire & Rescue Dist #1 Camano GEN | 1.2496603404 | $191,259 | $191,259 | $239.01 | | |
| FIRE1BOND | Fire & Rescue Dist #1 Camano BOND | 0.1630371212 | $191,259 | $191,259 | $31.18 | | |
| CE | County Current Expense | 0.3674210519 | $191,259 | $191,259 | $70.27 | | |
| CR | County Roads | 0.4614296361 | $191,259 | $191,259 | $88.25 | | |
| LIB | Library Sno-Isle GEN | 0.3039084203 | $191,259 | $191,259 | $58.13 | | |
| SCH205_401 | School 205-401 Enrichment | 1.3697998934 | $191,259 | $191,259 | $261.99 | | |
| SCH205BOND | School 205-401 BOND | 0.9354199323 | $191,259 | $191,259 | $178.91 | | |
| ST | State School | 1.4761226122 | $191,259 | $191,259 | $282.32 | | |
| ST2 | State School Part 2 | 0.7953803475 | $191,259 | $191,259 | $152.12 | | |
| | Total Tax Rate: | 7.6534262019 | | | | | |
| | | | | Taxes w/Current Exemptions: | $1,463.79 | | |
| | | | | Taxes w/o Exemptions: | $1,463.79 | | |
Improvement / Building
| Improvement #1: | RESIDENTIAL | State Code: | Y | 2628.8 sqft | Value: | $11,259 |
| Bathrooms: | 2 | Bedrooms: | 4 | | Ceiling: | (NONE) | Exterior Wall/Cover: | (NONE) | | Floor Covering: | (NONE) | Floor Structure: | WOOD W/SUBFLOOR | | Foundation: | MONO SLAB | Heating: | (NONE) | | Interior Finish: | (NONE) | Plumbing Fixture Cnt: | 15 | | Roof Slope: | 4" IN 12" | Roof Structure/Cover: | (NONE) |
|
| | Type | Description | Class CD | Sub Class CD | Year Built | Area |
| | BAS | BASE/MAIN FLOOR | 3 | 0 | 2025 | 2628.8 |
| | AGR | ATTACHED GARAGE | 3 | 0 | 2025 | 720.0 |
| | OWP | OPEN WOOD PORCH W/STEPS | 3 | 0 | 2025 | 480.0 |
Sketch
| No sketches available for this property. |
Property Image
Land
| 1 | HS | HOMESITE | 1.0000 | 43560.00 | 0.00 | 0.00 | 1.00 | $180,000 | $0 |
| 2 | 91 | UNDEVELOPED LAND-METES AND BOUNDS | 1.5000 | 65340.00 | 0.00 | 0.00 | 1.00 | $0 | $0 |
Roll Value History
| 2026 | N/A | N/A | N/A | N/A | N/A |
| 2025 | $11,259 | $180,000 | $0 | $191,259 | $191,259 |
| 2024 | $0 | $160,000 | $0 | $160,000 | $160,000 |
| 2023 | $0 | $140,000 | $0 | $140,000 | $140,000 |
| 2022 | $0 | $170,000 | $0 | $170,000 | $170,000 |
| 2021 | $0 | $100,000 | $0 | $100,000 | $100,000 |
| 2020 | $0 | $100,000 | $0 | $100,000 | $100,000 |
| 2019 | $0 | $100,000 | $0 | $100,000 | $100,000 |
| 2018 | $0 | $80,000 | $0 | $80,000 | $80,000 |
| 2017 | $0 | $90,000 | $0 | $90,000 | $90,000 |
| 2016 | $0 | $75,000 | $0 | $75,000 | $75,000 |
| 2015 | $0 | $59,096 | $0 | $59,096 | $59,096 |
| 2014 | $0 | $59,096 | $0 | $59,096 | $59,096 |
| 2013 | $0 | $59,096 | $0 | $59,096 | $59,096 |
| 2012 | $0 | $59,096 | $0 | $59,096 | $59,096 |
| 2011 | $0 | $74,400 | $0 | $74,400 | $74,400 |
| 2010 | $0 | $74,400 | $0 | $74,400 | $74,400 |
| 2009 | $0 | $84,000 | $0 | $84,000 | $84,000 |
| 2008 | $0 | $95,000 | $0 | $95,000 | $95,000 |
| 2007 | $0 | $95,000 | $0 | $95,000 | $95,000 |
Deed and Sales History
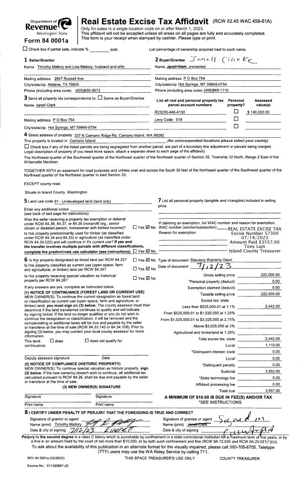
| 1 | 07/12/2023 | WD | Warranty Deed | MALLORY, TIMOTHY | CLARKE, JANELL | | | $222,000.00 | 57300 | 4562260 |
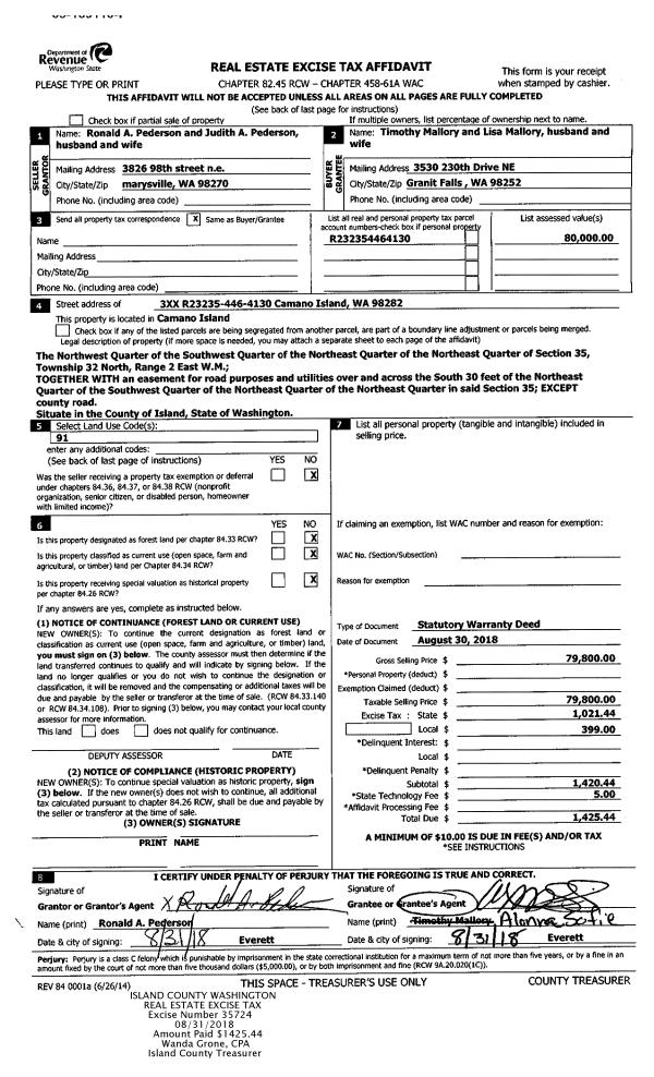
| 2 | 08/30/2018 | WD | Warranty Deed | PEDERSON, RONALD A | MALLORY, TIMOTHY | | | $79,800.00 | 35724 | 4450998 |
| 3 | 04/01/1988 | WD | Warranty Deed | BAKKEN, OLE | PEDERSON, RONALD A | | | $9,000.00 | 81121 | 88004257 |
| 4 | 06/01/1979 | EXECUTORD | Executor Deed | HAGELIN, EDITH H | BAKKEN, OLE | | | $7,000.00 | 93020 | 354407 |
| 5 | 01/01/1900 | OTHER | Other - Misc. Documents | Unknown | HAGELIN, EDITH H | | | $0.00 | 0 | 0 |
Payout Agreement
| No payout information available.. |