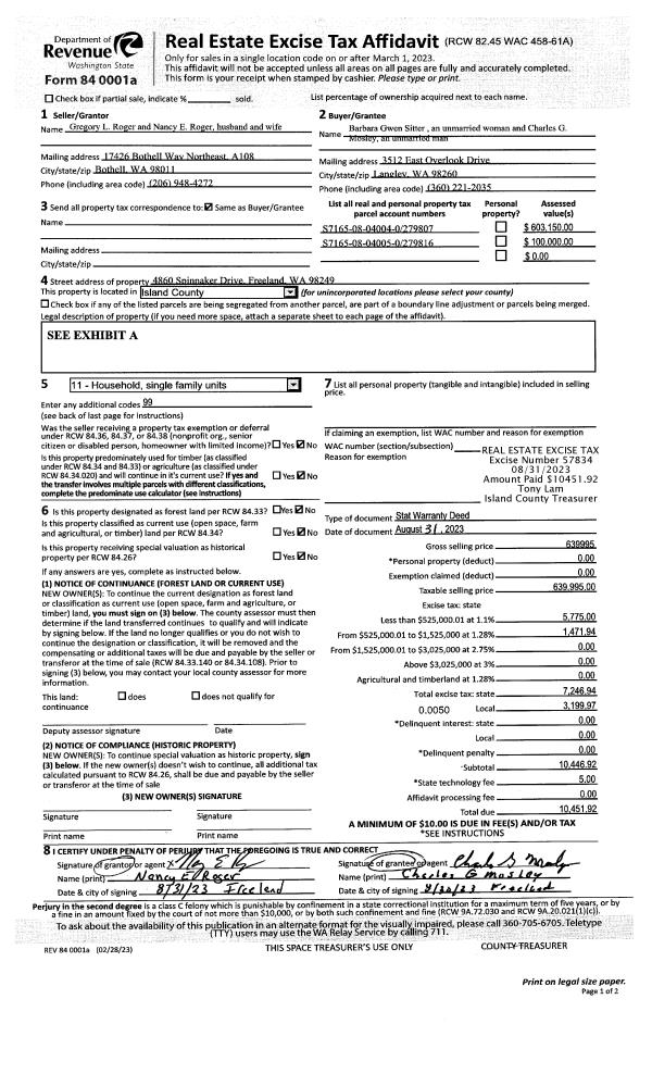
Property
Account |
| Property ID: | 96979 | Abbreviated Legal Description: | 22 - S330' OF N990' OF E990 OF W1980' OF N/2 NW TGW & SUBJ TO EZ |
| Geographic ID: | R23236-449-1490 | Agent Code: | |
| Type: | Real | | |
| Tax Area: | 519 - APPRAISER-Stan/Cam Schl Dist, vacant & 50 acres or less | Land Use Code | 91 |
| Open Space: | N | DFL | N |
| Historic Property: | N | Remodel Property: | N |
| Multi-Family Redevelopment: | N | | |
| Township: | 32 | Section: | 36 |
| Range: | R2 |
Location |
| Address: | 348 WINDSUN WAY CAMANO ISLAND, WA 98282 | Mapsco: | |
| Neighborhood: | North Camano | Map ID: | 581 |
| Neighborhood CD: | 06-C |
Owner |
| Name: | ODEN HOMES, LLC | Owner ID: | 311426 |
| Mailing Address: | 740 WEST FLINTSTONE DR CAMANO ISLAND, WA 98282 | % Ownership: | 100.0000000000% |
| | | Exemptions: | |
Taxes and Assessment Details
Values
| (+) Improvement Homesite Value: | + | $0 | |
| (+) Improvement Non-Homesite Value: | + | $0 | |
| (+) Land Homesite Value: | + | $0 | |
| (+) Land Non-Homesite Value: | + | $260,000 | |
| (+) Curr Use (HS): | + | $0 | $0 |
| (+) Curr Use (NHS): | + | $0 | $0 |
| | | -------------------------- | |
| (=) Market Value: | = | $260,000 | |
| (–) Productivity Loss: | – | $0 | |
| | | -------------------------- | |
| (=) Subtotal: | = | $260,000 | |
| (+) Senior Appraised Value: | + | $0 | |
| (+) Non-Senior Appraised Value: | + | $260,000 | |
| | | -------------------------- | |
| (=) Total Appraised Value: | = | $260,000 | |
| (–) Senior Exemption Loss: | – | $0 | |
| (–) Exemption Loss: | – | $0 | |
| | | -------------------------- | |
| (=) Taxable Value: | = | $260,000 | |
Taxing Jurisdiction
| Owner: | ODEN HOMES, LLC | | |
| % Ownership: | 100.0000000000% | | |
| Total Value: | $260,000 | | |
| Tax Area: | 519 - APPRAISER-Stan/Cam Schl Dist, vacant & 50 acres or less |
| CF | Conservation Futures | 0.0313996660 | $260,000 | $260,000 | $8.16 | | |
| EMS1 | Fire & Rescue Dist #1 Camano GEN (EMS) | 0.4998471806 | $260,000 | $260,000 | $129.96 | | |
| CE | County Current Expense | 0.3674210519 | $260,000 | $260,000 | $95.53 | | |
| CR | County Roads | 0.4614296361 | $260,000 | $260,000 | $119.97 | | |
| LIB | Library Sno-Isle GEN | 0.3039084203 | $260,000 | $260,000 | $79.02 | | |
| SCH205_401 | School 205-401 Enrichment | 1.3697998934 | $260,000 | $260,000 | $356.15 | | |
| SCH205BOND | School 205-401 BOND | 0.9354199323 | $260,000 | $260,000 | $243.21 | | |
| ST | State School | 1.4761226122 | $260,000 | $260,000 | $383.79 | | |
| ST2 | State School Part 2 | 0.7953803475 | $260,000 | $260,000 | $206.80 | | |
| | Total Tax Rate: | 6.2407287403 | | | | | |
| | | | | Taxes w/Current Exemptions: | $1,622.59 | | |
| | | | | Taxes w/o Exemptions: | $1,622.59 | | |
Improvement / Building
Sketch
| No sketches available for this property. |
Property Image
Land
| 1 | 32 | AC (03.01-09.99) | 7.5000 | 0.00 | 0.00 | 0.00 | 1.00 | $260,000 | $0 |
Roll Value History
| 2026 | N/A | N/A | N/A | N/A | N/A |
| 2025 | $0 | $260,000 | $0 | $260,000 | $260,000 |
| 2024 | $0 | $240,000 | $0 | $240,000 | $240,000 |
| 2023 | $0 | $200,000 | $0 | $200,000 | $200,000 |
| 2022 | $0 | $180,000 | $0 | $180,000 | $180,000 |
| 2021 | $0 | $130,000 | $0 | $130,000 | $130,000 |
| 2020 | $0 | $130,000 | $0 | $130,000 | $130,000 |
| 2019 | $0 | $140,000 | $0 | $140,000 | $140,000 |
| 2018 | $0 | $120,000 | $0 | $120,000 | $120,000 |
| 2017 | $0 | $90,000 | $0 | $90,000 | $90,000 |
| 2016 | $0 | $90,000 | $0 | $90,000 | $90,000 |
| 2015 | $0 | $150,000 | $0 | $150,000 | $150,000 |
| 2014 | $0 | $150,000 | $0 | $150,000 | $150,000 |
| 2013 | $0 | $150,000 | $0 | $150,000 | $150,000 |
| 2012 | $0 | $150,000 | $0 | $150,000 | $150,000 |
| 2011 | $0 | $150,000 | $0 | $150,000 | $150,000 |
| 2010 | $0 | $150,000 | $0 | $150,000 | $150,000 |
| 2009 | $0 | $225,000 | $0 | $225,000 | $225,000 |
| 2008 | $0 | $247,500 | $0 | $247,500 | $247,500 |
| 2007 | $0 | $247,500 | $0 | $247,500 | $247,500 |
Deed and Sales History
| 1 | 02/02/2024 | QCD | Quit Claim Deed | MINNICK, SHAWN | ODEN HOMES, LLC | | | $0.00 | 59206 | 4569411 |
| 2 | 09/07/2023 | WD | Warranty Deed | SCHULTZ, CLIFFORD N | MINNICK, SHAWN | | | $285,000.00 | 57921 | 4564462 |
| 3 | 09/01/1993 | QCD | Quit Claim Deed | SCHULTZ, CLIFFORD N | SCHULTZ, CLIFFORD N | | | $5,000.00 | 33775 | 93022307 |
| 4 | 11/01/1983 | QCD | Quit Claim Deed | SCHULTZ, CLIFFORD N | SCHULTZ, CLIFFORD N | | | $0.00 | 33464 | 417963 |
| 5 | 01/01/1900 | OTHER | Other - Misc. Documents | Unknown | SCHULTZ, CLIFFORD N | | | $0.00 | 0 | 0 |
Payout Agreement
| No payout information available.. |