Property
Account |
| Property ID: | 97013 | Abbreviated Legal Description: | W/2 OF E495' OF W990' OF S440' OF N880' OF NW NW TGW SUB EZ |
| Geographic ID: | R23236-466-0650 | Agent Code: | |
| Type: | Real | | |
| Tax Area: | 512 - APPRAISER-Stan/Cam Schl Dist, improved, greater than 1 acre | Land Use Code | 11 |
| Open Space: | N | DFL | N |
| Historic Property: | N | Remodel Property: | N |
| Multi-Family Redevelopment: | N | | |
| Township: | 32 | Section: | 36 |
| Range: | R2 |
Location |
| Address: | 352 SEQUOIA PLACE CAMANO ISLAND, WA 98282 | Mapsco: | |
| Neighborhood: | North Camano | Map ID: | 581 |
| Neighborhood CD: | 06-C |
Owner |
| Name: | LOCKE, GARY M | Owner ID: | 306297 |
| Mailing Address: | DANIEL E CHRISTENSEN 352 SEQUOIA PL CAMANO ISLAND, WA 98282 | % Ownership: | 100.0000000000% |
| | | Exemptions: | |
Taxes and Assessment Details
Values
| (+) Improvement Homesite Value: | + | $0 | |
| (+) Improvement Non-Homesite Value: | + | $212,827 | |
| (+) Land Homesite Value: | + | $0 | |
| (+) Land Non-Homesite Value: | + | $310,000 | |
| (+) Curr Use (HS): | + | $0 | $0 |
| (+) Curr Use (NHS): | + | $0 | $0 |
| | | -------------------------- | |
| (=) Market Value: | = | $522,827 | |
| (–) Productivity Loss: | – | $0 | |
| | | -------------------------- | |
| (=) Subtotal: | = | $522,827 | |
| (+) Senior Appraised Value: | + | $0 | |
| (+) Non-Senior Appraised Value: | + | $522,827 | |
| | | -------------------------- | |
| (=) Total Appraised Value: | = | $522,827 | |
| (–) Senior Exemption Loss: | – | $0 | |
| (–) Exemption Loss: | – | $0 | |
| | | -------------------------- | |
| (=) Taxable Value: | = | $522,827 | |
Taxing Jurisdiction
| Owner: | LOCKE, GARY M | | |
| % Ownership: | 100.0000000000% | | |
| Total Value: | $522,827 | | |
| Tax Area: | 512 - APPRAISER-Stan/Cam Schl Dist, improved, greater than 1 acre |
| CF | Conservation Futures | 0.0313996660 | $522,827 | $522,827 | $16.42 | | |
| EMS1 | Fire & Rescue Dist #1 Camano GEN (EMS) | 0.4998471806 | $522,827 | $522,827 | $261.33 | | |
| FIRE1 | Fire & Rescue Dist #1 Camano GEN | 1.2496603404 | $522,827 | $522,827 | $653.36 | | |
| FIRE1BOND | Fire & Rescue Dist #1 Camano BOND | 0.1630371212 | $522,827 | $522,827 | $85.24 | | |
| CE | County Current Expense | 0.3674210519 | $522,827 | $522,827 | $192.10 | | |
| CR | County Roads | 0.4614296361 | $522,827 | $522,827 | $241.25 | | |
| LIB | Library Sno-Isle GEN | 0.3039084203 | $522,827 | $522,827 | $158.89 | | |
| SCH205_401 | School 205-401 Enrichment | 1.3697998934 | $522,827 | $522,827 | $716.17 | | |
| SCH205BOND | School 205-401 BOND | 0.9354199323 | $522,827 | $522,827 | $489.06 | | |
| ST | State School | 1.4761226122 | $522,827 | $522,827 | $771.76 | | |
| ST2 | State School Part 2 | 0.7953803475 | $522,827 | $522,827 | $415.85 | | |
| | Total Tax Rate: | 7.6534262019 | | | | | |
| | | | | Taxes w/Current Exemptions: | $4,001.43 | | |
| | | | | Taxes w/o Exemptions: | $4,001.43 | | |
Improvement / Building
| Improvement #1: | MANUFACTURED HOME | State Code: | Y | 1296.0 sqft | Value: | $212,827 |
| Bathrooms: | 1 | Bedrooms: | 2 | | Ceiling: | PLASTER PAINTED | Cooling: | EVAP NO DUCT | | Exterior Wall/Cover: | VINYL | Floor Covering: | CARPET 100% | | Floor Structure: | SLAB ON GRADE | Foundation: | SLAB | | Heating: | FHA ELECTRIC | Interior Finish: | PLASTER | | Plumbing Fixture Cnt: | 1 | Roof Slope: | FLAT | | Roof Structure/Cover: | CJ ALUMINIUM HEAVY |   |   |
|
| | Type | Description | Class CD | Sub Class CD | Year Built | Area |
| | BAS | BASE/MAIN FLOOR | 4 | 0 | 2023 | 1296.0 |
| | oGAR | GARAGE | 4 | 0 | 2023 | 864.0 |
Sketch
| No sketches available for this property. |
Property Image
Land
| 1 | 18 | AC (02.01-03.00) | 0.0000 | 0.00 | 0.00 | 0.00 | 1.00 | $310,000 | $0 |
Roll Value History
| 2026 | N/A | N/A | N/A | N/A | N/A |
| 2025 | $212,827 | $310,000 | $0 | $522,827 | $522,827 |
| 2024 | $163,837 | $300,000 | $0 | $463,837 | $463,837 |
| 2023 | $138,414 | $300,000 | $0 | $438,414 | $438,414 |
| 2022 | $4,000 | $130,000 | $0 | $134,000 | $134,000 |
| 2021 | $4,000 | $100,000 | $0 | $104,000 | $104,000 |
| 2020 | $4,000 | $100,000 | $0 | $104,000 | $104,000 |
| 2019 | $4,000 | $100,000 | $0 | $104,000 | $104,000 |
| 2018 | $4,000 | $90,000 | $0 | $94,000 | $94,000 |
| 2017 | $4,000 | $90,000 | $0 | $94,000 | $94,000 |
| 2016 | $4,000 | $90,000 | $0 | $94,000 | $94,000 |
| 2015 | $4,000 | $80,000 | $0 | $84,000 | $84,000 |
| 2014 | $4,000 | $80,000 | $0 | $84,000 | $84,000 |
| 2013 | $4,000 | $80,000 | $0 | $84,000 | $84,000 |
| 2012 | $4,000 | $80,000 | $0 | $84,000 | $84,000 |
| 2011 | $4,000 | $100,000 | $0 | $104,000 | $104,000 |
| 2010 | $4,000 | $100,000 | $0 | $104,000 | $104,000 |
| 2009 | $4,000 | $160,000 | $0 | $164,000 | $164,000 |
| 2008 | $4,000 | $220,000 | $0 | $224,000 | $224,000 |
| 2007 | $4,000 | $220,000 | $0 | $224,000 | $224,000 |
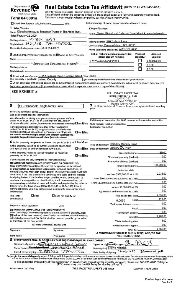
Deed and Sales History
| 1 | 09/21/2022 | WD | Warranty Deed | MINNICK, SHAWN | LOCKE, GARY M | | | $286,000.00 | 54804 | 4552300 |
| 2 | 01/28/2022 | WD | Warranty Deed | LEWIS, EUGENE | MINNICK, SHAWN | | | $185,000.00 | 51858 | 4539122 |
| 3 | 05/07/1999 | WD | Warranty Deed | ELINE, KENNETH R | LEWIS, EUGENE | | | $45,000.00 | 91879 | 99011907 |
| 4 | 05/05/1999 | ESTSEPPROP | Establish Separate Property | STILL, LOUIS G | ELINE, KENNETH R | | | $0.00 | 91878 | 99011906 |
| 5 | 03/01/1991 | QCD | Quit Claim Deed | STILL, LOUIS G | STILL, LOUIS G | | | $0.00 | 10941 | 91004099 |
| 6 | 04/01/1982 | CD | DNU - Correction Deed | STILL, LOUIS G | STILL, LOUIS G | | | $1.00 | 21259 | 396771 |
| 7 | 02/01/1979 | OTHER | Other - Misc. Documents | Unknown | STILL, LOUIS G | | | $0.00 | 91982 | 351605 |
Payout Agreement
| No payout information available.. |