Property
Account |
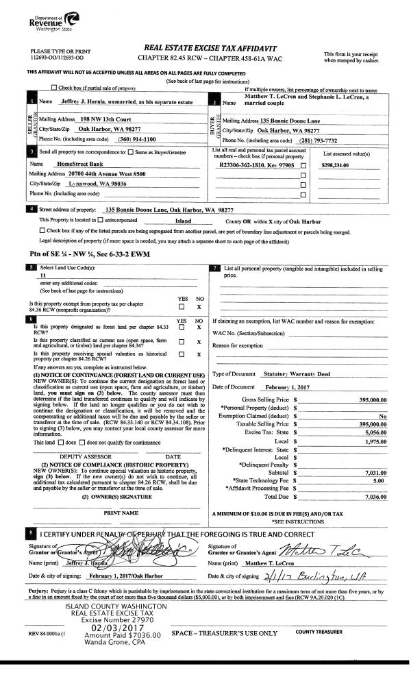
| Property ID: | 97905 | Abbreviated Legal Description: | 33 - E/2 NW SE NW (LOT 10 BONNIE DOONE EST V1 SUR P8 AF#265241) |
| Geographic ID: | R23306-362-1810 | Agent Code: | |
| Type: | Real | | |
| Tax Area: | 112 - APPRAISER-OH Schl Dist, outside OH, improved, greater than 1 acre | Land Use Code | 11 |
| Open Space: | N | DFL | N |
| Historic Property: | N | Remodel Property: | N |
| Multi-Family Redevelopment: | N | | |
| Township: | 33 | Section: | 06 |
| Range: | R2 |
Location |
| Address: | 135 BONNIE DOONE LN OAK HARBOR, WA 98277 | Mapsco: | |
| Neighborhood: | Cycle 6 | Map ID: | 588 |
| Neighborhood CD: | 6 |
Owner |
| Name: | LECREN, MATTHEW T | Owner ID: | 278423 |
| Mailing Address: | STEPHANIE L LECREN 135 BONNIE DOONE LN OAK HARBOR, WA 98277 | % Ownership: | 100.0000000000% |
| | | Exemptions: | |
Taxes and Assessment Details
Values
| (+) Improvement Homesite Value: | + | $0 | |
| (+) Improvement Non-Homesite Value: | + | $315,084 | |
| (+) Land Homesite Value: | + | $0 | |
| (+) Land Non-Homesite Value: | + | $300,000 | |
| (+) Curr Use (HS): | + | $0 | $0 |
| (+) Curr Use (NHS): | + | $0 | $0 |
| | | -------------------------- | |
| (=) Market Value: | = | $615,084 | |
| (–) Productivity Loss: | – | $0 | |
| | | -------------------------- | |
| (=) Subtotal: | = | $615,084 | |
| (+) Senior Appraised Value: | + | $0 | |
| (+) Non-Senior Appraised Value: | + | $615,084 | |
| | | -------------------------- | |
| (=) Total Appraised Value: | = | $615,084 | |
| (–) Senior Exemption Loss: | – | $0 | |
| (–) Exemption Loss: | – | $0 | |
| | | -------------------------- | |
| (=) Taxable Value: | = | $615,084 | |
Taxing Jurisdiction
| Owner: | LECREN, MATTHEW T | | |
| % Ownership: | 100.0000000000% | | |
| Total Value: | $615,084 | | |
| Tax Area: | 112 - APPRAISER-OH Schl Dist, outside OH, improved, greater than 1 acre |
| CF | Conservation Futures | 0.0313996660 | $615,084 | $615,084 | $19.31 | | |
| CEM1 | Cemetery #1 | 0.0040018856 | $615,084 | $615,084 | $2.46 | | |
| FIRE2 | Fire & Rescue Dist #2 N Whidbey GEN | 0.5381486274 | $615,084 | $615,084 | $331.01 | | |
| HOBOND | Hospital BOND | 0.1893405597 | $615,084 | $615,084 | $116.46 | | |
| HOGEN | Hospital GEN | 0.3848777722 | $615,084 | $615,084 | $236.73 | | |
| CE | County Current Expense | 0.3674210519 | $615,084 | $615,084 | $225.99 | | |
| CR | County Roads | 0.4614296361 | $615,084 | $615,084 | $283.82 | | |
| ISLANDEMS | Hospital GEN (EMS) | 0.4952018576 | $615,084 | $615,084 | $304.59 | | |
| LIB | Library Sno-Isle GEN | 0.3039084203 | $615,084 | $615,084 | $186.93 | | |
| NWHIDPRMT | P & R N Whidbey GEN | 0.1990272349 | $615,084 | $615,084 | $122.42 | | |
| SCH201MO | School 201 Enrichment | 2.3851112745 | $615,084 | $615,084 | $1,467.04 | | |
| ST | State School | 1.4761226122 | $615,084 | $615,084 | $907.94 | | |
| ST2 | State School Part 2 | 0.7953803475 | $615,084 | $615,084 | $489.23 | | |
| | Total Tax Rate: | 7.6313709459 | | | | | |
| | | | | Taxes w/Current Exemptions: | $4,693.93 | | |
| | | | | Taxes w/o Exemptions: | $4,693.93 | | |
Improvement / Building
| Improvement #1: | RESIDENTIAL | State Code: | Y | 1569.2 sqft | Value: | $315,084 |
| Bathrooms: | 2 | Bedrooms: | 3 | | Ceiling: | DRYWALL PAINTED | Exterior Wall/Cover: | PLY/HARDBOARD T-111 | | Floor Covering: | HARDWOOD/CARP 60-40 | Floor Structure: | WOOD W/SUBFLOOR | | Foundation: | CONCRETE | Heating: | FHA GAS | | Interior Finish: | DRYWALL PAINT | Plumbing Fixture Cnt: | 9 | | Roof Slope: | 12" IN 12" | Roof Structure/Cover: | CJ ASPHALT |
|
| | Type | Description | Class CD | Sub Class CD | Year Built | Area |
| | BAS | BASE/MAIN FLOOR | 3 | 0 | 1992 | 1569.2 |
| | AGR | ATTACHED GARAGE | 3 | 0 | 1992 | 720.0 |
| | OWP | OPEN WOOD PORCH W/STEPS | 3 | 0 | 1992 | 466.6 |
| | OWP | OPEN WOOD PORCH W/STEPS | 3 | 0 | 1992 | 45.9 |
| | OWP | OPEN WOOD PORCH W/STEPS | 3 | 0 | 1992 | 9.0 |
| | OWP | OPEN WOOD PORCH W/STEPS | 3 | 0 | 1992 | 789.5 |
| | OWC | OPEN WOOD PORCH W/STEPS/ROOF/C | 3 | 0 | 1992 | 192.0 |
Sketch
Property Image
Land
| 1 | 32 | AC (03.01-09.99) | 5.0000 | 0.00 | 0.00 | 0.00 | 1.00 | $300,000 | $0 |
Roll Value History
| 2026 | N/A | N/A | N/A | N/A | N/A |
| 2025 | $315,084 | $300,000 | $0 | $615,084 | $615,084 |
| 2024 | $319,111 | $280,000 | $0 | $599,111 | $599,111 |
| 2023 | $323,137 | $270,000 | $0 | $593,137 | $593,137 |
| 2022 | $288,964 | $240,000 | $0 | $528,964 | $528,964 |
| 2021 | $254,455 | $175,000 | $0 | $429,455 | $429,455 |
| 2020 | $248,191 | $140,000 | $0 | $388,191 | $388,191 |
| 2019 | $181,859 | $200,000 | $0 | $381,859 | $381,859 |
| 2018 | $182,411 | $175,000 | $0 | $357,411 | $357,411 |
| 2017 | $183,516 | $140,000 | $0 | $323,516 | $323,516 |
| 2016 | $158,231 | $140,000 | $0 | $298,231 | $298,231 |
| 2015 | $160,340 | $120,000 | $0 | $280,340 | $280,340 |
| 2014 | $162,451 | $112,500 | $0 | $274,951 | $274,951 |
| 2013 | $164,560 | $112,500 | $0 | $277,060 | $277,060 |
| 2012 | $166,671 | $112,500 | $0 | $279,171 | $279,171 |
| 2011 | $168,779 | $125,000 | $0 | $293,779 | $293,779 |
| 2010 | $174,108 | $125,000 | $0 | $299,108 | $299,108 |
| 2009 | $181,637 | $125,000 | $0 | $306,637 | $306,637 |
| 2008 | $188,208 | $140,000 | $0 | $328,208 | $328,208 |
| 2007 | $190,650 | $140,000 | $0 | $330,650 | $330,650 |
Deed and Sales History
| 1 | 02/01/2017 | WD | Warranty Deed | HARALA, JEFFREY J | LECREN, MATTHEW T | | | $395,000.00 | 27970 | 4416472 |
| 2 | 12/18/2014 | DECREE | Divorce Decree/Legal Separation | HARALA, JEFFREY J | HARALA, JEFFREY J | | | $0.00 | 18030 | 4370742 |
| 3 | 01/08/2015 | TOD | Transfer On Death Deed | HARALA, JEFFREY J | HARALA, JEFFREY J | | | | 85065 | |
| 4 | 05/01/1997 | WD | Warranty Deed | HARALA, JEFFREY J | HARALA, JEFFREY J | | | $0.00 | 71432 | 97006545 |
| 5 | 01/01/1997 | WD | Warranty Deed | SHEPHERD, JOHN L | HARALA, JEFFREY J | | | $154,900.00 | 70084 | 97000293 |
| 6 | 05/01/1988 | QCD | Quit Claim Deed | WOLFE, MARK S | SHEPHERD, JOHN L | | | $9,200.00 | 81672 | 88006285 |
| 7 | 05/01/1988 | WD | Warranty Deed | SHEPHERD, JOHN & | WOLFE, MARK S | | | $19,072.00 | 81695 | 88006348 |
| 8 | 04/01/1980 | EXECUTORD | Executor Deed | STORMS, ROBERT G | SHEPHERD, JOHN & | | | $18,400.00 | 1173 | 367423 |
| 9 | 01/01/1979 | OTHER | Other - Misc. Documents | Unknown | STORMS, ROBERT G | | | $0.00 | 58535 | 346851 |
Payout Agreement
| No payout information available.. |