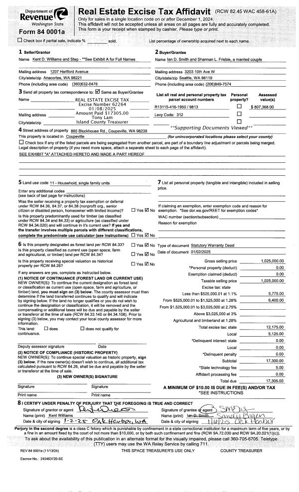
Property
Account |
| Property ID: | 9813 | Abbreviated Legal Description: | TR 27 OUT 2 W CROCKETT - BG NWCR W CROCKETT DLC S1*W404 .74' S88*E997.25' S1*W463 .22' TPB S1*W401.60' S88*E 542' N1*E401.60' N88*W542 .68' TPB (LOT 27 V5 SUR P11 AF#362772) |
| Geographic ID: | R13115-416-1950 | Agent Code: | |
| Type: | Real | | |
| Tax Area: | 312 - APPRAISER-Cpvl Schl Dist, outside Cpvl, improved, greater than 1 acre | Land Use Code | 11 |
| Open Space: | N | DFL | N |
| Historic Property: | N | Remodel Property: | N |
| Multi-Family Redevelopment: | N | | |
| Township: | 31 | Section: | 15 |
| Range: | R1 |
Location |
| Address: | 885 BLOCKHOUSE RD COUPEVILLE, WA 98239 | Mapsco: | |
| Neighborhood: | Cycle 2 | Map ID: | 68 |
| Neighborhood CD: | 2 |
Owner |
| Name: | SMITH, IAN D | Owner ID: | 315066 |
| Mailing Address: | SHANNAN L FRISBIE 3203 10TH AVE W SEATTLE, WA 98119 | % Ownership: | 100.0000000000% |
| | | Exemptions: | |
Taxes and Assessment Details
Values
| (+) Improvement Homesite Value: | + | $0 | |
| (+) Improvement Non-Homesite Value: | + | $673,523 | |
| (+) Land Homesite Value: | + | $0 | |
| (+) Land Non-Homesite Value: | + | $331,428 | |
| (+) Curr Use (HS): | + | $0 | $0 |
| (+) Curr Use (NHS): | + | $0 | $0 |
| | | -------------------------- | |
| (=) Market Value: | = | $1,004,951 | |
| (–) Productivity Loss: | – | $0 | |
| | | -------------------------- | |
| (=) Subtotal: | = | $1,004,951 | |
| (+) Senior Appraised Value: | + | $0 | |
| (+) Non-Senior Appraised Value: | + | $1,004,951 | |
| | | -------------------------- | |
| (=) Total Appraised Value: | = | $1,004,951 | |
| (–) Senior Exemption Loss: | – | $0 | |
| (–) Exemption Loss: | – | $0 | |
| | | -------------------------- | |
| (=) Taxable Value: | = | $1,004,951 | |
Taxing Jurisdiction
| Owner: | SMITH, IAN D | | |
| % Ownership: | 100.0000000000% | | |
| Total Value: | $1,004,951 | | |
| Tax Area: | 312 - APPRAISER-Cpvl Schl Dist, outside Cpvl, improved, greater than 1 acre |
| CF | Conservation Futures | 0.0313996660 | $1,004,951 | $1,004,951 | $31.56 | | |
| CEM2 | Cemetery #2 | 0.0092609791 | $1,004,951 | $1,004,951 | $9.31 | | |
| FIRE5 | Fire & Rescue Dist #5 C Whidbey GEN | 1.1892169230 | $1,004,951 | $1,004,951 | $1,195.10 | | |
| FIRE5BOND | Fire & Rescue Dist #5 C Whidbey BOND | 0.1394359503 | $1,004,951 | $1,004,951 | $140.13 | | |
| HOBOND | Hospital BOND | 0.1893405597 | $1,004,951 | $1,004,951 | $190.28 | | |
| HOGEN | Hospital GEN | 0.3848777722 | $1,004,951 | $1,004,951 | $386.78 | | |
| CE | County Current Expense | 0.3674210519 | $1,004,951 | $1,004,951 | $369.24 | | |
| CR | County Roads | 0.4614296361 | $1,004,951 | $1,004,951 | $463.71 | | |
| ISLANDEMS | Hospital GEN (EMS) | 0.4952018576 | $1,004,951 | $1,004,951 | $497.65 | | |
| LIB | Library Sno-Isle GEN | 0.3039084203 | $1,004,951 | $1,004,951 | $305.41 | | |
| LIBCAP | Library Sno-Isle BOND (Cap Fac Imp Area) | 0.0528562629 | $1,004,951 | $1,004,951 | $53.12 | | |
| POCOUP | Port of Coupeville GEN | 0.1065226063 | $1,004,951 | $1,004,951 | $107.05 | | |
| POCOUPIDD | Port of Coupeville IDD | 0.3353038577 | $1,004,951 | $1,004,951 | $336.96 | | |
| COUPSDTECH | School 204 CP (TECH) | 0.1215123397 | $1,004,951 | $1,004,951 | $122.11 | | |
| SCH204MO | School 204 Enrichment | 0.6416662518 | $1,004,951 | $1,004,951 | $644.84 | | |
| ST | State School | 1.4761226122 | $1,004,951 | $1,004,951 | $1,483.43 | | |
| ST2 | State School Part 2 | 0.7953803475 | $1,004,951 | $1,004,951 | $799.32 | | |
| | Total Tax Rate: | 7.1008570943 | | | | | |
| | | | | Taxes w/Current Exemptions: | $7,136.00 | | |
| | | | | Taxes w/o Exemptions: | $7,136.00 | | |
Improvement / Building
| Improvement #1: | RESIDENTIAL | State Code: | Y | 2203.4 sqft | Value: | $673,523 |
| Bathrooms: | 2 | Bedrooms: | 2 | | Ceiling: | TONGUE & GROOVE | Exterior Wall/Cover: | CEMENT FIBER | | Floor Covering: | HARDWOOD 100% | Floor Structure: | WOOD W/SUBFLOOR | | Foundation: | CONCRETE | Heating: | RADIANT FLOOR | | Interior Finish: | DRYWALL PAINT | Plumbing Fixture Cnt: | 9 | | Roof Slope: | 10" IN 12" | Roof Structure/Cover: | BEAM ASPHALT |
|
| | Type | Description | Class CD | Sub Class CD | Year Built | Area |
| | BAS | BASE/MAIN FLOOR | 5 | 0 | 2000 | 1595.4 |
| | UTY | STORAGE/UTILITY | 4 | 0 | 2000 | 24.0 |
| | OWC | OPEN WOOD PORCH W/STEPS/ROOF/C | 5 | 0 | 2000 | 40.0 |
| | OWC | OPEN WOOD PORCH W/STEPS/ROOF/C | 5 | 0 | 2000 | 83.7 |
| | OWC | OPEN WOOD PORCH W/STEPS/ROOF/C | 5 | 0 | 2000 | 144.0 |
| | UPS | UPPER STORY | 5 | 0 | 2000 | 608.0 |
| | oGAR | GARAGE | 4 | 0 | 2002 | 828.0 |
Sketch
| No sketches available for this property. |
Property Image
Land
| 1 | HS | HOMESITE | 1.0000 | 43560.00 | 0.00 | 0.00 | 1.00 | $270,000 | $0 |
| 2 | 91 | UNDEVELOPED LAND-METES AND BOUNDS | 4.0000 | 174240.00 | 0.00 | 0.00 | 1.00 | $61,428 | $0 |
Roll Value History
| 2026 | N/A | N/A | N/A | N/A | N/A |
| 2025 | $673,523 | $331,428 | $0 | $1,004,951 | $1,004,951 |
| 2024 | $487,368 | $320,000 | $0 | $807,368 | $807,368 |
| 2023 | $493,153 | $310,000 | $0 | $803,153 | $803,153 |
| 2022 | $451,802 | $290,000 | $0 | $741,802 | $741,802 |
| 2021 | $397,428 | $220,000 | $0 | $617,428 | $617,428 |
| 2020 | $387,557 | $200,000 | $0 | $587,557 | $587,557 |
| 2019 | $289,634 | $250,000 | $0 | $539,634 | $539,634 |
| 2018 | $291,950 | $210,000 | $0 | $501,950 | $501,950 |
| 2017 | $293,454 | $200,000 | $0 | $493,454 | $493,454 |
| 2016 | $296,661 | $200,000 | $0 | $496,661 | $496,661 |
| 2015 | $299,867 | $200,000 | $0 | $499,867 | $499,867 |
| 2014 | $303,073 | $250,000 | $0 | $553,073 | $553,073 |
| 2013 | $306,279 | $247,500 | $0 | $553,779 | $553,779 |
| 2012 | $310,431 | $247,500 | $0 | $557,931 | $557,931 |
| 2011 | $313,645 | $275,000 | $0 | $588,645 | $588,645 |
| 2010 | $325,538 | $275,000 | $0 | $600,538 | $600,538 |
| 2009 | $335,581 | $300,000 | $0 | $635,581 | $635,581 |
| 2008 | $366,911 | $297,500 | $0 | $664,411 | $664,411 |
| 2007 | $374,879 | $197,760 | $0 | $572,639 | $572,639 |
Deed and Sales History
| 1 | 01/02/2025 | WD | Warranty Deed | WILLIAMS TTEE, KENT D | SMITH, IAN D | | | $1,025,000.00 | 62264 | 4581063 |
| 2 | 02/12/2001 | QCD | Quit Claim Deed | WILLIAMS, KENT D | Williams Family Living Trust, | | | $0.00 | 10500 | 20025645 |
| 3 | 08/01/1994 | WD | Warranty Deed | SEYMOUR, RICHARD E | WILLIAMS, KENT D | | | $72,000.00 | 43467 | 94018442 |
| 4 | 07/01/1994 | QCD | Quit Claim Deed | SEYMOUR, RICHARD E | SEYMOUR, RICHARD E | | | $0.00 | 43183 | 94017174 |
| 5 | 04/01/1993 | QCD | Quit Claim Deed | MARTELL, JOHN C | SEYMOUR, RICHARD E | | | $12,500.00 | 31762 | 93009202 |
| 6 | 12/01/1981 | EXECUTORD | Executor Deed | FORT, CASEY I | MARTELL, JOHN C | | | $28,500.00 | 13781 | 391166 |
| 7 | 01/01/1900 | OTHER | Other - Misc. Documents | Unknown | FORT, CASEY I | | | $0.00 | 0 | 0 |
Payout Agreement
| No payout information available.. |