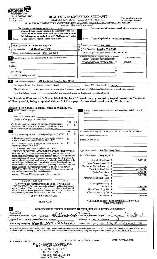
Property
Account |
| Property ID: | 99477 | Abbreviated Legal Description: | 33 - N430' OF S877' OF E255 .1' OF W540.2' OF SW SW TGW & SUB EZ |
| Geographic ID: | R23317-065-0630 | Agent Code: | |
| Type: | Real | | |
| Tax Area: | 112 - APPRAISER-OH Schl Dist, outside OH, improved, greater than 1 acre | Land Use Code | 11 |
| Open Space: | N | DFL | N |
| Historic Property: | N | Remodel Property: | N |
| Multi-Family Redevelopment: | N | | |
| Township: | 33 | Section: | 17 |
| Range: | R2 |
Location |
| Address: | 428 WILDERNESS WAY OAK HARBOR, WA 98277 | Mapsco: | |
| Neighborhood: | Cycle 6 | Map ID: | 600 |
| Neighborhood CD: | 6 |
Owner |
| Name: | HOLSCHER, KEVIN M | Owner ID: | 280228 |
| Mailing Address: | FELICIA HOLSCHER 428 WILDERNESS WAY OAK HARBOR, WA 98277 | % Ownership: | 100.0000000000% |
| | | Exemptions: | |
Taxes and Assessment Details
Values
| (+) Improvement Homesite Value: | + | $0 | |
| (+) Improvement Non-Homesite Value: | + | $277,491 | |
| (+) Land Homesite Value: | + | $0 | |
| (+) Land Non-Homesite Value: | + | $250,000 | |
| (+) Curr Use (HS): | + | $0 | $0 |
| (+) Curr Use (NHS): | + | $0 | $0 |
| | | -------------------------- | |
| (=) Market Value: | = | $527,491 | |
| (–) Productivity Loss: | – | $0 | |
| | | -------------------------- | |
| (=) Subtotal: | = | $527,491 | |
| (+) Senior Appraised Value: | + | $0 | |
| (+) Non-Senior Appraised Value: | + | $527,491 | |
| | | -------------------------- | |
| (=) Total Appraised Value: | = | $527,491 | |
| (–) Senior Exemption Loss: | – | $0 | |
| (–) Exemption Loss: | – | $0 | |
| | | -------------------------- | |
| (=) Taxable Value: | = | $527,491 | |
Taxing Jurisdiction
| Owner: | HOLSCHER, KEVIN M | | |
| % Ownership: | 100.0000000000% | | |
| Total Value: | $527,491 | | |
| Tax Area: | 112 - APPRAISER-OH Schl Dist, outside OH, improved, greater than 1 acre |
| CF | Conservation Futures | 0.0313996660 | $527,491 | $527,491 | $16.56 | | |
| CEM1 | Cemetery #1 | 0.0040018856 | $527,491 | $527,491 | $2.11 | | |
| FIRE2 | Fire & Rescue Dist #2 N Whidbey GEN | 0.5381486274 | $527,491 | $527,491 | $283.87 | | |
| HOBOND | Hospital BOND | 0.1893405597 | $527,491 | $527,491 | $99.88 | | |
| HOGEN | Hospital GEN | 0.3848777722 | $527,491 | $527,491 | $203.02 | | |
| CE | County Current Expense | 0.3674210519 | $527,491 | $527,491 | $193.81 | | |
| CR | County Roads | 0.4614296361 | $527,491 | $527,491 | $243.40 | | |
| ISLANDEMS | Hospital GEN (EMS) | 0.4952018576 | $527,491 | $527,491 | $261.21 | | |
| LIB | Library Sno-Isle GEN | 0.3039084203 | $527,491 | $527,491 | $160.31 | | |
| NWHIDPRMT | P & R N Whidbey GEN | 0.1990272349 | $527,491 | $527,491 | $104.99 | | |
| SCH201MO | School 201 Enrichment | 2.3851112745 | $527,491 | $527,491 | $1,258.12 | | |
| ST | State School | 1.4761226122 | $527,491 | $527,491 | $778.64 | | |
| ST2 | State School Part 2 | 0.7953803475 | $527,491 | $527,491 | $419.56 | | |
| | Total Tax Rate: | 7.6313709459 | | | | | |
| | | | | Taxes w/Current Exemptions: | $4,025.48 | | |
| | | | | Taxes w/o Exemptions: | $4,025.48 | | |
Improvement / Building
| Improvement #1: | RESIDENTIAL | State Code: | Y | 1720.0 sqft | Value: | $277,491 |
| Bathrooms: | 1.75 | Bedrooms: | 3 | | Ceiling: | DRY WALL SPRAYED | Exterior Wall/Cover: | VINYL | | Floor Covering: | CARPET/VINYL 80-20 | Floor Structure: | WOOD W/SUBFLOOR | | Foundation: | CONCRETE | Heating: | BASEBOARD ELECTRIC | | Interior Finish: | DRYWALL PAINT | Plumbing Fixture Cnt: | 9 | | Roof Slope: | 4" IN 12" | Roof Structure/Cover: | CJ ASPHALT |
|
| | Type | Description | Class CD | Sub Class CD | Year Built | Area |
| | BAS | BASE/MAIN FLOOR | 3 | 0 | 1976 | 1720.0 |
| | CPD | OPEN CARPORT DIRT FLOOR | 3 | 0 | 1976 | 259.0 |
| | UTY | STORAGE/UTILITY | 3 | 0 | 1976 | 416.0 |
| | OWP | OPEN WOOD PORCH W/STEPS | 3 | 0 | 1976 | 304.0 |
| | DGR | DETACHED GARAGE | 3 | 0 | 1976 | 3341.0 |
| | CPD | OPEN CARPORT DIRT FLOOR | 3 | 0 | 1976 | 160.0 |
Sketch
Property Image
Land
| 1 | 18 | AC (02.01-03.00) | 2.7400 | 119354.40 | 0.00 | 0.00 | 1.00 | $250,000 | $0 |
Roll Value History
| 2026 | N/A | N/A | N/A | N/A | N/A |
| 2025 | $277,491 | $250,000 | $0 | $527,491 | $527,491 |
| 2024 | $287,481 | $230,000 | $0 | $517,481 | $517,481 |
| 2023 | $291,517 | $220,000 | $0 | $511,517 | $511,517 |
| 2022 | $267,620 | $210,000 | $0 | $477,620 | $477,620 |
| 2021 | $235,897 | $160,000 | $0 | $395,897 | $395,897 |
| 2020 | $230,378 | $130,000 | $0 | $360,378 | $360,378 |
| 2019 | $168,495 | $180,000 | $0 | $348,495 | $348,495 |
| 2018 | $169,048 | $170,000 | $0 | $339,048 | $339,048 |
| 2017 | $170,153 | $150,000 | $0 | $320,153 | $320,153 |
| 2016 | $165,982 | $120,000 | $0 | $285,982 | $285,982 |
| 2015 | $167,725 | $90,000 | $0 | $257,725 | $257,725 |
| 2014 | $157,549 | $80,000 | $0 | $237,549 | $237,549 |
| 2013 | $185,344 | $102,000 | $0 | $287,344 | $287,344 |
| 2012 | $187,160 | $102,000 | $0 | $289,160 | $289,160 |
| 2011 | $188,976 | $120,000 | $0 | $308,976 | $308,976 |
| 2010 | $222,676 | $120,000 | $0 | $342,676 | $342,676 |
| 2009 | $230,359 | $130,000 | $0 | $360,359 | $360,359 |
| 2008 | $220,567 | $108,638 | $0 | $329,205 | $329,205 |
| 2007 | $243,590 | $89,500 | $0 | $333,090 | $333,090 |
Deed and Sales History
| 1 | 05/24/2017 | WD | Warranty Deed | PERKINS, JODY | HOLSCHER, KEVIN M | | | $345,000.00 | 29586 | 4423697 |
| 2 | 03/04/2014 | WD | Warranty Deed | CLAUS BROTHERS LLC | PERKINS, JODY | | | $256,000.00 | 14510 | 4356301 |
| 3 | 11/10/2011 | TRUSTEED | Trustee's Deed | DAUSEY, KEN H & DONA D | CLAUS BROTHERS LLC | | | $139,196.00 | 6275 | 4305643 |
| 4 | 04/01/1992 | WD | Warranty Deed | MANSON, MARTIN D | DAUSEY, KEN H | | | $133,250.00 | 21341 | 92006483 |
| 5 | 05/01/1978 | OTHER | Other - Misc. Documents | Unknown | MANSON, MARTIN D | | | $45,000.00 | 82413 | 333482 |
Payout Agreement
| No payout information available.. |