Property
Account |
| Property ID: | 99789 | Abbreviated Legal Description: | 35 - IN S/2 SE NW: E350' OF S/2 SE NW EX: BG NECR SD S/2 SE NW S60' NWLY TP 320'W OF NECR S/2 SE NW E320' TPB TGW EZ |
| Geographic ID: | R23317-308-2540 | Agent Code: | |
| Type: | Real | | |
| Tax Area: | 112 - APPRAISER-OH Schl Dist, outside OH, improved, greater than 1 acre | Land Use Code | 11 |
| Open Space: | N | DFL | N |
| Historic Property: | N | Remodel Property: | N |
| Multi-Family Redevelopment: | N | | |
| Township: | 33 | Section: | 17 |
| Range: | R2 |
Location |
| Address: | 591 SAWMILL RD OAK HARBOR, WA 98277 | Mapsco: | |
| Neighborhood: | Cycle 6 | Map ID: | 602 |
| Neighborhood CD: | 6 |
Owner |
| Name: | CANNIZZARO TTEE, KENNETH P | Owner ID: | 297857 |
| Mailing Address: | JACQUELYNN C CANNIZZARO TTEE PO BOX 576 OAK HARBOR, WA 98277 | % Ownership: | 100.0000000000% |
| | | Exemptions: | |
Taxes and Assessment Details
Values
| (+) Improvement Homesite Value: | + | $0 | |
| (+) Improvement Non-Homesite Value: | + | $858,615 | |
| (+) Land Homesite Value: | + | $0 | |
| (+) Land Non-Homesite Value: | + | $340,000 | |
| (+) Curr Use (HS): | + | $0 | $0 |
| (+) Curr Use (NHS): | + | $0 | $0 |
| | | -------------------------- | |
| (=) Market Value: | = | $1,198,615 | |
| (–) Productivity Loss: | – | $0 | |
| | | -------------------------- | |
| (=) Subtotal: | = | $1,198,615 | |
| (+) Senior Appraised Value: | + | $0 | |
| (+) Non-Senior Appraised Value: | + | $1,198,615 | |
| | | -------------------------- | |
| (=) Total Appraised Value: | = | $1,198,615 | |
| (–) Senior Exemption Loss: | – | $0 | |
| (–) Exemption Loss: | – | $0 | |
| | | -------------------------- | |
| (=) Taxable Value: | = | $1,198,615 | |
Taxing Jurisdiction
| Owner: | CANNIZZARO TTEE, KENNETH P | | |
| % Ownership: | 100.0000000000% | | |
| Total Value: | $1,198,615 | | |
| Tax Area: | 112 - APPRAISER-OH Schl Dist, outside OH, improved, greater than 1 acre |
| CF | Conservation Futures | 0.0313996660 | $1,198,615 | $1,198,615 | $37.64 | | |
| CEM1 | Cemetery #1 | 0.0040018856 | $1,198,615 | $1,198,615 | $4.80 | | |
| FIRE2 | Fire & Rescue Dist #2 N Whidbey GEN | 0.5381486274 | $1,198,615 | $1,198,615 | $645.03 | | |
| HOBOND | Hospital BOND | 0.1893405597 | $1,198,615 | $1,198,615 | $226.95 | | |
| HOGEN | Hospital GEN | 0.3848777722 | $1,198,615 | $1,198,615 | $461.32 | | |
| CE | County Current Expense | 0.3674210519 | $1,198,615 | $1,198,615 | $440.40 | | |
| CR | County Roads | 0.4614296361 | $1,198,615 | $1,198,615 | $553.08 | | |
| ISLANDEMS | Hospital GEN (EMS) | 0.4952018576 | $1,198,615 | $1,198,615 | $593.56 | | |
| LIB | Library Sno-Isle GEN | 0.3039084203 | $1,198,615 | $1,198,615 | $364.27 | | |
| NWHIDPRMT | P & R N Whidbey GEN | 0.1990272349 | $1,198,615 | $1,198,615 | $238.56 | | |
| SCH201MO | School 201 Enrichment | 2.3851112745 | $1,198,615 | $1,198,615 | $2,858.83 | | |
| ST | State School | 1.4761226122 | $1,198,615 | $1,198,615 | $1,769.30 | | |
| ST2 | State School Part 2 | 0.7953803475 | $1,198,615 | $1,198,615 | $953.35 | | |
| | Total Tax Rate: | 7.6313709459 | | | | | |
| | | | | Taxes w/Current Exemptions: | $9,147.09 | | |
| | | | | Taxes w/o Exemptions: | $9,147.09 | | |
Improvement / Building
| Improvement #1: | RESIDENTIAL | State Code: | Y | 5099.8 sqft | Value: | $858,615 |
| Bathrooms: | 3.5 | Bedrooms: | 3 | | Ceiling: | DRYWALL PAINTED | Cooling: | HEAT PUMP/CONV/V | | Exterior Wall/Cover: | CEMENT FIBER | Floor Covering: | CARPET/VINYL 60-40 | | Floor Structure: | WOOD W/SUBFLOOR | Foundation: | CONCRETE | | Interior Finish: | DRYWALL PAINT | Plumbing Fixture Cnt: | 20 | | Roof Slope: | 4" IN 12" | Roof Structure/Cover: | CJ ASPHALT |
|
| | Type | Description | Class CD | Sub Class CD | Year Built | Area |
| | BAS | BASE/MAIN FLOOR | 4 | 0 | 2002 | 2203.8 |
| | DWN | DOWNSTAIRS LIVING AREA | 4 | 0 | 2002 | 392.0 |
| | DWN | DOWNSTAIRS LIVING AREA | 4 | 0 | 2002 | 392.0 |
| | OP1 | OPEN PORCH SLAB | 4 | 0 | 2002 | 2209.7 |
| | OP4 | OPEN PORCH W/CEILING-ROOF | 4 | 0 | 2002 | 48.0 |
| | AGR | ATTACHED GARAGE | 4 | 0 | 2002 | 780.0 |
| | OWP | OPEN WOOD PORCH W/STEPS | 4 | 0 | 2002 | 848.0 |
| | DWN | DOWNSTAIRS LIVING AREA | 4 | 0 | 2002 | 1152.0 |
| | DGR | DETACHED GARAGE | 4 | 0 | 2018 | 1600.0 |
| | OWP | OPEN WOOD PORCH W/STEPS | 4 | 0 | 2018 | 244.0 |
| | UPS | UPPER STORY | 4 | 0 | 2018 | 960.0 |
| | UTY | STORAGE/UTILITY | 4 | 0 | 2002 | 200.0 |
Sketch
Property Image
Land
| 1 | 32 | AC (03.01-09.99) | 5.1400 | 0.00 | 0.00 | 0.00 | 1.00 | $340,000 | $0 |
Roll Value History
| 2026 | N/A | N/A | N/A | N/A | N/A |
| 2025 | $858,615 | $340,000 | $0 | $1,198,615 | $1,198,615 |
| 2024 | $865,831 | $320,000 | $0 | $1,185,831 | $1,185,831 |
| 2023 | $873,526 | $320,000 | $0 | $1,193,526 | $1,193,526 |
| 2022 | $797,109 | $300,000 | $0 | $1,097,109 | $1,097,109 |
| 2021 | $716,534 | $200,000 | $0 | $916,534 | $916,534 |
| 2020 | $562,696 | $150,000 | $0 | $712,696 | $712,696 |
| 2019 | $475,765 | $220,000 | $0 | $695,765 | $695,765 |
| 2018 | $437,792 | $200,000 | $0 | $637,792 | $637,792 |
| 2017 | $370,470 | $165,000 | $0 | $535,470 | $535,470 |
| 2016 | $328,112 | $140,000 | $0 | $468,112 | $468,112 |
| 2015 | $331,974 | $150,000 | $0 | $481,974 | $481,974 |
| 2014 | $335,834 | $150,000 | $0 | $485,834 | $485,834 |
| 2013 | $349,864 | $115,650 | $0 | $465,514 | $465,514 |
| 2012 | $353,840 | $115,650 | $0 | $469,490 | $469,490 |
| 2011 | $357,816 | $128,500 | $0 | $486,316 | $486,316 |
| 2010 | $385,297 | $128,500 | $0 | $513,797 | $513,797 |
| 2009 | $401,902 | $128,500 | $0 | $530,402 | $530,402 |
| 2008 | $411,365 | $146,490 | $0 | $557,855 | $557,855 |
| 2007 | $420,843 | $146,490 | $0 | $567,333 | $567,333 |
Deed and Sales History
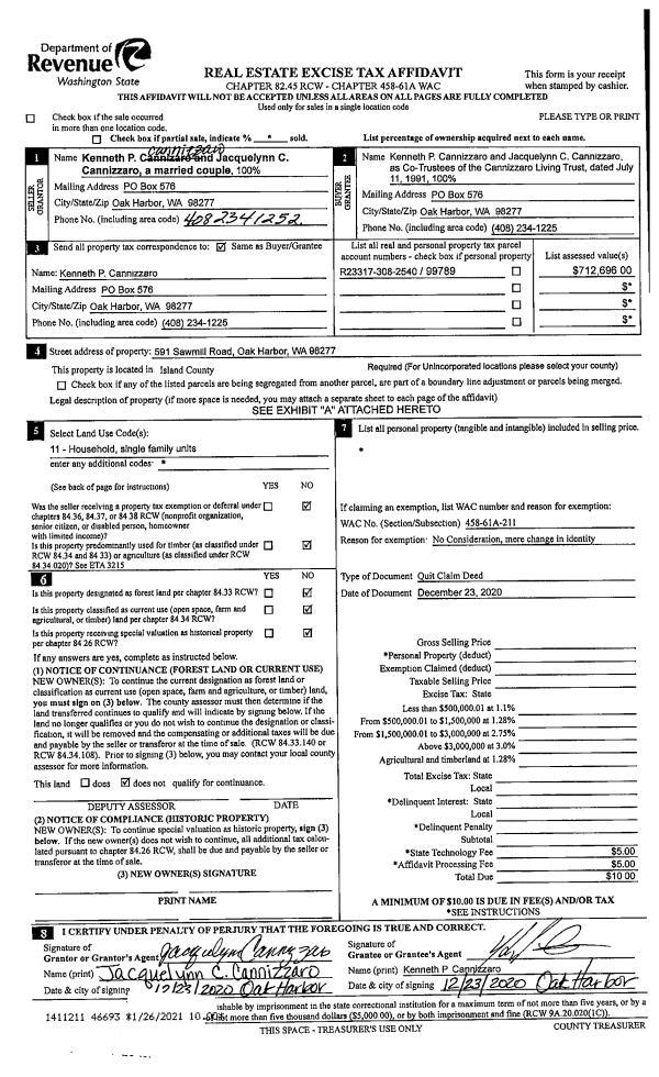
| 1 | 12/23/2020 | QCD | Quit Claim Deed | CANNIZZARO, KENNETH P | CANNIZZARO TTEE, KENNETH P | | | $0.00 | 46693 | 4509122 |
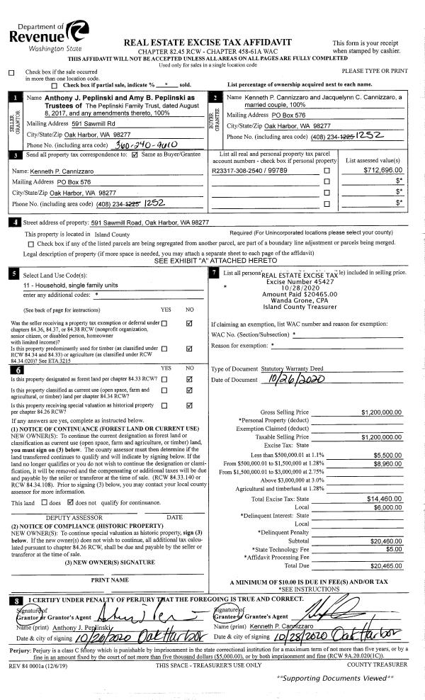
| 2 | 10/26/2020 | WD | Warranty Deed | PEPLINSKI TRUSTEE, ANTHONY J | CANNIZZARO, KENNETH P | | | $1,200,000.00 | 45427 | 4500672 |
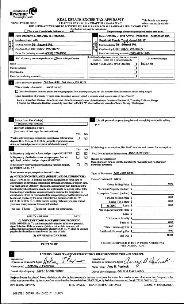
| 3 | 08/08/2017 | QCD | Quit Claim Deed | PEPLINSKI, ANTHONY J | PEPLINSKI TRUSTEE, ANTHONY J | | | $0.00 | 30590 | 4427954 |
| 4 | 06/11/2015 | WD | Warranty Deed | ARTHUR, DAVID A | PEPLINSKI, ANTHONY J | | | $450,000.00 | 19976 | 4380066 |
| 5 | 09/01/1990 | WD | Warranty Deed | SLOMNICKI, KAREN | ARTHUR, DAVID A | | | $65,000.00 | 5343 | 90017811 |
| 6 | 11/01/1985 | WD | Warranty Deed | SHELLEY, WAYNE | SLOMNICKI, KAREN | | | $0.00 | 53123 | 85012360 |
| 7 | 01/01/1900 | OTHER | Other - Misc. Documents | Unknown | SHELLEY, WAYNE | | | $0.00 | 0 | 0 |
Payout Agreement
| No payout information available.. |