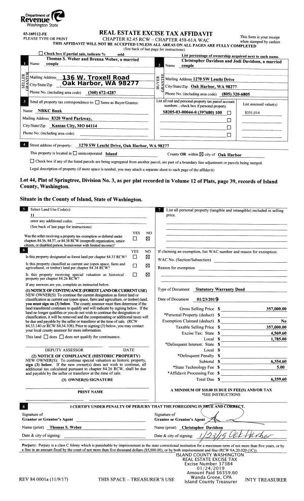
Property
Account |
| Property ID: | 100054 | Abbreviated Legal Description: | R1 - TIDELAND ACRES ADJ TO SEC 7, 8, & 17 BG MC SEC 16 & 17 W43.58 CH N18.031 CH N87*30'W11CH TPB N87*30' W1 .22CH N73*01' W21.49' CH N54*06' W17.61CH N55*20'E21.79CH S73*34.5' E28.35CH S23*20' W TPB LESS 1CH IN FRONT OF RD EXT E E LN SEC 7 |
| Geographic ID: | R23317-528-1390 | Agent Code: | |
| Type: | Real | | |
| Tax Area: | 119 - APPRAISER-OH Schl Dist, outside OH, vacant & 50 acres or less | Land Use Code | 93 |
| Open Space: | N | DFL | N |
| Historic Property: | N | Remodel Property: | N |
| Multi-Family Redevelopment: | N | | |
| Township: | 33 | Section: | 17 |
| Range: | R2 |
Location |
| Address: | OAK HARBOR, WA 98277 | Mapsco: | |
| Neighborhood: | Cycle 6 | Map ID: | 602 |
| Neighborhood CD: | 6 |
Owner |
| Name: | WHIDBEY CAMANO LAND TRUST | Owner ID: | 265692 |
| Mailing Address: | 765 WONN RD BARN SUITE C201 GREENBANK, WA 98253 | % Ownership: | 100.0000000000% |
| | | Exemptions: | EX |
Taxes and Assessment Details
Values
| (+) Improvement Homesite Value: | + | $0 | |
| (+) Improvement Non-Homesite Value: | + | $0 | |
| (+) Land Homesite Value: | + | $0 | |
| (+) Land Non-Homesite Value: | + | $50,520 | |
| (+) Curr Use (HS): | + | $0 | $0 |
| (+) Curr Use (NHS): | + | $0 | $0 |
| | | -------------------------- | |
| (=) Market Value: | = | $50,520 | |
| (–) Productivity Loss: | – | $0 | |
| | | -------------------------- | |
| (=) Subtotal: | = | $50,520 | |
| (+) Senior Appraised Value: | + | $0 | |
| (+) Non-Senior Appraised Value: | + | $50,520 | |
| | | -------------------------- | |
| (=) Total Appraised Value: | = | $50,520 | |
| (–) Senior Exemption Loss: | – | $0 | |
| (–) Exemption Loss: | – | $50,520 | |
| | | -------------------------- | |
| (=) Taxable Value: | = | $0 | |
Taxing Jurisdiction
| Owner: | WHIDBEY CAMANO LAND TRUST | | |
| % Ownership: | 100.0000000000% | | |
| Total Value: | $50,520 | | |
| Tax Area: | 119 - APPRAISER-OH Schl Dist, outside OH, vacant & 50 acres or less |
| CF | Conservation Futures | 0.0316035091 | $50,520 | $0 | $0.00 | | |
| CEM1 | Cemetery #1 | 0.0040320932 | $50,520 | $0 | $0.00 | | |
| HOBOND | Hospital BOND | 0.1910887512 | $50,520 | $0 | $0.00 | | |
| HOGEN | Hospital GEN | 0.3902502903 | $50,520 | $0 | $0.00 | | |
| CE | County Current Expense | 0.3708482477 | $50,520 | $0 | $0.00 | | |
| CR | County Roads | 0.4584763726 | $50,520 | $0 | $0.00 | | |
| ISLANDEMS | Hospital GEN (EMS) | 0.5000000000 | $50,520 | $0 | $0.00 | | |
| LIB | Library Sno-Isle GEN | 0.3153421757 | $50,520 | $0 | $0.00 | | |
| NWHIDPRMT | P & R N Whidbey GEN | 0.2004466701 | $50,520 | $0 | $0.00 | | |
| SCH201MO | School 201 Enrichment | 1.8559231640 | $50,520 | $0 | $0.00 | | |
| ST | State School | 1.3035497053 | $50,520 | $0 | $0.00 | | |
| ST2 | State School Part 2 | 0.8169543533 | $50,520 | $0 | $0.00 | | |
| | Total Tax Rate: | 6.4385153325 | | | | | |
| | | | | Taxes w/Current Exemptions: | $0.00 | | |
| | | | | Taxes w/o Exemptions: | $325.28 | | |
Improvement / Building
Sketch
| No sketches available for this property. |
Property Image
Land
| 1 | 55 | TIDES | 0.0000 | 0.00 | 5052.00 | 0.00 | 1.00 | $50,520 | $0 |
Roll Value History
| 2026 | N/A | N/A | N/A | N/A | N/A |
| 2025 | $0 | $50,520 | $0 | $50,520 | $0 |
| 2024 | $0 | $50,520 | $0 | $50,520 | $0 |
| 2023 | $0 | $50,520 | $0 | $50,520 | $0 |
| 2022 | $0 | $50,520 | $0 | $50,520 | $0 |
| 2021 | $0 | $50,520 | $0 | $50,520 | $0 |
| 2020 | $0 | $50,520 | $0 | $50,520 | $0 |
| 2019 | $0 | $50,520 | $0 | $50,520 | $0 |
| 2018 | $0 | $50,520 | $0 | $50,520 | $50,520 |
| 2017 | $0 | $50,520 | $0 | $50,520 | $50,520 |
| 2016 | $0 | $50,520 | $0 | $50,520 | $50,520 |
| 2015 | $0 | $50,520 | $0 | $50,520 | $50,520 |
| 2014 | $0 | $42,942 | $0 | $42,942 | $42,942 |
| 2013 | $0 | $42,942 | $0 | $42,942 | $42,942 |
| 2012 | $0 | $42,942 | $0 | $42,942 | $42,942 |
| 2011 | $0 | $50,520 | $0 | $50,520 | $50,520 |
| 2010 | $0 | $50,520 | $0 | $50,520 | $50,520 |
| 2009 | $0 | $50,520 | $0 | $50,520 | $50,520 |
| 2008 | $0 | $50,520 | $0 | $50,520 | $50,520 |
| 2007 | $0 | $15,156 | $0 | $15,156 | $15,156 |
Deed and Sales History
| 1 | 02/25/2019 | WD | Warranty Deed | DUNLAP TOWING COMPANY | WHIDBEY CAMANO LAND TRUST | | | $20,735.00 | 37765 | 4460008 |
| 2 | 03/01/1977 | EXECUTORD | Executor Deed | ST, OF W | DUNLAP, TOWING C | | | $1.00 | 0 | 310880 |
| 3 | 01/01/1900 | OTHER | Other - Misc. Documents | RITTER, J C | ST, OF W | | | $0.00 | 0 | 0 |
| 4 | 01/01/1900 | TRUSTEED | Trustee's Deed | ISLAND, COUNTY | RITTER, J C | | | $0.00 | 0 | 22372 |
| 5 | 01/01/1900 | TTAXD | Treasurer's Tax Deed | PARKER, HARRY W | ISLAND, COUNTY | | | $0.00 | 0 | 45418 |
| 6 | 01/01/1900 | TRUSTEED | Trustee's Deed | PARKER, J N | PARKER, HARRY W | | | $0.00 | 0 | 50909 |
| 7 | 01/01/1900 | TRUSTEED | Trustee's Deed | DUNLAP, EUGENE | PARKER, J N | | | $0.00 | 0 | 61496 |
| 8 | 01/01/1900 | TRUSTEED | Trustee's Deed | Unknown | DUNLAP, EUGENE | | | $0.00 | 0 | 74764 |
Payout Agreement
| No payout information available.. |