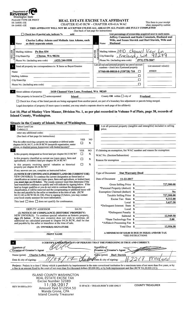
Property
Account |
| Property ID: | 100973 | Abbreviated Legal Description: | 15 E/2 E/2 NW SW SW EX N30' |
| Geographic ID: | R23319-110-0470 | Agent Code: | |
| Type: | Real | | |
| Tax Area: | 112 - APPRAISER-OH Schl Dist, outside OH, improved, greater than 1 acre | Land Use Code | 11 |
| Open Space: | N | DFL | N |
| Historic Property: | N | Remodel Property: | N |
| Multi-Family Redevelopment: | N | | |
| Township: | 33 | Section: | 19 |
| Range: | R2 |
Location |
| Address: | 46 GREEN VALLEY RD OAK HARBOR, WA 98277 | Mapsco: | |
| Neighborhood: | Cycle 6 | Map ID: | 608 |
| Neighborhood CD: | 6 |
Owner |
| Name: | GOSSEN, THOMAS J | Owner ID: | 282461 |
| Mailing Address: | KARLA K GOSSEN 46 E GREEN VALLEY RD OAK HARBOR, WA 98277 | % Ownership: | 100.0000000000% |
| | | Exemptions: | |
Taxes and Assessment Details
Values
| (+) Improvement Homesite Value: | + | $0 | |
| (+) Improvement Non-Homesite Value: | + | $151,060 | |
| (+) Land Homesite Value: | + | $0 | |
| (+) Land Non-Homesite Value: | + | $250,000 | |
| (+) Curr Use (HS): | + | $0 | $0 |
| (+) Curr Use (NHS): | + | $0 | $0 |
| | | -------------------------- | |
| (=) Market Value: | = | $401,060 | |
| (–) Productivity Loss: | – | $0 | |
| | | -------------------------- | |
| (=) Subtotal: | = | $401,060 | |
| (+) Senior Appraised Value: | + | $0 | |
| (+) Non-Senior Appraised Value: | + | $401,060 | |
| | | -------------------------- | |
| (=) Total Appraised Value: | = | $401,060 | |
| (–) Senior Exemption Loss: | – | $0 | |
| (–) Exemption Loss: | – | $0 | |
| | | -------------------------- | |
| (=) Taxable Value: | = | $401,060 | |
Taxing Jurisdiction
| Owner: | GOSSEN, THOMAS J | | |
| % Ownership: | 100.0000000000% | | |
| Total Value: | $401,060 | | |
| Tax Area: | 112 - APPRAISER-OH Schl Dist, outside OH, improved, greater than 1 acre |
| CF | Conservation Futures | 0.0316035091 | $401,060 | $401,060 | $12.67 | | |
| CEM1 | Cemetery #1 | 0.0040320932 | $401,060 | $401,060 | $1.62 | | |
| FIRE2 | Fire & Rescue Dist #2 N Whidbey GEN | 0.5475949600 | $401,060 | $401,060 | $219.62 | | |
| HOBOND | Hospital BOND | 0.1910887512 | $401,060 | $401,060 | $76.64 | | |
| HOGEN | Hospital GEN | 0.3902502903 | $401,060 | $401,060 | $156.51 | | |
| CE | County Current Expense | 0.3708482477 | $401,060 | $401,060 | $148.73 | | |
| CR | County Roads | 0.4584763726 | $401,060 | $401,060 | $183.88 | | |
| ISLANDEMS | Hospital GEN (EMS) | 0.5000000000 | $401,060 | $401,060 | $200.53 | | |
| LIB | Library Sno-Isle GEN | 0.3153421757 | $401,060 | $401,060 | $126.47 | | |
| NWHIDPRMT | P & R N Whidbey GEN | 0.2004466701 | $401,060 | $401,060 | $80.39 | | |
| SCH201MO | School 201 Enrichment | 1.8559231640 | $401,060 | $401,060 | $744.34 | | |
| ST | State School | 1.3035497053 | $401,060 | $401,060 | $522.80 | | |
| ST2 | State School Part 2 | 0.8169543533 | $401,060 | $401,060 | $327.65 | | |
| | Total Tax Rate: | 6.9861102925 | | | | | |
| | | | | Taxes w/Current Exemptions: | $2,801.85 | | |
| | | | | Taxes w/o Exemptions: | $2,801.85 | | |
Improvement / Building
| Improvement #1: | MANUFACTURED HOME | State Code: | Y | 2212.1 sqft | Value: | $151,060 |
| Bathrooms: | 0 | Bedrooms: | 0 | | Ceiling: | PLASTER PAINTED | Cooling: | EVAP NO DUCT | | Exterior Wall/Cover: | VINYL | Floor Covering: | CARPET 100% | | Floor Structure: | SLAB ON GRADE | Foundation: | SLAB | | Heating: | FHA ELECTRIC | Interior Finish: | PLASTER | | Plumbing Fixture Cnt: | 1 | Roof Slope: | FLAT | | Roof Structure/Cover: | CJ ALUMINIUM HEAVY |   |   |
|
| | Type | Description | Class CD | Sub Class CD | Year Built | Area |
| | BAS | BASE/MAIN FLOOR | 4 | 0 | 1998 | 2212.1 |
| | OWC | OPEN WOOD PORCH W/STEPS/ROOF/C | 4 | 0 | 1998 | 139.8 |
| | DGR | DETACHED GARAGE | 4 | 0 | 1998 | 1200.0 |
| | OWP | OPEN WOOD PORCH W/STEPS | 4 | 0 | 1998 | 87.0 |
Sketch
Property Image
Land
| 1 | 18 | AC (02.01-03.00) | 2.3900 | 104108.40 | 0.00 | 0.00 | 1.00 | $250,000 | $0 |
Roll Value History
| 2026 | N/A | N/A | N/A | N/A | N/A |
| 2025 | $151,060 | $250,000 | $0 | $401,060 | $401,060 |
| 2024 | $155,219 | $230,000 | $0 | $385,219 | $385,219 |
| 2023 | $140,944 | $220,000 | $0 | $360,944 | $360,944 |
| 2022 | $132,249 | $210,000 | $0 | $342,249 | $342,249 |
| 2021 | $118,291 | $160,000 | $0 | $278,291 | $278,291 |
| 2020 | $116,425 | $130,000 | $0 | $246,425 | $246,425 |
| 2019 | $94,224 | $180,000 | $0 | $274,224 | $274,224 |
| 2018 | $96,737 | $170,000 | $0 | $266,737 | $266,737 |
| 2017 | $99,249 | $150,000 | $0 | $249,249 | $249,249 |
| 2016 | $81,658 | $120,000 | $0 | $201,658 | $201,658 |
| 2015 | $83,826 | $90,000 | $0 | $173,826 | $173,826 |
| 2014 | $85,995 | $80,000 | $0 | $165,995 | $165,995 |
| 2013 | $88,164 | $80,750 | $0 | $168,914 | $168,914 |
| 2012 | $90,332 | $80,750 | $0 | $171,082 | $171,082 |
| 2011 | $92,501 | $95,000 | $0 | $187,501 | $187,501 |
| 2010 | $124,906 | $95,000 | $0 | $219,906 | $219,906 |
| 2009 | $146,494 | $105,000 | $0 | $251,494 | $251,494 |
| 2008 | $151,384 | $100,079 | $0 | $251,463 | $251,463 |
| 2007 | $153,744 | $100,079 | $0 | $253,823 | $253,823 |
Deed and Sales History
| 1 | 09/08/2017 | QCD | Quit Claim Deed | GOSSEN, THOMAS J | GOSSEN, THOMAS J | | | $0.00 | 31534 | 4432202 |
| 2 | 03/01/1983 | OTHER | Other - Misc. Documents | GOSSEN, THOMAS J | ALASKA, USA F | | | $0.00 | 59881 | 406114 |
| 3 | 02/01/1983 | WD | Warranty Deed | WHIDBEY, FED C | GOSSEN, THOMAS J | | | $13,000.00 | 30600 | 406871 |
| 4 | 08/01/1982 | TTAXD | Treasurer's Tax Deed | ROESER, JAMES A | WHIDBEY, FED C | | | $32,787.00 | 22159 | 0 |
| 5 | 01/01/1900 | OTHER | Other - Misc. Documents | Unknown | ROESER, JAMES A | | | $0.00 | 0 | 0 |
Payout Agreement
| No payout information available.. |