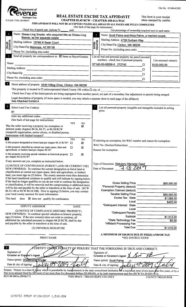
Property
Account |
| Property ID: | 102052 | Abbreviated Legal Description: | 51 - W/2 S/2 N/2 SW SW EX W340' SUB TO EZ TGW 1/4 INT IN WELL |
| Geographic ID: | R23320-096-0500 | Agent Code: | |
| Type: | Real | | |
| Tax Area: | 112 - APPRAISER-OH Schl Dist, outside OH, improved, greater than 1 acre | Land Use Code | 11 |
| Open Space: | N | DFL | N |
| Historic Property: | N | Remodel Property: | N |
| Multi-Family Redevelopment: | N | | |
| Township: | 33 | Section: | 20 |
| Range: | R2 |
Location |
| Address: | 440 SECLUDED LN OAK HARBOR, WA 98277 | Mapsco: | |
| Neighborhood: | Cycle 6 | Map ID: | 612 |
| Neighborhood CD: | 6 |
Owner |
| Name: | EERKES TTEE, RONALD GENE | Owner ID: | 289881 |
| Mailing Address: | AMANDA KAY EERKES, TTEE 440 SECLUDED LN OAK HARBOR, WA 98277 | % Ownership: | 100.0000000000% |
| | | Exemptions: | |
Taxes and Assessment Details
Values
| (+) Improvement Homesite Value: | + | $0 | |
| (+) Improvement Non-Homesite Value: | + | $135,075 | |
| (+) Land Homesite Value: | + | $0 | |
| (+) Land Non-Homesite Value: | + | $250,000 | |
| (+) Curr Use (HS): | + | $0 | $0 |
| (+) Curr Use (NHS): | + | $0 | $0 |
| | | -------------------------- | |
| (=) Market Value: | = | $385,075 | |
| (–) Productivity Loss: | – | $0 | |
| | | -------------------------- | |
| (=) Subtotal: | = | $385,075 | |
| (+) Senior Appraised Value: | + | $0 | |
| (+) Non-Senior Appraised Value: | + | $385,075 | |
| | | -------------------------- | |
| (=) Total Appraised Value: | = | $385,075 | |
| (–) Senior Exemption Loss: | – | $0 | |
| (–) Exemption Loss: | – | $0 | |
| | | -------------------------- | |
| (=) Taxable Value: | = | $385,075 | |
Taxing Jurisdiction
| Owner: | EERKES TTEE, RONALD GENE | | |
| % Ownership: | 100.0000000000% | | |
| Total Value: | $385,075 | | |
| Tax Area: | 112 - APPRAISER-OH Schl Dist, outside OH, improved, greater than 1 acre |
| CF | Conservation Futures | 0.0316035091 | $385,075 | $385,075 | $12.17 | | |
| CEM1 | Cemetery #1 | 0.0040320932 | $385,075 | $385,075 | $1.55 | | |
| FIRE2 | Fire & Rescue Dist #2 N Whidbey GEN | 0.5475949600 | $385,075 | $385,075 | $210.87 | | |
| HOBOND | Hospital BOND | 0.1910887512 | $385,075 | $385,075 | $73.58 | | |
| HOGEN | Hospital GEN | 0.3902502903 | $385,075 | $385,075 | $150.28 | | |
| CE | County Current Expense | 0.3708482477 | $385,075 | $385,075 | $142.80 | | |
| CR | County Roads | 0.4584763726 | $385,075 | $385,075 | $176.55 | | |
| ISLANDEMS | Hospital GEN (EMS) | 0.5000000000 | $385,075 | $385,075 | $192.54 | | |
| LIB | Library Sno-Isle GEN | 0.3153421757 | $385,075 | $385,075 | $121.43 | | |
| NWHIDPRMT | P & R N Whidbey GEN | 0.2004466701 | $385,075 | $385,075 | $77.19 | | |
| SCH201MO | School 201 Enrichment | 1.8559231640 | $385,075 | $385,075 | $714.67 | | |
| ST | State School | 1.3035497053 | $385,075 | $385,075 | $501.96 | | |
| ST2 | State School Part 2 | 0.8169543533 | $385,075 | $385,075 | $314.59 | | |
| | Total Tax Rate: | 6.9861102925 | | | | | |
| | | | | Taxes w/Current Exemptions: | $2,690.18 | | |
| | | | | Taxes w/o Exemptions: | $2,690.18 | | |
Improvement / Building
| Improvement #1: | MANUFACTURED HOME | State Code: | Y | 1767.6 sqft | Value: | $135,075 |
| Bathrooms: | 2 | Bedrooms: | 3 | | Ceiling: | PLASTER PAINTED | Cooling: | EVAP NO DUCT | | Exterior Wall/Cover: | VINYL | Floor Covering: | CARPET 100% | | Floor Structure: | SLAB ON GRADE | Foundation: | SLAB | | Heating: | FHA ELECTRIC | Interior Finish: | PLASTER | | Plumbing Fixture Cnt: | 1 | Roof Slope: | FLAT | | Roof Structure/Cover: | CJ ALUMINIUM HEAVY |   |   |
|
| | Type | Description | Class CD | Sub Class CD | Year Built | Area |
| | BAS | BASE/MAIN FLOOR | 4 | 0 | 1995 | 1767.6 |
| | OWP | OPEN WOOD PORCH W/STEPS | 4 | 0 | 1995 | 101.2 |
Sketch
Property Image
Land
| 1 | 18 | AC (02.01-03.00) | 2.5000 | 108900.00 | 0.00 | 0.00 | 1.00 | $250,000 | $0 |
Roll Value History
| 2026 | N/A | N/A | N/A | N/A | N/A |
| 2025 | $135,075 | $250,000 | $0 | $385,075 | $385,075 |
| 2024 | $136,950 | $230,000 | $0 | $366,950 | $366,950 |
| 2023 | $122,349 | $220,000 | $0 | $342,349 | $342,349 |
| 2022 | $95,206 | $210,000 | $0 | $305,206 | $305,206 |
| 2021 | $85,164 | $160,000 | $0 | $245,164 | $245,164 |
| 2020 | $83,812 | $130,000 | $0 | $213,812 | $213,812 |
| 2019 | $67,848 | $180,000 | $0 | $247,848 | $247,848 |
| 2018 | $69,657 | $170,000 | $0 | $239,657 | $239,657 |
| 2017 | $71,466 | $150,000 | $0 | $221,466 | $221,466 |
| 2016 | $55,396 | $120,000 | $0 | $175,396 | $175,396 |
| 2015 | $57,026 | $90,000 | $0 | $147,026 | $147,026 |
| 2014 | $58,655 | $80,000 | $0 | $138,655 | $138,655 |
| 2013 | $59,469 | $80,750 | $0 | $140,219 | $140,219 |
| 2012 | $61,600 | $80,750 | $0 | $142,350 | $142,350 |
| 2011 | $63,229 | $95,000 | $0 | $158,229 | $158,229 |
| 2010 | $66,038 | $95,000 | $0 | $161,038 | $161,038 |
| 2009 | $85,936 | $105,000 | $0 | $190,936 | $190,936 |
| 2008 | $88,097 | $99,825 | $0 | $187,922 | $187,922 |
| 2007 | $90,257 | $99,825 | $0 | $190,082 | $190,082 |
Deed and Sales History
| 1 | 05/13/2019 | WD | Warranty Deed | EERKES, AMANDA K / RONALD G | EERKES TTEE, RONALD GENE | | | $0.00 | 38631 | 4463874 |
| 2 | 06/01/1994 | QCD | Quit Claim Deed | EERKES, AMANDA K | EERKES, AMANDA K | | | $0.00 | 42697 | 94014742 |
| 3 | 08/01/1993 | OTHER | Other - Misc. Documents | EERKES, AMANDA K | EERKES, AMANDA K | | | $0.00 | 65548 | 0 |
| 4 | 07/01/1993 | OTHER | Other - Misc. Documents | COOK, AMANDA K | EERKES, AMANDA K | | | $3,500.00 | 32869 | 0 |
| 5 | 02/01/1992 | QCD | Quit Claim Deed | BARRETT, JACKIE L | COOK, AMANDA K | | | $0.00 | 20586 | 92002818 |
| 6 | 01/01/1900 | OTHER | Other - Misc. Documents | BARRETT, JACKIE L | BARRETT, JACKIE L | | | $0.00 | 0 | 0 |
| 7 | 01/01/1900 | OTHER | Other - Misc. Documents | Unknown | BARRETT, JACKIE L | | | $0.00 | 0 | 0 |
Payout Agreement
| No payout information available.. |