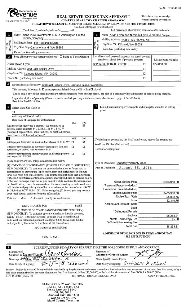
Property
Account |
| Property ID: | 102061 | Abbreviated Legal Description: | 42 - W/2 E/2 S/2 N/2 SW SW TGW SUB EZ |
| Geographic ID: | R23320-096-0830 | Agent Code: | |
| Type: | Real | | |
| Tax Area: | 112 - APPRAISER-OH Schl Dist, outside OH, improved, greater than 1 acre | Land Use Code | 11 |
| Open Space: | N | DFL | N |
| Historic Property: | N | Remodel Property: | N |
| Multi-Family Redevelopment: | N | | |
| Township: | 33 | Section: | 20 |
| Range: | R2 |
Location |
| Address: | 450 SECLUDED LN OAK HARBOR, WA 98277 | Mapsco: | |
| Neighborhood: | Cycle 6 | Map ID: | 612 |
| Neighborhood CD: | 6 |
Owner |
| Name: | ADKINS, PHILLIP L | Owner ID: | 285275 |
| Mailing Address: | TINA D ADKINS PO BOX 1211 OAK HARBOR, WA 98277 | % Ownership: | 100.0000000000% |
| | | Exemptions: | |
Taxes and Assessment Details
Values
| (+) Improvement Homesite Value: | + | $0 | |
| (+) Improvement Non-Homesite Value: | + | $167,821 | |
| (+) Land Homesite Value: | + | $0 | |
| (+) Land Non-Homesite Value: | + | $250,000 | |
| (+) Curr Use (HS): | + | $0 | $0 |
| (+) Curr Use (NHS): | + | $0 | $0 |
| | | -------------------------- | |
| (=) Market Value: | = | $417,821 | |
| (–) Productivity Loss: | – | $0 | |
| | | -------------------------- | |
| (=) Subtotal: | = | $417,821 | |
| (+) Senior Appraised Value: | + | $0 | |
| (+) Non-Senior Appraised Value: | + | $417,821 | |
| | | -------------------------- | |
| (=) Total Appraised Value: | = | $417,821 | |
| (–) Senior Exemption Loss: | – | $0 | |
| (–) Exemption Loss: | – | $0 | |
| | | -------------------------- | |
| (=) Taxable Value: | = | $417,821 | |
Taxing Jurisdiction
| Owner: | ADKINS, PHILLIP L | | |
| % Ownership: | 100.0000000000% | | |
| Total Value: | $417,821 | | |
| Tax Area: | 112 - APPRAISER-OH Schl Dist, outside OH, improved, greater than 1 acre |
| CF | Conservation Futures | 0.0316035091 | $417,821 | $417,821 | $13.20 | | |
| CEM1 | Cemetery #1 | 0.0040320932 | $417,821 | $417,821 | $1.68 | | |
| FIRE2 | Fire & Rescue Dist #2 N Whidbey GEN | 0.5475949600 | $417,821 | $417,821 | $228.80 | | |
| HOBOND | Hospital BOND | 0.1910887512 | $417,821 | $417,821 | $79.84 | | |
| HOGEN | Hospital GEN | 0.3902502903 | $417,821 | $417,821 | $163.05 | | |
| CE | County Current Expense | 0.3708482477 | $417,821 | $417,821 | $154.95 | | |
| CR | County Roads | 0.4584763726 | $417,821 | $417,821 | $191.56 | | |
| ISLANDEMS | Hospital GEN (EMS) | 0.5000000000 | $417,821 | $417,821 | $208.91 | | |
| LIB | Library Sno-Isle GEN | 0.3153421757 | $417,821 | $417,821 | $131.76 | | |
| NWHIDPRMT | P & R N Whidbey GEN | 0.2004466701 | $417,821 | $417,821 | $83.75 | | |
| SCH201MO | School 201 Enrichment | 1.8559231640 | $417,821 | $417,821 | $775.44 | | |
| ST | State School | 1.3035497053 | $417,821 | $417,821 | $544.65 | | |
| ST2 | State School Part 2 | 0.8169543533 | $417,821 | $417,821 | $341.34 | | |
| | Total Tax Rate: | 6.9861102925 | | | | | |
| | | | | Taxes w/Current Exemptions: | $2,918.93 | | |
| | | | | Taxes w/o Exemptions: | $2,918.93 | | |
Improvement / Building
| Improvement #1: | MANUFACTURED HOME | State Code: | Y | 1568.0 sqft | Value: | $167,821 |
| Bathrooms: | 2 | Bedrooms: | 3 | | Ceiling: | PLASTER PAINTED | Cooling: | EVAP NO DUCT | | Exterior Wall/Cover: | VINYL | Floor Covering: | CARPET 100% | | Floor Structure: | SLAB ON GRADE | Foundation: | SLAB | | Heating: | FHA ELECTRIC | Interior Finish: | PLASTER | | Plumbing Fixture Cnt: | 1 | Roof Slope: | FLAT | | Roof Structure/Cover: | CJ ALUMINIUM HEAVY |   |   |
|
| | Type | Description | Class CD | Sub Class CD | Year Built | Area |
| | BAS | BASE/MAIN FLOOR | 4 | 0 | 2008 | 1568.0 |
| | UTY | STORAGE/UTILITY | 4 | 0 | 2008 | 192.0 |
| | OWP | OPEN WOOD PORCH W/STEPS | 4 | 0 | 2008 | 112.0 |
| | CPD | OPEN CARPORT DIRT FLOOR | 4 | 0 | 2008 | 192.0 |
Sketch
Property Image
Land
| 1 | 18 | AC (02.01-03.00) | 2.5000 | 108900.00 | 0.00 | 0.00 | 1.00 | $250,000 | $0 |
Roll Value History
| 2026 | N/A | N/A | N/A | N/A | N/A |
| 2025 | $167,821 | $250,000 | $0 | $417,821 | $417,821 |
| 2024 | $169,771 | $230,000 | $0 | $399,771 | $399,771 |
| 2023 | $151,013 | $220,000 | $0 | $371,013 | $371,013 |
| 2022 | $173,046 | $210,000 | $0 | $383,046 | $383,046 |
| 2021 | $152,246 | $160,000 | $0 | $312,246 | $312,246 |
| 2020 | $149,510 | $130,000 | $0 | $279,510 | $279,510 |
| 2019 | $120,483 | $180,000 | $0 | $300,483 | $300,483 |
| 2018 | $73,628 | $170,000 | $0 | $243,628 | $243,628 |
| 2017 | $75,263 | $150,000 | $0 | $225,263 | $225,263 |
| 2016 | $78,741 | $120,000 | $0 | $198,741 | $198,741 |
| 2015 | $80,447 | $90,000 | $0 | $170,447 | $170,447 |
| 2014 | $81,299 | $80,000 | $0 | $161,299 | $161,299 |
| 2013 | $82,152 | $80,750 | $0 | $162,902 | $162,902 |
| 2012 | $83,857 | $80,750 | $0 | $164,607 | $164,607 |
| 2011 | $84,710 | $95,000 | $0 | $179,710 | $179,710 |
| 2010 | $94,644 | $95,000 | $0 | $189,644 | $189,644 |
| 2009 | $98,282 | $105,000 | $0 | $203,282 | $203,282 |
| 2008 | $98,404 | $135,892 | $0 | $234,296 | $234,296 |
| 2007 | $19,066 | $89,825 | $0 | $108,891 | $108,891 |
Deed and Sales History
| 1 | 05/10/2018 | WD | Warranty Deed | PRUETT, JAMES E | ADKINS, PHILLIP L | | | $287,500.00 | 34343 | 4445389 |
| 2 | 07/05/2007 | WD | Warranty Deed | DICKINSON, HARRY A | PRUETT, JAMES E | | | $156,500.00 | 72253 | 4206381 |
| 3 | 11/05/2001 | DECREE | Divorce Decree/Legal Separation | DICKINSON, HARRY A | DICKINSON, HARRY A | | | $0.00 | 14382 | 4002917 |
| 4 | 10/01/1997 | OTHER | Other - Misc. Documents | HUDMAN, DARREN S | DICKINSON, HARRY A | | | $10,358.00 | 73560 | 0 |
| 5 | 10/01/1997 | WD | Warranty Deed | DICKINSON, HARRY A | DICKINSON, HARRY A | | | $75,142.00 | 73559 | 97016797 |
| 6 | 10/01/1997 | WD | Warranty Deed | DICKINSON, HARRY A | DICKINSON, HARRY A | | | $75,142.00 | 73559 | 97016797 |
| 7 | 06/01/1995 | OTHER | Other - Misc. Documents | FREELAND, JAMES E | HUDMAN, DARREN S | | | $10,581.00 | 51946 | 0 |
| 8 | 06/01/1995 | WD | Warranty Deed | HUDMAN, DARREN S | HUDMAN, DARREN S | | | $63,919.00 | 51945 | 95008993 |
| 9 | 06/01/1995 | WD | Warranty Deed | HUDMAN, DARREN S | HUDMAN, DARREN S | | | $0.00 | 52174 | 95010082 |
| 10 | 06/01/1992 | QCD | Quit Claim Deed | FREELAND, JAMES E | FREELAND, JAMES E | | | $0.00 | 23362 | 92016390 |
| 11 | 03/01/1990 | WD | Warranty Deed | OTTEMAN, GREGORY K | FREELAND, JAMES E | | | $21,623.00 | 1844 | 90005914 |
| 12 | 10/01/1988 | QCD | Quit Claim Deed | GRANT, DANIEL W | OTTEMAN, GREGORY K | | | $0.00 | 83431 | 88012839 |
| 13 | 10/01/1988 | WD | Warranty Deed | OTTEMAN, GREGORY K | GRANT, DANIEL W | | | $15,000.00 | 83440 | 88012881 |
| 14 | 03/01/1980 | PRD | Personal Representatives Deed | JONES, LARRY E | OTTEMAN, GREGORY K | | | $30,000.00 | 960 | 366637 |
| 15 | 09/01/1979 | WD | Warranty Deed | HAGA, STEVEN W | JONES, LARRY E | | | $29,000.00 | 94707 | 359283 |
| 16 | 01/01/1900 | OTHER | Other - Misc. Documents | Unknown | HAGA, STEVEN W | | | $0.00 | 0 | 0 |
Payout Agreement
| No payout information available.. |