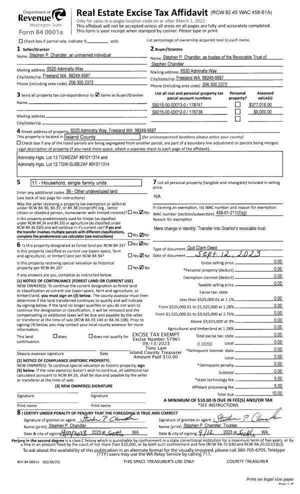
Property
Account |
| Property ID: | 102392 | Abbreviated Legal Description: | 67 - E/2 E/2 S/2 NW NE SE TGW EZ (TR 4 SP 72-059 AF#256198) |
| Geographic ID: | R23320-222-4470 | Agent Code: | |
| Type: | Real | | |
| Tax Area: | 112 - APPRAISER-OH Schl Dist, outside OH, improved, greater than 1 acre | Land Use Code | 11 |
| Open Space: | N | DFL | N |
| Historic Property: | N | Remodel Property: | N |
| Multi-Family Redevelopment: | N | | |
| Township: | 33 | Section: | 20 |
| Range: | R2 |
Location |
| Address: | 743 SPITFIRE LN OAK HARBOR, WA 98277 | Mapsco: | |
| Neighborhood: | Cycle 6 | Map ID: | 613 |
| Neighborhood CD: | 6 |
Owner |
| Name: | MORRISON, JENNIFER L | Owner ID: | 300751 |
| Mailing Address: | 303 E BROADWAY AVE APT G MONTESANO, WA 98277 | % Ownership: | 100.0000000000% |
| | | Exemptions: | |
Taxes and Assessment Details
Values
| (+) Improvement Homesite Value: | + | $0 | |
| (+) Improvement Non-Homesite Value: | + | $244,097 | |
| (+) Land Homesite Value: | + | $0 | |
| (+) Land Non-Homesite Value: | + | $210,000 | |
| (+) Curr Use (HS): | + | $0 | $0 |
| (+) Curr Use (NHS): | + | $0 | $0 |
| | | -------------------------- | |
| (=) Market Value: | = | $454,097 | |
| (–) Productivity Loss: | – | $0 | |
| | | -------------------------- | |
| (=) Subtotal: | = | $454,097 | |
| (+) Senior Appraised Value: | + | $0 | |
| (+) Non-Senior Appraised Value: | + | $454,097 | |
| | | -------------------------- | |
| (=) Total Appraised Value: | = | $454,097 | |
| (–) Senior Exemption Loss: | – | $0 | |
| (–) Exemption Loss: | – | $0 | |
| | | -------------------------- | |
| (=) Taxable Value: | = | $454,097 | |
Taxing Jurisdiction
| Owner: | MORRISON, JENNIFER L | | |
| % Ownership: | 100.0000000000% | | |
| Total Value: | $454,097 | | |
| Tax Area: | 112 - APPRAISER-OH Schl Dist, outside OH, improved, greater than 1 acre |
| CF | Conservation Futures | 0.0316035091 | $454,097 | $454,097 | $14.35 | | |
| CEM1 | Cemetery #1 | 0.0040320932 | $454,097 | $454,097 | $1.83 | | |
| FIRE2 | Fire & Rescue Dist #2 N Whidbey GEN | 0.5475949600 | $454,097 | $454,097 | $248.66 | | |
| HOBOND | Hospital BOND | 0.1910887512 | $454,097 | $454,097 | $86.77 | | |
| HOGEN | Hospital GEN | 0.3902502903 | $454,097 | $454,097 | $177.21 | | |
| CE | County Current Expense | 0.3708482477 | $454,097 | $454,097 | $168.40 | | |
| CR | County Roads | 0.4584763726 | $454,097 | $454,097 | $208.19 | | |
| ISLANDEMS | Hospital GEN (EMS) | 0.5000000000 | $454,097 | $454,097 | $227.05 | | |
| LIB | Library Sno-Isle GEN | 0.3153421757 | $454,097 | $454,097 | $143.20 | | |
| NWHIDPRMT | P & R N Whidbey GEN | 0.2004466701 | $454,097 | $454,097 | $91.02 | | |
| SCH201MO | School 201 Enrichment | 1.8559231640 | $454,097 | $454,097 | $842.77 | | |
| ST | State School | 1.3035497053 | $454,097 | $454,097 | $591.94 | | |
| ST2 | State School Part 2 | 0.8169543533 | $454,097 | $454,097 | $370.98 | | |
| | Total Tax Rate: | 6.9861102925 | | | | | |
| | | | | Taxes w/Current Exemptions: | $3,172.37 | | |
| | | | | Taxes w/o Exemptions: | $3,172.37 | | |
Improvement / Building
| Improvement #1: | RESIDENTIAL | State Code: | Y | 1721.0 sqft | Value: | $244,097 |
| Bathrooms: | 2 | Bedrooms: | 3 | | Ceiling: | DRY WALL SPRAYED | Exterior Wall/Cover: | PLY/HARDBOARD T-111 | | Floor Covering: | CARPET/VINYL 80-20 | Floor Structure: | WOOD W/SUBFLOOR | | Foundation: | CONCRETE | Heating: | BASEBOARD ELECTRIC | | Interior Finish: | DRYWALL PAINT | Plumbing Fixture Cnt: | 9 | | Roof Slope: | 4" IN 12" | Roof Structure/Cover: | CJ ASPHALT |
|
| | Type | Description | Class CD | Sub Class CD | Year Built | Area |
| | BAS | BASE/MAIN FLOOR | 3 | 0 | 1974 | 1721.0 |
| | OWP | OPEN WOOD PORCH W/STEPS | 3 | 0 | 1974 | 144.0 |
| | OCP | OPEN CARPORT | 3 | 0 | 1974 | 256.0 |
| | UTY | STORAGE/UTILITY | 3 | 0 | 1974 | 288.0 |
Sketch
Property Image
Land
| 1 | 17 | AC (01.01-02.00) | 1.2500 | 54450.00 | 0.00 | 0.00 | 1.00 | $210,000 | $0 |
Roll Value History
| 2026 | N/A | N/A | N/A | N/A | N/A |
| 2025 | $244,097 | $210,000 | $0 | $454,097 | $454,097 |
| 2024 | $252,882 | $210,000 | $0 | $462,882 | $462,882 |
| 2023 | $256,287 | $210,000 | $0 | $466,287 | $466,287 |
| 2022 | $235,160 | $200,000 | $0 | $435,160 | $435,160 |
| 2021 | $207,160 | $140,000 | $0 | $347,160 | $347,160 |
| 2020 | $202,168 | $130,000 | $0 | $332,168 | $332,168 |
| 2019 | $149,185 | $165,000 | $0 | $314,185 | $314,185 |
| 2018 | $149,657 | $150,000 | $0 | $299,657 | $299,657 |
| 2017 | $150,598 | $120,000 | $0 | $270,598 | $270,598 |
| 2016 | $131,911 | $100,000 | $0 | $231,911 | $231,911 |
| 2015 | $133,835 | $85,000 | $0 | $218,835 | $218,835 |
| 2014 | $135,757 | $80,000 | $0 | $215,757 | $215,757 |
| 2013 | $137,681 | $80,750 | $0 | $218,431 | $218,431 |
| 2012 | $139,603 | $80,750 | $0 | $220,353 | $220,353 |
| 2011 | $141,526 | $95,000 | $0 | $236,526 | $236,526 |
| 2010 | $133,158 | $95,000 | $0 | $228,158 | $228,158 |
| 2009 | $138,705 | $105,000 | $0 | $243,705 | $243,705 |
| 2008 | $145,618 | $73,235 | $0 | $218,853 | $218,853 |
| 2007 | $146,237 | $73,235 | $0 | $219,472 | $219,472 |
Deed and Sales History
| 1 | 08/17/2021 | WD | Warranty Deed | ROBINSON, THOMAS E | MORRISON, JENNIFER L | | | $455,000.00 | 49657 | 4527025 |
| 2 | 01/05/2010 | WD | Warranty Deed | DELGADO, EDWARD & JOAN D | ROBINSON, THOMAS E | | | $238,000.00 | 136 | 4267189 |
| 3 | 12/01/2005 | WD | Warranty Deed | EDWARDS, VONNIE M | DELGADO, EDWARD & JOAN D | | | $248,500.00 | 56043 | 4156041 |
| 4 | 01/04/2001 | WD | Warranty Deed | FELICI, RICKY J | EDWARDS, VONNIE M | | | $144,750.00 | 10140 | 20023449 |
| 5 | 06/01/1997 | WD | Warranty Deed | ANDERSON, DAVID P | FELICI, RICKY J | | | $125,000.00 | 72212 | 97010316 |
| 6 | 09/01/1993 | WD | Warranty Deed | PREDER, GARY | ANDERSON, DAVID P | | | $118,500.00 | 33818 | 93019793 |
| 7 | 01/01/1900 | OTHER | Other - Misc. Documents | Unknown | PREDER, GARY | | | $0.00 | 0 | 0 |
Payout Agreement
| No payout information available.. |