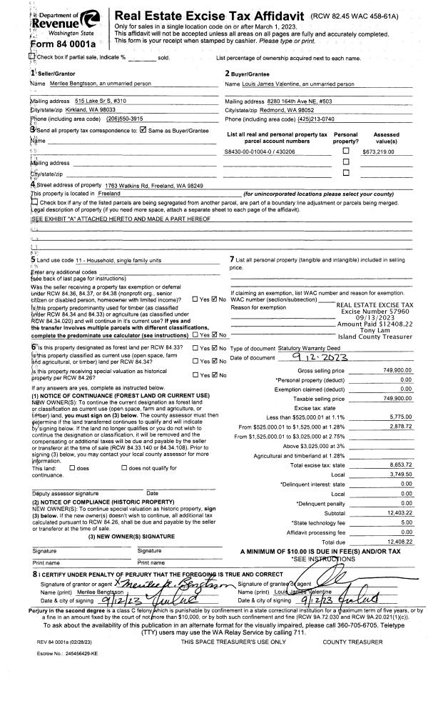
Property
Account |
| Property ID: | 102515 | Abbreviated Legal Description: | 87 - BG SECR SW NE N88*W 623.42' N1*E539.14' S56*E 732.36' S1*W149.85' TPB TGW & SUB EZ AF#313254, 352877 & 354358 |
| Geographic ID: | R23320-289-3620 | Agent Code: | |
| Type: | Real | | |
| Tax Area: | 112 - APPRAISER-OH Schl Dist, outside OH, improved, greater than 1 acre | Land Use Code | 11 |
| Open Space: | N | DFL | N |
| Historic Property: | N | Remodel Property: | N |
| Multi-Family Redevelopment: | N | | |
| Township: | 33 | Section: | 20 |
| Range: | R2 |
Location |
| Address: | 3451 ALTAIR PLACE OAK HARBOR, WA 98277 | Mapsco: | |
| Neighborhood: | Cycle 6 | Map ID: | 615 |
| Neighborhood CD: | 6 |
Owner |
| Name: | SIMPSON, MARK W / RHONDA J | Owner ID: | 73664 |
| Mailing Address: | 3451 ALTAIR PLACE OAK HARBOR, WA 98277-9109 | % Ownership: | 100.0000000000% |
| | | Exemptions: | |
Taxes and Assessment Details
Values
| (+) Improvement Homesite Value: | + | $0 | |
| (+) Improvement Non-Homesite Value: | + | $400,456 | |
| (+) Land Homesite Value: | + | $0 | |
| (+) Land Non-Homesite Value: | + | $300,000 | |
| (+) Curr Use (HS): | + | $0 | $0 |
| (+) Curr Use (NHS): | + | $0 | $0 |
| | | -------------------------- | |
| (=) Market Value: | = | $700,456 | |
| (–) Productivity Loss: | – | $0 | |
| | | -------------------------- | |
| (=) Subtotal: | = | $700,456 | |
| (+) Senior Appraised Value: | + | $0 | |
| (+) Non-Senior Appraised Value: | + | $700,456 | |
| | | -------------------------- | |
| (=) Total Appraised Value: | = | $700,456 | |
| (–) Senior Exemption Loss: | – | $0 | |
| (–) Exemption Loss: | – | $0 | |
| | | -------------------------- | |
| (=) Taxable Value: | = | $700,456 | |
Taxing Jurisdiction
| Owner: | SIMPSON, MARK W / RHONDA J | | |
| % Ownership: | 100.0000000000% | | |
| Total Value: | $700,456 | | |
| Tax Area: | 112 - APPRAISER-OH Schl Dist, outside OH, improved, greater than 1 acre |
| CF | Conservation Futures | 0.0316035091 | $700,456 | $700,456 | $22.14 | | |
| CEM1 | Cemetery #1 | 0.0040320932 | $700,456 | $700,456 | $2.82 | | |
| FIRE2 | Fire & Rescue Dist #2 N Whidbey GEN | 0.5475949600 | $700,456 | $700,456 | $383.57 | | |
| HOBOND | Hospital BOND | 0.1910887512 | $700,456 | $700,456 | $133.85 | | |
| HOGEN | Hospital GEN | 0.3902502903 | $700,456 | $700,456 | $273.35 | | |
| CE | County Current Expense | 0.3708482477 | $700,456 | $700,456 | $259.76 | | |
| CR | County Roads | 0.4584763726 | $700,456 | $700,456 | $321.14 | | |
| ISLANDEMS | Hospital GEN (EMS) | 0.5000000000 | $700,456 | $700,456 | $350.23 | | |
| LIB | Library Sno-Isle GEN | 0.3153421757 | $700,456 | $700,456 | $220.88 | | |
| NWHIDPRMT | P & R N Whidbey GEN | 0.2004466701 | $700,456 | $700,456 | $140.40 | | |
| SCH201MO | School 201 Enrichment | 1.8559231640 | $700,456 | $700,456 | $1,299.99 | | |
| ST | State School | 1.3035497053 | $700,456 | $700,456 | $913.08 | | |
| ST2 | State School Part 2 | 0.8169543533 | $700,456 | $700,456 | $572.24 | | |
| | Total Tax Rate: | 6.9861102925 | | | | | |
| | | | | Taxes w/Current Exemptions: | $4,893.45 | | |
| | | | | Taxes w/o Exemptions: | $4,893.45 | | |
Improvement / Building
| Improvement #1: | RESIDENTIAL | State Code: | Y | 1850.0 sqft | Value: | $400,456 |
| Bathrooms: | 2.5 | Bedrooms: | 3 | | Ceiling: | DRYWALL PAINTED | Exterior Wall/Cover: | CEMENT FIBER | | Floor Covering: | HARDWOOD/CARP 60-40 | Floor Structure: | WOOD W/SUBFLOOR | | Foundation: | CONCRETE | Heating: | FHA GAS | | Interior Finish: | DRYWALL PAINT | Plumbing Fixture Cnt: | 11 | | Roof Slope: | 6" IN 12" | Roof Structure/Cover: | CJ ASPHALT |
|
| | Type | Description | Class CD | Sub Class CD | Year Built | Area |
| | BAS | BASE/MAIN FLOOR | 3 | 0 | 1996 | 925.0 |
| | UPS | UPPER STORY | 3 | 0 | 1996 | 925.0 |
| | OWR | OPEN WOOD PORCH W/STEPS/ROOF | 3 | 0 | 1996 | 1248.0 |
| | UTY | STORAGE/UTILITY | 3 | 0 | 1996 | 200.0 |
| | DGR | DETACHED GARAGE | 3 | 0 | 1996 | 2280.0 |
Sketch
Property Image
Land
| 1 | 32 | AC (03.01-09.99) | 4.9300 | 0.00 | 0.00 | 0.00 | 1.00 | $300,000 | $0 |
Roll Value History
| 2026 | N/A | N/A | N/A | N/A | N/A |
| 2025 | $400,456 | $300,000 | $0 | $700,456 | $700,456 |
| 2024 | $405,640 | $280,000 | $0 | $685,640 | $685,640 |
| 2023 | $410,824 | $270,000 | $0 | $680,824 | $680,824 |
| 2022 | $367,290 | $240,000 | $0 | $607,290 | $607,290 |
| 2021 | $323,467 | $175,000 | $0 | $498,467 | $498,467 |
| 2020 | $315,487 | $150,000 | $0 | $465,487 | $465,487 |
| 2019 | $235,598 | $185,000 | $0 | $420,598 | $420,598 |
| 2018 | $236,323 | $170,000 | $0 | $406,323 | $406,323 |
| 2017 | $237,773 | $150,000 | $0 | $387,773 | $387,773 |
| 2016 | $216,542 | $130,000 | $0 | $346,542 | $346,542 |
| 2015 | $218,598 | $120,000 | $0 | $338,598 | $338,598 |
| 2014 | $220,656 | $100,000 | $0 | $320,656 | $320,656 |
| 2013 | $222,714 | $97,614 | $0 | $320,328 | $320,328 |
| 2012 | $224,771 | $97,614 | $0 | $322,385 | $322,385 |
| 2011 | $226,828 | $108,460 | $0 | $335,288 | $335,288 |
| 2010 | $237,795 | $108,460 | $0 | $346,255 | $346,255 |
| 2009 | $247,128 | $123,250 | $0 | $370,378 | $370,378 |
| 2008 | $250,916 | $142,970 | $0 | $393,886 | $393,886 |
| 2007 | $255,320 | $109,002 | $0 | $364,322 | $364,322 |
Deed and Sales History
| 1 | 05/01/1995 | WD | Warranty Deed | LESLIE, LINDA D | SIMPSON, MARK W | | | $30,000.00 | 51852 | 95008610 |
| 2 | 05/01/1988 | TRUSTEED | Trustee's Deed | LESLIE, LINDA D | LESLIE, LINDA D | | | $0.00 | 81368 | 88005114 |
| 3 | 05/01/1988 | TRUSTEED | Trustee's Deed | TYSON, KENNETH J | LESLIE, LINDA D | | | $0.00 | 81814 | 88006720 |
| 4 | 04/01/1982 | WD | Warranty Deed | BERGDOLL, RICHARD D | TYSON, KENNETH J | | | $22,900.00 | 21027 | 395834 |
| 5 | 11/01/1978 | OTHER | Other - Misc. Documents | Unknown | BERGDOLL, RICHARD D | | | $17,000.00 | 85542 | 342939 |
Payout Agreement
| No payout information available.. |