Property
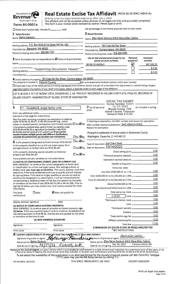
Account |
| Property ID: | 102640 | Abbreviated Legal Description: | 76 - BG SECR SE NE N88*W649 .98' N43*W650' TPB N43*W272 .54' N1*E659.85' S88*E354 .53' S12*W871.64' TPB TGW & SUB EZ BLC 4546388 |
| Geographic ID: | R23320-367-4130 | Agent Code: | |
| Type: | Real | | |
| Tax Area: | 112 - APPRAISER-OH Schl Dist, outside OH, improved, greater than 1 acre | Land Use Code | 11 |
| Open Space: | N | DFL | N |
| Historic Property: | N | Remodel Property: | N |
| Multi-Family Redevelopment: | N | | |
| Township: | 33 | Section: | 20 |
| Range: | R2 |
Location |
| Address: | 3450 ALTAIR PLACE OAK HARBOR, WA 98277 | Mapsco: | |
| Neighborhood: | Cycle 6 | Map ID: | 615 |
| Neighborhood CD: | 6 |
Owner |
| Name: | BOWLIN, JUSTIN | Owner ID: | 304996 |
| Mailing Address: | 3450 ALTAIR PL OAK HARBOR, WA 98277 | % Ownership: | 100.0000000000% |
| | | Exemptions: | |
Taxes and Assessment Details
Values
| (+) Improvement Homesite Value: | + | $0 | |
| (+) Improvement Non-Homesite Value: | + | $275,450 | |
| (+) Land Homesite Value: | + | $0 | |
| (+) Land Non-Homesite Value: | + | $300,000 | |
| (+) Curr Use (HS): | + | $0 | $0 |
| (+) Curr Use (NHS): | + | $0 | $0 |
| | | -------------------------- | |
| (=) Market Value: | = | $575,450 | |
| (–) Productivity Loss: | – | $0 | |
| | | -------------------------- | |
| (=) Subtotal: | = | $575,450 | |
| (+) Senior Appraised Value: | + | $0 | |
| (+) Non-Senior Appraised Value: | + | $575,450 | |
| | | -------------------------- | |
| (=) Total Appraised Value: | = | $575,450 | |
| (–) Senior Exemption Loss: | – | $0 | |
| (–) Exemption Loss: | – | $0 | |
| | | -------------------------- | |
| (=) Taxable Value: | = | $575,450 | |
Taxing Jurisdiction
| Owner: | BOWLIN, JUSTIN | | |
| % Ownership: | 100.0000000000% | | |
| Total Value: | $575,450 | | |
| Tax Area: | 112 - APPRAISER-OH Schl Dist, outside OH, improved, greater than 1 acre |
| CF | Conservation Futures | 0.0316035091 | $575,450 | $575,450 | $18.19 | | |
| CEM1 | Cemetery #1 | 0.0040320932 | $575,450 | $575,450 | $2.32 | | |
| FIRE2 | Fire & Rescue Dist #2 N Whidbey GEN | 0.5475949600 | $575,450 | $575,450 | $315.11 | | |
| HOBOND | Hospital BOND | 0.1910887512 | $575,450 | $575,450 | $109.96 | | |
| HOGEN | Hospital GEN | 0.3902502903 | $575,450 | $575,450 | $224.57 | | |
| CE | County Current Expense | 0.3708482477 | $575,450 | $575,450 | $213.40 | | |
| CR | County Roads | 0.4584763726 | $575,450 | $575,450 | $263.83 | | |
| ISLANDEMS | Hospital GEN (EMS) | 0.5000000000 | $575,450 | $575,450 | $287.73 | | |
| LIB | Library Sno-Isle GEN | 0.3153421757 | $575,450 | $575,450 | $181.46 | | |
| NWHIDPRMT | P & R N Whidbey GEN | 0.2004466701 | $575,450 | $575,450 | $115.35 | | |
| SCH201MO | School 201 Enrichment | 1.8559231640 | $575,450 | $575,450 | $1,067.99 | | |
| ST | State School | 1.3035497053 | $575,450 | $575,450 | $750.13 | | |
| ST2 | State School Part 2 | 0.8169543533 | $575,450 | $575,450 | $470.12 | | |
| | Total Tax Rate: | 6.9861102925 | | | | | |
| | | | | Taxes w/Current Exemptions: | $4,020.16 | | |
| | | | | Taxes w/o Exemptions: | $4,020.16 | | |
Improvement / Building
| Improvement #1: | MANUFACTURED HOME | State Code: | Y | 2066.0 sqft | Value: | $134,971 |
| Bathrooms: | 2 | Bedrooms: | 3 | | Ceiling: | PLASTER PAINTED | Cooling: | EVAP NO DUCT | | Exterior Wall/Cover: | VINYL | Floor Covering: | CARPET 100% | | Floor Structure: | SLAB ON GRADE | Foundation: | SLAB | | Heating: | FHA ELECTRIC | Interior Finish: | PLASTER | | Plumbing Fixture Cnt: | 1 | Roof Slope: | FLAT | | Roof Structure/Cover: | CJ ALUMINIUM HEAVY |   |   |
|
| | Type | Description | Class CD | Sub Class CD | Year Built | Area |
| | BAS | BASE/MAIN FLOOR | 4 | 0 | 2000 | 2066.0 |
| | OWP | OPEN WOOD PORCH W/STEPS | 4 | 0 | 2000 | 400.0 |
| Improvement #2: | RESIDENTIAL | State Code: | Y | 432.0 sqft | Value: | $140,479 |
| Bathrooms: | 0.75 | Bedrooms: | 0 | | Ceiling: | DRYWALL PAINTED | Exterior Wall/Cover: | CEMENT FIBER | | Floor Covering: | CARPET 100% | Floor Structure: | WOOD W/SUBFLOOR | | Foundation: | SLAB | Heating: | BASEBOARD ELECTRIC | | Interior Finish: | DRYWALL PAINT | Plumbing Fixture Cnt: | 6 | | Roof Slope: | 4" IN 12" | Roof Structure/Cover: | CJ ASPHALT |
|
| | Type | Description | Class CD | Sub Class CD | Year Built | Area |
| | BAS | BASE/MAIN FLOOR | 4 | 0 | 2000 | 432.0 |
| | BIG | BUILT IN GARAGE | 3 | 0 | 2000 | 432.0 |
| | OWP | OPEN WOOD PORCH W/STEPS | 3 | 0 | 2000 | 64.0 |
Sketch
Property Image
Land
| 1 | 32 | AC (03.01-09.99) | 5.1000 | 222156.00 | 0.00 | 0.00 | 1.00 | $300,000 | $0 |
Roll Value History
| 2026 | N/A | N/A | N/A | N/A | N/A |
| 2025 | $275,450 | $300,000 | $0 | $575,450 | $575,450 |
| 2024 | $284,034 | $280,000 | $0 | $564,034 | $564,034 |
| 2023 | $271,401 | $270,000 | $0 | $541,401 | $541,401 |
| 2022 | $185,896 | $240,000 | $0 | $425,896 | $425,896 |
| 2021 | $165,236 | $175,000 | $0 | $340,236 | $340,236 |
| 2020 | $162,932 | $150,000 | $0 | $312,932 | $312,932 |
| 2019 | $124,306 | $185,000 | $0 | $309,306 | $309,306 |
| 2018 | $125,493 | $170,000 | $0 | $295,493 | $295,493 |
| 2017 | $127,865 | $150,000 | $0 | $277,865 | $277,865 |
| 2016 | $86,850 | $130,000 | $0 | $216,850 | $216,850 |
| 2015 | $88,976 | $120,000 | $0 | $208,976 | $208,976 |
| 2014 | $91,101 | $100,000 | $0 | $191,101 | $191,101 |
| 2013 | $93,227 | $97,416 | $0 | $190,643 | $190,643 |
| 2012 | $95,354 | $97,416 | $0 | $192,770 | $192,770 |
| 2011 | $96,416 | $108,240 | $0 | $204,656 | $204,656 |
| 2010 | $113,330 | $108,240 | $0 | $221,570 | $221,570 |
| 2009 | $118,569 | $123,000 | $0 | $241,569 | $241,569 |
| 2008 | $137,944 | $142,680 | $0 | $280,624 | $280,624 |
| 2007 | $140,940 | $103,013 | $0 | $243,953 | $243,953 |
Deed and Sales History
| 1 | 06/20/2022 | WD | Warranty Deed | FRAZER, DAVID A | BOWLIN, JUSTIN | | | $585,000.00 | 53752 | 4547974 |
| 2 | 06/25/2008 | WD | Warranty Deed | BARKHAUSEN, JEFFREY L | FRAZER, DAVID A | | | $289,000.00 | 81752 | 4232195 |
| 3 | 09/01/1996 | WD | Warranty Deed | AMEZQUITA, ANTHONY M | BARKHAUSEN, JEFFREY L | | | $37,000.00 | 63319 | 96016295 |
| 4 | 01/01/1991 | WD | Warranty Deed | MATSON, KEITH J | AMEZQUITA, ANTHONY M | | | $18,000.00 | 10279 | 91001317 |
| 5 | 09/01/1985 | WD | Warranty Deed | MATSON, KEITH J | MATSON, KEITH J | | | $21,000.00 | 52676 | 85010581 |
| 6 | 04/01/1982 | QCD | Quit Claim Deed | GENT, TIMOTHY B | MATSON, KEITH J | | | $0.00 | 21023 | 395831 |
| 7 | 04/01/1982 | REC | Real Estate Contract | HARGROVE, L J | GENT, TIMOTHY B | | | $29,000.00 | 21026 | 395833 |
| 8 | 09/01/1979 | OTHER | Other - Misc. Documents | HARGROVE, WM D | HARGROVE, L J | | | $0.00 | 58827 | 0 |
| 9 | 01/01/1900 | PACD | Purchaser's Assignment | Unknown | BARKHAUSEN, JEFFREY L | | | $0.00 | 0 | 0 |
| 10 | 01/01/1900 | OTHER | Other - Misc. Documents | BARKHAUSEN, JEFFREY L | HARGROVE, WM D | | | $0.00 | 0 | 0 |
Payout Agreement
| No payout information available.. |