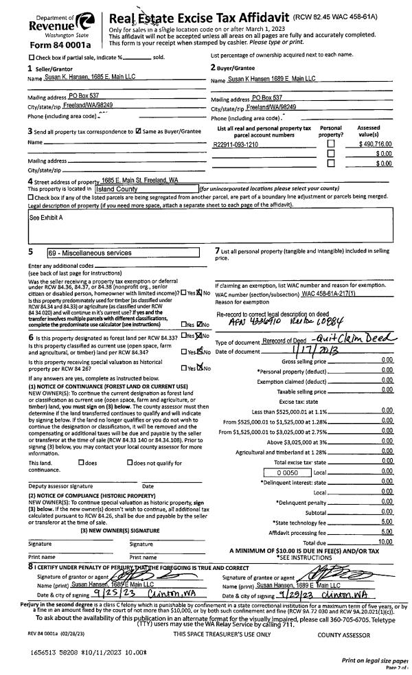
Property
Account |
| Property ID: | 102784 | Abbreviated Legal Description: | 84 - N466' OF W466' OF NW NW EX RDS TGW 2 SHARES WELL TGW EZ AF#96003933 |
| Geographic ID: | R23320-517-0300 | Agent Code: | |
| Type: | Real | | |
| Tax Area: | 112 - APPRAISER-OH Schl Dist, outside OH, improved, greater than 1 acre | Land Use Code | 11 |
| Open Space: | N | DFL | N |
| Historic Property: | N | Remodel Property: | N |
| Multi-Family Redevelopment: | N | | |
| Township: | 33 | Section: | 20 |
| Range: | R2 |
Location |
| Address: | 3590 TAYLOR RD OAK HARBOR, WA 98277 | Mapsco: | |
| Neighborhood: | Cycle 6 | Map ID: | 614 |
| Neighborhood CD: | 6 |
Owner |
| Name: | THOMSON, TOBIN HR | Owner ID: | 196021 |
| Mailing Address: | 3114 GREEN RD OAK HARBOR, WA 98277-9095 | % Ownership: | 100.0000000000% |
| | | Exemptions: | |
Taxes and Assessment Details
Values
| (+) Improvement Homesite Value: | + | $0 | |
| (+) Improvement Non-Homesite Value: | + | $240,354 | |
| (+) Land Homesite Value: | + | $0 | |
| (+) Land Non-Homesite Value: | + | $300,000 | |
| (+) Curr Use (HS): | + | $0 | $0 |
| (+) Curr Use (NHS): | + | $0 | $0 |
| | | -------------------------- | |
| (=) Market Value: | = | $540,354 | |
| (–) Productivity Loss: | – | $0 | |
| | | -------------------------- | |
| (=) Subtotal: | = | $540,354 | |
| (+) Senior Appraised Value: | + | $0 | |
| (+) Non-Senior Appraised Value: | + | $540,354 | |
| | | -------------------------- | |
| (=) Total Appraised Value: | = | $540,354 | |
| (–) Senior Exemption Loss: | – | $0 | |
| (–) Exemption Loss: | – | $0 | |
| | | -------------------------- | |
| (=) Taxable Value: | = | $540,354 | |
Taxing Jurisdiction
| Owner: | THOMSON, TOBIN HR | | |
| % Ownership: | 100.0000000000% | | |
| Total Value: | $540,354 | | |
| Tax Area: | 112 - APPRAISER-OH Schl Dist, outside OH, improved, greater than 1 acre |
| CF | Conservation Futures | 0.0316035091 | $540,354 | $540,354 | $17.08 | | |
| CEM1 | Cemetery #1 | 0.0040320932 | $540,354 | $540,354 | $2.18 | | |
| FIRE2 | Fire & Rescue Dist #2 N Whidbey GEN | 0.5475949600 | $540,354 | $540,354 | $295.90 | | |
| HOBOND | Hospital BOND | 0.1910887512 | $540,354 | $540,354 | $103.26 | | |
| HOGEN | Hospital GEN | 0.3902502903 | $540,354 | $540,354 | $210.87 | | |
| CE | County Current Expense | 0.3708482477 | $540,354 | $540,354 | $200.39 | | |
| CR | County Roads | 0.4584763726 | $540,354 | $540,354 | $247.74 | | |
| ISLANDEMS | Hospital GEN (EMS) | 0.5000000000 | $540,354 | $540,354 | $270.18 | | |
| LIB | Library Sno-Isle GEN | 0.3153421757 | $540,354 | $540,354 | $170.40 | | |
| NWHIDPRMT | P & R N Whidbey GEN | 0.2004466701 | $540,354 | $540,354 | $108.31 | | |
| SCH201MO | School 201 Enrichment | 1.8559231640 | $540,354 | $540,354 | $1,002.86 | | |
| ST | State School | 1.3035497053 | $540,354 | $540,354 | $704.38 | | |
| ST2 | State School Part 2 | 0.8169543533 | $540,354 | $540,354 | $441.44 | | |
| | Total Tax Rate: | 6.9861102925 | | | | | |
| | | | | Taxes w/Current Exemptions: | $3,774.99 | | |
| | | | | Taxes w/o Exemptions: | $3,774.99 | | |
Improvement / Building
| Improvement #1: | RESIDENTIAL | State Code: | Y | 997.5 sqft | Value: | $152,208 |
| Bathrooms: | 1 | Bedrooms: | 2 | | Ceiling: | DRYWALL PAINTED | Exterior Wall/Cover: | SHINGLE | | Floor Covering: | CARPET 100% | Floor Structure: | WOOD W/SUBFLOOR | | Foundation: | WOOD BLOCKS | Heating: | WALL HEAT ELECTRIC | | Interior Finish: | DRYWALL PAINT | Plumbing Fixture Cnt: | 6 | | Roof Slope: | 10" IN 12" | Roof Structure/Cover: | CJ ASPHALT |
|
| | Type | Description | Class CD | Sub Class CD | Year Built | Area |
| | BAS | BASE/MAIN FLOOR | 3 | 0 | 1918 | 997.5 |
| | ATF | ATTIC FINISHED | 3 | 0 | 1918 | 285.0 |
| | CPD | OPEN CARPORT DIRT FLOOR | 3 | 0 | 1918 | 1048.0 |
| | CPD | OPEN CARPORT DIRT FLOOR | 3 | 0 | 1918 | 345.0 |
| | UTY | STORAGE/UTILITY | 3 | 0 | 1918 | 192.0 |
| | OP4 | OPEN PORCH W/CEILING-ROOF | 3 | 0 | 1918 | 25.0 |
| | OWR | OPEN WOOD PORCH W/STEPS/ROOF | 3 | 0 | 1918 | 55.0 |
| | DGR | DETACHED GARAGE | 3 | 0 | 1918 | 600.0 |
| Improvement #2: | RESIDENTIAL | State Code: | Y | 720.0 sqft | Value: | $88,146 |
| Bathrooms: | 1 | Bedrooms: | 2 | | Ceiling: | ACOUSTIC FURRED | Exterior Wall/Cover: | WOOD SIDING | | Floor Covering: | VINYL 100% | Floor Structure: | WOOD W/SUBFLOOR | | Foundation: | PIERS/CONCRETE | Heating: | FHA GAS | | Interior Finish: | DRYWALL PAINT | Plumbing Fixture Cnt: | 5 | | Roof Slope: | 3" IN 12" | Roof Structure/Cover: | CJ ASPHALT |
|
| | Type | Description | Class CD | Sub Class CD | Year Built | Area |
| | BAS | BASE/MAIN FLOOR | 3 | 0 | 1945 | 720.0 |
| | ENP | ENCLOSED PORCH | 3 | 0 | 1945 | 60.0 |
Sketch
Property Image
Land
| 1 | 32 | AC (03.01-09.99) | 4.3700 | 0.00 | 0.00 | 0.00 | 1.00 | $300,000 | $0 |
Roll Value History
| 2026 | N/A | N/A | N/A | N/A | N/A |
| 2025 | $240,354 | $300,000 | $0 | $540,354 | $540,354 |
| 2024 | $244,705 | $280,000 | $0 | $524,705 | $524,705 |
| 2023 | $249,057 | $270,000 | $0 | $519,057 | $519,057 |
| 2022 | $229,460 | $240,000 | $0 | $469,460 | $469,460 |
| 2021 | $202,963 | $175,000 | $0 | $377,963 | $377,963 |
| 2020 | $198,513 | $150,000 | $0 | $348,513 | $348,513 |
| 2019 | $141,835 | $185,000 | $0 | $326,835 | $326,835 |
| 2018 | $142,413 | $170,000 | $0 | $312,413 | $312,413 |
| 2017 | $139,891 | $150,000 | $0 | $289,891 | $289,891 |
| 2016 | $97,804 | $130,000 | $0 | $227,804 | $227,804 |
| 2015 | $99,650 | $120,000 | $0 | $219,650 | $219,650 |
| 2014 | $101,497 | $100,000 | $0 | $201,497 | $201,497 |
| 2013 | $105,346 | $86,526 | $0 | $191,872 | $191,872 |
| 2012 | $107,191 | $86,526 | $0 | $193,717 | $193,717 |
| 2011 | $109,036 | $96,140 | $0 | $205,176 | $205,176 |
| 2010 | $123,601 | $96,140 | $0 | $219,741 | $219,741 |
| 2009 | $127,815 | $109,250 | $0 | $237,065 | $237,065 |
| 2008 | $129,812 | $126,730 | $0 | $256,542 | $256,542 |
| 2007 | $131,782 | $96,621 | $0 | $228,403 | $228,403 |
Deed and Sales History
| 1 | 06/29/2022 | WD | Warranty Deed | MCKNIGHT, WILLIAM A | THOMSON, TOBIN HR | | | $101,000.00 | 53784 | 4548224 |
| 2 | 08/27/2005 | ESTSEPPROP | Establish Separate Property | MCKNIGHT, WILLIAM A | MCKNIGHT, WILLIAM A | | | $0.00 | 54247 | 4145757 |
| 3 | 08/27/2005 | WD | Warranty Deed | CHAMBERS, JOHN A | MCKNIGHT, WILLIAM A | | | $275,000.00 | 54246 | 4145756 |
| 4 | 09/01/1976 | WD | Warranty Deed | CHAMBERS, JOHN A | CHAMBERS, JOHN A | | | $0.00 | 80576 | 98003072 |
| 5 | 01/01/1900 | OTHER | Other - Misc. Documents | Unknown | CHAMBERS, JOHN A | | | $0.00 | 0 | 0 |
Payout Agreement
| No payout information available.. |