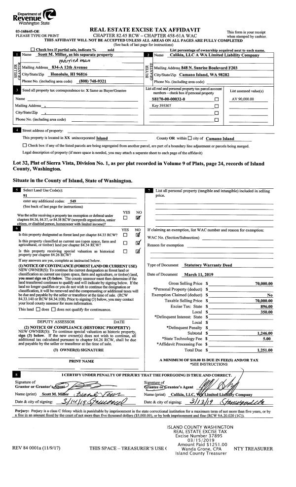
Property
Account |
| Property ID: | 102926 | Abbreviated Legal Description: | 24 - E488' OF W1056' OF N/2 N/2 SW SW EX RD (W40'TO 114-0260) |
| Geographic ID: | R23321-114-0780 | Agent Code: | |
| Type: | Real | | |
| Tax Area: | 112 - APPRAISER-OH Schl Dist, outside OH, improved, greater than 1 acre | Land Use Code | 11 |
| Open Space: | N | DFL | N |
| Historic Property: | N | Remodel Property: | N |
| Multi-Family Redevelopment: | N | | |
| Township: | 33 | Section: | 21 |
| Range: | R2 |
Location |
| Address: | 847 NIDA DR OAK HARBOR, WA 98277 | Mapsco: | |
| Neighborhood: | Cycle 6 | Map ID: | 616 |
| Neighborhood CD: | 6 |
Owner |
| Name: | ERICKSON, JUNE | Owner ID: | 307084 |
| Mailing Address: | 847 NIDA DR OAK HARBOR, WA 98277 | % Ownership: | 100.0000000000% |
| | | Exemptions: | SNR/DSBL |
Taxes and Assessment Details
Values
| (+) Improvement Homesite Value: | + | $79,241 | |
| (+) Improvement Non-Homesite Value: | + | $0 | |
| (+) Land Homesite Value: | + | $300,000 | |
| (+) Land Non-Homesite Value: | + | $0 | |
| (+) Curr Use (HS): | + | $0 | $0 |
| (+) Curr Use (NHS): | + | $0 | $0 |
| | | -------------------------- | |
| (=) Market Value: | = | $379,241 | |
| (–) Productivity Loss: | – | $0 | |
| | | -------------------------- | |
| (=) Subtotal: | = | $379,241 | |
| (+) Senior Appraised Value: | + | $348,748 | |
| (+) Non-Senior Appraised Value: | + | $0 | |
| | | -------------------------- | |
| (=) Total Appraised Value: | = | $348,748 | |
| (–) Senior Exemption Loss: | – | $209,249 | |
| (–) Exemption Loss: | – | $0 | |
| | | -------------------------- | |
| (=) Taxable Value: | = | $139,499 | |
Taxing Jurisdiction
| Owner: | ERICKSON, JUNE | | |
| % Ownership: | 100.0000000000% | | |
| Total Value: | $379,241 | | |
| Tax Area: | 112 - APPRAISER-OH Schl Dist, outside OH, improved, greater than 1 acre |
| CF | Conservation Futures | 0.0316035091 | $379,241 | $139,499 | $4.41 | | |
| CEM1 | Cemetery #1 | 0.0040320932 | $379,241 | $139,499 | $0.56 | | |
| FIRE2 | Fire & Rescue Dist #2 N Whidbey GEN | 0.5475949600 | $379,241 | $139,499 | $76.39 | | |
| HOBOND | Hospital BOND | 0.0000000000 | $379,241 | $0 | $0.00 | | |
| HOGEN | Hospital GEN | 0.3902502903 | $379,241 | $139,499 | $54.44 | | |
| CE | County Current Expense | 0.3708482477 | $379,241 | $139,499 | $51.73 | | |
| CR | County Roads | 0.4584763726 | $379,241 | $139,499 | $63.96 | | |
| ISLANDEMS | Hospital GEN (EMS) | 0.5000000000 | $379,241 | $139,499 | $69.75 | | |
| LIB | Library Sno-Isle GEN | 0.3153421757 | $379,241 | $139,499 | $43.99 | | |
| NWHIDPRMT | P & R N Whidbey GEN | 0.2004466701 | $379,241 | $139,499 | $27.96 | | |
| SCH201MO | School 201 Enrichment | 0.0000000000 | $379,241 | $0 | $0.00 | | |
| ST | State School | 1.3035497053 | $379,241 | $139,499 | $181.84 | | |
| ST2 | State School Part 2 | 0.0000000000 | $379,241 | $0 | $0.00 | | |
| | Total Tax Rate: | 4.1221440240 | | | | | |
| | | | | Taxes w/Current Exemptions: | $575.03 | | |
| | | | | Taxes w/o Exemptions: | $2,649.42 | | |
Improvement / Building
| Improvement #1: | MANUFACTURED HOME | State Code: | Y | 1344.0 sqft | Value: | $79,241 |
| Bathrooms: | 0 | Bedrooms: | 0 | | Ceiling: | PLASTER PAINTED | Cooling: | EVAP NO DUCT | | Exterior Wall/Cover: | VINYL | Floor Covering: | CARPET 100% | | Floor Structure: | SLAB ON GRADE | Foundation: | SLAB | | Heating: | FHA ELECTRIC | Interior Finish: | PLASTER | | Plumbing Fixture Cnt: | 1 | Roof Slope: | FLAT | | Roof Structure/Cover: | CJ ALUMINIUM HEAVY |   |   |
|
| | Type | Description | Class CD | Sub Class CD | Year Built | Area |
| | BAS | BASE/MAIN FLOOR | 4 | 0 | 1975 | 1344.0 |
| | ENP | ENCLOSED PORCH | 4 | 0 | 1975 | 288.0 |
| | OP1 | OPEN PORCH SLAB | 4 | 0 | 1975 | 360.0 |
| | ENP | ENCLOSED PORCH | 4 | 0 | 1975 | 391.0 |
| | ENP | ENCLOSED PORCH | 3 | 0 | 1975 | 735.5 |
Sketch
Property Image
Land
| 1 | 32 | AC (03.01-09.99) | 3.4800 | 151588.80 | 0.00 | 0.00 | 1.00 | $300,000 | $0 |
Roll Value History
| 2026 | N/A | N/A | N/A | N/A | N/A |
| 2025 | $79,241 | $300,000 | $0 | $379,241 | $139,499 |
| 2024 | $86,033 | $280,000 | $0 | $366,033 | $139,499 |
| 2023 | $78,748 | $270,000 | $0 | $348,748 | $139,499 |
| 2022 | $86,567 | $240,000 | $0 | $326,567 | $326,567 |
| 2021 | $81,085 | $175,000 | $0 | $256,085 | $256,085 |
| 2020 | $81,919 | $150,000 | $0 | $231,919 | $231,919 |
| 2019 | $71,790 | $185,000 | $0 | $256,790 | $256,790 |
| 2018 | $68,503 | $170,000 | $0 | $238,503 | $238,503 |
| 2017 | $70,210 | $150,000 | $0 | $220,210 | $220,210 |
| 2016 | $71,915 | $120,000 | $0 | $191,915 | $191,915 |
| 2015 | $65,945 | $80,000 | $0 | $145,945 | $145,945 |
| 2014 | $48,890 | $80,000 | $0 | $128,890 | $128,890 |
| 2013 | $49,685 | $80,750 | $0 | $130,435 | $130,435 |
| 2012 | $51,278 | $80,750 | $0 | $132,028 | $132,028 |
| 2011 | $52,871 | $95,000 | $0 | $147,871 | $147,871 |
| 2010 | $43,607 | $95,000 | $0 | $138,607 | $138,607 |
| 2009 | $61,195 | $87,000 | $0 | $148,195 | $148,195 |
| 2008 | $62,289 | $100,920 | $0 | $163,209 | $163,209 |
| 2007 | $65,432 | $87,140 | $0 | $152,572 | $152,572 |
Deed and Sales History
| 1 | 12/22/2022 | WD | Warranty Deed | BRECHTEFELD, JUNIOR | ERICKSON, JUNE | | | $365,000.00 | 55522 | 4555295 |
| 2 | 04/25/2019 | WD | Warranty Deed | JAIME, DANTE I | BRECHTEFELD, JUNIOR | | | $269,000.00 | 38218 | 4462059 |
| 3 | 03/31/2015 | WD | Warranty Deed | FAULKNER, PAUL B | JAIME, DANTE I | | | $168,500.00 | 19093 | 4376336 |
| 4 | 06/01/1989 | OTHER | Other - Misc. Documents | FAULKNER, PAUL B | FAULKNER, PAUL B | | | $28,000.00 | 92478 | 0 |
| 5 | 06/01/1989 | WD | Warranty Deed | NIENHUIS, DUANE H | FAULKNER, PAUL B | | | $22,000.00 | 92413 | 89008244 |
| 6 | 01/01/1987 | WD | Warranty Deed | MILLS, FRED I | NIENHUIS, DUANE H | | | $18,937.00 | 70094 | 87000677 |
| 7 | 11/01/1985 | OTHER | Other - Misc. Documents | MILLS, FRED I | MILLS, FRED I | | | $0.00 | 61361 | 85011425 |
| 8 | 01/01/1900 | OTHER | Other - Misc. Documents | Unknown | MILLS, FRED I | | | $0.00 | 0 | 0 |
Payout Agreement
| No payout information available.. |